Späť na článok Kompaktný interiér s odkazom na minulosť
2 / 11
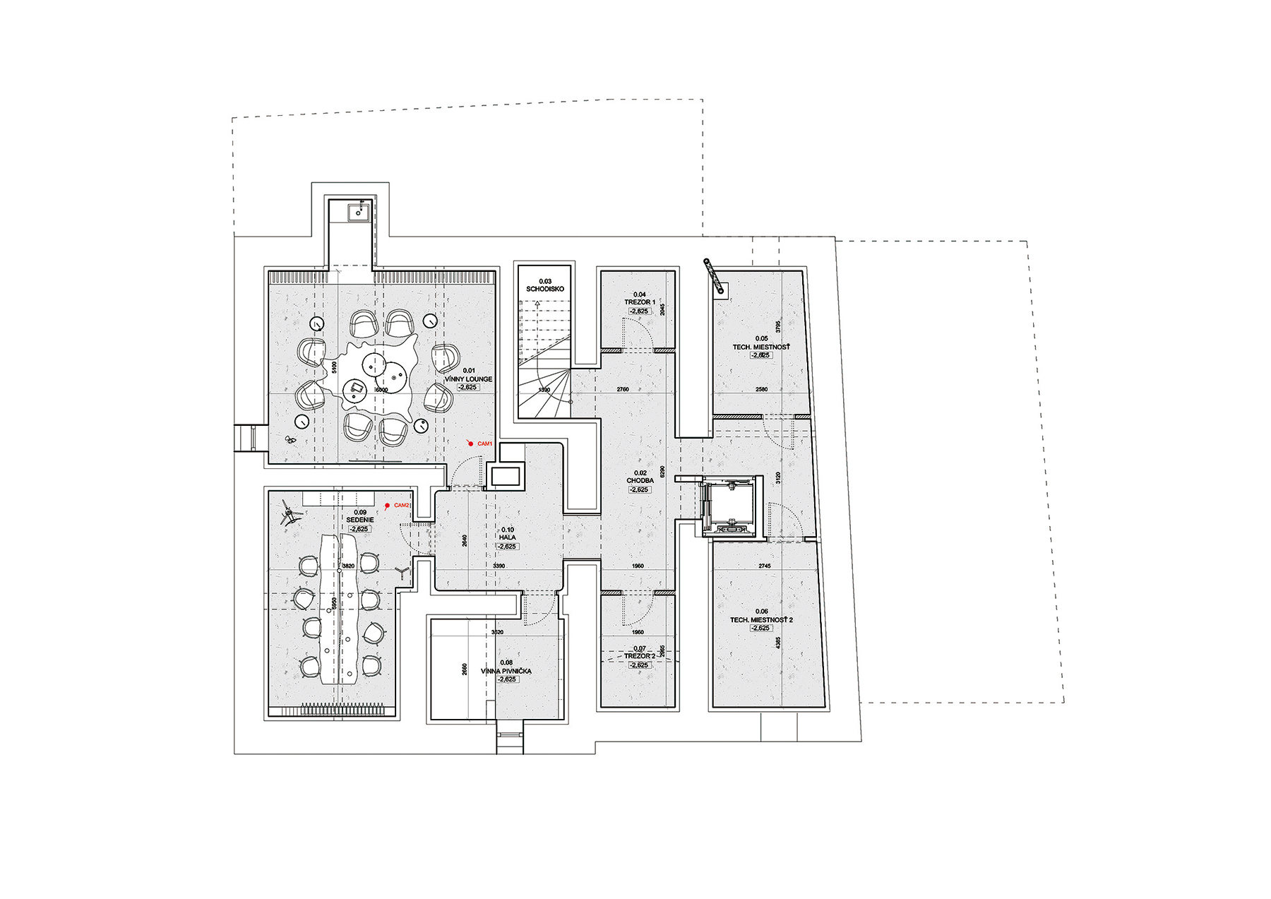
1pp
1pp
ASB Logo ASB Logo