Interiér pre dvojicu: Veľké využitie malého priestoru
Interiér, v ktorom sa snúbi kolobeh života mladého páru s dômyselne funkčným usporiadaním jednotlivých obytných zón bytu v rozmere typickom pre prvé vlastné bývanie. Takto by sme mohli opísať koncept príznačne nazvaný Constant Motion (neustále v pohybe).
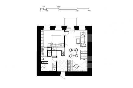
Hlavnou myšlienkou interiéru je určenie strediska priestoru, centra diania v byte. Alex Bykov – mladý a perspektívny ukrajinský dizajnér – za tento stred zvolil reálny stred štvorcového bytu. Podľa tradičného ponímania kuchyne ako srdca domácnosti postavil dizajnový koncept, ktorý začína a končí práve v kuchyni.
Na ploche 64 m² je prítomná kuchyňa, spálňa, obývačka, kúpeľňa, knižnica či šatník. V zmysle myšlienky konštantného pohybu zvolil architekt dizajn otvoreného priestoru, v ktorom môžete nerušene prejsť cez celý byt po kružnicovej trajektórii do východiskového bodu. Myšlienka sa zrodila z prirovnania priestoru k životu mladého páru – nespútaný, aktívny, kreatívny, stále v pohybe.
Fantasticky zladené prírodné materiály v kombinácii s teplými farbami spolu s orientáciou bytu a svetelnou priestupnosťou, ktorá je podporená presklenými časťami stien niektorých miestností, vytvárajú harmonickú atmosféru. V centre historickej štvrti Kyjeva sa zrodil projekt, ktorý dokázal spojiť novotvary s tradičnými prvkami a poskytnúť tak útočisko pre párik mladých ľudí, ktorí začínajú žiť na vlastných nohách.
Kuchyňa, obývacia izba a knižnica na vyvýšenom pódiu tvoria harmonický, prívetivo pôsobiaci priestor.
Dekoratívne svietidlá pochádzajú od ukrajinských návrhárov Anny Popovej a Vasylija Butenka, dopĺňajú ústredné stropné svietidlo značky Artemide.
Dizajnér ponechal v obývacej zóne originálny tehlový obklad zo začiatku 20. storočia, ktorý podčiarkuje autenticitu historického centra hlavného mesta.
Kuchyňa je jednoduchá a účelná, ostré hrany príjemne kontrastujú s oblými tvarmi jedálenského nábytku a mäkkosťou sedacej súpravy.
Knižnica na vyvýšenom pódiu bola hlavnou požiadavkou mladého kreatívneho páru.
Alex Bykov do priestoru vhodne zakomponoval drevený dekor a geometrické riešenie políc knižnice, ktoré je možné v budúcnosti podľa želania ľubovoľne prestavať.
Úložná kapacita knižničného kútika je maximalizovaná prostredníctvom modulárneho systému políc.
Teplé farby, prírodné materiály a funkčné vyhotoveinteriérových prvkov prinášajú páru atmosféru bezpečného útočiska.
Jednoducho riešená spálňa má okná smerované na juhovýchodnú stranu, preto ju každé ráno zalieva zlaté slnečné svetlo, ktoré sa ďalej šíri prostredníctvom zasklených vrchných častí stien.
Tmavá podlaha vhodne dopĺňa svetlý drevený nábytok. Šatník je diskrétne ukrytý za spálňou a slúži ako prechod do kúpeľne.
Umelé osvetlenie je nenápadné, prichádza v teple a pohodlí. Príjemnú atmosféru bytu nenarúšajú žiadne ostré svetlá či rušivé komplikované sústavy osvetlenia.
Kúpeľna spojená s toaletou je vo výrazne tmavom prevedení s drevodekorovými akcentmi a bielou sanitou. Prirodzené svetlo prúdi cez drevené lamely, ktoré zastupujú strop.
Tlmené osvetlenie podčiarkuje intímnu atmosféru kúpeľne.
O autorovi:
![]() |
Alex Bykov je mladý talent z radov súčasných ukrajinských architektov. Narodil sa v roku 1985 v meste Čerkasy na Ukrajine. V roku 2002 absolvoval Sumy Grammar School a Sumy Art College. Následne vyštudoval Kyjevskú univerzitu stavebníctva a architektúry. Od roku 2006 do roku 2012 pracoval v rôznych architektonických a dizajnérskych štúdiách v Kyjeve. V roku 2012 založil vlastné štúdio. V roku 2013 založil s kolegami Igorom Goma a Sashom Kozynets dzajnérske zoskupenie Manifest.
Autor: Anna Martausová
Foto: Alex Bykov
Zdroj: www.alexbykov.net
































