Späť na článok Interiér pre dvojicu: Veľké využitie malého priestoru
1 / 27
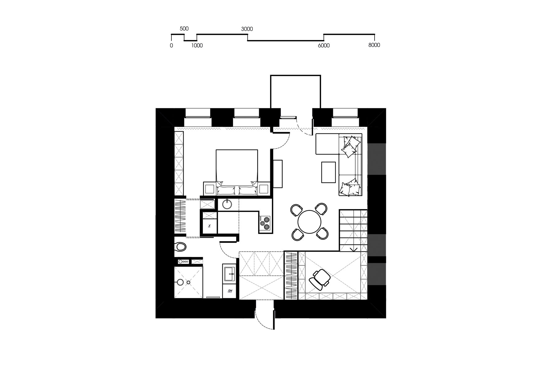
Plan
Plan
ASB Logo ASB Logo