Oprava a obnova areálu kúpaliska Zelená žaba
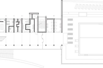
Architekt Bohuslav Fuchs projektoval kúpalisko v čase úplne odlišných rekreačných aj cestovateľských možností, v roku 1935. Umiestnenie areálu vo vzťahu k mestu vzhľadom na morfológiu terénu a mikroklímu na južnej strane údolia spolu s jeho funkčným rozvrstvením a dispozičným riešením svedčí o výnimočnom talente autora.
Tvarové a materiálové riešenie a tiež rôzne technické finesy ako vysúvateľné okenné systémy v hornej kaviarni či chodba okolo bazéna boli dôkazom pokrokovosti myšlienok funkcionalistickej architektúry.
Areál ukrytý v zalesnenom úbočí ponúka možnosti na celodennú rekreáciu.
Nevidíme minulosť
Na mieste je otázka, ako je možné, že náš zákon o ochrane pamiatok je natoľko bezzubý, že národná kultúrna pamiatka prestala v roku 2001 plniť svoju funkciu a postupne zo vzácnej stavby, ktorá je v encyklopédiách a učebniciach architektúry, ostalo len torzo, ktoré postupne menilo svojho majiteľa? Ako to, že pamiatkari ako ochrancovia historických architektonických hodnôt nemajú adekvátnu oporu vo finančných zdrojoch štátu, aby v rovnocennej spolupráci s investorom alebo majiteľom pamiatky dokázali zachrániť výnimočné hodnoty?
Peter Szalay zo Slovenskej akadémie vied, odborník na modernú historickú architektúru, ktorý v roku 2010 vypracoval Inventarizáciu hodnotných prvkov ako úvodný podklad projektu obnovy Zelenej žaby, uviedol: „Vo všeobecnosti mám pocit, že na Slovensku nemáme silný vzťah k histórii, ešte stále máme pocit, že históriu u nás písal niekto iný, Maďari, Nemci, Česi, komunisti, a to sa prejavuje aj vo vzťahu k starým veciam, a teda aj k historickej architektúre. Patina, opotrebovanosť časom, je u nás stále väčšinou chápaná len ako špina, niečo, čo znehodnocuje architektúru.
Nevidíme za ňou minulosť. Stále u nás prevláda pocit, že nové je hodnotnejšie. Všeobecne sa domnievam, že pochopenie pre reštaurovanie – obnovu modernej architektúry – je nižšie preto, lebo je formálne blízka súčasnej architektúre, je bez tradičnej sochárskej a maliarskej výzdoby, a tak sa zdá byť ľahšie nahraditeľná.“
Podľa jeho názoru v prípade Zelenej žaby do veľkej miery nešlo o obnovu, ale o rekonštrukciu, teda o prestavbu s použitím nových materiálov a technológií napodobujúcich tie pôvodné. „Antikorový bazén považujem za najzásadnejšiu negatívnu zmenu Zelenej žaby, napriek úsiliu architekta čo najviac zredukovať cudzosť tohto prvku vo figúre stavby. Je pre mňa ukážkou opatrnosti investora, ktorý radšej vsadil na overený aquaparkový marketing než na možnosť využitia jedinečných kvalít historického kúpaliska svetového významu,“ skonštatoval a doplnil: „Podarilo sa zachovať určité fragmenty tých najzaujímavejších architektonických prvkov a detailov, väčšinou už len ako muzeálne exponáty, čo je škoda, ale dlhé ponechanie objektu bez údržby sa stalo pre ,krehkú‘ modernistickú architektúru osudné.“
Subtílne a ladne tvarované konštrukcie opäť plnia svoju funkciu.
Zarobiť na prevádzku
Zrekonštruovaný a do istej miery aj pamiatkovo obnovený areál kúpaliska má za sebou prvú letnú sezónu. Už teraz je zrejmé, že o návratnosti celkovej investície vo výške 10 miliónov eur vrátane 1,4 milióna eur z eurofondov nemôže byť ani reči. Ako nám pri obhliadke prezradil architekt Radovan Valenta: „Zámerom investora je, aby sa zo vstupného na kúpalisko či z poskytovania reštauračných služieb pokryli náklady na prevádzku.“ Pragmatický uhol pohľadu núti investora, ktorý sa vzhľadom na vynaložené prostriedky už aj tak vníma ako filantrop, zvažovať reálne možnosti, ktoré dnes areál počas krátkej a nevyspytateľnej letnej sezóny dokáže zákazníkom ponúknuť. Ako diplomaticky vysvetlil architekt: „Pamiatkari požadovali veľa, investor tiež. Napokon sme robili kompromisy. Skorodované zábradlie nám takmer ostalo v ruke, podarilo sa nám zachrániť približne desať metrov, ostatné je replika. Keďže reštaurácia na hornom podlaží je v celoročnej prevádzke, drevené posuvné systémy sme museli nahradiť novou drevenou zasklenou stenou a pôvodné prvky sme zrepasovali a ponechali v interiéri označené ako originálne prvky.“
Nový vychádzkový chodník ponúka neopozerané pohľady na areál kúpaliska.
Investorsky pochopiteľný zámer prevádzkovať areál celoročne si z pohľadu pamiatkarov vynútil ďalšie nové zásahy do objektu. „Terasu pod reštauráciou sme museli zatepliť, išlo však len o malé hrúbky izolácie, aby sme zachovali subtílnosť horizontálnych konštrukcií. Na mnohých miestach sme použili vákuové panely, ktoré majú hrúbku len 2 cm. Takéto riešenia stáli niekoľkonásobne viac, ako keby sme stavali nanovo,“ doplnil architekt.
„Napríklad renovácia pôvodných interiérových dverí bola trikrát drahšia ako cena nových.“ Rekonštrukcia zachovala konštrukciu aj objemové a farebné riešenie hlavnej budovy, ostali aj typické šatne, ktoré návštevníci cez leto intenzívne využívali. Vedľa detského bazéna pribudol perličkový kúpeľ, o úroveň nižšie je v tieni stromov detské a športové ihrisko. Atrakciou je exteriérová kolkáreň, ktorá na kúpalisku fungovala aj kedysi, a novotvarom je originálny saunový svet situovaný bokom od hlavnej budovy v tieni stromov, takže časom sa doslova stratí v novovysadenej zeleni.
Saunový svet je pridanou funkciou aj novotvarom.
Plus pre turizmus
Napokon, tretí uhol pohľadu je ten laický. Verejnosť určite teší, že kúpalisko už nie je schátranou ruinou, ktorá napriek svojej nespornej architektonickej aj historickej hodnote nerobila malému kúpeľnému mestečku dobré meno a nijak nepomáhala pozdvihnúť jeho atraktivitu v časoch, keď kúpeľom rastie konkurencia s každým novým luxusným wellness hotelom či moderne vybaveným aquaparkom.
Nezodpovedané však ostávajú ďalšie otázky: Kde sa začína a končí naše kultúrno-historické povedomie? Prečo je nakladanie s kultúrnym dedičstvom krajiny ponechané na súkromných investorov? A prečo sa im potom vyčíta, že prejavili málo vôle a neminuli viac peňazí? Každý bez ohľadu na to, na ktorej strane stojí, a kto si pamätá zdevastovaný areál Zelenej žaby spred niekoľkých rokov, musí uznať, že rekonštrukcia kúpaliska, hoci ako kompromis, je určite zmenou k lepšiemu a môže slúžiť ako príklad, čo sa dá (ne)robiť s modernou na Slovensku.
Architekti sa snažili farebné riešenie areálu čo najviac priblížiť pôvodnému stavu.
Zelená žaba
Miesto: Trenčianske Teplice
Investor: Kúpele zelená žaba, s. r. o.
Architekt: CUBE DESIGN, Ing. arch. Branislav Bolčo, Ing. arch. Karol Kállay, Ing. Radovan Valenta
Projektant: MIKO – projekčná kancelária, s. r. o.
Projektant, sadové úpravy: Ing. Ján Makovička – FLORSTYL, s. r. o.
Vyzvaná súťaž: 2008
Rekonštrukcia: november 2014 – júl 2015
Výška investície: 10 mil. eur
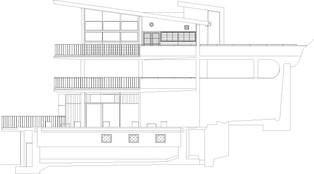
Priečny rez
Trenčianske Teplice Text: Mária Nováková,
Foto: Dano Veselský, Dokumentácia: Cube design
Článok bol uverejnený v časopise ASB.


















