Späť na článok
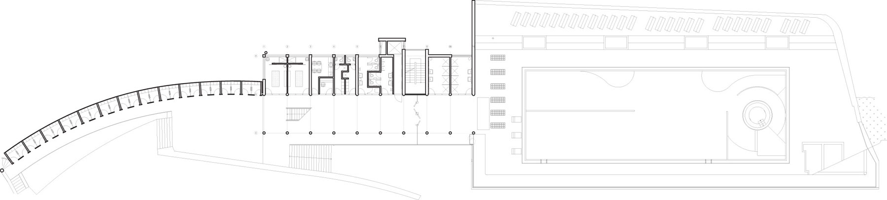
Oprava a obnova areálu kúpaliska Zelená žaba
8 / 14
podorys 1NP