Späť na článok
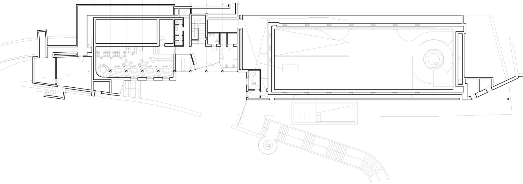
Oprava a obnova areálu kúpaliska Zelená žaba
9 / 14
podorys 1PP