Štartovacie byty v Petržalke
Úspešný projekt je ten, ktorý sa trafí do cieľovej skupiny a investor citlivo zváži, kde treba ubrať a kde možno pridať, aby to klient ocenil. Solar s viac ako polovicou predaných bytov je dobrým príkladom.
Štartovacie byty sú realitný fenomén posledných dvoch rokov, zvlášť v Bratislave. Dopyt po nich spôsobil taký menší boom, samozrejme, k tomu spred ôsmich rokov má ďaleko, realitnému trhu a rezidenčnej výstavbe však priniesol príjemné oživenie. Zdá sa, že (takmer) všetko, čo má charakter štartovacích bytov, sa rýchlo rozpredá. V projektoch sú takto označené dvojizbové byty, čomu zodpovedá obývací priestor spojený s mierne oddeleným kuchynským kútom a jedna spálňa. Jednotlivé projekty sa snažia od tých ostatných odlíšiť viac či menej finančne náročne stvárnenou fasádou, neštandardnými dispozíciami, alebo úpravou okolia. Byty s väčšou alebo menšou rozlohou sa do takýchto projektov dostávajú buď ako súčasť strategického mixu, alebo ako výsledok dispozičného riešenia podlaží v nárožiach.
Menej architektúry, viac úžitkovej plochy
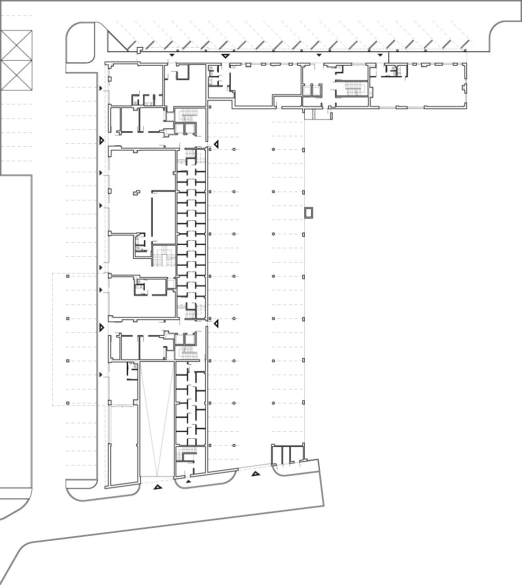
Polyfunkčný komplex Solar bez okolkov ide vlastnou cestou a vyzerá to tak, že úspešne. Najprv niečo o lokalite: neďaleká Panónska cesta je strategická komunikácia, ktorá projekt dobre predáva, odtiaľ je to totiž kúsok na diaľnicu, kúsok do mesta a v podstate kúsok aj za rekreáciou. Petržalka je navyše dobre vybavená základnými školami a bežné nákupy vybavíte zo Solaru aj peši. Výhľad z nižších podlaží je taký petržalský sídliskový, z juhozápadne orientovaných bytov sa dá dovidieť na polia a dediny v Rakúsku. Čo ubral investor na architektúre objektu, to pridal na rozlohe bytov. Ale po poriadku. Solar v petržalskej zástavbe príliš nevyniká, ale ani neurazí. Objem celej stavby je horizontálne rozčlenený do ľahko čitateľných celkov. Mierne zasunutý parter sa delí na otvorenú garáž a na obchodné prevádzky. Kryté parkovacie miesta obyvateľov vždy potešia, otázna je, samozrejme, cenová dostupnosť takéhoto parkovania. Druhé nadzemné podlažie je vyhradené pre administratívne priestory. Zatiaľ sú v stave nedeleného holo priestoru.
Azda najviac polemík vyvoláva fasádny obklad, ktorý architekt použil na odlíšenie funkcie. Je pravda, že starším pripomína montované umakartové steny, na druhej strane projekt je zameraný na mladšie ročníky, ktoré môžu mať úplne iné konotácie. Napokon, práve obklad sa stal pre Solar vizuálne charakteristický a v petržalskej rôznorodosti ľahko identifikovateľný. V neposlednom rade sa po opotrebovaní môže obklad vymeniť za nový, už podľa rozhodnutia samotných majiteľov priestorov. Na vyšších podlažiach sú byty, zo 145 je viac ako stovka práve jednoizbových a dvojizbových. Architekt sa pohral s kompozíciou mohutného objemu stavby s jedenástimi podlažiami a rozčlenil ho do jednoduchých, navzájom posunutých a farebne odlíšených kubusov. Kombinácia tmavosivej a bielej omietky je vkusným a, samozrejme, aj cenovo dostupným riešením fasády.
Hneď sa dá sťahovať
Pohyb v obytnej časti komplexu sa môže zdať pri prvej kompletnej obhliadke zložitý, faktom však je, že aj z podzemnej garáže aj z hlavných vstupov sa ľahko dostanete do vertikálnych komunikačných jadier. Vo vyššom objekte 01 sú dokonca dve jadrá – na každom konci spoločnej chodby jedno. Nižší objekt 02 má dispozíciu pavlačového domu, spoločné chodbové priestory sú príjemne priestranné a veľmi dobre osvetlené. Byty sa klientom predávajú s dokončenými podlahami, s interiérovými dverami a zariadenými kúpeľňami, čiže po montáži kuchynskej linky sa dá rovno nasťahovať. Ďalším bonusom, ktorý zároveň vysvetľuje, prečo je väčšina bytov už predaných, je rozloha a dispozície bytov. Myslelo sa na priestranné šatníky v predsieni, na potravinové skrine a priestor na chladničku v kuchyni, či umiestnenie práčky v kúpeľni.
Ani ostatné miestnosti nepôsobia stiesnene a pomerne veľké balkóny, a v niektorých bytoch dokonca lodžie, sú ďalším plusom pre cieľovú skupinu klientov. Medzi bytmi sú murované priečky hrúbky 25 cm, interiérové sú hrubé 10 alebo 15 cm, tiež murované. Zaujímavá je aj cena bytov. Pri dvojizbových bytoch, s rozlohou vyše 50 m2 s balkónom alebo lodžiou s veľkosťou 3 m2 a pivničnou kobkou od necelých 3 až po 4,5 m2, začína cena na 105 tisíc eur vrátane DPH a stúpa s každým podlažím, pričom končí na 130 tisíc eur pri bytoch s rozlohou 63,8 m2. Polyfunkčný komplex Solar je typickou ukážkou, ako sa presne trafiť do potrieb svojich zákazníkov. Budúceho správcu síce ešte čaká úprava zelene v priľahlej dvorovej časti a na dvoch zelených strechách, ale Solar už teraz ponúka to, čo mladí ľudia potrebujú: bývanie rýchlo a vo svojom.
text: Mária Nováková
foto: Dano Veselský
dokumentácia: Prvá Penzijná

















