Späť na článok Štartovacie byty v Petržalke
7 / 15
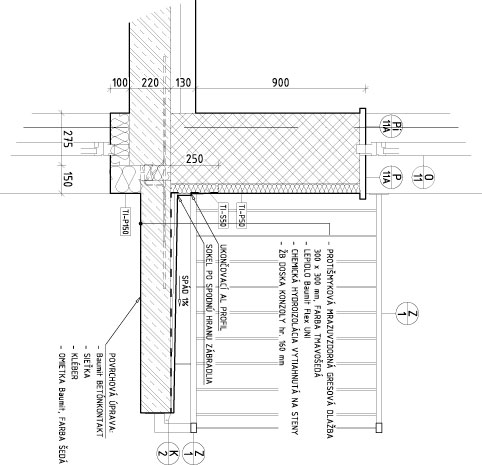
07 detail