Zosilňovanie betónových konštrukcií vonkajším predpätím
Zosilňovanie vonkajším predpätím je elegantná, účinná, trvanlivá a cenovo výhodná metóda na zosilňovanie rôznych betónových konštrukcií. Zvlášť výhodná je na zosilňovanie konštrukcií s valcovitým tvarom, ako sú nádrže, silá, komíny a chladiace veže. Analýza príčin porúch a zosilnenie sa realizovali na príklade komína a vyhnívacej nádrže.
Spoločným znakom valcovitých konštrukcií, ako sú nádrže, silá, komíny a chladiace veže, je veľký pomer medzi plochou vystavenou obklopujúcemu prostrediu a prierezovými rozmermi. Vzhľadom na charakter a využívanie týchto konštrukcií je ich spoľahlivosť, teda bezpečnosť, používateľnosť a trvanlivosť, najviac ohrozená objemovými zmenami od teplotných účinkov, koróziou betónu a výstuže. V prípade nádrží sa často vyskytuje poddimenzovanie stien. Uvedené účinky sú príčinou vzniku a rozvoja zvislých trhlín, ktoré môžu spôsobiť čiastočnú alebo úplnú stratu schopnosti prvku alebo konštrukcie plniť požadované funkcie.Zosilňovanie 150 m komína
Komíny, podobne ako chladiace veže, patria ku konštrukciám, ktoré sú zaťažené predovšetkým vlastnou tiažou, vetrom, seizmicitou a účinkami objemových zmien. Na rozdiel od chladiacich veží je v betónovom drieku komína väčší teplotný spád, vyvolaný vysokou teplotou odvádzaných spalín (do 300 °C). Aj keď je betónový driek z vnútornej strany chránený ochranným puzdrom, možno na komínoch pozorovať vznik a rozvoj trhlín od teplotného spádu. Vyznačujú sa nasledovnými spoločnými znakmi: zvislý priebeh, malé množstvo, veľké dĺžky.
Príčinou vzniku týchto trhlín je vodorovne pôsobiace ohybovo-ťahové namáhanie betónového drieku komína od rozdielu teplôt na vonkajšom a vnútornom povrchu. V zimnom období, keď spád teplôt pri prevádzke komína možno zapísať v tvare Ti » Te (obr. 1, REZ A – A), vznikajú zvislé trhliny na vonkajšom povrchu. Ak je komín mimo prevádzky, dochádza za slnečného počasia k obrátenému spádu teplôt (Ti < Te), ktorý vyvoláva ťahové napätia na vnútornej strane drieku. Ten nie je často vôbec vystužený, v dôsledku čoho sa v ňom vytvorí menšie množstvo širokých trhlín (obr. 1, REZ B – B). Vzniku týchto trhlín sa dá ťažko zabrániť. Ak ich šírka a napätie vo výstuži neprekročia určité limitné hodnoty, väčšinou nie je ohrozená bezpečnosť a používateľnosť komína. V každom prípade majú nepriaznivý vplyv na trvanlivosť. Železobetónový driek komína je vystavený stupňom vplyvu prostredia XC4 (striedavé suché a mokré prostredie), XF3 (značne nasýtené vodou bez rozmrazovacích cyklov), XA1 (slabo agresívne chemické prostredie) [1]. Pre prostredie XC4 sa v EN 1992-1-1 [2] odporúča maximálna šírka trhlín 0,3 mm. V ČSN 73 4111 [3] sa v dôsledku teplotných účinkov pripúšťa najväčšia šírka trhlín 0,2 mm.
Obr. 1 Vznik zvislých trhlín v drieku komína od teplotného spádu
Šírku zvislých trhlín a veľkosť napätia výstuže v trhline možno kontrolovať druhom, množstvom, priemerom a tvarom povrchu vodorovnej prstencovej výstuže. Navyše sú ovplyvnené aj pevnosťou betónu, hrúbkou steny a krycej vrstvy. V tab. 1 je uvedený prehľad o vývoji požiadaviek na minimálny stupeň vystuženia komínov vodorovnou prstencovou výstužou v zahraničných normových predpisoch.
Tab. 1 Minimálny stupeň vystuženia betónového komína vodorovnou výstužou [4]
Hodnoty v tabuľke dokumentujú narastajúci význam prstencovej výstuže so stupňom poznania účinkov objemových zmien a sú reakciou na široké zvislé trhliny v starších komínoch:
- DIN 1056 zvýšením minimálnej plochy výstuže z 0,15 na 0,4 %,
- ACI 307 rozdelením výstuže k obom povrchom a ohraničením maximálneho napätia zvislej a vodorovnej výstuže.
Vzhľadom na nedostatočné vystuženie drieku komínov vodorovnou výstužou pri vonkajšom povrchu a častú absenciu výstuže pri vnútornom povrchu vznikajú široké zvislé trhliny. Ak je napätie vo vodorovnej výstuži väčšie ako medza klzu použitej ocele, dochádza k plastickému pretváraniu výstuže v trhline a zväčšovaniu šírky trhlín. Ak sa uváži zároveň prebiehajúca korózia výstuže v trhline, je veľmi pravdepodobné, že v priebehu niekoľkých rokov sa narastajúcou šírkou trhlín prstencový prierez drieku komína rozdelí na niekoľko viac-menej samostatne pôsobiacich segmentov. Trhlinami cez celú hrúbku drieku má prierez podstatne nepriaznivejšie rozdelenie zvislých napätí a narastá aj priehyb komína od účinkov vodorovného zaťaženia.
Betónový komín s výškou 150 m je v prevádzke od roku 1963. Železobetónový driek má v dolnej časti priemer 10,95 m a hrúbku 585 mm, na hornom okraji priemer 6,84 m a hrúbku 180 mm. Skutočný stupeň vystuženia drieku vodorovnou prstencovou výstužou pri vonkajšom povrchu, zistený profometrom Proceq SA, sa pohyboval po výške komína v rozpätí od 0,1 do 0,21 %. Vnútorný povrch je podľa projektovej dokumentácie bez výstuže. Teplota komínom odvádzaných neodsírených plynov bola 175 ±15 °C.
V roku 1994 sa na drieku zaznamenali zvislé trhliny, ktoré dosahovali dĺžku niekoľkých metrov až desiatok metrov a šírku 0,2 až 1,8 mm. Pri dlhodobom sledovaní dynamiky šírky trhlín sa zistilo, že ich šírka sa postupne zväčšuje. Ako ukázal výpočet, tento stav je následok plastického pretvárania výstuže v mieste trhlín v dôsledku poddimenzovania vodorovnej výstuže drieku komína, ktorá je namáhaná za medzou klzu. Počas prehliadky v roku 2001 sa na drieku zaznamenali zvislé trhliny so šírkou 0,3 až 3,0 mm (obr. 2). Na základe týchto skutočností sa odporučilo driek komína zosilniť tak, aby sa stabilizovala šírka jestvujúcich trhlín a zabránilo sa tvorbe nových trhlín.
Obr. 2 Priebeh a šírka trhlín na rozvinutom povrchu drieku komína, porovnanie skutočnej, projektovanej a potrebnej plochy vodorovnej výstuže
Kritériom návrhu výstuže potrebnej na zosilnenie komína bolo dosiahnutie takého stavu napätia, pri ktorom šírka trhliny od teplotného zaťaženia neprekročí šírku 0,3 mm a napätie v betonárskej výstuži charakteristickú medzu klzu fyk = 400 MPa.
Návrh zosilnenia sa vyhotovil vo dvoch alternatívach:
- zosilnenie uhlíkovými lamelami s rozmermi 60 × 1,4 mm s modulom pružnosti El = 210 GPa v dolnej časti komína, respektíve s rozmermi 50 × 1,2 mm s modulom pružnosti El = 165 GPa v hornej časti komína, s osovou vzdialenosťou 400 mm.
- zosilnenie vonkajším predpätím lanami Monostrand ØLs15,5 mm/1 600 MPa, s osovou vzdialenosťou 300 až 400 mm.
Po posúdení obidvoch alternatív [5] sa ako jednoznačne vhodná alternatíva ukázalo zosilnenie drieku komína vonkajšími predpínacími lanami. Tento variant zosilnenia je optimálny z hľadiska aktivácie pridanej výstuže aj zovretia kruhového prierezu drieku komína. Vo valcovitej konštrukcii vyvolávajú rovnomerne rozdelené vodorovné predpínacie laná priaznivý stav namáhania – po celom priereze pôsobí iba tlakové napätie. Celkovo sa po výške drieku komína +17,5 do +132,5 m rozmiestnilo 310 kusov lán. Na montáž a predpínanie lán sa použilo prekladacie konzolové lešenie. Laná sa predpínali jednostranne, vo dvoch etapách. V prvej etape sa laná vyrovnali pri sile 71 kN a následne dopli na konečnú silu 180 kN. Laná sa striedavo kotvili do zvislých kotevných rebier, umiestnených na dvoch protiľahlých stranách drieku. Kotevné rebrá z oceľových valcovaných profilov v tvare U sú v mieste kotvenia zosilnené privarenými výstuhami.
Zosilňovanie vyhnívacích nádrží
V ostatných rokoch sa zaznamenal neúmerne veľký počet porúch nádrží, ktoré spôsobujú problémy pri prevádzke a nie sú vyhovujúce z hľadiska trvanlivosti. Z vnútornej strany sú steny zaťažené hydrostatickým tlakom náplne, ktorý v závislosti od okrajových podmienok uloženia steny vyvoláva ťahové, respektíve ťahové a ohybové namáhanie stien. Z účinkov objemových zmien sa uplatňujú najmä zmrašťovanie, zmena a spád teploty. Z dôvodov životnosti konštrukcie, respektíve ochrany životného prostredia alebo obsahu nádrže, sa nepripúšťa alebo limituje únik látok z nádrže a do nej. Priesaky sa prejavujú na povrchu ohraničujúcich konštrukcií:
- vlhkým alebo lesklým povrchom,
- rosením vody,
- únikom vody v kvapkách,
- sústredeným únikom.
Z hľadiska veľkosti plochy priesakov sa rozlišujú plošné priesaky alebo miestne výrony, najčastejšie líniové. Príčinou plošných priesakov je priepustnosť betónu. Lokálne výrony vznikajú v miestach:
- širokých trhlín,
- pracovných a dilatačných škár,
- lokálnych porúch betónu (napríklad štrkové hniezda),
- potrubných priestupov.
Vodonepriepustnosť betónu ohrozujú predovšetkým trhliny prechádzajúce cez celý prierez (deliace trhliny). Kým podľa ČSN 73 1209 [6] boli v prípade vodonepriepustných betónových konštrukcií prípustné iba čiastočné trhliny, tak podľa EN 1992-3 [7] sa v prípade nádrží pripúšťajú aj deliace trhliny. Je to dôsledok overeného samoutesňovania trhlín, ak sú na to vytvorené priaznivé podmienky. Prípustné šírky deliacich trhlín sú uvedené v tab. 2.
Tab. 2 Limitné šírky trhlín vodonepriepustných konštrukcií [8]
Z hľadiska dynamiky šírky trhlín sa rozlišujú aktívne trhliny, ktoré menia svoju šírku (pod vplyvom zaťaženia, zmeny teploty a pod.) a pasívne trhliny, ktoré majú konštantnú šírku. Samoutesnenie trhlín je reálne iba v prípade pasívnych trhlín. Keďže sa hladina kvapaliny (kalu) v nádržiach neustále mení, je zrejmé, že zvislé trhliny v stenách nádrží majú charakter aktívnych trhlín a samoutesnenie ich vodonepriepustnosť nezabezpečí.
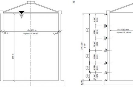
V nedávnej minulosti sa zosilnili steny viacerých vyhnívacích nádrží ČOV na Slovensku aj v Čechách. Pri skúške vodonepriepustnosti vyhnívacích nádrží s objemom 5 200 m3 v Bratislave-Petržalke vznikli pod tlakom vody v stene nádrže zvislé trhliny [9]. Líniové priesaky v trhlinách a pracovných škárach spôsobili, že nádrže nevyhovovali medznému stavu používateľnosti. Pri overovaní sa ukázalo, že navrhnutá železobetónová stena s hrúbkou 800 mm je schopná bez vzniku trhlín preniesť tlak vody zodpovedajúci výške vody približne 8 m. Hrúbka steny bola na výšku 21,6 m poddimenzovaná (obr. 3a). Ako optimálne riešenie na zosilnenie steny nádrže sa ukázalo dodatočné predpätie nádrže prstencovými predpínacími lanami, ktoré vniesli tlakové napätie potrebné na uzavretie zvislých trhlín a zabezpečili dostatočnú tlakovú rezervu na zmeny zaťaženia. Na tento účel sa použili laná ØLp 15,5 – 1 800 MPa bez súdržnosti (Monostrand). Rozmiestnenie lán po výške steny je znázornené na obr. 3b.
Obr. 3 Vyhnívacia nádrž
a) schéma vyhnívacej nádrže, b) rozmiestnenie predpínacích lán po výške steny
Na zosilňovanie a utesnenie vyhnívacích nádrží sa na Slovensku použili iba predpínacie laná, kým v Čechách sa použila kombinácia predpínacích lán a CFRP lamiel. Bolo by zaujímavé porovnanie účinnosti a nákladov oboch alternatív zosilnenia.
Z uvedeného je zrejmé, že železobetónové nádrže navrhnuté na medzný stav vzniku trhlín sú použiteľné, iba ak ide o nízke nádrže. V prípade nádrží s väčším objemom treba použiť predpätý betón a tomu prispôsobiť aj tvar nádrže. Namiesto klasického valcovitého tvaru je vhodné vytvoriť škrupinu s krivosťou vo zvislom aj vodorovnom smere, čomu vyhovuje napríklad vajcový tvar s predpätím v oboch smeroch.
Záver
Účinky zaťaženia, ale aj objemových zmien, najmä zmeny teploty alebo veľký teplotný spád v betónových konštrukciách často spôsobujú vznik aktívnych trhlín. Nedostatočné vystuženie vedie k plastickému pretváraniu výstuže v trhline a nadmerným šírkam trhlín. Vonkajšie predpätie je účinný spôsob na dodatočné zosilňovanie betónových konštrukcií, respektíve v kombinácií s inou metódou vhodný spôsob na utesnenie deliacich trhlín. Zvlášť výhodné je jeho použitie v betónových konštrukciách s valcovitým tvarom, kde vyvolávajú iba tlakové napätie. Výhodou použitia lán Monostrand je nielen spoľahlivá protikorózna ochrana oceľových lán, ale aj výrazné zmenšenie strát pri trení (µ = 0,05) v porovnaní s klasickým injektovaným káblom (µ = 0,2 až 0,35). Týmto spôsobom sa podarilo uzavrieť zvislé trhliny v stenách vyhnívacích nádrží a zabezpečiť ich vodonepriepustnosť a plynotesnosť. Pozitívne skúsenosti s nádržami povzbudili autorov k použitiu predpínacích lán na zosilnenie komína. Podľa dostupných informácií išlo o prvú aplikáciu rovnomerne rozmiestnených predpínacích lán na komíne.
TEXT: prof. Ing. Juraj Bilčík, PhD., doc. Ing. Milan Chandoga, PhD.
OBRÁZKY: autori
Prof. Ing. Juraj Bilčík, PhD., je vedúcim Katedry betónových konštrukcií a mostov Stavebnej fakulty STU v Bratislave.
Doc. Ing. Milan Chandoga, PhD., konateľ Projstar, s. r. o.
Literatúra
1. STN EN 206-1: 2010: Betón. Časť 1: Špecifikácia, vlastnosti, výroba a zhoda.
2. STN EN 1992-1-1: 2006: Navrhovanie betónových konštrukcií. Časť 1-1: Všeobecné pravidlá a pravidlá pre budovy.
3. ČSN 73 4111: 1961: Vysoké komíny železobetonové.
4. Noakowski, P. – Schäfer, H. G.: Rissbildung in Turmschäften. VGB Kraftwerkstechnik, 1992, Heft 9, s. 823 – 831
5. Bilčík, J. – Halvoník, J. – Ďuriš, D.: Posúdenie stavu a podklady pre opravu vonkajšieho drieku 150 m komína ENO, 2001, 52 s.
6. ČSN 73 1209: 1985: Vodostavebný betón.
7. STN EN 1992-3: 2009: Navrhovanie betónových konštrukcií. Časť 3: Nádrže na kvapaliny a zásobníky.
8. Meichsner H.:Über die Selbsdichtung von Trennrissen in Beton, Beton und Stahlbetonbau, 1992, Nr. 4, s. 95 – 99.
9. Chandoga a kol.: Sanácia železobetónových nádrží ČOV Petržalka. Inžinierske stavby 8-9/1999, s. 285 – 289.
Článok bol uverejnený v časopise Stavebné materiály.












