Šplhacie debnenie
Šplhacie debnenie sa používa pri monolitických konštrukciách, kde sa pri viacerých betonážnych úsekoch transportuje zostava debnenia vertikálne, napr. pri výstavbe výškových budov s väčším počtom výškových záberov, pri výstavbe mostných pilierov, síl alebo rozhlasových a televíznych veží. Systém debnenia je založený na posúvaní šplhacej jednotky po betónovacích záberoch, ktorých výška závisí od typu šplhacieho debnenia.

Posunutím debnenia možno vytvoriť priestor na prácu s výstužou, samotným debnením alebo na jeho údržbu. Proti účinkom vetra na debnenie je fixácia po celom rozsahu posunu na pojazdnej jednotke a šplhacej konzole zabezpečená upínacími klinmi.
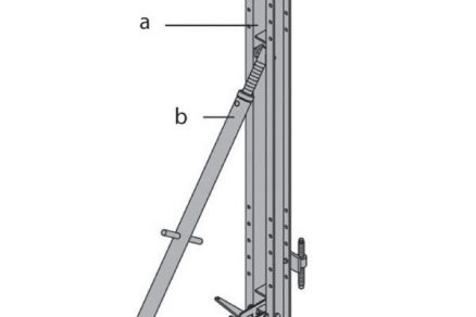
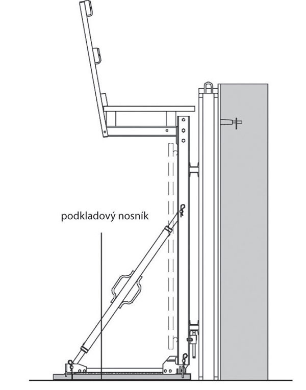
Šplhacia konzola zabezpečuje pomocou vodorovného profilu so zábradlím ukotvenie celého systému do stien. Podľa tvaru steny, na ktorú je ukotvená, môže mať rôzne varianty vyhotovenia. Pridaním systémových prvkov ju možno ukotviť do stien s konštantným, ale i premenlivým sklonom. Šplhacie konzoly sa dajú použiť aj ako ťažké montážne plošiny.
Na pracovné konzoly sa montujú pracovné plošiny (betónovacie, závesné a medziplošiny). Betónovacie plošiny a medziplošiny na dodatočné práce môžu byť typovo rovnaké. Umiestňujú sa po obvode betónovacích záberov a zabezpečujú ochranu a bezpečnosť vo všetkých stavebných fázach. Prenášajú úžitkové zaťaženie a odolávajú aj nepriaznivým účinkom vetra.
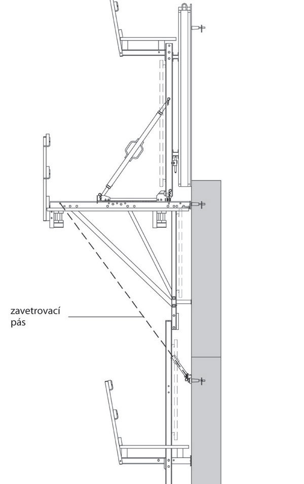
Kotviace prvky zabezpečujú upnutie šplhacieho debnenia k objektu. Šplhacia konzola sa upína závesným spôsobom. Každé závesné miesto je tvorené zabudovanou predstižnou kotvou a závesným kónusom – tieto závesné miesta sa zabudujú pri betonáži zadebňovanej steny, takže ho netreba vytvárať vŕtaním. Na zaistenie stability proti účinkom vetra sa šplhacia jednotka vyväzuje zavetrovacím pásom na predošlé závesné miesto. Systém šplhacieho debnenia je nastavený tak, aby vzájomné vzdialenosti všetkých bodov kotvenia boli rovnaké. Premena zabudovanej predstižnej kotvy na závesnú sa udeje výmenou kónusov – predstižného za závesný, a to bežným račňovým kľúčom na lešenia. 
 
Použitie šplhacieho debnenia
Pri prvom betónovacom zábere sa použijú štandardné prvky debnenia – debniace panely. Tie sa pomocou pojazdnej jednotky prisunú k betónovanej stene a ukotvia v predstižnom mieste. Na tento účel sa pojazdná jednotka nasadí na vodorovný profil, ktorý je uložený na zemi.
Pri druhom výškovom zábere sa zo šplhacích konzol a podláh plošín zmontuje šplhacia jednotka, ktorá sa zavesí v závesnom kónuse. Závesný kónus nahradí predstižný kónus z predchádzajúceho betonárskeho záberu. Potom sa pojazdná jednotka spolu s debnením uloží na predmontovanú jednotku a zafixuje sa.
Pri treťom betónovacom zábere sa šplhacia zostava po zavesení na kónus doplní o závesnú plošinu. Na zaistenie stability proti účinkom vetra sa vyviaže zavetrovací pás na šplhaciu konzolu a upne v predchádzajúcom závesnom bode.
 ![]()  | 
![]()  | 
 ![]()  | 
|  Prvý betónovací záber  | 
Druhý betónovací záber |  Tretí betónovací záber  | 
Oddebňovanie a zadebňovanie
Len čo sa ukončia betónovacie práce pri danom zábere a stena dosiahne požadovanú pevnosť, možno začať s oddebňovaním. Najprv sa uvoľnia a vytiahnu kotvy z debnenia a odstráni sa upevnenie na výstupnom mieste. Pojazdná jednotka s debnením sa odsunie od vybetónovanej steny a zafixuje sa klinmi. Potom sa pripraví ďalšie závesné miesto – zamení sa predstižný kónus kónusom závesným, uvoľnia sa zavetrovacie pásy a odstránia sa kotvy z predchádzajúcej plošiny.
Pojazdná jednotka sa predbežne zafixuje v ťažiskách, uvoľnia sa konzoly a na pojazdné paždíky sa zavesia žeriavové laná. Potom sa celá debniaca jednotka žeriavom zdvihne a zavesí na vopred pripravené závesné miesto.
![]()  | 
![]()  | 
![]()  | 
| Uvoľnenie upínacích klinov pojazdnej jednotky | Odsunutie pojazdnej jednotky s debnením a výmena predstižného kónusu za závesný kónus | Transport kompletnej debniacej jednotky | 
Pri ďalšom zábere sa do predchádzajúceho závesného miesta opäť namontujú zavetrovacie pásy a začne sa s armovacími prácami. Medzitým sa debnenie očistí a natrie separačným prípravkom. Po vyarmovaní steny sa debniaci panel prisunie, zafixuje a dotlačí na predchádzajúce betónovacie úseky pomocou klinov pojazdnej jednotky. Po nastavení debnenia, pospájaní panelov a prekotvení debnenia sa môže betónovať. Tento postup zadebňovania a oddebňovania so šplhacím debnením sa opakuje po celej výške stavby.
Záver
Pri návrhu šplhacieho debnenia je dôležitá koordinácia práce viacerých článkov: dodávateľa stavby, statika a dodávateľa debnenia. Kvalita výsledku betónového povrchu a rýchlosť betonáže spočívajú v dôkladnej príprave a vzájomných konzultáciách.
Text: spracované z podkladov spoločnosti Doka
Obrázky: Doka
													
								                            













						


