Betonáž polyfunkčnej budovy obytnej zóny Tri vody Malinovo
Zhotovenie zvislých a vodorovných železobetónových konštrukcií polyfunkčného objektu obytnej zóny Tri vody Malinovo si vyžiadalo použitie špeciálnych a na mieru vyrobených debniacich prvkov.
Polyfunkčný objekt sa nachádza v strede novej obytnej zóny Tri vody Malinovo. Pozemok obytnej zóny má tvar elipsy, do ktorej vyúsťujú tri komunikácie z obce. Predĺženie týchto komunikácii a ich vzájomné prepojenie delí elipsovitý tvar rozdelený na tri časti rôznych veľkostí.
V strede elipsy sa vytvára hlavný priesečník, ktorý definuje centrálny priestor pozemku. Na tomto mieste vzniklo veľké jazero. Komunikácie delia toto jazero na tri časti a v jeho strede vytvárajú „ostrov“, na ktorom sa nachádza polyfunkčný objekt obkolesený prstencom obytných vilových domov. Urbanistické a architektonické riešenie vilových domov a polyfunkčného objektu je dielom ateliéru JANREVAJ architects.
Samostatný polyfunkčný objekt je rozdelený na tri rôzne veľké krídla spojené centrálnou časťou (obr. 1). Objekt je prízemný, všetky prevádzky sú priamo prepojené s exteriérom s možnosťou vybudovania terasy na promenáde okolo jazier. Samotné prevádzky majú rôzne veľkosti, aby poskytli čo najrôznorodejšiu ponuku služieb obyvateľom obytnej zóny.
![]() |
| Obr. 1 Polyfunkčný objekt je rozdelený na tri rôzne veľké krídla spojené centrálnou časťou. |
Zošikmené zasklenie a obvodové steny korešpondujú s okolitými bytovými domami. Po celom obvode stavby sa nachádza zastrešenie chrániace ľudí pred slnkom a poveternostnými vplyvmi. Celkový dynamický charakter stavby dopĺňajú stĺpy v tvare písmena V vyplnené lamelami. Strecha je riešená veľmi netradične, zelené kopce a elegantné prekrytie VZT jednotiek boli navrhnuté s ohľadom na obyvateľov v okolitých vilových domoch, ktorí majú na strechu priamy výhľad.
V nasledujúcej časti článku by sme chceli priblížiť realizáciu hrubej stavby tejto stavby, a to predovšetkým monolitických železobetónových konštrukcií. Predtým si však ešte niečo povieme o statickom návrhu stavby.
Statický návrh stavby
Situácia a konštrukčné riešenie
Stavebný objekt SO – 02 POLYFUNKCIA, ktorý tvorí časť obytného komplexu TRI VODY MALINOVO, je jednopodlažný, má špecifický nepravidelný tvar, ktorý sa skladá zo štyroch dilatačných celkov.
Zakladanie
Pod základovou doskou aj základovými pásmi sa zhutnilo podložie z drveného kameniva s hrúbkou minimálne 450 mm, ktoré sa zalialo podkladovým betónom C12/15 s hrúbkou minimálne 100 mm. Základy sú zhotovené z betónu triedy C 25/30 a vystužené sú betonárskou výstužou B 500 B.
Zvislé nosné konštrukcie
Pri návrhu optimálnej nosnej konštrukcie na polyfunkčné objekty sa vyhodnocovala miera splnenia ekonomických a dispozičných kritérií. Navrhnutý bol betónový nosný konštrukčný systém doplnený oceľovými zvislými prvkami, t. j. zvislá nosná konštrukcia pozostáva zo železobetónových stien a oceľových obvodových stĺpov.
Všetky vonkajšie aj vnútorné steny majú hrúbku 220 mm a sú realizované z betónu triedy C25/30 s výstužou B500 B. Železobetónové nosné steny zabezpečujú priečnu tuhosť konštrukcie.
Nosným prvkom exteriérových lamiel je železobetónový lamelový nosník s prierezom 350/400 mm a rozponom 6 až 10 m z triedy betónu C30/37 XC2.
Vodorovné nosné konštrukcie
Strešná konštrukcia je navrhnutá ako monolitická železobetónová stropná doska, ktorá sa skladá zo štyroch dilatačných nepravidelných častí. Stredová časť dosky – 1. dilatačná časť – má hrúbku 280 mm a je odľahčená prvkami systému Cobiax. Ďalšie tri dilatačné časti dosky majú hrúbku 260 mm. Po okrajoch dosiek za atikou je hrúbka dosky 220 mm. Železobetónový strop je vyrobený z betónu triedy C30/37 s výstužou B 500 B.
Dilatačnosť škár je zabezpečená pomocou dilatačných tŕňov SCHÖCK DORN.
Železobetónová stropná doska spolu zo železobetónovými stenami zabezpečujú celkovú tuhosť konštrukcie. V exteriérovej časti objektu sa nachádzajú pohľadové šikmé železobetónové nosníky zavesené na konzolovanej časti stropnej dosky a uložené na základovom páse. Stredový bod fixujú dva oceľové stĺpy. Zavesenie šikmého nosníka je realizované rektifikovateľnými antikorovými tiahlami.
Realizácia stavby – železobetónové konštrukcie
Pri dodávke debnenia sme oslovili nášho stabilného partnera – spoločnosť ULMA Construction SK. Po počiatočnej konzultácii s prihliadnutím na harmonogram a tvar stavby bol vypracovaný plán nasadenia debnenia na jednotlivé konštrukcie.
Základy
Na zadebnenie základových pásov spoločnosť ULMA navrhla ručné rámové debnenie MIDI a oblúkové debnenie MIDIPLUS ROUND v množstve 220 m2. Takto dodané debnenie sa použilo v troch pracovných záberoch po jednotlivých krídlach pôdorysu stavby.
Zvislé nosné konštrukcie
Na zhotovenie debnenia vonkajších a vnútorných stien sa navrhlo veľkoplošné rámové debnenia ORMA a oblúkové debnenie MIDIPLUS ROUND s výškou 4,50 m (obr. 2). Celkové množstvo monolitických stien s výmerou približne 2 000 m2 sa realizovalo na šesť pracovných záberov pomocou univerzálnej zostavy s plochou 380 m2.
Jednotlivé zábery sa zhotovovali v trojdňovom cykle. Keďže investor požadoval pohľadový povrch betónu, použili sa nové debniace dielce. Otvory a skosenia stien sa vytvorili preglejkou, ktorá sa vkladala do rámového debnenia.
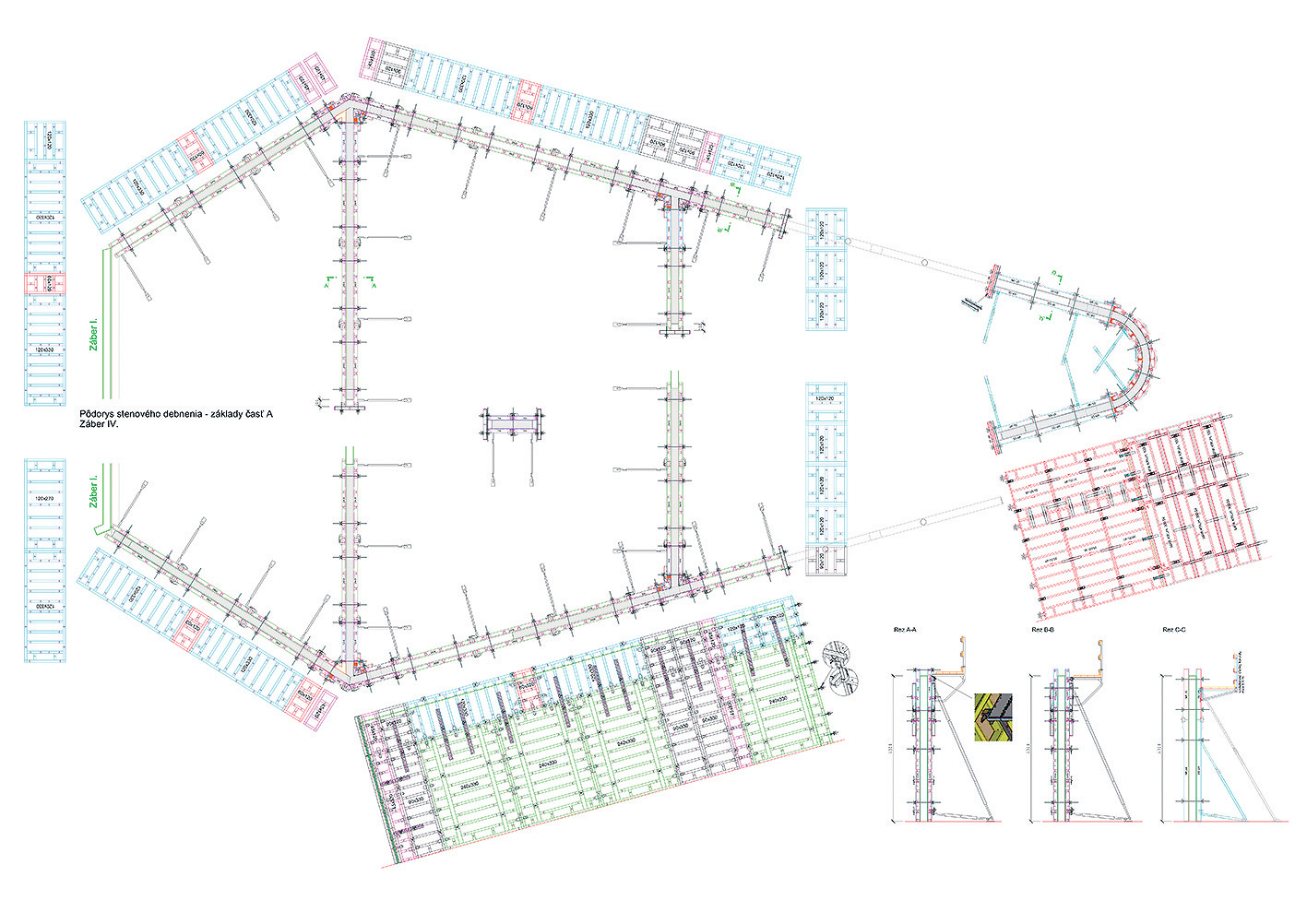
![]() |
| Obr. 2 Pôdorysná schéma debnenia stien – časť A |
Tu by sme radi upozornili na zvýšenú náročnosť realizovaných konštrukcií, pretože všetky vonkajšie steny mali kosodĺžnikový tvar a v špicoch krídel prechádzali do oblúka (obr. 3 a 4). Pri betonáži sa muselo pravidelne kontrolovať hutnenie betónovej zmesi, aby sa betón „podlial“ do všetkých častí konštrukcií pod zošikmenými ukončeniami stien.
![]() |
| Obr. 3 Zošikmené ukončenia stien |
![]() |
| Obr. 4 Oblúkové steny v špicoch krídel |
Najviac času a technickej zdatnosti si vyžadovala príprava návrhu debnenia dvojramenných, pôdorysne zakrivených šikmých nosníkov spájajúcich základovú dosku so stropnou doskou. Keďže investor požadoval aj vyhotovenie nosníkov v kvalite pohľadového betónu, dodávateľ debnenia sa rozhodol pre použitie prvkového, na stavbe montovaného debnenia z nosníkov Omega a Meccano s obálkou z kvalitnej vodoodolnej preglejky s fenolovým filmom.
Náročnosť tvorby debnenia ešte zvyšovali oblúkové nábehy v mieste spojenia so základovou aj stropnou doskou. Na ich vytvorenie dodávateľ navrhol a zhotovil šablóny trojvrstvových debniacich dosiek (obr. 5 až 7).
![]() |
| Obr. 5 Návrh debnenia šikmých pôdorysne zakrivených nosníkov |
![]() |
| Obr. 6 Realizácia debnenia šikmých nosníkov |
![]() |
| Obr. 7 Pôdorysné oblúkové prepojenie ramien šikmých nosníkov |
Z celkové počtu 6 ks nosníkov typu N sú konštrukčne rovnaké nosníky N2, N3 a N5. Nosníky N1, N4 a N6 majú rozdielne dĺžky. Každý z týchto nosníkov pozostáva z ľavého a pravého ramena. V rámci optimalizácie množstva debnenia a práce pri jeho montáži sa na stavbu dodali 2 kusy debnenia nosníka N3, ktorý sa neskôr preložil na nosníky N2 a N5, a 2 kusy debnenia nosníka N4 ďalej použitého na nosníky N1 a N6 s dodatočnou úpravou dĺžky.
Ku každému z nosníkov sa dodali podporné konštrukcie zo systému ORTHO.
Montáž a skompletizovanie debnenia z nových prvkov spolu s precíznym uložením betónu zabezpečili jeho výsledný povrch bez otvorov po spínacích tyčiach.
Pri realizácii týchto šikmých nosníkov chcem hlavne upozorniť na to, že ako bol zložitý návrh aj samotné zhotovenie debnenia na stavbe, bola náročná aj samotná betonáž (obr. 8 a 9). Preto sme sa rozhodli použiť špeciálny samozhutňujúci tzv. SSC betón. Jeho výhodou je jeho riedka konzistencia a vysoký predpoklad, že ho dostaneme do celej konštrukcie aj bez použitia ponorných vibrátorov, ktoré by pri tejto konštrukcii neboli použiteľné a účinok príložných vibrátorov by bol ťažko predpokladateľný.
![]() |
| Obr. 8 Zabetónovaný šikmý nosník |
![]() |
| Obr. 9 Detail zabetónovaného šikmého nosníka |
Vodorovné nosné konštrukcie
Po zhotovení oblúkových nosníkov sa tieto nosníky prepojili a zmonolitnili so stropnou doskou. Stropná konštrukcia pozostáva zo stropnej dosky vo vnútri každej z troch častí stavby a vonkajšej konzoly, na ktorej je uložená atika s výškou 500 mm. Stropné debnenie v množstve 350 m2 sa dodávalo postupne na blok A s konzolou a blok B s konzolou (obr. 10).
![]() |
| Obr. 10 Návrh debnenia stropnej dosky |
Debnenie z bloku A (obr. 11) sa potom presunulo na blok C s ponechaním dodatočného podstojkovania až do úplného vytuhnutia betónu. Z dôvodu zložitého pôdorysného tvaru stavby sa navrhlo klasické stropné debnenie ENKOFLEX s novými debniacimi doskami. Pri debnení stropu bolo potrebné zadebniť až 30 % plochy z jednorazovo použitej dorezovej preglejky.
![]() |
| Obr. 11 Debnenie stropnej dosky blok A |
Poslednou fázou nasadenia debnenia bolo zhotovenie atiky po obvode stropnej dosky. Na jej zadebnenie sa použilo ručné rámové debnenie MIDI a oblúkové debnenie MIDIPLUS ROUND s výmerou 100 m2 s postupným nasadením na všetky tri časti stropnej dosky.
Na záver
Zámerom architekta je v maximálnej možnej miere naplniť predstavy investora, ale zároveň navrhnúť stavbu, ktorá by bola vo vzájomnej harmónii s okolitym prostredím. Úlohou statika je navrhnúť konštrukcie tak, aby vyhovovali požadovanému zaťaženiu. Na záver je úlohou zhotoviteľa všetko to, čo je na papieri, preniesť do reálnej podoby. A to si vyžaduje úzku spoluprácu všetkých zúčastnených subjektov.
TEXT: Ing Peter Pecník, konateľ spoločnosti TEXO group, s. r. o.
OBRÁZKY a FOTO: ULMA Construction SK, TEXO group
Článok bol uverejnený v časopise Stavebné materiály 6/2016.






















