Výpočet ekonomickej návratnosti teplovodných stropných sálavých panelov
Ako vychádza v porovnaní s teplovzdušnými jednotkami? Výsledky ukazuje konkrétny príklad. Vykurovanie alebo chladenie budov si vyžaduje často kompromisy: na jednej strane rastú ceny energie, na druhej strane nároky na optimálnu vnútornú klímu. Teplovodné stropné systémy na sálavé vykurovanie a chladenie predstavujú komfortné a zároveň energeticky úsporné riešenie. Ako je to však s ich ekonomickou stránkou?
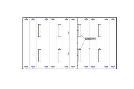
Na vzorový výpočet nám poslúži priemyselná hala (obr. 1) s takýmito základnými parametrami:
- dĺžka: 92,4 m
- šírka: 50,0 m
- výška: 11,5 m
- projektovaná vnútorná teplota: 16 °C
- tepelná strata: 347 kW
- centrálny zdroj tepla
Obr. 1 Priemyselná hala
A) Návrh vykurovania stropnými panelmi Zehnder ZIP
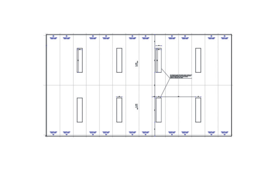
Návrh rozmiestnenia panelov je zobrazený na obr. 2. Ide o:
- 9 panelov ZIP-4: dĺžka 47 m
- 2 panely ZIP: dĺžka 47 m
- Spolu: 517 m panelov ZIP
Obr. 2 Návrh vykurovania stropnými panelmi Zehnder ZIP
Obr. 3 Návrh vykurovania teplovzdušnými jednotkami
B) Návrh vykurovania teplovzdušnými jednotkami
Návrh vykurovania teplovzdušnými jednotkami vidieť na obr. 3. Pozostáva z:
- 20 ks teplovzdušných jednotiek: 17,04 kW
Obr. 4 Graf príkladu návratnosti investície do stropných panelov Zehnder ZIP v porovnaní s teplovzdušnými jednotkami
Výpočet ekonomickej návratnosti
Súvisiace kalkulácie sú zrejmé z tab. 1. Z údajov a prepočtov vyplýva, že ročná úspora za teplo, elektrickú energiu a servis predstavuje pri použití stropných sálavých panelov Zehnder ZIP 535 700 Kč (asi 19 745 eur). Návratnosť investície do stropných panelov Zehnder ZIP je 3,5 roka (graf na obr. 4 ukazuje príklad návratnosti investície do stropných panelov Zehnder ZIP v porovnaní s teplovzdušnými jednotkami). Zároveň treba zdôrazniť, že okrem týchto jasných ekonomických faktorov prinášajú teplovodné stropné systémy na sálavé vykurovanie a chladenie aj vyššiu tepelnú pohodu v celom priestore haly, nižšiu prašnosť a hlučnosť a dlhšiu životnosť bez dodatočných servisných nákladov.
Pozn.: Spoločnosť Zehnder je pripravená poskytnúť pomoc pri návrhu usporiadania a dimenzovania stropných sálavých panelov vrátane výpočtu tlakových strát, hydraulického vyregulovania a špecifikácie potrebného príslušenstva. Na požiadanie vypočíta aj návratnosť vynaloženej investície, ktorá vychádza obvykle na 2,5 až 3,5 roka.
Text vznikol v spolupráci so spoločnosťou Zehnder Group Czech Republic, s. r. o.
Foto a obrázky: Zehnder Group Czech Republic
Článok bol uverejnený v časopise TZB HAUSTECHNIK.















