Vplyv obnovy obalových konštrukcií na tepelné straty
Ako sa menia tepelné straty existujúcich bytových domov zatepľovaním a výmenou sklených výplní?Veľkým problémom existujúcich bytových domov je vysoká spotreba energie na ich prevádzku. Je to dôsledok nižších požiadaviek na tepelnotechnické vlastnosti obalových konštrukcií v čase ich výstavby. Tieto konštrukcie sú vyhotovené z materiálov, ktorých tepelnotechnické vlastnosti zodpovedali vtedajším platným technickým normám a predpisom. Ceny energie však sústavne narastajú a tým sa prevádzka existujúcich bytových domov stáva ekonomicky nevýhodnou.
Vzhľadom na súčasnú neekonomickosť prevádzky existujúcich bytových domov treba hľadať riešenia a opatrenia, ktoré by znížili prevádzkové náklady na vykurovanie. Ako najúčinnejšie opatrenia sa javia zatepľovanie a výmena sklených výplní.Tepelnotechnické parametre obalových konštrukcií
Návrh obvodového plášťa budov z hľadiska tepelnotechnických vlastností stavebných konštrukcií vychádzal spočiatku z ekvivalentu tehlového muriva s hrúbkou 450 mm. V 60. rokoch minulého storočia sa stavebné konštrukcie začali navrhovať a posudzovať z hľadiska stavebnej tepelnej techniky. Prvou normou vzťahujúcou sa na návrh stavebných konštrukcií bola ČSN 73 0540 z roku 1964. Jej prvá revízia sa uskutočnila v roku 1977. Hodnoty minimálneho tepelného odporu RN a maximálneho súčiniteľa prechodu tepla konštrukcie U (vo vtedajšej norme označené k) boli stanovené osobitne pri troch teplotných oblastiach s vonkajšou výpočtovou teplotou do –15, –18 a –21 °C. Stanovili sa aj maximálne hodnoty súčiniteľa prechodu tepla U otvorových výplňových konštrukcií. Požiadavky na tepelnotechnické vlastnosti stavebných konštrukcií sprísnila zmena 4 vydaná k tejto norme v roku 1992 a zmena 5 z roku 1997. V zmene 4 sa stanovili osobitné požiadavky na rekonštruované (zatepľované) objekty a na nové objekty.
V roku 2002 bola na úseku návrhu a posúdenia stavebných konštrukcií vydaná európska norma STN EN 73 0540, ktorá stanovuje požiadavky na stavebné konštrukcie zvlášť pri obnovovaných (rekonštruovaných) budovách a zvlášť pri nových budovách bez ohľadu na teplotnú oblasť. V súčasnosti je v platnosti jej zmena z roku 2012, ktorá stanovuje štyri hraničné hodnoty tepelného odporu RN a súčiniteľa prechodu tepla U. Prehľad normou stanovených maximálnych hodnôt súčiniteľa prechodu tepla U obalových konštrukcií a otvorových výplňových konštrukcií je v tab. 1. Z tab. 1 vidieť, že v súčasnosti sú v platnej norme dané štyri hodnoty súčiniteľa prechodu tepla U: minimálna, normalizovaná, odporúčaná a cieľová odporúčaná. Požiadavky na maximálne hodnoty súčiniteľa prechodu tepla U, ktoré musia spĺňať súčasné konštrukcie, sa sprísnili. V tab. 2 sú uvedené hodnoty v percentách, o ktoré sa sprísnili požiadavky na súčinitele prechodu tepla obalových konštrukcií z roku 1964 a 1977 pri vonkajšej výpočtovej teplote do –15 °C. Z porovnaní hodnôt súčiniteľa prechodu tepla U z tab. 1 je zrejmé, že existujúce bytové domy postavené v čase rozmachu bytovej výstavby v rokoch 1960 až 1990 nevyhovujú súčasným kritériám, ktoré sa kladú na tepelnotechnické vlastnosti obalových konštrukcií, a treba ich obnoviť. Na základe tab. 2 možno pri dodržaní súčasne platných predpisov na tepelnotechnické parametre obalových konštrukcií po ich obnove predpokladať potenciál energetických úspor bytového domu 50 až 60 %.

Na analýzu vplyvu obnovy obalových konštrukcií na tepelné straty bytového domu sa použil model dvoch existujúcich bytových domov umiestnených blízko seba v Bratislave. Bytové domy majú konštrukčný systém T06B BA bodového charakteru s ôsmimi nadzemnými podlažiami a jedným nevykurovaným suterénom. Bytový dom označený ako pôvodný má obalové konštrukcie v pôvodnom stave, nový je len náter. Bytový dom označený ako obnovený má nové plastové okná, obvodový plášť zateplený polystyrénom s hrúbkou 10 cm, strechu zateplenú polystyrénom s hrúbkou 20 cm a strop nad suterénom zateplený polystyrénom s hrúbkou 6 cm. Po obnove obalových konštrukcií bytového domu sa zmenili tepelnotechnické vlastnosti podľa tab. 3.Hodnoty súčiniteľa prechodu tepla U obalových konštrukcií obnoveného bytového domu zodpovedajú kritériám platným v čase obnovy bytového domu (STN z roku 2002), a zároveň normalizovaným hodnotám súčasne platnej STN z roku 2012. Na základe tepelnotechnických vlastností obalových konštrukcií sú podľa STN EN 12 831 vypočítané tepelné straty celého bytového domu a typickej miestnosti pri pôvodnom a obnovenom bytovom dome. Obnova obalových konštrukcií je spracovaná vzhľadom na tieto opatrenia:
a) zateplenie obvodového plášťa,
b) výmena výplne,
c) zateplenie obvodového plášťa a výmena výplne,
d) zateplenie obvodového plášťa, zateplenie strechy a stropu suterénu a výmena výplne.
Výpočet sa vykonal vzhľadom na vonkajšiu výpočtovú teplotu –11 °C (Bratislava) a vnútornú výpočtovú teplotu +20 °C. Výsledky tepelných strát sú uvedené v tab. 4 a v grafe na obr. 3.
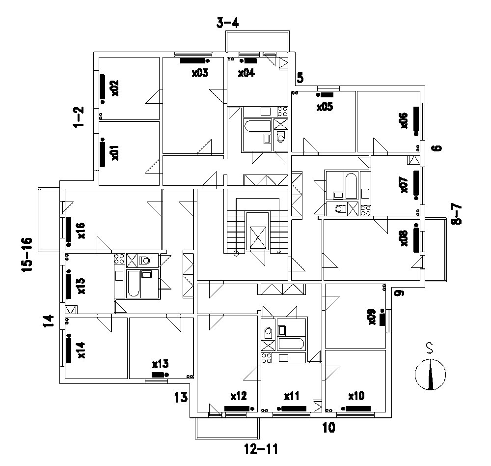
Obr. 2 Pôdorys typického podlažia
Obr. 3 Zmena tepelnej straty celej budovy a miestnosti na najvyššom, typickom a najnižšom podlaží
Z tab. 4 a z grafu na obr. 3 vidieť, že po aplikácii jednotlivých opatrení sa zmena tepelných strát miestností na typických podlažiach prejaví rovnako ako pri celej budove. Pri zavedení len jedného opatrenia obnovy obalovej konštrukcie – zateplenia obvodového plášťa alebo výmeny výplne – je pokles tepelnej straty celej budovy nízky. Zlepšenie tepelnotechnických vlastností obvodového plášťa na úrovni 74 % alebo zlepšenie tepelnotechnických vlastností výplne na úrovni 56 % prinášajú pokles tepelných strát pri budove ako celku len o 30 % a pri miestnosti na najvyššom a najnižšom podlaží dokonca len o 15 %. Po zateplení obvodového plášťa a súčasnej výmene výplní (najčastejšie opatrenia pri obnove budov) poklesnú tepelné straty celej budovy a miestností na typickom podlaží o 50 %. Tepelné straty miestností na najvyššom a najnižšom podlaží však poklesnú len o 30 %.
Po doplnení tejto obnovy o zateplenie strechy (80-percentné zlepšenie tepelnoizolačných vlastností strešnej konštrukcie) a stropu suterénu (73-percentné zlepšenie tepelnoizolačných vlastností) sa zmení nielen pokles tepelných strát (približne o 50 %), ale zároveň značne poklesnú aj tepelné straty miestností na najvyššom a najnižšom podlaží – až o 60 %. Z porovnania vplyvu jednotlivých opatrení obnovy obalových konštrukcií vyplýva, že pri určení poklesu tepelných strát a z toho vyplývajúcich následností nemožno vychádzať len z výpočtov tepelných strát stanovených na celú budovu bytového domu. Treba skontrolovať aj tepelné straty jednotlivých miestností, ktoré sa môžu pri aplikovaných opatreniach obnovy obalových konštrukcií výrazne líšiť od ostatných miestností. Najviac používaný spôsob obnovy obalových konštrukcií bytového domu – zateplenie obvodového plášťa s výmenou výplní – znižuje tepelné straty bytového domu na 50 %, ale len na typických podlažiach. Na okrajových podlažiach sa až takéto zníženie tepelných strát nedosahuje. Takéto riešenie spôsobuje problémy pri prevádzke vykurovacej sústavy bytového domu. Preto treba pri obnove obalových konštrukcií zatepliť aj strechu a strop suterénu. To prináša rovnomernosť poklesu tepelných strát na okrajových podlažiach, čo je dôležité pri návrhu a korekcii vykurovacieho systému. V opačnom prípade sa môže stať, že vplyvom obnovy obalových konštrukcií sa pri zmenených vstupných parametroch výkonom vykurovacieho telesa nepokryje tepelná strata miestností na najvyššom a najnižšom podlaží.
Spotreba tepla bytového domu pred obnovou obalových konštrukcií a po nej
Skutočný vplyv obnovy obalových konštrukcií na tepelné straty bytového domu preukazujú údaje z meraní mesačnej spotreby tepla získané z fakturačných meradiel tepla osadených vo vykurovacej sústave. Spotreba tepla v pôvodnom aj obnovenom bytovom dome (obnova podľa bodu d) predchádzajúcej kapitoly) sa sledovala vo vykurovacom období od januára 2011 do apríla 2011 a od októbra 2011 do marca 2012.
Z grafu na obr. 4 jednoznačne vidieť, že v obnovenom bytovom dome vzniká značná úspora spotreby tepla. V celom vykurovacom období (okrem mesiaca október) je v obnovenom bytovom dome úspora tepla v priemere 30 až 40 % oproti pôvodnému objektu. Vypočítané hodnoty úspor tepelných strát objektu deklarujú trochu vyššiu úsporu, a to o 50 až 60 %. Skutočné hodnoty úspor spotreby tepla sú nižšie, keďže na úsporu tepla vplýva okrem obnovy obalových konštrukcií aj prevádzka vykurovacej sústavy.
Obr. 4 Mesačné spotreby tepla v pôvodnom a obnovenom bytovom dome
Záver
Cieľom príspevku bolo poukázať na vplyv aplikácie jednotlivých opatrení obnovy obalových konštrukcií na tepelné straty bytového domu. Je dôležité uvedomiť si, že samotné zateplenie obvodového plášťa alebo výmena výplne má malý vplyv na tepelné straty budovy. Najčastejšia aplikácia obnovy obalových konštrukcií – zateplenie obvodového plášťa s výmenou výplne – má výrazný vplyv na tepelné straty, znižuje ich až o 50 %, problémom však zostávajú miestnosti na najvyššom a najnižšom podlaží, kde je pokles tepelných strát iba o 30 %. Preto je pri obnove obalových konštrukcií nevyhnutné urobiť komplexnú obnovu, čo predstavuje súčasné zateplenie obvodového plášťa, strešnej konštrukcie a stropu nad nevykurovaným suterénom a výmenu výplne. Tým sa dosiahne, že tepelné straty bytového domu poklesnú v miestnostiach na všetkých podlažiach rovnako, čo má vplyv na efektívnu prevádzku vykurovacej sústavy.
Článok vznikol v rámci projektu VEGA 1/1052/11.
Ing. Mária Kurčová
Recenzoval: doc. Ing. Ján Takács, PhD.
Foto a obrázky: archív autorky
Autorka pôsobí na Katedre TZB Stavebnej fakulty STU v Bratislave.
Literatúra
1. Dahlsveen, T. – Petráš, D.: Energetický audit budov. Bratislava: JAGA Group, 2003.
2. Chmúrny, I.: Stavebná tepelná technika. Tepelná ochrana budov. Bratislava: JAGA Group, 2003.
3. Petráš, D. – Konkoľ, R. – Repka, N.: Energeticky úsporné opatrenia v bytových domoch. In: zborník I. medzinárodná konferencia Nové trendy a technológie v komplexnej obnove bytových domov. Bratislava: STU, 2007, str. 71 – 75.
4. STN EN 12 831 Vykurovacie systémy v budovách. Metóda výpočtu projektovaného tepelného príkonu, 2004.
5. ČSN 73 0540 Tepelně technické vlastnosti stavebních konstrukcí a budov. Názvosloví. Požadavky a kritéria, 1964.
6. ČSN 73 0540 Tepelně technické vlastnosti stavebních konstrukcí a budov. Názvosloví. Požadavky a kritéria, 1977.
7. STN 73 0540 Tepelnotechnické vlastnosti stavebných konštrukcií a budov. Názvoslovie. Názvoslovie, požiadavky a kritériá, 1992.
8. STN 73 0540 Tepelnotechnické vlastnosti stavebných konštrukcií a budov. Názvoslovie. Názvoslovie, požiadavky a kritériá, 1997.
9. STN 73 0540-2 Tepelná ochrana budov. Tepelnotechnické vlastnosti stavebných konštrukcií a budov. Časť 2: Funkčné požiadavky, 2002.
10. STN 73 0540-2 Tepelná ochrana budov. Tepelnotechnické vlastnosti stavebných konštrukcií a budov. Časť 2: Funkčné požiadavky, 2012.
Článok bol publikovaný v časopise TZB Haustechnik.

















