Študentské internáty s prakticky nulovými nákladmi na vykurovanie a teplú vodu
Kombináciou energeticky optimalizovaného plášťa fasády a vhodne zvolených technických zariadení sa dosiahli prakticky nulové náklady na vykurovanie a teplú vodu. Tri moderné päťposchodové apartmány v Heidelbergu s parkoviskom, zastrešenými stojanmi na bicykle, kútikom na grilovanie a s centrálnou práčovňou poskytujú atraktívne ubytovanie 265 študentom. Projekt študentských internátov založený na modulárnom stavebnom systéme s drevenou nosnou konštrukciou vyrástol iba za päť mesiacov od dokončenia základovej dosky.
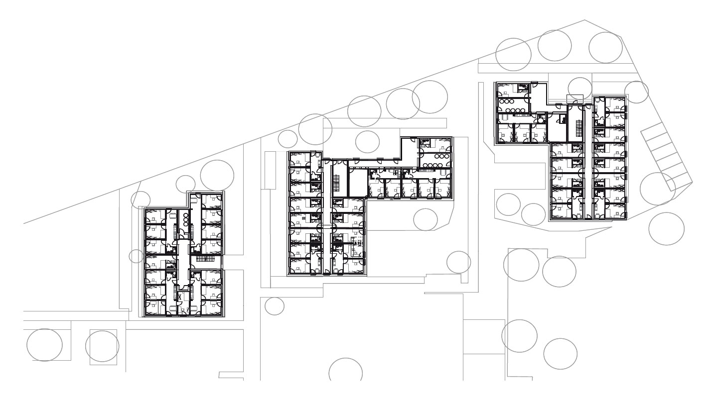
Študentské internáty tvoria tri päťposchodové budovy s 265 lôžkami v jedno- až trojizbových apartmánoch. Súčasťou komplexu je aj dvanásť miestností čitární, učební a upratovacích komôr. Ku kvalite bývania prispieva orientácia budov na východ, juh a západ. Najmä objekty 660 (žltý) a 661 (modrý) s osou v smere východ – západ a s apartmánmi nasmerovanými južne prinášajú ideálne podmienky. Z pohľadu mestskej zástavby sa všetky tri objekty homogénne začlenili do priliehajúcej ulice Klausenpfad.
Odstupňované sivé tóny vonkajšej fasády či farebný koncept navrhnutý firmou LiWooD symbolizujú pospolitosť objektov študentských internátov. Vlastnú identitu budov utvára primárne farebné rozlíšenie na žltý, modrý a červený objekt. Táto téma sa opakuje aj na vnútorných chodbách obložených nepravidelne usporiadanými eternitovými doskami v troch sivých tónoch. Hra s odtieňmi v úzkych chodbách opticky prehlbuje priestor. Vysokokvalitné študentské ubytovanie s minimálnymi, prakticky nulovými nákladmi na vykurovanie a teplú vodu sa dosiahlo kombináciou energeticky optimalizovaného plášťa fasády, tepelného čerpadla vzduch/voda a výkonného fotovoltického systému. K energetickej bilancii významne prispievajú okenné profily Schüco Alu Inside, úsporné okná spĺňajúce požiadavky na pasívnu výstavbu s izolačným trojsklom a integrovanou štrbinovou ventiláciou.
Na optimálnu cirkuláciu vzduchu pri zavretom okne je systém Schüco Alu Inside vybavený integrovanou štrbinovou ventiláciou Schüco.
Montáž a kompletizácia v „poľnej továrni“
Študentské internáty, ktoré poskytnú vysokokvalitné ubytovanie čo najväčšiemu počtu študentov na čo najmenšej ploche – presne taká bola požiadavka stavebníka (Studentenwerk Heidelberg) v rámci celoeurópskeho výberového riadenia. Ponuka mníchovskej firmy LiWooD AG presvedčila zadávateľa modulárnym stavebným systémom, ktorý okrem montáže a kompletizácie priamo na mieste garantuje vynikajúci energetický profil objektu a rýchlu výstavbu. Po dokončení základovej dosky potrebovala stavebná firma iba päť mesiacov na odovzdanie troch stavebných objektov. Výhodou bola aj skutočnosť, že vývoj, plánovanie a výstavbu tejto stavby „na kľúč“ realizoval jediný dodávateľ, ktorý si všetky operácie perfektne zladil. Montáž modulov, nezávislá od počasia, prebiehala v „poľnej továrni“ priamo na stavebnom pozemku, priemerne bolo možné vyrobiť šesť modulov denne. Tie sa potom kompletizovali po jednotlivých poschodiach do príslušných objektov.
Situačný plán študentských internátov Heidelberg. Tri stavebné objekty s jedno-, dvoj- a trojizbovými apartmánmi pre 265 študentov. Vonkajší priestor zahŕňa parkovisko, zastrešené stojany na bicykle, kútik na grilovanie a centrálnu práčovňu.
Energetický koncept
Energetický koncept študentských internátov sa vyznačuje ambicióznym zámerom znížiť výdavky za vykurovanie a prípravu teplej vody až na nulu. To sa v praxi dosiahlo kombináciou energeticky optimálneho fasádneho plášťa, tepelného čerpadla vzduch/voda a výkonného fotovoltického systému, ktorého solárny výnos zodpovedá v ročnom horizonte spotrebe všetkých budov (skutočnosť je zrejmá z energetického profilu). Energetické straty fasádnym plášťom sa minimalizovali použitím patentovaných úsporných okien Schüco. Plastová profilová konštrukcia Schüco Alu Inside zabezpečuje (bez inak bežných oceľových výstuh) izoláciu na úrovni pasívneho domu.
Priemyslová, ekonomická výroba týchto inovačných okenných systémov je možná vďaka patentovanej technológii kombinácie plastu s hliníkom. Energeticky úsporný rad Alu Inside sa vyznačuje výrazným znížením hmotnosti pri zachovaní dobrých statických vlastností. Najmä pri okenných a dverných elementoch určených do pasívnych domov, pri ktorých vykazujú vysokoizolované okenné prvky s oceľovou výstuhou a trojvrstvovým zasklením veľkú hmotnosť, predstavujú odľahčené konštrukcie Alu Inside významný benefit. V projekte študentských internátov sa použili systémové okná Schüco Alu Inside vybavené trojvrstvovým izolačným zasklením (Ug = 0,5 W/m2 . K) a siedmimi komorovými profilmi, ktoré dosahujú výborné hodnoty tepelnej izolácie Uf = 0,74 W/m2 . K. Okná vykazujú aj zlepšenú zvukotesnosť na úrovni 32 dB.
Jednotlivým budovám je priradené primárne farebné značenie – žlté, modré a červené. Pospolitosť vonkajšej fasády vyjadrujú odstupňované sivé tóny.
Vetranie
Okrem tepelnej pohody prispieva ku komfortnému bývaniu aj efektívne vetranie. Výmenu vzduchu v miestnostiach zabezpečuje štrbinová ventilácia Schüco integrovaná v ráme okna. Táto ventilácia umožňuje výmenu vzduchu aj pri zavretých oknách. Vzduch prúdi dvomi malými ventilačnými štrbinami, ktoré sú umiestnené medzi okenným krídlom a rámom. Ich ventilačné klapky majú rozličné protizávažia, ktoré v závislosti od tlaku vetra regulujú prechod vzduchu. Prívod čerstvého vzduchu v hornej časti okna s obmedzovačom jeho objemu zabezpečuje úplne pokojnú cirkuláciu vzduchu v miestnosti.
Univerzálna modulárna konštrukcia
Koncepčný prístup pri projektovaní a výstavbe študentských internátov v Heidelbergu viedol k vzniku budov s bezkonkurenčne najnižšími nákladmi na energie. Podľa vyjadrení dodávateľa možno tento efektívny modulárny princíp realizovať okrem bytovej zástavby aj pri hotelových apartmánoch, domovoch dôchodcov či kúpeľných a liečebných objektoch.
Modulárny systém LiWooD, umožňujúci kompletizáciu a montáž priamo na mieste určenia, možno skladať až do osemposchodových budov s nosnou konštrukciou z prekladaného dreva. Je ekologický, energeticky účinný a vykazuje veľmi dobrú zvukovú izoláciu a požiarnu ochranu.
Energetický profil:
Produkcia energie: tepelné čerpadlo vzduch/voda, fotovoltika
Energetická účinnosť: KfW40
Primárna spotreba energie: 20,9 kWh/(m² . a)
Konečná spotreba energie: 16,1 kWh/(m² . a)
Konečná spotreba energie celého komplexu budov: približne 96 600 kWh/a
Výkon FV systému: 120,96 kWp
Výnos z FV systému: približne 98 000 kWh/a
Názov projektu: Študentské internáty Heidelberg (študentské jedno- až trojizbové apartmány pre 265 študentov, rozčlenené do troch budov)
Stavebník: Studentenwerk Heidelberg
Vývoj/projektovanie/realizácia stavby: LiWooD Heidelberg AG & CoKG, München
Vedúci projektu: Dipl.-Ing. (FH) architekt Werner Kulessa
Dokončenie: 2013; odovzdanie: päť mesiacov od dokončenia základovej dosky 
Dodávateľ okenných systémov: Hans Greimel GmbH & Co. KG, Herrsching/Breitbrunn; www.greimel.com
Text vznikol v spolupráci so Schüco International KG, viac na www.liwood.com.
Foto a obrázky: Schüco International KG a LiWooD, München
Článok bol uverejnený v časopise TZB HAUSTECHNIK.
													
								                            







						
						
						
						
						


