Energetická spotreba infračerveného a plynového vykurovania
Ako dopadlo porovnanie merania spotreby energie? Vo vykurovacom období 2008/2009 vykonala Technická univerzita v Kaiserslauterne (Nemecko) porovnávacie meranie spotreby energie medzi infračerveným elektrickým vykurovaním a plynovým teplovodným vykurovaním panelovými telesami. Cieľom bolo určiť spotrebu energie a výšku nákladov na energiu oboch vykurovacích systémov v konkrétnej budove. Následne sa vykonala analýza energetickej bilancie z ekologického hľadiska a porovnali sa celkové náklady na oba systémy.
Je dôležité spresniť, že nešlo o porovnávanie výrobkov rozličných firiem, ale o všeobecné posúdenie vlastností infračervených plochých žiaričov s ohľadom na ich použitie na vykurovanie obytných miestností.
Zvolil sa najrozšírenejší typ centralizovaného plynového vykurovania typického pre starú zástavbu. Zdrojom tepla bol centrálny plynový kotol umiestnený v nevykurovanom pivničnom priestore. Okruhy s teplonosnou látkou viedli do jednotlivých miestností, kde boli napojené vykurovacie telesá s regulačnými ventilmi. Zemný plyn bol do domu privedený plynovým potrubím. Straty pri preprave vedením z plynárne k domovej prípojke sa nezohľadňovali. Tepelná energia sa pri tomto systéme odovzdáva do obytných priestorov prevažne konvekciou (obr. 1). Vznikajúce prúdenie vzduchu vytvára veľký teplotný rozdiel medzi hornou a spodnou časťou miestnosti.
Systém infračerveného vykurovania
Ploché infračervené žiariče boli umiestnené na stenách miestností decentralizovane – ako voľne zavesené obrazy – a boli pripojené na elektroinštaláciu (obr. 2 a 3). Alternatívou je montáž na strop, pri ktorej panel pripomína plošné svietidlo – nejde však o vstavbu do stropu. K systému patrí aj elektrická sieť na vstupe, ktorá je čiastočne verejná. Užitočná energia sa odovzdáva do vykurovaného priestoru prevažne infračerveným sálaním.
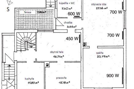
Obr. 2 Pôdorys meraného bytu a rozmiestnenie infračervených panelov

Merania prebiehali v dome určenom na bývanie pre dve rodiny. Starý dom z roku 1930 s pieskovcovými stenami má dve a pol podlažia, nie je izolovaný. V roku 1955 a 1967 sa rozširoval a prestavoval, pričom sa zachovala konštrukcia aj hrúbka stien. Dom má pivnicu s neizolovaným stropom a podlahou. Čiastočná renovácia sa uskutočnila ešte začiatkom 90. rokov, keď sa izolovala strecha v zastavanom podkrovnom priestore drevenými obkladmi (minerálna vlna s hrúbkou 12 cm, doplnená nakašírovanou hliníkovou fóliou) a vymenili sa okná v celom dome. Oba byty sú spolu prepojené uzavretým schodiskom. Od roku 1993 má budova nízkoteplotné plynové vykurovanie so zodpovedajúcimi vykurovacími telesami, izolovanými rozvodnými rúrkami a oddelenými vykurovacími okruhmi pre každý byt. Výsledkom výpočtu potreby tepla na štvorcový meter každého z bytov sú rovnaké hodnoty. Doterajšie údaje o spotrebe sa namerali meračmi tepla.
Prízemný byt má plochu 102,6 m2; byt v prvom podlaží má vrátane pripojeného obývaného podkrovného priestoru plochu 160,7 m2. Oba byty majú rovnaký pôdorys a zhodný počet a veľkosť okien. Zároveň ich používala rovnaká rodina a počas merania ich obývali tri osoby.
Na stenách miestností – podobne ako zavesené obrazy – sa inštalovali plošné infračervené žiariče na báze odporových fólií bez akumulačnej hmoty, ktoré sa pripojili na sieť domovej elektroinštalácie. Pritom sa bral ohľad na zaťaženie jednotlivých okruhov siete a v prípade potreby sa nainštalovali nové vedenia.
Medzi infračervený žiarič a inštalačnú svorkovnicu sa umiestnili spínače (FS20 ST2) riadené rádiovými termostatmi (FS20 STR2). Odovzdané infračervené sálanie sa nachádza v dlhovlnnej oblasti IR-C, bez viditeľného svetelného podielu. Tepelná akumulačná kapacita plošných infračervených žiaričov je taká malá, že pri krátkodobom dotyku nevzniká žiadne nebezpečenstvo popálenia. Aby sa však nevyskytli problémy s akumuláciou tepla, nesmú sa prikrývať či umiestňovať za závesy. Merače spotreby elektrickej energie sa nainštalovali dvojmo, aby sa zamedzili prípadné straty údajov.
Doplnkovo sa pravidelne (najmenej raz týždenne v dňoch odpočtu spotreby plynu) vykonávali merania teploty vzduchu a povrchu stien mobilnými meracími prístrojmi – merala sa teplota vzduchu (vlhkosti) prístrojom AZ 8703 a teplota infračerveného sálania prístrojom ST-8838 (firma ELV). Cieľom meraní bolo overiť, či sú v miestnostiach vykurovaných infračerveným sálaním priemerné teploty povrchu stien vyššie než teploty vzduchu.
Byt na poschodí sa z hľadiska technických inštalácií zásadne nezmenil. Krátko pred začiatkom porovnávacieho merania sa len inštalovalo jedno nové obehové čerpadlo a vykurovací okruh sa hydraulicky vyreguloval. Vykurovací okruh prízemného bytu sa odstavil.
Príprava teplej vody sa v oboch bytoch realizovala plynovým vykurovaním.
Skúšobná prevádzka
Inštalácie prebehli podľa plánu v októbri 2008 a ihneď potom sa začalo meranie. Najskôr sa v skúšobnej prevádzke uskutočnil pokus udržať v oboch bytoch rovnakú teplotu vzduchu, čo sa však nepodarilo pre subjektívne rozdielne vnímaný komfort pri takejto teplote. Ak boli nastavené teploty na termostatoch a namerané teploty vzduchu rovnaké, bol byt vykurovaný infračerveným sálaním subjektívne buď príliš teplý – pri príjemne vyhriatom byte na poschodí, alebo naopak, byt vykurovaný plynom sa pri pocite komfortu v dolnom byte javil pocitovo príliš studený. Príčinou je odlišný princíp vykurovania – pocit komfortu závisí nielen od teploty vzduchu, ale aj od strednej radiačnej teploty. V skúšobnej prevádzke sa preto nastavenie termostatov menilo tak dlho, až sa v oboch bytoch zabezpečil rovnaký pocit komfortu. A keďže sa obidva byty používali všetkými členmi jednej rodiny, nemali na posúdenie teplotného komfortu vplyv nezúčastnené osoby. Pri rovnakom subjektívnom pocite komfortu mohla byť teplota vzduchu v byte vykurovanom infračerveným sálaním nastavená o 1 až 2 °C nižšie, než v byte vykurovanom plynom. V obidvoch bytoch sa pritom priebežne vetralo nárazovým otváraním okien a tento režim vetrania sa v nich dôsledne a zhodne dodržiaval.
Meranie prebiehalo od 16. novembra 2008 do 30. apríla 2009. Rezervný merací systém pre infračervené vykurovanie sa uviedol do prevádzky 26. novembra 2008.
Výsledky merania
Celková spotreba za celé meracie obdobie bola pri infračervenom vykurovaní 7 305,92 kWh a pri vykurovaní plynom 34 742,33 kWh (obr. 4, 5).
Obr. 4 Týždenná spotreba energie – infračervené vykurovanie
Obr. 5 Týždenná spotreba energie – vykurovanie plynom a vykurovacími telesami
Oddelené meranie množstva energie na prípravu teplej vody by vyžadovalo veľké nároky na inštalácie, tak sa od neho upustilo. Pretože sa teplá voda využívala prevažne na sprchovanie, použila sa na výpočet paušálna hodnota 400 kWh/osobu na merané obdobie päť a pol mesiaca (štandardné hodnoty vrátane vody na kúpanie sa bežne pohybujú od 800 do 1 000 kWh na osobu a rok). Pri pravidelne prítomných obyvateľoch tak vznikla spotreba 1 200 kWh. Opravená celková spotreba pri vykurovaní plynom za merané obdobie bola teda pri znížení o túto sumu 33 542,33 kWh. Aby sa umožnilo porovnanie s dnešným stavom techniky výhrevnosti, redukovala sa táto spotreba o 10 %. To zodpovedá spotrebe, ktorú by bolo možné v meranom objekte dosiahnuť pri vykurovaní plynovým kondenzačným kotlom. Kalkulačná celková spotreba pri vykurovaní plynom bola po týchto korekciách 30 188,1 kWh.
Obr. 6 Porovnanie spotreby energie vztiahnutej na podlahovú plochu
Hodnoty spotreby vztiahnuté na obytnú plochu znázorňuje obr. 6. V pomere k nízkoteplotnému vykurovaniu plynom tvorí spotreba konečnej energie infračerveného vykurovania len 34,1 %, v pomere k vykurovaniu plynom s technikou kondenzačného vykurovania len 37,9 %. To znamená, že spotreba konečnej energie vykurovania plynom bola viac než 2,5-krát vyššia než pri infračervenom elektrickom vykurovaní.
Interpretácia výsledkov
Spotreba energie
Rozdiel v spotrebe konečnej energie je zjavný. A pretože systematické chyby sa podarilo voľbou objektu a usporiadaním merania prakticky vylúčiť a obyvatelia v záujme spoľahlivého výsledku angažovane spolupracovali, možno výsledky chápať ako typické pre oblasť starej zástavby.
Rozdiely možno vnímať v týchto bodoch:
a) Straty pri prenose energie medzi zdrojom a vykurovacím prvkom: Zatiaľ čo pri plynovom vykurovaní s vykurovacími telesami dochádza k veľkým stratám, straty vo vedení elektroinštalácie pri infračervenom vykurovaní sú zanedbateľné.
b) Straty reguláciou v dôsledku zotrvačnosti regulácie a vplyvom akumulácie hmoty vykurovacích prvkov – pri vykurovaní plynom sú tiež väčšie než pri infračervenom vykurovaní.
Zatiaľ čo vykurovacie telesá pri plynovom vykurovaní potrebovali často viac než 10 minút od otvorenia ventilov na zohriatie a po (ručnom) uzavretí ešte zase najmenej 30 minút vyhrievali, čas ohriatia infračervených žiaričov (na najmenej 60 °C) bol kratší než 4 minúty a čas ochladenia (zo 60 °C pod 30 °C) bol kratší než 7 minút. Rozhodujúce pritom bolo, že čas, v ktorom fungovali infračervené žiariče ako konvekčné vykurovanie, bol čo najkratší. Okrem toho je celková koncepcia regulácie infračerveného vykurovania ako regulácia jednej miestnosti bez snímača vonkajšej teploty podstatne flexibilnejšia než pri vykurovaní plynom. Zreteľne sa dala vysoká dynamickosť regulácie pozorovať na nízkej spotrebe južne orientovanej obývacej izby v chladných, ale aj slnečných dňoch koncom januára a v prechodnom období začiatkom apríla.
Zamedzenie zotrvačnosti pri regulácii je jednou z hlavných výhod infračerveného vykurovania oproti všetkým veľkoplošným typom vykurovania, pri ktorých je zotrvačnosť ešte väčšia než pri vykurovacích teplovodných telesách.
c) Straty vetraním boli pri oboch typoch vykurovania rozdielne v dôsledku odlišných teplôt vzduchu v miestnosti.
d) Straty tepla prevodom (suchá/vlhká stena): straty tepla prevodom sú v praxi pre vlhké steny značné. Nízke teploty vnútorných strán vonkajších stien pri mrazivých vonkajších teplotách vznikajú pri neizolovaných stenách najmä v dôsledku znížených hodnôt izolácie proti prevlhnutiu. Merania preukázali, že v byte vykurovanom plynom boli teploty na povrchu vnútorných strán vonkajších stien aj 14 °C. Povrchy stien ohrievané infračerveným vykurovaním sa však udržiavali na najnižšej teplote okolo 19 °C a boli v priemere vždy vyššie než teplota vzduchu. V dôsledku vysokých teplôt povrchu sa okrem toho aj maximálne zamedzilo absorbovanie vodnej pary stenami.
Vlhká stena má oproti suchej výrazne nižšie izolačné hodnoty. Už 4-percentná vlhkosť znižuje izolačnú hodnotu približne o 50 %. Vysúšaním vonkajších stien infračerveným sálaním (vysúšanie budov je klasickou aplikáciou infračervených žiaričov) sa izolačná hodnota pravdepodobne zvýšila natoľko, že nárast strát prenosom v dôsledku väčšieho rozdielu teplôt medzi vnútorným a vonkajším povrchom obvodových stien bol viac než vyrovnaný.
Náklady na vykurovanie
Za porovnávaciu rovinu pre ceny elektrickej energie sa vybrali disponibilné štandardné tarify štyroch dodávateľov elektrickej energie (vrátane spoločností EON a RWE) a štyroch poskytovateľov so 100-percentnou certifikovanou obnoviteľnou elektrickou energiou. Najnižšia štandardná tarifa (pracovná cena za 4 000 kWh – leto 2009) bola 19,5 centov/kWh, najvyšší 23,8 centov/kWh. Pretože štyria veľkí poskytovatelia energie vystupujú na trhu aj ako subjekty predávajúce plyn, zvolili sa za porovnávaciu rovinu takisto ich štandardné tarify platné v celej krajine. Najnižšiu štandardnú tarifu (pracovná cena za 20 000 kWh – leto 2009) predstavovalo 5,0 centov/kWh, najvyššiu 5,9 centov/kWh. Pretože základné poplatky mali všetci poskytovatelia približne rovnako zanedbateľné, pri porovnávaní nákladov sa na ne neprihliadalo.
Ceny elektrickej energie narástli za posledných 10 rokov od liberalizácie trhov priemerne o 2,25 % za rok a ceny plynu o približne 7,1 % za rok. Väzba medzi cenami plynu a nafty sa v dohľadnom čase zachová a obe fosílne palivá budú v budúcnosti menej dostupné. Za nárast ceny za elektrickú energiu môžu zo 40 % štátne odvody, navyše sa začína prejavovať znižovanie nákladov v dôsledku výroby obnoviteľnej elektrickej energie. Preto možno veľmi pravdepodobne očakávať zachovanie tohto rozdielneho vývoja aj do budúcnosti – teda, že cena plynu bude aj naďalej rásť rýchlejšie než cena elektrickej energie.

Vplyv infračerveného vykurovania na zdravie
Súčasťou štúdie nebolo posúdenie, ktoré by sa zaoberalo vplyvom oboch systémov vykurovania na zdravie osôb. Zisťovalo sa len subjektívne hodnotenie obyvateľov domu, prípadne ich návštev. Pri infračervenom vykurovaní opisovali prostredie ako komfortné – oceňovali pocit teplých nôh a nižšiu prašnosť. Vo všeobecnosti sa ako prínos stenového sálavého vykurovania hodnotí aj obmedzenie tvorby plesní v priestore.
Závery a výhľad do budúcna
Štúdia preukázala, že infračervené vykurovanie predstavuje zmysluplnú alternatívu k bežným vykurovacím systémom. Až dosiaľ sa naň v normách a nariadeniach (napríklad účinnosť sálania pri elektrických plošných zdrojoch vykurovania) neprihliadalo alebo sa prihliadalo len nedostatočne. V nemeckom nariadení o úsporách energie EnEV je infračervené vykurovanie uvedené medzi bežnými elektrickými priamovýhrevnými vykurovacími telesami, napriek tomu, že pri ňom možno na základe princípu vykurovania sálaním – na rozdiel od bežných elektrických priamovýhrevných vykurovacích telies na báze prúdenia – očakávať zjavné úspory. Porovnanie elektrického podlahového vykurovania (prípadne nočného akumulačného vykurovania) a infračerveného vykurovania prezentované rozličnými výrobcami zvyčajne uvádzajú úspory vo výške asi 50 %. Práve náhrada nočného akumulačného vykurovania infračervenými panelmi by bola pre jednoduchú realizáciu a minimálne investičné náklady (štandardne polovica alebo menej než pri výmene za vykurovanie plynovým kondenzačným kotlom) jednoduchým realizovateľným opatrením na zvýšenie účinnosti. Ďalšie kritériá, ktoré hovoria za infračervené vykurovanie, sú malé investičné náklady, žiadne vedľajšie náklady (napríklad kominári), minimálne požiadavky na údržbu a možnosť 100-percentne obnoviteľnej prevádzky podľa zdroja elektrickej energie.
Ing. Peter Šovčík
Autor pôsobí ako externý konzultant spoločnosti Fenix Holding.
Recenzoval: Ing. Ondřej Hojer, PhD.
Foto a obrázky: Fenix Holding
Literatúra
1. Kosack, P.: Príkladné porovnávacie meranie medzi infračerveným vykurovaním a plynovým vykurovaním v oblasti starej zástavby. Správa o výskumnom projekte, verzia 1, október 2009. Graduate School CVT Arbeitkreis Ökologisches Bauen, TU Kaiserslautern, 2009.
2. Kübler, T.: Technika vykurovania infračerveným sálaním pre veľké priestory. Vulkan Verlag, 2001.
3. Herwig, H.: Prenos tepla A – Z: Systematické a podrobné vysvetlenia dôležitých veličín a koncepcia. Berlin: Springer, 2000. 1. vydanie.
4. Polifke, W. – Kopitz, J.: Prenos tepla. Podklady, analytické a číselné metódy pomocou SoftwarePaket Scilab. CD-ROM, Pearson Studium, 2005.
5. Herr, H.: Náuka o teple: Technická fyzika 3. Europa-Lehrmittel, 2006. 4. vydanie.
6. Konstantin, P.: Kniha o praxi energetického hospodárstva: premena, prenos a získanie energie v liberalizovanom trhu. Berlin: Springer, 2009. 2. vydanie.
7. Petermann, J.: Bezpečná energia v 21. storočí. Hamburg, Hoffmann a Campe, 2008.
Článok bol uverejnený v časopise TZB HAUSTECHNIK.
–>–>














