Prevádzkovanie tepelného čerpadla zem – voda v režime prípravy teplej vody
V článku predstavujeme spôsob práce tepelného čerpadla zem – voda v režime prípravy teplej vody. Podľa zaznamenaných údajov v čase jeden a pol roka sa vyhodnotili energetické toky tepelného čerpadla a určili sezónne hodnoty COP na prípravu teplej vody.
Konkrétne tepelné čerpadlo je inštalované v rodinnom dome v meste Pinkafeld, ležiacom v časti Burgenland na východe Rakúska. V dôsledku stúpajúcich cien fosílnych palív sa v ostatných rokoch zaznamenal v tejto krajine zreteľný nárast ich nahrádzania tepelnými čerpadlami, ktoré predstavujú systémy na výrobu tepla na vykurovanie a prípravu teplej vody. Obr. 1 znázorňuje počet inštalovaných zariadení v Rakúsku od roku 1975 – prevažnú časť tvoria tepelné čerpadlá typu zem – voda (obr. 2). Tomuto trendu zodpovedá aj skutočnosť, že ako systémy odovzdávania tepla sa stále častejšie používajú veľkoplošné vykurovacie systémy, ktoré sú pre tepelné čerpadlá optimálne.
Obr. 1: Vývoj trhu s tepelnými čerpadlami v Rakúsku v rokoch 1975 až 2003 [1]
Obr. 2: Nízkopotenciálne zdroje tepla pre tepelné čerpadlá [1]
Základy na prípravu teplej vody tepelným čerpadlom
Chladiaci obeh, ktorý je ľavotočivým procesom, je základom každého tepelného čerpadla a chladiaceho zariadenia. Pomocou tohto procesu sa teplo z nižšej teplotnej hladiny – pri dodaní mechanickej energie – transformuje na vyššiu teplotnú hladinu. Carnotov cyklus predstavuje ideálny proces chladiaceho obehu, ktorý je prakticky nerealizovateľný. Tento obeh sa skladá z izoentropickej kompresie, izotermického odvodu tepla, izoentropickej expanzie a izotermického prívodu tepla.
Najčastejšie používaný obeh v tepelných čerpadlách je tzv. parný kompresorový chladiaci obeh. Pri ňom stláča kompresor pary chladiva z výparného tlaku po na kondenzačný tlak pk, čím sa pary chladiva zohrejú, a teda je možné odovzdávanie tepla okoliu. V dôsledku odovzdávania tepla na kondenzátore klesá najskôr teplota pár chladiva – až po kondenzačnú teplotu. Od tohto bodu nasleduje skvapalňovanie pár chladiva vplyvom ďalšieho odoberania tepla. Tlaková hladina kvapalného chladiva sa prechodom cez expanzný element (škrtiaci ventil, expanzný ventil) zníži, pričom sa chladivo ďalej ochladzuje. Takto zníženou teplotnou hladinou chladiva vplyvom expanzie možno na výparníku odoberať energiu z okolia. Prebieha pritom zmena z kvapalného na plynné skupenstvo. Nakoniec sa pary chladiva opäť dodajú do kompresora, kde sa stláčajú na kondenzačný tlak.
Na energetické hodnotenie tepelného čerpadla sa používa pojem výkonové číslo COP, ktoré sa definuje ako pomer odovzdaného tepelného výkonu k elektrickému výkonu kompresora (1)
COPTC=QK/Pkompresor (-) (1)
Podstatne väčší význam pre hodnotenie efektívnosti zariadenia než výkonové číslo má však sezónna hodnota COP (2). Na jej určenie sa neporovnávajú (okamžité) výkony, ale množstvá energie (počas určitého obdobia, napríklad počas jedného roka)
Sezónna hodnota COP=QK/Qkompresor (-) (2)
Na dosiahnutie vysokých sezónnych hodnôt COP treba dosiahnuť vysoké teploty na výparníku, resp. nízke teploty na kondenzátore. Pretože pri príprave teplej vody presahuje zvyčajne požadovaná teplota 55 °C, vplýva to negatívne na sezónnu hodnotu COP tepelného čerpadla.
Ako náhradné systémy na prípravu teplej vody dnes prichádzajú do úvahy tepelné čerpadlá typu vzduch – voda, zem – voda a voda – voda. Prevádzka tepelného čerpadla typu vzduch – voda na prípravu teplej vody je zmysluplná len v lete a v prechodných obdobiach. Pri tomto type je nositeľom energie vzduch okolia, pričom pri nízkych vonkajších teplotách sa hodnota COPTC blíži k číslu 1, čím sa fakticky celá príprava teplej vody dosiahne elektrickou energiou. Tepelné čerpadlá typu zem – voda a voda – voda sa môžu používať na prípravu teplej vody aj na vykurovanie. Zabudovaná regulácia pritom prepína pracovný režim tepelného čerpadla medzi prípravou tepla na vykurovanie a teplej vody. Tieto typy možno používať na prípravu teplej vody počas celého roka.
Opis zariadenia
Skúmané tepelné čerpadlo je inštalované v rodinnom dome, celoročne obývanom 4 osobami (2 dospelí a 2 deti). Zdravotnotechnické vybavenie zodpovedá vyššiemu štandardu, pričom jedna kúpeľňa sa nachádza na prízemí a druhá na prvom poschodí. Dodatočne sa v priestoroch podzemného podlažia umiestnila ešte jedna sprcha a umývadlo. Jednotlivé odberné miesta teplej vody sa zásobujú z centrálneho zásobníka teplej vody. Keďže dĺžky rozvodov sú pomerne krátke, okruh cirkulácie sa nerealizoval.
Na výpočet ročnej potreby tepla na prípravu teplej vody sa pre 4 osoby počítalo s hodnotou 40 l60°C/(d . osoba) (40 litrov vody s teplotou 60 °C na osobu a deň), čo predstavuje ročnú potrebu energie okolo 3 400 kWh.
Inštalované tepelné čerpadlo je typu nemrznúca zmes – voda s tepelným výkonom 7,1 kW. V chladiacom okruhu sa nachádza 1,7 kg chladiva R404A, ktoré sa prečerpáva Scroll kompresorom. Na pokrytie špičkových tepelných výkonov je v tepelnom čerpadle zabudovaný dodatočný elektrický ohrev.
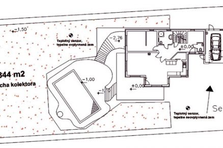
Požadovaná energia okolia sa odoberá zo zeme zemným kolektorom. Zemný kolektor pozostáva z 2 × 200 m dlhých rúrkových hadov (PLT-potrubie, DN 32, PN 4), ktoré sú uložené v hĺbke 1,3 m pod úrovňou zeme s rozstupom 60 cm, čo predstavuje celkovú plochu 344 m2 (obr. 3). Ako teplonosné médium sa použila zmes vody a 96-percentného etanolu v zmiešavacom pomere 50 : 50.
Obr. 3: Dispozícia uloženia zemného kolektora v okolí objektu
Príprava teplej vody prebieha v dvojplášťovom zásobníku s objemom 300 l, ktorý sa nabíja z tepelného čerpadla (maximálna teplota teplej vody je 55 °C).
V tomto objekte sa ďalej cez systém podlahového vykurovanie realizovalo pasívne chladenie. Takýmto spôsobom chladenia sa v letných mesiacoch cez systém podlahového vykurovania odvádzajú z exteriéru pôsobiace a z nich sa následne tvoriace vnútorné tepelné zisky do okruhu nemrznúcej zmesi; v ďalšom slede sa odovzdajú do okolitej zeme (obr. 4).
Obr. 4 Schéma zapojenia tepelného čerpadla
Zber údajov
Na zaznamenanie jednotlivých energetických tokov v tepelnom čerpadle sa pomocou prietokomera s impulzným výstupom merali prietoky na okruhu nemrznúcej zmesi, vykurovacom okruhu a na vykurovacej strane prípravy teplej vody. Na získanie transportovaných množstiev energií v jednotlivých okruhoch sa na každom vstupe a výstupe inštalovali termoelementy typu K (netienené, PTFE-izolované, so zváranou špičkou). Odber elektrickej energie kompresorom sa zaznamenal samostatným elektromerom s impulzným výstupom.
Zaznamenávanie nameraných hodnôt prebiehalo automaticky v intervale 5 sekúnd. Získané údaje sa každý deň uložili do samostatného súboru pomocou programu LabView. Zber údajov sa začal v októbri 2004 a odvtedy prebieha bez výrazného prerušenia.
Namerané výsledky
Na vyhodnotenie nameraných údajov sa zvolil časový úsek od 1. januára 2005 do 31. augusta 2006. Cieľom vyhodnotenia je prezentovať energetické toky, ako aj stanoviť sezónnu hodnotu COP na prípravu teplej vody. V nasledujúcich výsledkoch sa bude ďalej prezentovať priebeh týchto hodnôt v závislosti od rôznych parametrov.
Sezónne hodnoty COP prezentované na obr. 5 a 6 predstavujú prevádzkový interval prípravy teplej vody. Pri výpočte odovzdaného množstva energie na ohrev pitnej vody tepelným čerpadlom sa najskôr vypočítali hodnoty pre každých 5 sekúnd, ktoré sa následne sumarizovali. Tento spôsob postupu sa použil aj pri všetkých ostatných vyhodnoteniach.
Na obr. 5 je uvedený priebeh sezónnej hodnoty COP na prípravu teplej vody od 1. januára 2005 do 31. augusta 2006. Dodatočne je uvedená priemerná hodnota teploty nemrznúcej zmesi na vstupe pre každý prevádzkový interval. Ako sa dalo očakávať, sezónna hodnota COP tepelného čerpadla nie je počas sledovaného roka konštantná. Dôvodom je kolísanie teploty pôdy, ktoré sa odráža v teplote nemrznúcej zmesi na vstupe, čo je zrejmé z obr. 5. Podľa teploty nemrznúcej zmesi možno určiť predbežné správanie sa teploty pôdy v hĺbke kolektora. Z obr. 5 vidno, že teplota nemrznúcej zmesi v mesiacoch december až apríl ostáva približne konštantná – pri hodnote –1,0 °C. Aj teplota zeme je v tomto časovom úseku približne rovnaká. Tento konštantný priebeh teploty spôsobujú dva procesy. V prvom rade je to vytvorenie ľadového prstenca okolo potrubia nemrznúcej zmesi. Zmenou skupenstva vody, obsiahnutej v pôde, z kvapalného stavu na tuhý, možno odobrať zo zeme dodatočné teplo bez toho, aby sa zmenila jej teplota. Za druhé, tento proces spolu s tepelným tokom smerujúcim do kolektora zo spodných vrstiev zeme približne zodpovedá množstvu tepla odoberaného kolektorom na prevádzku tepelného čerpadla.
Obr. 5: Priebeh sezónnej hodnoty COP a priemerná teplota nemrznúcej zmesi na vstupe na prípravu teplej vody od 1. januára 2005 do 31. augusta 2006
Obr. 6: Priebeh sezónnej hodnoty COP na prípravu teplej vody od 1. januára 2005 do 31. augusta 2006 v závislosti od troch spôsobov prevádzky tepelného čerpadla
Veľký rozptyl sezónnej hodnoty COP na prípravu teplej vody v týchto mesiacoch vyplýva z paralelnej prevádzky režimu vykurovania tepelného čerpadla. Pretože nie je možná súčasná prevádzka režimu vykurovania a prípravy teplej vody, prepína sa prednostne regulácia podľa nastavenej dolnej hranice požadovanej teploty teplej vody z režimu vykurovania do režimu prípravy teplej vody. Na základe nižších teplôt nemrznúcej zmesi na vstupe, vyplývajúcich z bezprostredne predchádzajúceho režimu vykurovania, sa zmenšuje sezónna hodnota COP na prípravu teplej vody v porovnaní s pokojovým stavom tepelného čerpadla, aký by bol pred prípravou teplej vody. Napriek týmto okolnostiam dosahuje sezónna hodnota COP v týchto mesiacoch čísla od 2,00 do 2,50.
Od apríla zreteľne vidno nárast teploty nemrznúcej zmesi, a tým aj rozoznateľný nárast sezónnej hodnoty COP. To možno vysvetliť dvoma okolnosťami – na jednej strane sa zem začína s rastúcim množstvom slnečného žiarenia regenerovať, na druhej strane klesá odoberané množstvo energie zo zeme v režime vykurovania.
Najvyššie sezónne hodnoty COP sa dosahujú od začiatku júla do polovice tohto mesiaca. V tomto období sú teploty zeme, a tým aj teploty nemrznúcej zmesi, najvyššie. K tomu treba prirátať aj pozitívny význam pasívneho chladenia. V strede septembra vykazuje priebeh sezónnej hodnoty COP vplyvom klesajúceho množstva slnečného žiarenia a teploty vzduchu klesajúcu tendenciu.
Celkovo možno povedať, že dosiahnuté sezónne hodnoty COP od 1,50 do 3,50 počas pozorovaného časového obdobia sú uspokojivé. V roku 2005 dosiahla celková sezónna hodnota COP na prípravu teplej vody číslo 2,66.
Sezónna hodnota COP verzus spôsoby prevádzky tepelného čerpadla
Obr. 6 prezentuje priebeh sezónnych hodnôt COP na prípravu teplej vody v závislosti od troch možných spôsobov prevádzky tepelného čerpadla a priemernú dennú teplotu vonkajšieho vzduchu v pozorovanom časovom úseku.
Pod prevádzkou „s vykurovaním“ sa rozumie paralelná prevádzka vykurovania a prípravy teplej vody. Ako sa už uviedlo, rozptyl sezónnych hodnôt COP je v tomto prípade podstatne väčší ako pri zostávajúcich dvoch spôsoboch prevádzky. Z dôvodu kolíšucich teplôt vonkajšieho vzduchu v prechodných obdobiach (jar a jeseň) bola v rokoch 2005 a 2006 potrebná čiastočná prevádzka vykurovania až do začiatku júna. Napriek tejto okolnosti sú sezónne hodnoty COP pri tomto spôsobe prevádzky vyššie než v zimných mesiacoch.
Samozrejme, dôvodom je už vyššia teplota zregenerovanej pôdy. Sezónna hodnota COP pre prevádzkový režim „s vykurovaním“ uvedená na obr. 6 reprezentuje hodnotu pre celý pozorovaný časový úsek. V roku 2005 sa dosiahla sezónna hodnota COP na prípravu teplej vody v prevádzkovom režime „s vykurovaním“ s číslom 2,36. Pre celý pozorovaný časový úsek (t. j. od 1. januára 2005 do 31. augusta 2006) sa dosiahla sezónna hodnota COP s číslom 2,33.
Od začiatku marca po koniec októbra prebieha príprava teplej vody v prevádzkovom režime „bez chladenia a vykurovania“. Tento spôsob prevádzky pre prípravu teplej vody znamená, že sa neaktivuje prevádzka tepelného čerpadla pre režim vykurovania alebo pasívneho chladenia. Od apríla (v roku 2005 aj v roku 2006) sa jasne zaznamenal nárast sezónnej hodnoty COP – postupne až na čísla okolo 3,30. Na konci júla 2005 došlo k poklesu sezónnej hodnoty COP. Dôvodom je klesajúca teplota zeme a s tým spojená teplota nemrznúcej zmesi, ako je to zreteľné z obr. 5. Vyplýva to zo zhoršenej periódy počasia sprevádzaného silnými vodnými zrážkami. Pri tomto spôsobe prevádzky v roku 2005 vykazuje sezónnu hodnotu COP na prípravu teplej vody s číslom 2,97, pre pozorovaný časový úsek s číslom 2,95. Zaujímavým prípadom je príprava teplej vody v prevádzkovom režime „s chladením“. Energia odobraná cez systém podlahového vykurovania sa cez výmenník tepla odovzdá najskôr do okruhu nemrznúcej zmesi a potom sa ďalej transportuje do okolitej zeme.
Týmto dôjde k ohrevu zeme, čím sa v ďalšom dôsledku zvýši teplotná hladina nemrznúcej zmesi na vstupe. Zariadenie sa koncipovalo tak, aby bola možná súčasná prevádzka chladenia a prípravy teplej vody. Tým sa dosiahnu dva pozitívne efekty. Za prvé, vďaka vyššej teplotnej hladine nemrznúcej zmesi na vstupe, ktorej zvýšenie sa dosiahne kontinuálnym režimom chladenia, možno zreteľne zvýšiť sezónnu hodnotu COP tepelného čerpadla v režime prípravy teplej vody. Na základe vyšších vyparovaných teplôt klesá odobraté množstvo elektrickej energie pre kompresor. V roku 2005 sa dosiahla tepelným čerpadlom v prevádzkovom režime „s chladením“ sezónna hodnota COP s číslom 3,19.
Počas celého pozorovaného časového úseku sa dosiahla táto hodnota s číslom 3,23. Druhý pozitívny efekt sa dosahuje chladením budovy. Pretože okruh nemrznúcej zmesi najskôr odovzdá energiu výparníku chladiaceho okruhu, klesá týmto teplota média, čím sa za aktivovaným výparníkom tepelného čerpadla ešte zvýši teplotný rozdiel medzi vodou v okruhu podlahového vykurovania a nemrznúcou zmesou. Zvýšením teplotného spádu sa dosiahne väčšie ochladenie vody v okruhu podlahového vykurovania, čím sa dosiahne väčší chladiaci efekt v priestoroch budovy. V prípade chladenia by nemala teplota vody na vstupe do systému podlahového vykurovania klesnúť pod 16 °C pre nebezpečenstvo tvorby kondenzácie v podlahe. Zabezpečuje sa to zapnutím primiešavania v okruhu nemrznúcej zmesi (obr. 4).
Záver
Na otázku, ktorý systém na vykurovanie a prípravu teplej vody je v rodinnom dome ten najlepší, existuje veľa odpovedí. Voľba závisí od niektorých okrajových podmienok. Použitie tepelného čerpadla ako systému prípravy tepla nie je pri dnešných technológiách výstavby problémom. V súčasnosti, vzhľadom na vyššie investičné náklady a obmedzený čas použitia tepelného čerpadla vzduch – voda, možno od tejto dodatočnej možnosti prípravy teplej vody upustiť. Dosiahnuté výsledky pri systéme tepelného čerpadla nemrznúca zmes – voda ukazujú, že kombinovaná prevádzka vykurovania a prípravy teplej vody takýmto systémom tepelného čerpadla zodpovedá dnešným nárokom nielen z energetického, ale aj hospodárneho hľadiska. Dosiahnutá sezónna hodnota COP 2,66 pre rok 2005 toto tvrdenie len potvrdzuje. Dodatočnou možnosťou chladenia budovy možno tiež nielen zvýšiť komfort bývania, ale dosiahnuť aj to, že náklady na prípravu teplej vody v letných mesiacoch klesajú.
DI (FH) Erich Draxler, Ing. Peter Matej
E. Draxler pôsobí na HTL (Höhere Technische Lehranstalt) Pinkafeld v Burgenlande (Rakúsko) ako profesor, P. Matej pracuje v spoločnosti Dalkia, a. s., v Bratislave.
Recenzoval: Ing. Belo Füri, PhD.
Obrázky: archív autorov
Literatúra
1. Faninger, G.: Aktueller Markt der Wärmepumpentechnik in Österreich.
Článok bol uverejnený v časopise TZB HAUSTECHNIK.















