Overenie efektívnosti tepelného čerpadla v reálnych podmienkach
Článok sa zaoberá prevádzkou tepelného čerpadla so zemnými kolektormi typu nemrznúca zmes – voda, overovanou v reálnych podmienkach. Zariadenie sa nainštalovalo v rodinnom dome, v ktorom sa využíva na vykurovanie i ohrev teplej vody. Objekt rodinného domu sa nachádza v meste Pinkafeld, ktoré leží vo východnej časti Rakúska v spolkovej krajine Burgenland. Na základe zaznamenaných hodnôt merania sa vyhodnotili energetické toky tepelného čerpadla a stanovili sa výkonové čísla pre funkciu vykurovania a ohrevu teplej vody.
V ostatných rokoch možno v Rakúsku pozorovať nárast počtu tepelných čerpadiel, ktorých účelom je nahrádzať klasické vykurovacie systémy. Tento nárast je reakciou na neustále stúpajúce ceny fosílnych palív. Vývoj týchto dvoch navzájom sa ovplyvňujúcich procesov znázorňuje obr. 1.
Ako vyplýva z obr. 2, väčšiu časť inštalovaných zariadení tvoria práve systémy typu nemrznúca zmes – voda, čo je jeden z dôvodov rozhodnutia experimentálne overiť a prezentovať výsledky tohto typu tepelného čerpadla. Ďalším dôvodom je skutočnosť, že podlahové vykurovanie, ktoré sa čoraz častejšie využíva ako systém odovzdávania tepla do vnútorného prostredia, je optimálnym systémom práve pri použití tepelných čerpadiel.
Obr. 1: Počet inštalácií tepelných čerpadiel v Rakúsku [2]
Opis stavebného objektu a tepelného čerpadla
Burgenland leží v miernom klimatickom pásme s miernou zmenou nadmorskej výšky. Nížiny ležiace v jeho severnej časti patria k najteplejším regiónom Rakúska. Priemerná mesačná teplota vzduchu tu v lete dosahuje až 21 °C, v zime sa nachádza tesne pod hranicou 0 °C a ročný priemer sa pohybuje okolo 10 až 11 °C. Stavebný objekt – rodinný dom, v ktorom sa na zabezpečenie tepelnej pohody inštalovalo tepelné čerpadlo, pozostáva z jedného podzemného a dvoch nadzemných podlaží.
Budova sa nachádza v otvorenom krajinnom teréne s orientáciou pozdĺžnej osi východ – západ. Pri návrhu objektu sa počítalo s umiestnením jednotlivých fasád a zasklených častí tak, aby sa umožnilo optimálne využívanie slnečného žiarenia počas celého roka. Čistá vykurovaná plocha objektu predstavuje približne 150 m2, pričom sa vykuruje len prízemie a prvé nadzemné podlažie. Stavebnú konštrukciu budovy tvorí dierovaná tehla s hrúbkou 25 cm s tepelnou izoláciou vonkajšej fasády s hrúbkou 10 cm.
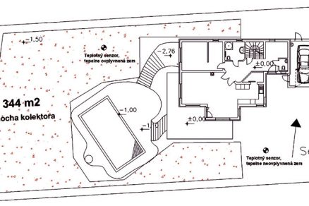
Obr. 2: Znázornenie plochy pokrývajúcej okruhy zemných kolektorov
Hodnoty súčiniteľov prechodu tepla U jednotlivých stavebných konštrukcií a prvkov sa nachádzajú v tab. 1. Tepelné straty budovy, ktoré vyplývajú z týchto hodnôt, predstavujú pri normovanej vonkajšej výpočtovej teplote vzduchu v danej oblasti –13 °C a strednej vnútornej teplote vzduchu 20 °C približne 10 kW.
Tab. 1: Hodnoty súčiniteľov prechodu tepla U jednotlivých stavebných konštrukcií a prvkov
Celoročná potreba tepla na vykurovanie prvého a druhého nadzemného podlažia (vypočítaná podľa normy OIB [3]) sa rovná hodnote 11 274 kWh/a, čo zodpovedá špecifickej potrebe tepla 56 kWh/(m2 . a). Na výpočet ročnej potreby energie na ohrev teplej vody sa uvažovali štyri osoby a špecifická potreba vody 60 l60 °C/d./os. [1] (potreba 60 °C teplej vody v litroch na deň a osobu). Potom výsledná ročná potreba energie na ohrev teplej vody zodpovedá množstvu približne 5,080 kWh (tab. 2).
Tab. 2: Prehľad jednotlivých energetických ukazovateľov
Nainštalované tepelné čerpadlo je typu nemrznúca zmes – voda s inštalovaným tepelným výkonom 7,1 kW. V samotnom chladiacom okruhu sa nachádza 1,7 kg s chladivom R404A, ktorého obeh zabezpečuje kompresor Scroll. Na pokrytie špičkových potrieb tepla sa v tepelnom čerpadle inštaloval dodatočný elektrický ohrev. Z toho vyplýva, že tepelné čerpadlo sa prevádzkuje v tzv. monoenergetickom režime.
Energia prostredia potrebná na vyparenie chladiva vo výparníku sa získava zo zeme pomocou nemrznúcej zmesi, ktorá cirkuluje v okruhu zemných kolektorov. Nemrznúcu zmes v tomto okruhu tvorí zmes vody a 96 % etylalkoholu v zmiešavacom pomere 50 : 50. Systém zemných kolektorov pozostáva z 2 × 200 m dlhých okruhov rúrkových hadov (materiál rúrok je PLT, svetlosti DN 32, PN 4). Rúrkové hady sa nachádzajú v hĺbke 1,3 m pod povrchom zeme v rozstupoch po 60 cm. Tomu zodpovedá plocha pod kolektormi s veľkosťou 344 m2 (obr. 2). Podľa údajov, ktoré uvádza predajca, dosahuje tepelné čerpadlo pri prevádzkových teplotách: nemrznúca zmes 0 °C/voda 35 °C v režime vykurovania výkonové číslo COP = 4,4 a pri prevádzkových teplotách: nemrznúca zmes 0 °C/voda 50 °C COP = 2,9.
Na oboch podlažiach sa ako vykurovací systém odovzdávajúci teplo do vykurovaných priestorov použil veľkoplošný systém podlahového vykurovania. Na zabezpečenie nízkej teplotnej hladiny prevádzky tepelného čerpadla vo vykurovacom režime sa systém podlahového vykurovania pri jeho nominálnych prevádzkových podmienkach navrhol tak, aby maximálna výstupná teplota nepresiahla počas prevádzky hodnotu 35 °C. V okruhu systému prípravy teplej vody sa nachádza dvojplášťový zásobník teplej vody s objemom 300 l a priamo sa ohrieva tepelným čerpadlom (maximálna teplota teplej vody je 55 °C).
Odovzdávanie tepla do vykurovaných priestorov podlahovým systémom sa uskutočňuje pomocou regulácie výstupnej teploty z tepelného čerpadla na základe vybranej vykurovacej krivky. Dodatočne možno pomocou centrálneho priestorového termostatu nastaviť požadovanú hodnotu vnútornej teploty vykurovaného priestoru. Vďaka použitiu špeciálneho spôsobu regulácie tepelného čerpadla nie je na prevádzku tepelného čerpadla potrebný dodatočný zásobník vyrovnávania tepelnej záťaže.
Ďalej sa v tomto objekte realizoval systém pasívneho chladenia pomocou systému podlahového vykurovania. Týmto systémom sa v letných mesiacoch odvádzajú z priestorov budovy cez okruh zemných kolektorov vonkajšie i vnútorné tepelné zisky a následne sa odovzdávajú do pôdy zohriatej slnkom.
Metodika experimentálnych meraní
Na zaznamenanie jednotlivých energetických tokov v tepelnom čerpadle sa pomocou prietokomera (pulzometra) merali prietoky v okruhu zemného kolektora, a to vo vykurovacom okruhu i v okruhu ohrevu teplej vody. Na zistenie transportovaného množstva energie sa v jednotlivých okruhoch na vstupe i výstupe inštalovali termočlánky typu K (netienený, PTFE – izolovaný, so spájkovanou špičkou). Na zaznamenanie elektrickej energie spotrebovávanej kompresorom sa použil elektromer zaznamenávajúci jednotlivé impulzy, pričom 300 impulzov zodpovedalo 1 kWh spotrebovanej elektrickej energie. Vo väčšej miere sa merali veličiny, ako sú vnútorná teplota vykurovaných priestorov, vonkajšia teplota vzduchu, teploty vykurovanej podlahy, ako aj teploty tepelne zaťaženej a nezaťaženej pôdy (tab. 3).
Tab. 3: Usporiadanie meracích miest
Hodnoty meraných veličín sa zaznamenávali automaticky v pravidelných 5-sekundových intervaloch. Jednotlivé údaje sa pre každý deň zvlášť usporiadali a ukladali na pevný disk PC pomocou programu LabView. Meranie sa začalo v októbri 2004 a nepretržite prebieha až do súčasnosti.
Výsledky meraní a ich analýza
Na vyhodnotenie nameraných údajov sa zvolil časový rozsah jedného kalendárneho roka. Cieľom vyhodnotenia v prvotnej fáze bolo predovšetkým určenie energetických tokov, ako aj výkonových čísiel pre vykurovanie a ohrev teplej vody v priebehu tohto roka.
Ďalej sa mali určiť priebehy výkonových čísiel v závislosti od rôznych parametrov a porovnať s údajmi dodávateľa tepelného čerpadla. Odovzdané množstvá energie tepelným čerpadlom na vykurovanie a ohrev teplej vody pre každý mesiac sú znázornené na obr. 3. Z tohto obrázka možno vidieť, že spotreba energie na vykurovanie budovy počas celého roka v dôsledku rozdielov vonkajších teplôt značne kolíše (čo je očakávaným javom). Vypočítaná hodnota ročnej potreby tepla na vykurovanie pre daný objekt je 11,250 kWh. Spotreba energie na ohrev teplej vody počas roka tiež kolíše, a to v rozpätí od 167 do 260 kWh. V mesiacoch jún až september je spotreba energie v porovnaní s ostatnými mesiacmi nižšia.
Obr. 3: Spotreba energie na vykurovanie a ohrev teplej vody v roku 2005
Pri výpočte priemerných hodnôt výkonových čísiel tepelného čerpadla pre vykurovanie i pre ohrev teplej vody sa brala do úvahy len elektrická energia spotrebovaná na pohon kompresora. Prídavná elektrická energia na pohon obehových čerpadiel okruhu soľanky a vykurovania, ako aj na reguláciu sa do úvahy nebrala.
Priemerná mesačná hodnota výkonového čísla pre vykurovanie kolíše v priebehu vykurovacej sezóny medzi hodnotami 4,0 a 5,7, pričom najvyššie hodnoty sa dosahujú v mesiacoch máj, jún a október. Je to dôsledok podstatne vyšších teplôt pôdy – soľanky – v týchto mesiacoch. Na začiatku vykurovacej sezóny – v mesiaci október – sa dosahujú najvyššie hodnoty výkonových čísiel, a to z toho dôvodu, že pôda sa v tomto čase (po letných mesiacoch) dostatočne tepelne zregenerovala a je schopná odovzdávať teplo do okruhu soľanky. Priebeh výkonového čísla ďalej potvrdzuje, že veľkosť kolektora sa nadimenzovala správne. V prípade príliš malého okruhu by sa hodnoty výkonového čísla pohybovali pod hodnotou COP = 4,0.
Výkonové číslo tepelného čerpadla pre ohrev teplej vody vykazuje podobný priebeh ako pri vykurovaní. V dôsledku vyšších kondenzačných teplôt pri ohreve teplej vody sú hodnoty tohto priebehu nižšie v porovnaní s vykurovaním. Napriek tomu sa dosiahnuté hodnoty v rozpätí od 2,3 do 3,4 považujú za dobré. Maximálne hodnoty sa pritom dosahujú v letných mesiacoch v dôsledku dostatočnej regenerácie pôdy. Na druhej strane však treba podotknúť, že v lete „napomáha“ zvyšovanie teploty soľanky aj funkcia chladenia.
Ročné priebehy výkonových čísiel pre vykurovanie a ohrev teplej vody, ako aj denné priemerné hodnoty vonkajšej teploty vzduchu sú znázornené na obr. 4.
Obr. 4: Ročný priebeh výkonového čísla pre vykurovanie a ohrev teplej vody
Jednotlivé body na obrázku predstavujú výkonové čísla prevádzkových intervalov tepelného čerpadla pre vykurovanie a ohrev teplej vody. Aj pri tomto vyhodnotení výkonových čísiel sa brala do úvahy len elektrická energia spotrebovaná kompresorom. Vo vykurovacej sezóne – v období od januára do konca marca – celkom zreteľne prevláda výskyt hodnôt výkonových čísiel v okolí hodnoty 4,0. Pri klesajúcej vonkajšej teplote vzduchu sa výkonové čísla približujú k hodnote 3,0 (na obr. 4 zobrazuje tento pokles šípka 1 približne do polovice februára). Dôvodom tohto poklesu sú dlhšie prevádzkové časy tepelného čerpadla, čím dochádza k vyššiemu odoberaniu energie z pôdy a následnému poklesu teploty pôdy v okolí inštalovaných zemných kolektorov.
V druhej polovici februára je rozptyl hodnôt výkonových čísiel značne menší (šípka 2). Vyplýva to zo stúpajúcej vonkajšej teploty vzduchu, čím sa, samozrejme, skracuje aj potrebný čas prevádzky tepelného čerpadla (so stúpajúcou teplotou vonkajšieho vzduchu klesá potreba tepla na vykurovanie). Tým sa potvrdzuje skutočnosť, že pôda v okolí inštalovaných zemných kolektorov je (v dôsledku energetického toku z hlbších vrstiev zeme) schopná len veľmi malej regenerácie. Pri ďalšej analýze možno pozorovať značný nárast výkonových čísiel (šípka 3) v období na konci marca. Príčinou tohto javu je na jednej strane rastúce množstvo slnečného žiarenia a na strane druhej tiež stúpanie teploty pôdy nad hranicu bodu mrazu. Tým sa vlhkosť, ale najmä dažďová voda dostanú vsiaknutím do pôdy do oblasti zemných kolektorov a zvýšia hodnoty súčiniteľa prestupu tepla pôdy.
Výkonové čísla pri ohreve teplej vody vykazujú podobný priebeh ako tie v pracovnom režime vykurovania. Od januára do konca marca sa pohybujú v pomerne konštantnom rozpätí medzi 2,0 a 2,5. Koncom apríla sa ich hodnoty postupne zvyšujú. Zaujímavým momentom je zreteľný pokles výkonových čísiel v čase od polovice augusta do jeho konca (šípka 4). Dôsledkom tohto poklesu je s najväčšou pravdepodobnosťou pokles vonkajšej teploty vzduchu v tomto období a s ním spojený pokles teplotnej hladiny pôdy.
Ďalším možným vysvetlením tejto deformácie priebehu výkonového čísla je odstavenie tepelného čerpadla z funkcie chladenia. Výsledným efektom je pravdepodobne kombinácia oboch javov, keď po náhlom oteplení, počas ktorého tepelné čerpadlo pracovalo vo funkcii chladenia, nastalo prudké ochladenie. Tieto okolnosti sú však zatiaľ len v rovine dohadov a sú vecou ďalšieho skúmania. Výsledné sezónne hodnoty výkonových čísiel v tomto konkrétnom prípade sú takéto:
- sezónne výkonové číslo tepelného čerpadla v priebehu vykurovacej sezóny COP = 4,27,
- sezónne výkonové číslo pre ohrev teplej vody počas kalendárneho roka COP = 2,7.
Záver
Na otázku, ktorý zo systémov vykurovania je tým optimálnym pre stavebný objekt rodinného domu, existuje veľa odpovedí. Jeho voľba totiž závisí od viacerých okrajových podmienok. Použitie tepelného čerpadla ako zdroja energie v kombinácii s podlahovým vykurovaním ako systémom odovzdávania tepla nie je pri súčasných stavebných technológiách žiadny problém.
Dôležitým faktorom je pritom správne navrhnutie jednotlivých komponentov, predovšetkým však dimenzovanie systému odovzdávania tepla podľa možností na čo najnižšiu teplotnú hladinu. Jedine pri dodržaní tejto podmienky možno garantovať energeticky efektívnu prevádzku tepelného čerpadla. Investičné náklady tepelných čerpadiel sú však vyššie ako pri konvekčných systémoch vykurovania. Na druhej strane však možno vďaka nízkym prevádzkovým nákladom tento počiatočný „hendikep“ v čase návratnosti vykompenzovať. Aký dlhý bude tento čas, je otázkou ďalšej ekonomickej analýzy.
DI (FH) Erich Draxler, Ing. Peter Matej
Recenzoval: Ing. Belo Füri, PhD.
Obrázky: archív autorov
E. Draxler pôsobí na FHS (Fachhochschule) Burgenland (Rakúsko) ako lektor, P. Matej pracuje v spoločnosti Porr (Slovensko), a. s., ako stavebný technik pre oblasť TZB.
Literatúra
1. Feurich, H.: Sanitärtechnik, Band 2. Krammer Verlag Düsseldorf AG, 1999, s. 7 – 95.
2. Halozan, H.: The Austrian Heat Pump Market, IEA HPP Workshop, 7th November 2005, at Arsenal Research, Vienna, s. 8 – 20.
3. OIB: Leitfaden für die Berechnung von Energiekennzahlen, März 1999.
Tento článok bol uverejnený v časopise TZB HAUSTECHNIK 7/2008.

















