Sanácia plochej strechy bytového domu
Výskyt porúch plochých striech na dnes už historických nájomných domoch z 19. a začiatku 20. storočia si vyžaduje podrobnú analýzu. V praxi sa ukazuje, že k strešným plášťom z prelomu storočia treba pristupovať komplexne a citlivo už v prípravnej fáze. Necitlivé a technicky chybné riešenia by mohli mať ďalekosiahle dôsledky nielen na priestory umiestnené bezprostredne pod strechou, ale predovšetkým na historický objekt ako celok. Nevhodné riešenie strešnej skladby totiž môže, okrem zatekania do obytných priestorov, naštartovať aj rozličné iné, závažnejšie poruchy a defekty. Ide predovšetkým o narušenie statiky celého domu.
V rokoch 2006 až 2007 bola navrhnutá a dokončená rekonštrukcia plochej strechy nájomného domu z 20. rokov minulého storočia. Ide o objekt, v ktorom časť bytového domu situovaná do ulice má šikmú a časť situovaná do dvora plochú strechu. Krytina na plochej streche pozostávala z mnohých asfaltovaných pásov, aplikovaných v rozličných obdobiach vždy preto, aby sa počas životnosti celej strešnej skladby zamedzilo zatekaniu do interiéru objektu. Do podstrešia však stále zatekalo, preto bolo potrebné urobiť celkovú rekonštrukciu strešného plášťa.
Analýza príčin porúch strešného plášťa
Strešná krytina a jej doplnky sú v súčasnosti na konci svojej fyzickej životnosti a vykazujú značné poruchy, ktoré vyplývajú z tejto skutočnosti. Na obr. 3a až 3c je znázornené poškodenie krytiny v dôsledku degradácie, ale aj opotrebovanie ostatných konštrukcií nad plochou strechou.
Strešná skladba je poškodená tak, že voda zateká do podstrešných bytov. Poškodenie konštrukcií prestupujúcich stien je také rozsiahle, že opadávajúca omietka poškodzuje krytinu a funkciu strechy. Prvky oplechovania z oceľového pozinkovaného plechu strešného plášťa vykazujú značné nedostatky a ich vyhotovenie nezabezpečuje trvalú funkčnú spôsobilosť. Pri návrhu opráv a rekonštrukciách striech treba vychádzať z podrobného stavebno-technického prieskumu existujúcej strešnej konštrukcie.
Ide o pultovú plochú strechu so spádom 1 až 2 % smerom do dvora. Strecha je odvodnená strešným plechovým žľabom s dvomi zvodmi. So zreteľom na to, že sa nezachovala pôvodná projektová dokumentácia objektu, bolo potrebné stanoviť skladbu existujúceho strešného plášťa a jeho overenie sondou. Pri vykonaní strešnej sondy tvaru písmena T s veľkosťou 500 × 500 mm sa zaznamenávali hrúbky vrstiev a druhy materiálu strešnej skladby.
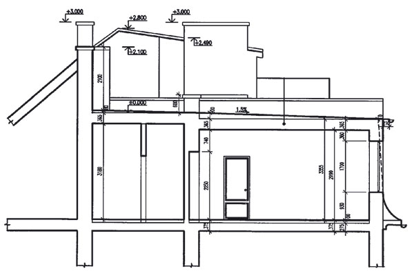
![]() |
![]() |
|
| Obr. 1 Rez súčasnou strechou nájomného domu | Obr. 2: Pohľad na strechu nájomného domu |
Existujúca skladba strechy smerom do dvora nájomného domu je:
- asfaltované pásy (65 –70 mm),
- cementový poter (20 – 30 mm),
- pilinobetón (80 mm),
- debničková stropná konštrukcia (366 mm),
- betón (85 mm),
- dosky (18 mm),
- vzduchová dutina medzi rebrami v osovej vzdialenosti 900 × 900 mm šírka rebier 120 mm (200 mm),
- dosky (18 mm),
- monierka (30 mm),
- omietka (15 mm).
Zistili sa tieto zásadné nedostatnky skúmanej strechy:
- krytina z asfaltových pásov rôzneho zloženia je pôvodná, opakovane doplňovaná a vyslúžená,
- chýba tepelná izolačná vrstva,
- prvky oplechovania vykazujú veľké nedostatky zhotovenia a ich degradácia nezabezpečuje ich funkčnú spôsobilosť,
- murované konštrukcie nad strešným plášťom svojou degradáciou spôsobujú ďalšie poškodenie krytiny.
Návrh spoľahlivej skladby strešného plášťa
Postup riešenia sanácie strešnej skladby. Skladba plochej strechy sa musí navrhnúť v súlade so záväznými kritériami ČSN 73 0540-2 (2007), Tepelná ochrana budov – Část 2: Požadavky (zodpovedá STN 73 0540-2 (2007) – Tepelná ochrana budov – Časť 2: Požiadavky). Táto norma stanovuje tepelnotechnické požiadavky pre navrhovanie a overovanie vnútorného prostredia pri ich užívaní, ktoré zaisťujú hospodárne splnenie základnej požiadavky na úsopru energie a tepelnou ochranou. Platí pre nové budovy a pre stavebné úpravy, udržiavacie práce, zmeny v užívaní budov a iné zmeny dokončených budov.
Pretože pôvodná rekonštrukcia strešného plášťa neplnila svoju funkciu jednak z hľadiska strešného plášťa, jednak z hľadiska možnej degradácie nosných drevených prvkov trvale namáhaných neprípustnou vlhkosťou a vodou, bolo potrebné navrhnúť novú strešnú skladbu, ktorou by sa vylúčila kondenzácia v skladbe celého súvrstvia a zároveň by odolávala klimatickému zaťaženiu vetrom. Nosnú drevenú konštrukciu nebolo možné oslabiť kotvením nového súvrstvia a ani viac zaťažovať stabilizačnou vrstvou, pretože existujúca stropná konštrukcia je na hranici svojej statickej únosnosti.
![]() |
![]() |
|
![]() |
Obr. 3: Poškodenie strešnej krytiny degradáciou |
Zo všetkých navrhovaných a posudzovaných variantov skladieb sa ako jediné vhodné riešenie navrhla a realizovala jednoplášťová kompaktná strešná skladba z penového skla. Jediný typ tepelnej izolácie, ktorý bol schopný zabezpečiť vylúčenie kondenzácie zo skladby strešného plášťa pri zaistení konštrukcie proti klimatickému zaťaženiu bez toho, že by bola debničková stropná konštrukcia oslabená mechanickým kotvením skladby strechy alebo neúnosne zaťažená stabilizačnou vrstvou, bolo penové sklo.
Navrhnutá skladba strechy smerom do dvora nájomného domu:
- vrchný nataviteľný pás (4,5 mm),
- strešný modifikovaný živičný pás (2,7 mm),
- horúci asfalt (2 mm),
- penové sklo v spáde (150 až 180 mm),
- horúci asfalt (2 mm),
- penetračný náter,
- nosná konstrukce zo železobetonového debničkového stropu (366 mm).
Nová skladba strechy spĺňa záväzné tepelnotechnické kritériá návrhu vo všetkých skúmaných parametroch (hodnota súčiniteľa prechodu tepla, kondenzácie vodných pár a vnútorná povrchová teplota). Ide o kompaktnú lepenú strešnú skladbu jednoplášťovej strechy so spádom 2 %, ktorý sa zabezpečil položením spádovaných dosiek z penového skla navrhnutými tak, aby i miesta s malým spádovaním na strešnej ploche zabezpečovali plynulý odtok zrážkovej vody zo strešného plášťa. Proti satiu vetra je skladba zabezpečená celoplošným lepením.
![]() |
![]() |
|
| Obr. 4: Pohľad na penové sklo s asfaltovým náterom – príprava pod krytinu | Obr. 5: Pohľad na svetlík | |
![]() |
Obr. 6: Pohľad na položenú krytinu |
Záver
Na záver možno povedať, že pri rekonštrukciách strešných plášťov nielen dnes už historických objektov z prelomu storočia treba vždy postupovať komplexne a systematicky. Pred rekonštrukciou sa musí vykonať prieskum stavu konštrukcie a jej zmapovanie a statický výpočet (posúdenie) nosných konštrukcií strešného plášťa. Dôležitý je bezchybný návrh skladby vrátane všetkých detailov strešného plášťa a jeho tepelnotechnické posúdenie z hľadiska nových funkčných požiadaviek s dôrazom na vylúčenie kondenzácie zo skladby strešného plášťa a na odolnosť konštrukcie proti klimatickému zaťaženiu.
Pri komplexnej rekonštrukcii celého strešného súvrstvia treba dodržať tieto postupy:
- demontáž doplnkových strešných prvkov a niekedy aj nefunkčnej krytiny,
- úprava podkladu pod krytinou (vyrovnanie, penetrácia),
- aplikácia novej strešnej skladby v súlade so záväznými tepelnotechnickými kritériami,
- aplikácia novej krytiny (dvojvrstvovej),
- správne vyhotovenie doplnkových prvkov a detailov.
![]() |
![]() |
|
| Obr. 7: Overenie hrúbky pôvodnej krytiny | Obr. 8: Strešná sonda na overenie skladby strech |
doc. Ing. Šárka Šilarová, CSc.
Foto: autor
Text bol spracovaný s podporou Výskumného zámeru MSM 684077001.
Autorka pracuje na Katedre konštrukcií pozemných stavieb Stavebnej fakulty ČVUT v Prahe. Je členkou Vedeckej rady Európskej spoločnosti strešných konštrukcií (WGD), súdnym znalcom pre strechy, strešné konštrukcie, obvodové plášte, otvorové výplne, podlahy a priečky obytných, priemyselných a poľnohospodárskych stavieb.
Literatúra
1. ČSN 73 0540-2 Tepelná ochrana budov. Část 2 Funkční požadavky 2007 (zodpovedá STN 73 0540-2 Tepelná ochrana budov. Část 2 Funkčné požiadavky, 2002.)
2. ČSN 73 1901 Navrhování střech – základní ustanovení,1999 (zodpovedá STN 73 1901 Navrhovanie striech – Základné ustanovenie, 2005.)
3. Bednářová, P. – Bedlovičová, D.: Biocorrosion of soffit constructions of bulit in roofspace appartment and effective prevention of them. Praha, 2006, ISBN 80-01-03439-9, s. 616 – 617.
4. Technické podklady firiem: FOAMGLAS a ICOPAL.
5. ČSN 73 3610 Navrhování klempířských konstrukcí, březen 2008. (zodpovídá STN 73 3610 – Klampiarske práce stavebné).
6. Program Teplo 2007.
Článok bol uverejnený v časopise Stavebné materiály.





















