Klimatizácia a vetranie kultúrneho domu v Zohore
Diplomová práca s touto témou získala Čestné uznanie SSTP za rok 2012. Cieľom práce bolo navrhnúť klimatizáciu a vetranie kultúrneho domu v Zohore. Pre opotrebovanie pôvodnej vzduchotechnickej jednotky vznikol návrh na naprojektovanie nového systému zabezpečenia tepelnej pohody v budove.
V práci je spracovaná úprava vzduchu vo dvoch miestnostiach (hlavná hala a vstupná hala). Obidve miestnosti majú vnútornú teplotu 20 °C . Hlavná hala má najväčšiu rozlohu zo všetkých miestností v budove a kapacitu 280 osôb. Daný priestor sa využíva aj ako tanečná sála. Vstupná hala je miestnosť s kapacitou 80 osôb, ktorá sa počas roka využíva viac ako hlavná hala.
Koncept počíta s návrhom systému distribúcie vzduchu zo vzduchotechnickej jednotky cez vzduchotechnické potrubie, konečným prvkom sú výustky. Finálnu úpravu vzduchu na zabezpečenie tepelnej pohody vzduchu budú vykonávať ventilátorové konvektorové jednotky. V práci sú spracované aj výpočty potrebné na stanovenie minimálnej dávky čerstvého vzduchu a parametrov vyžadovaných pri návrhu vzduchotechnickej jednotky a ventilátorových konvektorových jednotiek. Stavy vzduchu sa určovali pomocou psychrometrických výpočtov a h-x diagramov. Psychrometrické výpočty zahŕňajú výpočtovo-grafické riešenie tepelnej a vlhkostnej úpravy vzduchu v klimatizačnom, prípadne klimatizovanom priestore pomocou h-x diagramu s cieľom optimálne dimenzovať toto zariadenie a jeho časti.
Ústredná klimatizačná jednotka (ÚKJ) s rekuperačným výmenníkom na spätné získavanie tepla v zimnom období slúži v danom prípade na úpravu hygienicky nevyhnutného prietoku vonkajšieho (čerstvého) vzduchu, na odvádzanie tepelnej záťaže priestoru viazaným teplom (jeho vlhkostnej záťaže) a na odvádzanie časti tepelnej záťaže priestoru citeľným teplom. V práci sa uvažovalo o rovnotlakovom zmiešavacom systéme vetrania.
Vodná 4-rúrová sústava s fan-coilovými jednotkami s chladičom a ohrievačom pritom slúži v letnom období len na odvádzanie časti tepelnej záťaže priestoru citeľným teplom a v zimnom období na krytie tepelných strát priestoru (na konečnú tepelnú úpravu vzduchu). Do ventilátorovej jednotky sa nasáva vzduch z miestnosti, upravuje sa na požadovanú teplotu a následne sa vytláča ventilátorom jednotky späť do miestnosti.
Psychrometrické výpočty
Pri dimenzovaní v letnej prevádzke sa uvažovalo o dvoch výpočtových stavoch vonkajšieho vzduchu:
- maximálna suchá teplota te = 32 °C a maximálna vlhkosť ϕe = 32,8 %,
- maximálna suchá teplota te = 32°C a minimálna vlhkosť ϕe = 22,3 %.
Ďalej sú použité skratky: PrV – primárny vzduch, PV – privádzaný vzduch, SeV – sekundárny vzduch, VnV – vnútorný vzduch, VV – vonkajší vzduch, OvV – odvádzaný vzduch. Všetky označenia vychádzajú z obr. 1.
Leto: výpočtový stav 1
Tento stav zodpovedá odvlhčovaciemu chladeniu vonkajšieho vzduchu v ústrednej klimatizačnej jednotke a citeľnému chladeniu vzduchu vo ventilátorových jednotkách v klimatizovanom priestore.
Vonkajší vzduch so stavom 1 = E sa nasáva do ÚKJ, kde sa ochladí a odvlhčí na stav 2, v ktorom sa dopravuje ako primárny vzduch do miestnosti (pri dimenzovaní klimatizačného zariadenia sa zmena stavu vzduchu vo ventilátore ÚKJ a v potrubí zanedbáva).
Ventilátorové jednotky nasávajú vzduch z miestnosti (sekundárny vzduch) v stave VnV I a ochladia ho v chladiči pri x = konšt. na stav 3, v ktorom ho následne vyfúknu späť do miestnosti (odvádzajú len jej citeľnú záťaž). Prúd vzduchu dopravovaný z ÚKJ do miestnosti cez výustky v stave 2 sa v nej zmiešava so vzduchom vystupujúcim z ventilátorových jednotiek v stave 3, a to na stav 4, ktorý sa zhoduje so stavom privádzaného vzduchu P. Vplyvom tepelnej a vlhkostnej záťaže priestoru sa zmení stav vzduchu v miestnosti zo stavu P na stav I.
![]() |
![]() |
| Obr. 1 Parapetná ventilátorová jednotka s konvektormi – prívod primárneho vzduchu z ústrednej klimatizačnej jednotky je pod stropom klimatizovaného priestoru (miestnosti) 2 – prívod primárneho vzduchu upraveného v ústrednej klimatizačnej jednotke, 3 – prívod sekundárneho vzduchu upraveného vo ventilátorovej jednotke, I – vnútorný vzduch, P – privádzaný vzduch (po zmiešaní primárneho a sekundárneho) |
Obr. 4 Ústredná klimatizačná jednotka |
![]() |
![]() |
| Obr. 2 Leto: výpočtový stav 1 | Obr. 3 Leto: výpočtový stav 2 |

Tento stav zodpovedá citeľnému chladeniu vonkajšieho vzduchu v ÚKJ a citeľnému chladeniu sekundárneho vzduchu vo ventilátorových jednotkách v klimatizovanom priestore.
Zimná prevádzka
Kompenzáciu tepelných strát miestnosti zabezpečujú ohrievače ventilátorových jednotiek, preto ohrievače ÚKJ slúžia len na ohrev vonkajšieho vzduchu po teplotu vnútorného vzduchu ti.
Vonkajší vzduch so stavom 1 = E sa nasáva do ÚKJ, kde sa najprv predhreje odvádzaným vzduchom vo výmenníku na spätné získavanie citeľného tepla (SZT) na stav O, následne sa v ohrievači ohreje na stav 2 s teplotou t2 = ti. Ďalej sa v parnom zvlhčovači zvlhčí prakticky izotermicky na stav 3, v ktorom vystupuje z ÚKJ. V tomto stave sa potom dopravuje do miestnosti ako primárny vzduch. Vzhľadom na to, že klimatizačné zariadenie pracuje len s vonkajším vzduchom, z energetického hľadiska treba zaradiť rekuperačný výmenník na čiastočné spätné získavanie tepla z odvádzaného vzduchu s cieľom ušetriť na výkone ohrievača vonkajšieho vzduchu v ÚKJ. Vzhľadom na to sa navrhol výmenník na spätné získavanie tepla s účinnosťou ηSZCT = 0,59.
Ventilátorová jednotka nasáva vzduch z miestnosti so stavom I, ktorý sa upravuje v ohrievači na stav 4, v ktorom sa následne vyfukuje späť do miestnosti. V nej sa zmieša prúd vzduchu dopravovaný z ÚKJ v stave 3 s prúdom vzduchu vystupujúceho z ventilátorovej jednotky v stave 4, a to na stav P. Vplyvom vlhkostnej záťaže a tepelných strát miestnosti sa stav vzduchu v nej mení zo stavu P na stav I.
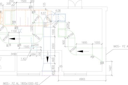
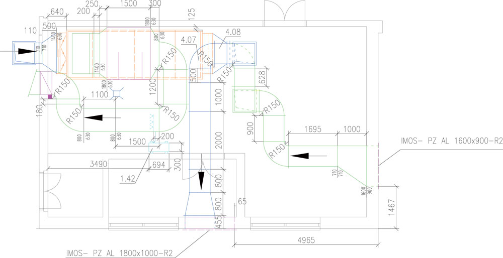
Pôdorys strojovne
Rez strojovne
Návrh strojovne
V strojovni vzduchotechniky sú navrhnuté dve ÚKJ vybavené panelovým rekuperačným výmenníkom na dosiahnutie energetickej úspory. Za týmto výmenníkom sa nachádzajú ohrievač a chladič na následnú úpravu vzduchu. Úspora sa dosahuje aj umiestnením cirkulačnej klapky za rekuperačný výmenník. Klapka v prípade potreby (v čase, keď sa v miestnosti nenachádzajú ľudia) uzavrie prívod vonkajšieho čerstvého vzduchu a odvod odpadového vzduchu a vracia späť do miestnosti odpadový vzduch.
V zimnej prevádzke je navyše potrebné zvyšovať vlhkosť vzduchu. Z toho dôvodu sa navrhlo parné zvlhčovanie mimo ÚKJ (parný výfuk do potrubia).
Záver
Systém úpravy vzduchu v kultúrnom dome sa navrhol z hľadiska aktuálneho využívania miestností, čiže s ohľadom na to, že tanečná sála sa počas roka využíva menej. Preto sa zvolili vzduchotechnické jednotky do každej miestnosti zvlášť. Pre malé rozmery kotolne sa tlmiče umiestnili mimo vzduchotechnických jednotiek. Takisto sa riešil aj parný zvlhčovač.
Projekt rešpektuje stanovené hygienické predpisy a platné normy.
Ing. Monika Matúšková
Foto a obrázky: autorka
Autorka pôsobí ako projektantka v spoločnosti Gift, s. r. o.
Za odborné vedenie pri spracovaní diplomovej práce patrí veľká vďaka vedúcej diplomovej práce doc. Ing. Marte Székyovej, PhD., a konzultantovi doc. Ing. Karolovi Ferstlovi, CSc.
Článok bol uverejnený v časopise TZB HAUSTECHNIK.

















