Stropný systém na báze ľahkej lisovanej drevnej štiepky
Alternatívou k tradičným betónovým či keramickým stropným vložkám sú stropné vložky vyrobené z ľahkej lisovanej drevnej štiepky. Stropné vložky sa ukladajú na predpäté nosníky vyrobené z betónu C 50/60. Vďaka ich nízkej hmotnosti je montáž tohto stropného systému rýchlejšia a náklady na dopravu nižšie (jedna paleta materiálu postačuje na vyhotovenie 70 m2 stropu). Nízka hmotnosť je rozhodujúcim faktorom aj pri výbere vhodného stropného systému do rekonštruovaných stavebných objektov.
Stropný systém na báze drevnej štiepky predstavuje novú generáciu betónových stropných konštrukcii vhodných na bytovú a občiansku výstavbu. Samotný stropný systém sa skladá z ľahkých predpätých stropných nosníkov RS vyrobených z betónu triedy C 50/60 (B 60) a stropných vložiek, ktoré slúžia ako stratené debnenie. Stropné vložky sú vyrobené z kvalitného, pod vysokým tlakom lisovaného a impregnovaného dreva.Kompletný systém dopĺňa armovacia oceľ a armovacia sieťovina. Stropný systém je použiteľný od svetlej šírky 1,0 m do 8,0 m. Výška stropu je (v závislosti od rozpätia a zaťaženia stropnej konštrukcie) od 16 cm do 26 cm, pričom osová vzdialenosť stropných nosníkov v systéme je 59 cm (nosníky RS 110) alebo 60 cm (nosníky RS 130). Minimálna hrúbka betónovej zálievky (nadbetonávky) je 4 cm. Na ukladanie stropných nosníkov sa uplatňuje metóda takzvaného jednoduchého ukladania (jeden nosník), dvojitého ukladania (dva nosníky vedľa seba) alebo trojitého ukladania (tri nosníky vedľa seba) v závislosti od zaťaženia stropnej konštrukcie. V závislosti od skladby sa hmotnosť stropu pohybuje od 187 kg/m2, pričom minimálna spotreba betónu je 60 l/m2. Zväčšenie hrúbky nadbetonávky stropnej konštrukcie o 1 cm znamená navýšenie spotreby betónu o 0,01 m3/m2, čím sa zvýši hmotnosť stropu o 23 kg/m2.
Železobetónové predpäté stropné nosníky
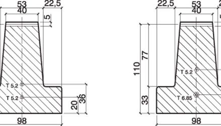
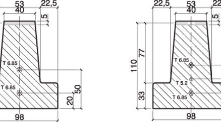
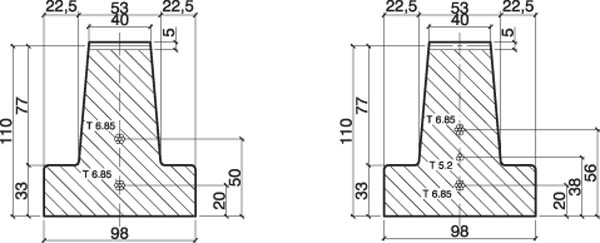
Základným prvkom stropného systému sú ľahké železobetónové predpäté stropné nosníky RS vyrábané vo viacerých variantoch, ktoré sa od seba líšia rozmermi nosníkov v priereze, počtom a priemerom oceľovej výstuže nosníka, respektíve rozmiestnením priestorovej priehradovej výstuže v nosníku. Stropné nosníky sú vyrobené z betónu triedy C 50/60 (B 60), ktorý obsahuje prírodné kamenivo. Hlavnú výstuž nosníka tvorí oceľ s nízkou relaxáciou triedy 2060, ktorá sa vyznačuje vysokou odolnosťou: T 5,2 (3Ø2,4 mm) a T 6,85 (1 Ø 2,35 mm + 6 Ø 2,25 mm). Nosníky stropného systému sa delia na dve základné skupiny, a to skupinu nosníkov RS 110 (dĺžka 1,0 až 6,0 m; výška 11 cm) a skupinu nosníkov RS 130 (dĺžka 5,7 až 10,0 m; výška 13 cm).
Nosníky majú tvar obráteného písmena T (obr. 1 až 3) a vyrábajú sa v dĺžkach od 1,0 m do 8,0 m, v násobkoch po 10 cm. Vrchná plocha nosníka je vrúbkovaná, a tak zaisťuje priľnavosť k nadbetonávke. V záujme zabezpečenia dostatočného ukotvenia oceľovej výstuže nosníka v železobetónových vencoch je oceľová výstuž vypustená z telesa nosníka minimálne v dĺžke 8 cm. Stropné nosníky určené na najväčšie rozpätia sú dodatočne zosilnené priestorovou priehradovou výstužou umiestnenou v strednej časti prierezu stropného nosníka.
Stropné vložky
Stropné vložky stropných systémov môžu byť vyrobené z vibrolisovaného betónu, keramiky, polystyrénu, plastu alebo z lisovaného dreva vo forme strateného debnenia. Na výrobu stropných vložiek na báze lisovaného dreva sa používa kvalitné bukové a smrekové drevo.
Ich výška je 8,5; 12,5 a 16,5 cm, čo zodpovedá výške debnenia 12, 16, respektíve 20 cm a umožňuje vyhotoviť stropy od hrúbky 16 cm do 26 cm. Šírka stropných výplní (vložiek, debnenia) je pevne daná a umožňuje uložiť stropné rebrá v osovej vzdialenosti po 59 cm pre skupinu stropných nosníkov RS 110 a po 59,5 cm pre skupinu stropných nosníkov RS 130. Dĺžka prvkov je 120 cm a ich hmotnosť je 5,2 kg; 6,1 kg a 6,4 kg. Výplne sú vyrobené systémom pero a drážka (približne 6 cm), čo značne zjednodušuje montáž, minimalizuje množstvo dorezov a odpadu. Vrchná časť jednotlivých prvkov je rebrovaná, krytie sieťoviny je zabezpečené integrovanými podložkami. Každá stropná vložka má predznačené vodiace línie najčastejšie používaných uhlov (300, 450 a 600), čo vo významnej miere uľahčuje rezanie jednotlivých prvkov napríklad pri potrebe vytvorenia úkosov alebo zaoblení.
Obr. 1 Rez stropným nosníkom RS 111/112 a RS 113
Obr. 2 Rez stropnými nosníkmi RS 114 a RS 115
Obr. 3 Rez stropnými nosníkmi RS 136 a RS 138
Výstuž pod priečkami a stĺpikmi
Pod priečky rovnobežné s osou nosníkov sa odporúča použiť dva nosníky vedľa seba v takzvanom dvojitom ukladaní. V prípade priečok so zaťažením vyšším ako je 2,5 kN/m2 treba vykonať dôslednú analýzu zaťaženia a únosnosti stropného rebra. V prípadoch umiestnenia priečok:
- kolmo k stropným rebrám – treba zohľadniť zaťaženie stropných rebier silami spolupôsobiacimi v bodoch umiestnenia samotnej priečky na rebrá stropu,
- rovnobežne so stropným rebrom – pod priečku treba navrhnúť zosilnené stropné rebro. V danom mieste sa nosník zdvojí (dvojité ukladanie) alebo strojí (trojité ukladanie), alebo sa použije iné vhodné riešenie za predpokladu, že na bezprostredne zaťažené stropné rebro pripadá 50 % hmotnosti priečky a na susedné rebrá po 25 % jej hmotnosti.
Obdobným spôsobom možno analyzovať a vyhotoviť vystuženie stropu, na ktorý bodovo pôsobí napríklad stĺpik konštrukcie krovu. V prípade nadmerného bodového zaťaženia pôsobení stĺpika na strop bude nevyhnutné v danom mieste zvážiť naprojektovanie železobetónového nosníka vo forme prievlaku, prípadne oceľového nosníka zvyčajne ukrytého vo výške stropnej dosky.
Oceľová výstuž a armovacia sieťovina
Rebierkový stropný systém vyžaduje dodatočné vystuženie v hornej časti v oblasti podpier v súvislosti s pôsobením záporných momentov. V prípade voľného uloženia musí byť táto výstuž schopná preniesť najmenej 0,15 Mo (kde Mo – medzipodporový moment).
V prípade stropných rebier vo dvojitom, respektíve v trojitom ukladaní treba strop pri podperách vystužiť na záporné momenty vyplývajúce zo statiky stropného systému, hodnota však nesmie byť menšia ako 0,45 – 0,65 Mo.
V praxi sa používa ohnutá výstuž pri krajných podperách a rovné výstuže pri stredových podperách (nosníky susedných polí uložené v rovnakom smere) s priemerom 8 až 14 mm (v zmysle výpočtu, a to v závislosti od spôsobu ukladania nosníkov a výšky nadbetonávky) z ocele A III N. Tieto prúty sa ukladajú po jednom kuse (v niektorých prípadoch aj po dvoch kusoch) nad koncom každého nosníka a priviažu sa drôtom z vrchnej strany k armovacej sieťovine. Armovacia sieťovina a oceľová výstuž sú neoddeliteľnou súčasťou stropného systému. Armovacia sieťovina sa kladie na integrované dištančné podložky, ktoré zabezpečujúce optimálnu výšku krytia, s preložením minimálnej vzdialenosti jedného oka sieťoviny. Uvedený postup vylučuje potrebu vykonania deliacich rebier, pričom s lepším rozložením lineárneho a bodového zaťaženia pôsobiaceho na strop sa zvýši pevnosť stropnej dosky. V praxi sa najčastejšie používa armovacia sieťovina s Ø 4 mm s okami 15 × 15 cm alebo sieťovina s Ø 5 mm s okami 20 × 20 mm.
Stužujúce vence
Na všetkých obvodových a vnútorných nosných múroch postavených kolmo na os alebo rovnobežne s osou stropných nosníkov sa odporúča vyhotoviť stropné vence. Ich výška nesmie byť menšia, ako je hrúbka stropu, a ich šírka musí byť minimálne 10 cm. Výstuž vencov sa musí skladať najmenej zo 4 prútov s Ø 10 mm spojených strmienkami z drôtu s Ø 5 mm vo vzdialenostiach každých 25 cm. V praxi (pokiaľ neexistujú iné odporúčania) sa najčastejšie používajú štyri prúty s Ø 12 mm so strmienkami s Ø 6 mm každých 25 cm.
V prípadoch veľkých rozpätí, úzkych nosných múrov alebo múrov vyhotovených z materiálov s nízkou pevnosťou sa odporúča vyhotoviť znížené vence. Zníženie venca musí byť minimálne 4 cm od spodnej hrany stropnej vložky tak, aby sa dolné prúty venca umiestnili pod konce stropných nosníkov. V prípade použitia vencov s výškou rovnajúcou sa hrúbke stropu na pomerne úzkych nepriamych stenách je prípustné použiť trapézový alebo trojuholníkový veniec (obr. 4). Prípustné je aj nadmurovanie hornej plochy stien z troch vrstiev plnej tehly alebo vytvorenie terčov z cementovej malty na ich spevnenie a vyrovnanie. Mimoriadne výhodné sa zdá byť použitie betónových alebo keramzitovo-betónových vencových tvárnic v tvare písmena L, ktoré umožňujú znížiť veniec bez použitia dodatočnej montážnej podpery a vylučujú potrebu debnenia venca. Všetky vence sa musia zaliať súčasne so stropom betónom rovnakej triedy, ako sa realizovala vrstva nadbetonávky.
![]() |
![]() |
| Obr. 4 Príklad venca a) trapézový, b) trojuholníkový |
|
Montáž stropu
Ukladanie stropných nosníkov
Stropné nosníky sa ukladajú v zmysle montážneho výkresu jeden vedľa druhého. Opierajú sa na protiľahlé múry, debnenia prievlakov a montážne podpery. Pri samotnom ukladaní nosníkov na nosné múry sa musia bezpodmienečne dodržať minimálne dĺžky ukladania nosníkov v závislosti od druhu použitého murovacieho materiálu:
- 2 cm – uložené na betónových prievlakoch,
- 5 cm – uložené na keramickom murive,
- 7 cm – uložené na murive z pórobetónu alebo na staršom murive (rekonštrukcie).
Správna osová vzdialenosť stropných nosníkov sa vymedzuje uzávermi stropných vložiek, ktoré sa kladú na koniec nosníkov.
Umiestnenie montážnych podpier
Pred samotným ukladaním stropných vložiek treba nosníky dôkladne podoprieť kvalitnými montážnymi podperami. V závislosti od konkrétnych prípadov realizácie sa montuje jedna alebo dve montážne podpery. Odporúčaný prierez pásu podpery (napríklad dreveného hranola) je 7 × 14 cm. Pás sa podoprie stojkami tak, aby stredové navýšenie nosníka bolo oproti koncom uloženým na múre (debnení) rovné hodnote L/500, pričom L = svetlosť miestnosti (napríklad: svetlosť miestnosti je 500 cm, stredové navýšenie sa potom rovná hodnote 500/500 = 1 cm). Rozstup podpier závisí od prierezu pásu podpery a mal by sa pohybovať v rozpätí od 1,2 do 1,8 m.
Ukladanie stropných vložiek
Po riadnom podopretí stropných nosníkov možno začať s ukladaním stropných vložiek. Ako prvé sa položia krajné stropné vložky so stranou zapadajúcou do krycieho prvku. Ďalšie stropné vložky v rade sa ukladajú systémom pero a drážka s presahom od 1 cm do 6 cm (vôľa pri kladení). Posledná stropná vložka v danom rade sa otočí o 180° tak, aby zapadla do uzáveru stropnej vložky (krycieho prvku) na druhom konci nosníka.
V prípade chýbajúcej časti, ktorá je menšia ako samotná stropná vložka, sa táto doplní odrezaním vložky na požadovanú vzdialenosť, pričom sa rez vedie v jej hornej časti. Miesto rezu možno regulovať posunom vložiek na prerodrážke (obr. 5).
Obr. 5 Schéma montáže stropu
1 – rozložia sa krycie prvky, ktoré vymedzia osovú vzdialenosť nosníkov, 2 – uložia sa prvé krajné stropné vložky stranou zapadajúcou do krycieho prvku, 3 – ďalšie stropné vložky sa ukladajú systémom pero a drážka s presahom do 6 cm, 4 – posledná stropná vložka sa otočí o 180° tak, aby zapadla do krycieho prvku na druhom konci nosníka, 5 – prípadné medzery v strednej časti sa doplnia odrezaním stropnej vložky na požadovanú vzdialenosť. Rez sa vedie v hornej časti vložky, pričom miesto rezu možno regulovať posunom vložiek na perodrážke.
Na skracovanie stropných vložiek sa používa píla na drevo. Skracovanie sa realizuje ručne alebo mechanicky aj po niekoľkých kusoch naraz. Rezy treba viesť v hornej časti výplne, zvyšková odrezaná časť je vhodná na ďalšie použitie, pokiaľ nie je kratšia ako 20 cm.
V prípade osových vzdialeností medzi nosníkmi menšími ako je štandardná osová vzdialenosť sa stropná vložka odreže v jej pozdĺžnom smere, pričom zrezaná hrana sa oprie do ďalšieho nosníka v miernom sklone. Po dĺžke odrezaná stropná vložka sa musí opierať na stene originálnou (nezrezanou) stranou. Otvory v strope sa realizujú dlátom, vŕtačkou, priamočiarou pílou alebo použitím píly – dierovky.
Vystuženie stropu
Na celej ploche stropu s výnimkou stropných otvorov sa rozloží sieťovina v zmysle plánu kladenia (najčastejšie s Ø 5 mm s okami s rozmerom 20 × 20 cm) so založením minimálne na jedno oko. Sieťovina musí zasahovať do venca aspoň 15 cm. Koniec každého stropného nosníka sa ukončí pri venci nadol ohnutým kotviacim prútom (roxorom). Susedné polia sa spoja rovnými prútmi. Výstuž sa pripevní k armovacej sieťovine viazacím drôtom.
Betonáž stropu
Na betonáž stropu sa používa betón triedy C 20/25 (B 25). Betonáž musí byť rovnomerná a neprerušovaná, pričom sa treba vyhýbať nahromadeniu betónu na jednom mieste. V letných horúcich mesiacoch treba strop pred samotnou betonážou navlhčiť. Montážne podpery možno odstrániť po dosiahnutí 85 % pevnosti betónu, čo je približne po troch týždňoch.
Podhľadový systém
Na vyhotovený stropný systém možno montovať podhľadový systém. Všetky inštalácie sa zvyčajne ukryjú v stropnej konštrukcii. V praxi sa dajú použiť všetky komerčne dostupné systémy upevnenia závesných podhľadových systémov, ktoré sa pripevnia nad pätku nosníka, do bočnej časti stropného rebra alebo priamo do nadbetonávky (v mieste profilovaných rebier panelu). Pri montáži ukotvenia podhľadov treba dbať na to, aby sa neprevŕtali samotné stropné nosníky.
Uplatnenie stropných vložiek
Stropný systém s vložkami na báze ľahkej lisovanej drevnej štiepky sa uplatnil aj na realizáciu stropov rodinných domov (obr. 6 až 9).
Obr. 6 Ukladanie stropných vložiek na predpäté nosníky, rodinný dom v Dražkovciach
Obr. 7 Strop rodinného domu v Borskom Mikuláši – ako prvé sa položia krajné stropné vložky so stranou zapadajúcou do krycieho prvku. Ďalšie stropné vložky v rade sa ukladajú systémom pero a drážka s presahom od 1 cm do 6 cm.
Obr. 8 Oceľové prúty výstuže sa ukladajú po jednom kuse (v niektorých prípadoch aj po dvoch kusoch) nad koncom každého nosníka a priviažu sa drôtom z vrchnej strany k armovacej sieťovine s presahom od 1 cm do 6 cm.
Záver
Očakávania trhu so stavebnými materiálmi nie je jednoduché napĺňať. Stropné vložky vyrobené z ľahkej lisovanej drevnej štiepky predstavujú riešenie, ktoré je odpoveďou na dopyt po alternatívnych materiáloch. Svojou nízkou hmotnosťou je stropný systém s uplatnením stropných vložiek na báze drevnej štiepky vhodný aj na rekonštrukcie stavebných objektov. Nízka hmotnosť zjednodušuje manipuláciu a zvyšuje rýchlosť ukladania, a teda celej realizácie.
TEXT: Ing. Róbert Rybár
OBRÁZKY a FOTO: RECTOR Slovakia
Ing. Róbert Rybár je manažérom spoločnosti RECTOR pre Slovenskú republiku.
Článok bol uverejnený v časopise Stavebné materiály.




















