Keramické stropy
Neoddeliteľnou súčasťou systému pre hrubú stavbu sú tiež prvky na realizáciu stropných konštrukcií. Ide prevažne o polomontované stropy z nosníkov a vložiek, ktoré sa v závislosti od výrobcu líšia v určitých detailoch.
Keramické stropy MIAKO pozostávajú z keramických stropných vložiek a keramicko-betónových stropných nosníkov vystužených zváranou priestorovou výstužou. Najčastejšie sú súčasťou stropných konštrukcií bytových a občianskych stavieb, ale možno ich použiť aj v priemyselných a poľnohospodárskych objektoch. Tento typ stropov je variabilný, s možnosťou použitia aj pri členitých a nepravidelných pôdorysoch miestností. Po doplnení výstuže ich možno použiť aj ako spojité nosníky alebo na vytvorenie konzol napríklad balkónov a schodiskových podest. Nie sú ale vhodné do dynamicky namáhaných stavieb.Použitie keramických stropov má dve základné výhody: keramickými tvarovkami sa vytvára rovný podhľad, vhodný na následnú realizáciu omietky a zároveň vďaka dobrej akumulačnej schopnosti a schopnosti prijímať a uvoľňovať vlhkosť sa v miestnostiach vytvára zdravá mikroklíma, dôležitá na zabezpečenie zdravého a hygienicky neškodného bývania.
Z hľadiska požiarnej odolnosti sa tento typ stropnej konštrukcie (napríklad HELUZ MIAKO) radí podľa STN EN 13501-1: 2010 (Klasifikácia požiarnych charakteristík stavebných výrobkov a prvkov stavieb. Časť 1: Klasifikácia využívajúca údaje zo skúšok reakcie na oheň) do triedy A1 a stropná konštrukcia s vápenno-cementovou omietkou s hrúbkou 15 mm má požiarnu odolnosť REI 180 D1. Rovnako aj z hľadiska tepelnoizolačných a akustických parametrov sa tieto stropy hodia na bytovú zástavbu.
Opis konštrukcie
Stropnú konštrukciu tvoria keramické stropné vložky MIAKO a keramicko-betónové stropné nosníky vystužené zváranou priestorovou výstužou. Tieto stropné konštrukcie možno používať až do svetlého rozpätia miestností 8 000 mm, zároveň majú vysokú únosnosť a umožňujú jednoduchú (aj ručnú) manipuláciu a montáž na stavbe. Po montáži stropných nosníkov a stropných vložiek sa celý strop zmonolitňuje zabetónovaním.

Stropné vložky MIAKO sa vyrábajú v jednotnej dĺžke 250 mm s výškou 150 (obr. 2), 190 (obr. 3) a 230 mm (obr. 4). Zároveň sa vyrábajú vložky s doplnkovou výškou 80 mm (obr. 5), ktoré sa používajú tam, kde treba zvýšiť únosnosť stropnej konštrukcie napríklad v miestach prestupov a skrytých prievlakov. Stropné vložky sa vyrábajú pre osovú vzdialenosť nosníkov 500 a 625 mm. Nad stropnými vložkami sa musí vždy realizovať nadbetonávka hrubá 40 alebo 60 mm.
![]() |
![]() |
| Obr. 2 Keramická stropná vložka s výškou 150 mm |
Obr. 3 Keramická stropná vložka s výškou 190 mm |
![]() |
![]() |
| Obr. 4 Keramická stropná vložka s výškou 230 mm | Obr. 5 Keramická stropná vložka s doplnkovou výškou 80 mm |

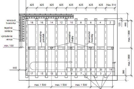
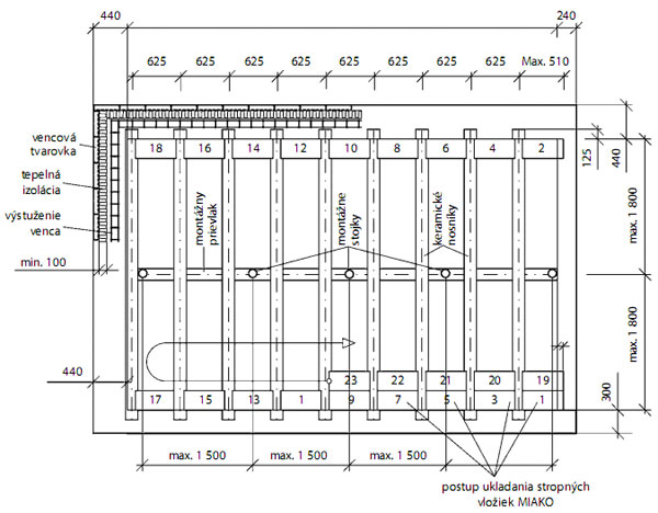
Obvodové stužujúce vence sa v prípade trámových stropov najčastejšie realizujú v úrovni stropnej konštrukcie. Na vonkajšie obmurovanie stropnej konštrukcie možno použiť keramické vencové tehly. Vencovými tehlami sa zo strany exteriéru vytvára jednotný tehlový podklad vhodný na následnú realizáciu povrchovej úpravy – omietky a spoločne s vloženým tepelným izolantom (napríklad polystyrénom minimálne s hrúbkou 100 mm) sa zabezpečuje požadovaná tepelná izolácia venca po celej hrúbke stropu (obr. 6).
Statický návrh stropnej konštrukcie
Vhodná výška stropnej konštrukcie sa navrhuje v závislosti od rozpätia a požadovaného zaťaženia stropnej konštrukcie. Každý výrobca tohto typu stropnej konštrukcie má vypracované tabuľky statických únosností stropov. Na základe požadovanej dĺžky svetlého rozpätia v miestnosti a základnej charakteristiky stropnej konštrukcie po zmonolitnení (to znamená celková výška konštrukcie H a osová vzdialenosť nosníkov B) sa priraďujú v statických tabuľkách hodnoty statických veličín stropnej konštrukcie, z ktorých najdôležitejšia je hodnota rovnomerného zaťaženia q v kN/m2 (bez vlastnej tiaže stropnej konštrukcie). Touto hodnotou možno stropnú konštrukciu zaťažiť tak, aby vyhovela na medzný stav únosnosti a na medzný stav použiteľnosti. Pri zostavovaní týchto tabuliek sa vychádzalo z predpokladu zaťaženia pre stále zaťaženie hodnotou g = 1,5 kN/m2 a pre úžitkové zaťaženie tiež hodnotou q = 1,5 kN/m2. To predstavuje celkové zaťaženie 3,0 kN/m2 (v súlade s STN 73 0035 ide o normové hodnoty, v súlade s STN EN 1991 ide o hodnoty charakteristické). V návrhových tabuľkách sa od okamihu, keď táto hodnota maximálneho prípustného zaťaženia stropnej konštrukcie klesne pod hodnotu 3,0 kN/m2, objavuje ešte jeden riadok s hodnotami platnými pri zdvojení nosníkov v konštrukcii. V tomto prípade sa odporúča pri návrhu stropnej konštrukcie zvoliť vyššiu hrúbku stropnej dosky. V súčasnosti prebiehajú prepočty typových výpočtov keramicko-betónových stropných konštrukcií vzhľadom na prechod na nové normy takzvané eurokódy, a preto sa odporúča sledovať aktualizácie týchto statických tabuliek.
Maximálne dovolené hodnoty rovnomerného zaťaženia sa odvádzajú z ohybového momentu únosnosti alebo z maximálneho dovoleného medzného pretvorenia pre konkrétne vystuženie a dĺžku jednotlivých nosníkov s ohľadom na spolupôsobiaci prierez po zmonolitnení. Od takto vypočítaného rovnomerného zaťaženia sa potom odpočíta vlastná hmotnosť stropnej dosky. Pri statickom výpočte sa berie do úvahy prostý nosník. Pre iné vstupné údaje (napríklad iné ako rovnomerné zaťaženie, zmena statickej schémy, zmena triedy betónu a podobne) treba vykonať individuálne statické posúdenie.
Princíp týchto stropov umožňuje vytvorenie železobetónových skrytých prievlakov v stropnej konštrukcii, prievlakov viditeľných, spriahnutých so stropnou konštrukciou alebo, naopak, prievlakov s nadbetónovaným železobetónovým rebrom, alebo ich vzájomnou kombináciou. Prievlaky možno vytvoriť v smere pnutia stropných nosníkov, ako aj kolmo na smer pnutia s využitím nízkych stropných vložiek s výškou 80 mm.
V prípade stropnej konštrukcie so svetlým rozpätím väčším ako 6 000 mm sa odporúča realizovať v strede rozpätia stužujúce železobetónové rebro so šírkou 250 mm, to znamená na dĺžku jednej vložky MIAKO, a to použitím nízkych stropných vložiek s výškou 80 mm, konštrukčne vystužených betonárskou oceľou 4 ∅ 10 mm a strmienkami ∅ 6 mm vo vzdialenosti a´ = 400 mm.
V prípade použitia oceľových prievlakov v stropnej konštrukcii sa na zabezpečenie lepšieho spolupôsobenia oceľových prievlakov s nadbetonávkou stropnej konštrukcie odporúča na oceľové prievlaky privariť tŕne zasahujúce do nadbetonávky, poprípade realizovať návrh prievlaku ako oceľobetónového nosníka. Pokiaľ sa v stropnej konštrukcii použili prievlaky, treba posúdiť murivo na sústredené zaťaženie. Predovšetkým oceľové prievlaky by sa mali uložiť na murivo použitím roznášacích blokov z betónu s pevnosťou minimálne C16/20-XC1 a rozmermi asi 300 × 500 mm a výškou minimálne 150 mm.
Ukladanie stropných nosníkov
Nosníky sa ukladajú na zarovnané obvodové a vnútorné nosné murivo alebo na železobetónový veniec. Dĺžka uloženia nosníkov na nosnom murive musí byť minimálne 125 mm. Treba sa riadiť viditeľnou dĺžkou vyčnievajúcej priehradovej výstuže. Murivo sa zarovnáva cementovou maltou do hrúbky 10 mm alebo sa realizuje vyrovnávacia vrstva z betónovej mazaniny. Na takto zarovnané murivo sa pred uložením keramicko-betónových nosníkov položí ťažký asfaltový pás napríklad s hrúbkou 3,5 mm. Toto odporúčanie vychádza zo súčasného stavu poznania a spôsobov správania jednotlivých prvkov v konštrukcii, a to z poznatkov overených v praxi, ale aj z poznatkov súvisiacich s rozvojom jednotlivých odborov v stavebníctve.


Stropné nosníky treba ihneď po uložení na murivo v montážnom štádiu podoprieť, a to líniovými podperami vytvorenými napríklad z vodorovných drevených hranolov alebo z trámov systémového debnenia. Vzdialenosť medzi podperami navzájom alebo medzi podperou a nosným murivom môže byť maximálne 1 800 mm. Tieto líniové podpery sa musia podoprieť stĺpikmi vo vzdialenosti maximálne 1 500 mm, poprípade celá podperná konštrukcia sa musí navrhnúť výpočtom. Podperné stĺpiky, teleskopické alebo podložené dvoma klinmi z dôvodu ich ľahkej demontáže, sa musia zavetriť. Pri realizácii stropov súčasne vo viacerých podlažiach musia stáť podperné stĺpiky zvislo nad sebou. Od určitých rozpätí v závislosti od hrúbky stropnej konštrukcie sa odporúča stropné nosníky nadvýšiť (tab. 1)

Ukladanie stropných vložiek
Stropné vložky MIAKO, ktoré majú pre všetky typy stropných konštrukcií rovnakú dĺžku 250 mm, sa ukladajú nasucho na stropné nosníky. Najskôr sa uložia vložky po jednom rade na obidvoch koncoch nosníkov, čím sa vymedzí osová vzdialenosť nosníkov. Potom sa postupne ukladajú stropné vložky v radoch tak, aby bola práca plynulá. Stropné vložky sa vždy ukladajú v smere pozdĺžnej osi nosníkov (obr. 11). Odporúčaná hodnota minimálneho uloženia stropných vložiek na nosnom murive z bočnej strany je 25 mm (obr. 8a, b).
Obr. 11 Ukladanie nosníkov a betonáž stropu
Celkové rovnomerné (plošné) zaťaženie nezabetónovaných vložiek nesmie presiahnuť hodnotu 1,5 kN/m2, okrem vložiek s výškou 80 mm, ktoré sa nesmú vôbec zaťažovať. Na zabezpečenie roznesenia lokálneho zaťaženia (napríklad kolesom stavebného fúrika) treba na stropnú konštrukciu položiť pojazdové dosky s minimálnou hrúbkou 24 mm. Dosky sa majú podoprieť nad stropnými nosníkmi.
Ukladanie vencových tehál
Vencové tehly sa murujú na vonkajšom okraji stropu, najlepšie až po uložení stropných dielcov. Vo vodorovnom smere sa ukladajú k sebe na pero a drážku. Po vymurovaní vencových tehál sa k nim z vnútornej strany prikladá nasucho rovnako vysoký pás tepelného izolantu, ktorý sa pri vencových tehlách zafixuje maltou v spodnej časti. Na trhu sa nachádzajú aj vencové tehly, na ktorých je izolant už priamo nalepený. Medzi izolant a uložené prefabrikované prvky stropnej konštrukcie sa vloží výstuž stužujúceho venca. Odporúča sa asi každú tretiu vencovú tehlu zafixovať ohnutým drôtom pripevneným k výstuži venca a jeho zaháknutím zhora do otvoru vencovej tehly na zvýšenie tuhosti vonkajšej predmurovky (zabezpečenie proti vytlačeniu betónom pri betonáži). Pri betonáži treba zabezpečiť minimálne krytie výstuže v hrúbke 20 mm.
Betonáž
Betonáž možno začať až po uložení všetkých stropných vložiek, potrebnej výstuže navrhnutej do nadbetonávky, a to vrátane výstuže vencov, stropných nosníkov – výmen, príložiek, prievlakov a podobne (obr. 9). Pri oceľových prievlakoch sa musí realizovať spriahnutie s nadbetonávkou a v závislosti od typu schodišťa realizácia prípravy na uloženie schodišťového ramena. V súlade s ďalšími výkresmi treba osadiť napríklad chráničky, prípadne kotvenie nadväzujúcej konštrukcie (zábradlie, krov a podobne), uložiť elektroinštaláciu.
![]() |
![]() |
| Obr. 9 Vytvorenie skrytého prievlaku v stropnej doske | Obr. 10 Betonáž stropu |
Pred samotnou betonážou sa musí celá plocha stropu dôkladne navlhčiť z dôvodu dobrej priľnavosti betónu a čo najmenšieho sania zámesovej vody z betónovej zmesi. Na betónovanie sa používa betón triedy C16/20 dostatočne mäkkej konzistencie. Pri betonáži stropov treba zároveň betónovať nosné rebrá, ako aj stužujúce vence s nadbetonávkou.
Vzduchové dutiny v stropných vložkách nie je nutné uzatvárať proti zatekaniu betónu, pretože zatečenie je minimálne. Pri betonáži stropov treba zabrániť miestnemu hromadeniu betónu, čerstvý betón sa nesmie nanášať voľným pádom, ale napríklad ležiacou hadicou. Ukladanie betónu sa realizuje plynulo za súčasného hutnenia.
Pri betonáži stropov sa postupuje v pruhoch, a to v smere rovnobežne s pozdĺžnou osou nosníkov (obr. 10, 11). Prípadnú pracovnú škáru možno realizovať iba medzi nosníkmi v strede stropných vložiek. Pracovná škára nesmie prechádzať betónovými rebrami nad nosníkmi. Pri extrémnych poveternostných podmienkach treba prijať zvláštne opatrenia. Počas betonáže v zime sa nesmie na povrchu dielcov a výstuže nachádzať ľad a námraza. Teplota povrchu keramických tvaroviek a výstuže nesmie klesnúť pod 5 °C.
Po zabetónovaní stropných dosiek treba betón ošetrovať v súlade s ustanoveniami STN EN 13670-1: 2010 (Zhotovovanie betónových konštrukcií, Časť 1: Spoločné ustanovenia) a STN EN 206-1: 2002 (Betón. Časť 1: Špecifikácia, vlastnosti, výroba a zhoda). Ďalej treba dodržiavať ustanovenia STN 732400, aj napriek tomu, že norma už nie je platná, odporúčania o ošetrovaní čerstvého betónu zostávajú v platnosti. Veľmi dôležité je udržiavať betón v dostatočne vlhkom stave až do jeho riadneho zatvrdnutia. Podpery nosníkov možno odstrániť, až keď betón dosiahne normou stanovenú pevnosť. (Podpernú konštrukciu možno odstrániť najskôr po troch týždňoch, respektíve po dosiahnutí 80 % konečnej požadovanej pevnosti betónu, použitého na zabetónovanie stropu posledného podlažia) Pri odstraňovaní podpier sa postupuje od horného podlažia k spodnému.
TEXT: Ing. Zuzana Hejlová
FOTO: HELUZ
Ing. Zuzana Hejlová je produktovou techničkou firmy HELUZ cihlářsky průmysl, v. o. s.
Článok bol uverejnený v časopise Stavebné materiály.


















