Strešné balkóny
Podkrovný priestor možno otvoriť a vpustiť do jeho vnútra ešte viac svetla a čerstvého vzduchu použitím strešných balkónov. Ide o riešenie vhodné aj v prípade podkrovia, ktorého dispozičné riešenie neumožňuje realizovať klasickú balkónovú konštrukciu. Panoramatický výhľad a dotyk slnka sa tak v podkroví stávajú realitou.
V rámci rekonštrukcie kancelárskych priestorov na Michalskej ulici v Bratislave (v súčasnosti už prenajatých), za ktorými stojí taliansky investor, sa mala realizovať aj rekonštrukcia strechy. Na presvetlenie podkrovného priestoru boli pôvodne navrhnuté jednoduché strešné okná. Počas realizácie vyslovil investor s navrhovaným riešením nesúhlas.Dôvodom jeho negatívnej reakcie boli strešné okná príliš malé na to, aby umožnili výhľad na Bratislavský hrad, nachádzajúci sa v blízkosti budovy. Počas realizácie tak došlo k zámene strešných okien za zostavy strešných balkónov. Zostava strešných balkónov okrem možnosti vychutnať si výhľad na Bratislavský hrad priniesla aj omnoho väčšie presvetlenie kancelárskych priestorov, čo výrazne prispelo k zatraktívneniu priestoru.
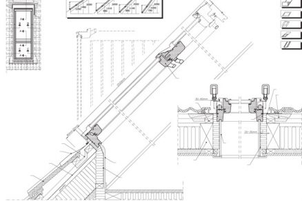
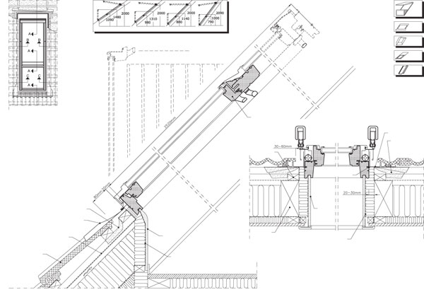
Strešný balkón predstavuje efektné riešenie, ak dispozícia podkrovia neumožňuje postaviť klasický balkón. Skladá sa z okna s veľkým rozsahom otvárania hornej a dolnej zasklenej časti s výsuvným zábradlím, ktoré sa jednoduchým spôsobom vyklopí smerom von. Vznikne tak dostatočný otvorený priestor, ktorý umožňuje neobmedzený prístup a výhľad. Strešný balkón možno inštalovať do strechy so sklonom od 35° do 53°. Jeho výhodou je, že nevyžaduje žiadne stavebné úpravy či zabudovanie do podlahy, pretože sa priamo integruje do strechy. Pri zatvorenej polohe splýva so strechou ako každé iné strešné okno a dá sa osadiť v kombinácii s ďalšími strešnými oknami.
Horná časť sa ovláda pomocou kľučky a môže sa vyklopiť až do uhla 45°. V hornej časti okna sa nachádza ventilačná klapka so vzduchovým filtrom, ktorá zabezpečí vetranie aj pri zatvorenom okne. Strešné okno sa dá pretočiť o 160° a v tejto polohe bezpečne zaistiť západkou. To zjednodušuje jeho údržbu.
Spodné krídlo strešného balkóna s bočným zábradlím sa vysúva smerom von pomocou dvoch držadiel. Po vysunutí sa zaistí bezpečnostná poistka. Tým vzniká priestor na pohodlné a bezpečné státie. Bezpečnosť strešného balkóna zaisťujú zámky na spodnej a hornej časti okna.
Drevené časti okna sú ošetrené dvojvrstvovým lakovaním s impregnáciou. Zasklenie je realizované bezpečnostným energeticky úsporným dvojsklom alebo dvojsklom proti hluku a prehrievaniu.
TEXT: Andrea Dingová v spolupráci so spoločnosťou VELUX
OBRÁZKY a FOTO: VELUX SLOVENSKO
Článok bol uverejnený v časopise Stavebné materiály.










