Oprava veží piaristického kostola v Trenčíne s odstupom 9 rokov
Stavebníci, rehoľníci z Kolégia piaristov, sa priamo nezúčastňovali na stavebných prácach spojených s rekonštrukciou veží piaristického kostola v Trenčíne. No napriek tomu proces celej opravy možno ako pozitívny príklad zaradiť do učebníc projektového riadenia obnovy sakrálnych stavieb. Po deviatich rokoch od obnovy sme sa pozreli do Trenčína so zámerom zistiť, ako sa konštrukcia správa, kde sa prejavujú prípadné chyby a čo všetko oprava so sebou priniesla.
Záverečné zhrnutie namiesto úvoduTento proces obnovy sa vymyká tradičnému spôsobu prípravy a realizácie stavebného diela v slovenskom časopriestore. Odborne zdatný zhotovovateľ získal hodnotnú referenciu, zo strany objednávateľa bol explicitne zvládnutý controlling a neplytvalo sa finančnými zdrojmi. Ani pri podrobnej prehliadke kupol veží sme nespozorovali konštrukčné chyby, čoho dôsledkom je výborný technický stav bez náznakov deformácií, zatekania či únavy materiálov. Exempla trahunt.
1. Projektové riadeniePiaristický Kostol sv. Františka Xaverského v Trenčíne je jedným z najvýznamnejších klenotov barokovej architektúry na Slovensku. Dvojvežové priečelie pochádza z roku 1674, po požiari v r. 1708 boli veže prestavané a znížené do súčasnej podoby (obr. 1). Hlavným podnetom na obnovu kupol veží bol v r. 2000 vizuálny pohľad na naklonený dvojkríž umiestnený na vrchole jednej z veží. Bližšou obhliadkou sa zistilo rozsiahle poškodenie a havarijný stav.
Stavebníci sa vydali cestou striktného dodržiavania princípov projektového riadenia, čo bola v danom období cesta tŕnistá. Výsledok však dosvedčuje, že to bola cesta správna.
Prvým predpokladom úspechu je vhodné personálne obsadenie. Rehoľa piaristov nedisponovala vo vlastných radoch odborne zdatnou osobou, a preto vytvorila pozíciu zástupcu objednávateľa na rokovanie vo veciach technických, v ktorej sa ocitol pán Ladislav Nebus. S cieľom zvládnuť každú technickú komplikáciu a vyriešiť každý konštrukčný detail prijal pozíciu konzultanta profesor J. Oláh, prirodzená autorita v tejto špecializácii. Tak sa naplnil dôležitý aspekt projektového riadenia – odborné personálne zázemie.
Finančné zdroje bývajú pálčivým problémom. Neobišli ani toto dielo. Celý proces obnovy veží bol podporovaný a financovaný výhradne zo súkromných zdrojov (obyvateľov, návštevníkov a darcov). Ministerstvo kultúry SR, Mesto Trenčín, tretí sektor ani iné organizácie na obnovu neprispeli. Aj tu vidieť, kto mal a kto nemal záujem o obnovu tejto národnej kultúrnej pamiatky. Popritom je smutné, že pri obnove obdobných pamiatok sa musia správcovia, resp. majitelia doprosovať odpustenia rôznych poplatkov spojených so stavebným konaním a výstavbou, namiesto toho, aby štát a samosprávy proaktívne podporovali takéto úsilie.
Časové trvanie stavebných prác bolo naplánované na sezónu 2002. Práce sa začali realizovať v marci 2002 a boli ukončené v septembri 2002. Harmonogram prác bol zvládnutý.

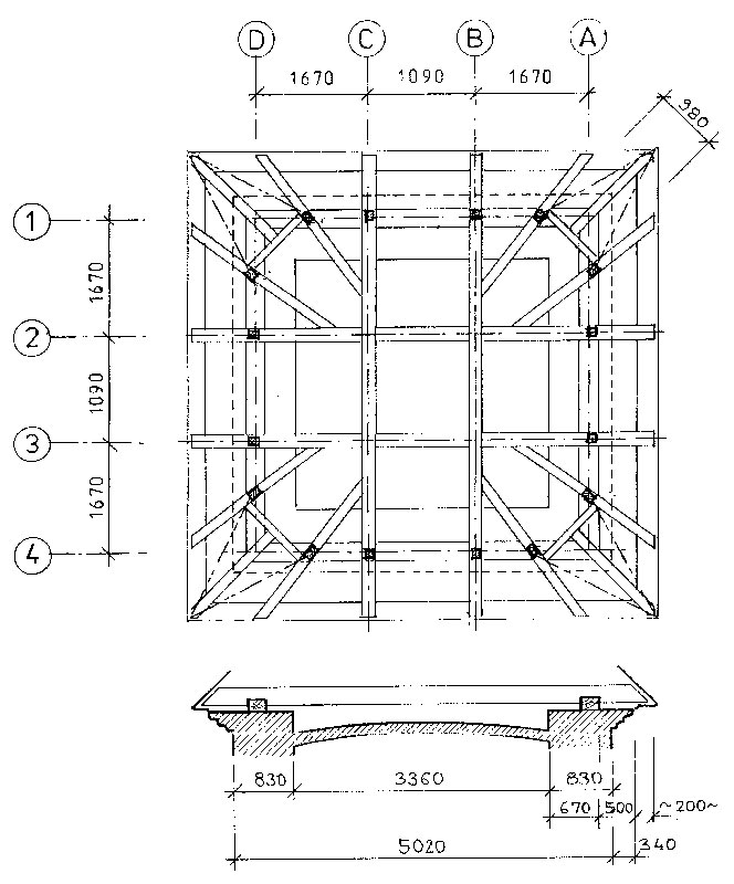
Najdôležitejšou vstupnou informáciou pri takomto type stavby je presné zadokumentovanie existujúceho stavu, určenie rozsahu poškodenia krytiny a ozdôb. Toto sa uskutočnilo horolezeckou obhliadkou. Každá veža bola rozdelená na štyri segmenty, ku ktorým sa vyhotovila príslušná fotodokumentácia. Následne prebehla statická analýza nosnej konštrukcie vrátane zohľadnenia dynamického zaťaženia zvonmiv (najťažší zvon 1 600 kg) a zostavenie čo najpresnejšieho výkazu výmer materiálov. Hlavným rizikom pri tejto problematike je správne definovanie rozsahu potrebných stavebných prác (krytina – latovanie – nosné prvky, pozri obr. 2). Kalkulovanie s najhorším scenárom z hľadiska rozpočtových nákladov zachraňuje stavbu pred rôznymi provizóriami a polovičnými riešeniami. Celková príprava na realizačnú fázu trvala dva roky.

Výber zhotovovateľa má na kvalitu diela podstatný vplyv. Bol prísny, a férový zároveň. Obstarávateľa napríklad nezaujímalo, koľko materiálu zhotovovateľ na stavbu prinesie, ale koľko z neho reálne zabuduje. Faktúry sa uhrádzali výhradne na zabudované výmery stavebných materiálov. Pri takomto spôsobe tvorby ceny sa vylúčilo neefektívne nakladanie s materiálom (napr. nadmerný odpad medi, dubového dreva a ďalšie) a zhotovovateľ bol zároveň nútený pracovať čo najhospodárnejšie. Ďalším nemenej dôležitým faktorom bola požiadavka na exaktný menoslov remeselníkov. Tým sa eliminujú „nádenníci“, subdodávatelia z x-tého radu a iní brigádnici, ktorí sú výrazným rizikovým faktorom. Požiadavka vyhnúť sa vulgarizmom je úsmevne prirodzená (zmienka o trvaní na nej [2]), zákaz fajčenia a konzumácie alkoholu je nevyhnutný (práca vo výškach, komínový efekt veží, požiarne riziko). Oceniť možno aj fakt, že výsledná ponuková cena nebola pri výbere najpodstatnejším kritériom.
Objednávateľ nenechával nič na náhodu a pri výberovom konaní požadoval od vybratého zhotovovateľa ešte pred podpísaním ZoD vypracovanie technologického postupu demontážnych a montážnych prác vrátane klampiarskych podrobností. Požiadavkou bolo takisto dodanie dubového dreva preukázateľne ťaženého v nadmorskej výške minimálne 300 m (so špecifikáciou polesia a podmienkou termínu ťažby iba v mesiacoch december a/alebo január), mäkkého dreva pochádzajúceho z nadmorskej výšky najmenej 700 m, dodanie certifikátu tavby medených plechov a ďalšie podobné požiadavky. Pri zámere, resp. cieli objednávateľa dosiahnuť životnosť diela 300 rokov a viac sú tieto požiadavky racionálne.

4. Východiskový stav
Každá veža pozostáva z dvoch častí:
a) spodnej, murovanej; tá je štvorcového pôdorysu a murivo je ukončené asi 1 m nad pätou tehlovej klenby,
b) hornej, ktorá je tvorená konštrukciou zastrešenia s ozdobami – 8-hranné kupoly, cibule, makovica, dvojkríž.

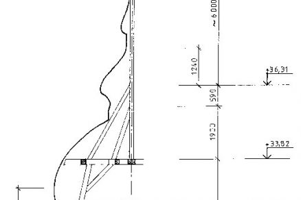
Kupoly veží kostola „ponúkali“ na začiatku obmedzený prístup, prach, absenciu preventívnej údržby veží, nevyhovujúci stav bleskozvodov, mechanické poškodenia strešných krytín (vietor, strelné zbrane, horolezci, vek krytiny, dodatočná neodborná montáž bleskozvodov). V minulosti pravdepodobne nezodpovední fotografi s vidinou kvalitného záberu prestrihali na oboch vežiach pletivové otvory určené na vetranie. Následne sa do kupol nasťahovalo veľké množstvo holubov, ktoré tam vytvorili asi 30-centimetrovú vrstvu agresívneho trusu. Toto spolu so zatekaním dažďovej vody významným spôsobom devastovalo konštrukciu krovu, najmä spodného roštu (obr. 6). Vizuálny pohľad na vychýlený dvojkríž na jednej veži bol prejavom zatekania okolo dvojkríža a súvisiaceho hnitia vrcholového stĺpa. Kráľovský stĺp na druhej veži bol okrem zatečenia aj obhorený, pravdepodobne úderom blesku.
5. Realizácia
Po demontáži krytiny sa potvrdil predpoklad, že treba kompletne vymeniť debnenie vrátane celej nosnej časti krovu. Niektoré nosné prvky boli v zachovalom stave, avšak zhotovovateľ sa so stavebníkom rozumne dohodli na kompletnej výmene nosných prvkov. Kombinovať zložitým napojovaním pôvodné drevo s novými časťami je nerozumné z hľadiska životnosti konštrukcie. Celá konštrukcia zastrešenia bola len voľne položená na obvodových múroch, ktoré vykazovali zjavné znaky zvetrania. V čase jej výstavby neboli poznatky o ŽB vencoch, a preto sanácia veží zahŕňala aj opravu ríms a vytvorenie vencov. Vysvetliť opodstatnenosť týchto úprav pamiatkarom znamenalo tiež isté úsilie.
![]() |
![]() |
| Obr. 6 Spodný trámový rošt po vyčistení od trusu [8] | Obr. 7 Stolárska výroba verných kópií [8] |

Všetko drevo použité v kupolách bolo penetrované ochranným kúpeľom proti hnilobe aj proti biologickým škodcom, a to vrátane všetkých rezov vykonaných pri montáži. Drevené prvky krovu sú dilatované od betónu, muriva a omietok fóliou tak, aby sa zamedzilo prestupu vlhkosti do dreva (obr. 8). Vo vzdialenostiach po približne 1 m sú po celej šírke pomúrnic (260/160) podložené dištančné dubové podložky hrubé 10 mm, ktoré prispievajú k prevetrávaniu. Spájanie nosných drevených prvkov je realizované dubovými kolíkmi.
Dvojkríž
Dôležitou časťou strechy je dvojkríž. Ten bol demontovaný a povrchovo upravený. Najprv bol od korózie očistený pieskovaním a následne sa naň naniesla pozinkovaná ochranná vrstva s krycím náterom polyuretánovou čiernou farbou vypálenou v peci. Dvojkríž má v detaile nad jeho zapustením do kupoly dodatočne navarenú odkvapovú kovovú striešku so sklonom približne 45°, presahujúcu o 10 pôdorysných cm miesto ukončenia krytiny z Cu okolo dvojkríža. Táto odkvapová strieška však mohla byť umiestnená o niečo nižšie, čím by sa dosiahlo lepšie prekrytie rizikového miesta (obr. 9). Dvojkríž je osadený do kráľovského stĺpa, ktorý je vystužený zo štyroch strán v ňom zadlabanou pásovinou 30/5 po celej výške stĺpa. Pri vrchole stĺpa sú osadené dve natesno narážané kované objímky, ktoré zamedzujú prasknutiu stĺpa po narazení hrotu dvojkríža. Tým je zabezpečené, aby sa dvojkríž pri vetre priveľmi nechvel, a teda nenarúšal stabilitu svojho votknutia v stĺpe a nedeformoval klampiarske ukončenia.
![]() |
![]() |
| Obr. 9 Bleskozvodné premostenie makovice [8] | Obr. 10 Okrasné okno zvnútra chránené proti prístupu hmyzu a výstužové rebro debnenia kupoly – veža č. 1 |
Makovica a ozdoby
Makovica s priemerom 59 cm je umiestnená pod dvojkrížom. Prepojenie dvoch pologúľ bolo riešené falcovaním a spoje boli zaliate cínom. Klampiarske práce boli vyhotovené ručným tepaním medeného plechu hrúbky 1 mm (okrasné prvky, žalúzie, vetracie mriežky) a sú vyhotovené ako verná kópia pôvodného tvaru.
Debnenie
Pod krytinou z Cu bolo vyhotovené plné debnenie so šírkou dosiek najviac 10 cm a sklonom aspoň 30°. Tak sa na pohľadových plochách vylúčilo hromadenie zrážkovej vody, no najmä státie holubov a zároveň sa znížilo riziko prípadných preliačín krytiny činnosťou horolezcov (údržba, opravy, prehliadky).
Debnenie je s ohľadom na podfukovanie oplechovania realizované tak, že umožňuje 12- až 15-centimetrový presah odkvapových plechov cez obvodové múry veží. Zabezpečujú to aj príponky oplechovania osadené v dvojnásobnej hustote (do 15 cm). Tým je eliminované stekanie dažďovej vody z krytiny z Cu po fasáde veže a tvorba farebných máp.
Medzi debnením a krytinou je umiestnená separačná fólia, ktorá oddeľuje hlavičky klincov od krytiny z Cu (elektrolytický článok) a obmedzuje prestup vlhkosti do debnenia.
Bleskozvod
Iracionálne riešenie východiskového stavu bleskozvodu zachytávacím vedením z FeZn od vrcholu veže bolo nahradené vodivým prepojením krytiny z Cu v jej najnižšom mieste na dva protiľahlé príslušné zvody. Medená krytina kupoly je v tomto prípade definovaná ako náhodný zachytávač (v čase realizácie platná STN 34 1390). Ochrana dvojkríža bola realizovaná použitím medenej objímky s olovenou podložkou v styku s kovovou časťou dvojkríža, ktorá bleskozvodne napojila dvojkríž (slúži ako náhodný zachytávač) na premostenie makovice medeným bleskozvodným vedením s priemerom 10 mm s jeho následným pripojením na falc medenej krytiny priamo pod makovicou (obr. 9). Premostenie makovice vyplývalo zo skutočnosti, že cín vo falcoch makovice by sa pri vysokých teplotách (dosahovaných pri zásahu bleskom) odparil.
Kovová konštrukcia zvonov je prepojená vodičom CYA 25 Z/Ž na bleskozvody.
Prevetrávanie a finalizácia
Dlhovekosť konštrukcie je podmienená adekvátnym vetraním strešného priestoru. V tomto prípade je vetranie zabezpečené stálou cirkuláciou vzduchu pomocou odvádzacích otvorov (v hornej časti priebežnou celoobvodovou štrbinou v cibuli) a štyrmi vetracími oknami v strednej časti cibule. Počas našej obhliadky bolo cítiť, že prevetrávanie je zvládnuté a funguje výborne.
Po ukončení prác bol celý vnútorný priestor kupol pedantne povysávaný a zbavený všetkých pilín, ktoré predstavujú primárne riziko prítomnosti drevokazného hmyzu.
Dva v jednom
Popri hlavnom rozsahu prác sa paralelne s využitím už postaveného lešenia vykonalo konzervovanie 4 + 4 kusov ozdobných hlavíc na oboch vežiach. Hlavice boli očistené od nánosov nečistôt, depozitov a uhlíka. Došlo k celoplošnému odsoleniu s použitím zábalov, vo finále boli hlavice konzervované hydrofóbnym roztokom.
6. Uznanie namiesto záveru
Ďakujeme pánovi Ladislavovi Nebusovi za cenné konzultácie a za opakované sprístupnenie veží, poskytnutú fotodokumentáciu vrátane stavebno-technickej dokumentácie.
Je hodné vysokého uznania, že rehoľníci správne pochopili svoju pozíciu a celý proces zverili do rúk skutočných odborníkov. To by mohlo byť dobrým príkladom pre iné podobné stavebné diela, ktoré sa boria s remeselnou nekvalitou spojenou s finančnou nevýhodnosťou.
Viaceré sakrálne stavby zápasia s projekčnými, realizačnými a technologickými chybami, ktorých prejavy nenechajú na seba dlho čakať. Prehliadka a technický stav po deviatich rokoch, ktoré uplynuli od opravy veží, poskytujú dôkaz, že toto dielo naplnilo atribúty kvality. Netreba však zabúdať na systémový „sakrálny facility manažment“, ktorého súčasťou musia byť aj veže, nielen interiér kostola.
© Ing. Jozef Ilčík
Autor je konateľ spoločnosti Perfect Home, s. r. o.
www.stavebne-poradenstvo.sk
Foto: archív autora (obr. 8, 10), fotoarchív poskytnutý p. Nebusom (obr. 6, 7, 9)
Zdroje:
[1] Obr. 1, 3, 4, 5 – autor predlohy Ing. Juraj Kianička, SKSI 1743*21-3-41-44-6*98, september 2000
[2] Stavebný denník, 18. 3. 2002 – 18. 9. 2002
[3] MS-PROJEKT, 017/2001, výkres č. E-1 (Bleskozvod), február 2001
[4] Grafický výkaz skutočných výmer, drevo – mäkké, poskytnutý p. Nebusom
[5] Grafický výkaz skutočných výmer, drevo – tvrdé, poskytnutý p. Nebusom
[6] Grafický výkaz skutočných výmer, plech, poskytnutý p. Nebusom
[7] Kópia z katastrálnej mapy, Okresný úrad v Trenčíne, 1163/2000, 11. 2. 2000
[8] Fotoarchív poskytnutý p. Nebusom
Článok bol uverejnený v časopise ASB.
–>–>
















