Strešný odvodňovací systém. Nezabudnite na dôkladný odborný návrh
Strešná krytina by mala odolávať vodným zrážkam, ktoré sa majú bezpečne odviesť napríklad do ležatej kanalizácie. Odbornými prieskumami v zahraničí sa zistil prekvapujúco vysoký počet porúch vyskytujúcich sa na odvodnení striech budov, ktoré sú obvykle spôsobené neodborným návrhom, nekvalifikovanou realizáciou a často aj nezodpovedným zásahom samotného investora nerešpektujúceho odborné stanoviská.
Samotnej realizácii strešného odvodňovacieho systému by mal predchádzať dôkladný odborný návrh zohľadňujúci konkrétne danosti lokality, sklon strechy, jej tvarovú, povrchovú a rozmerovú náročnosť a možnosti odvedenia vodných zrážok. Podľa kvalifikovaného návrhu možno úspešne realizovať strešný odvodňovací systém a bezpečne ho aj užívať.
Popis systému
Strešné odvodňovacie systémy nachádzajúce sa na trhu ponúkajú rozmanité tvary a individuálne možnosti použitia, jednotlivé diely od jedného výrobcu na seba presne nadväzujú do najmenšieho detailu a montáž je pre remeselníkov vďaka presnosti lícovania a rozsiahlej zlučiteľnosti pomerne jednoduchá.
Systém zahŕňa spravidla dažďové odpadové rúry, polkruhové aj štvorhranné strešné žľaby a príslušné doplnky v bežných rozmeroch. Všetky hotové diely a atypické výrobky by mali byť vyrobené z rovnakého materiálu s príslušnou povrchovou úpravou.
Architektúra dnes vyžaduje od strešného odvodnenia okrem výborných úžitkových a technických vlastností aj estetický vzhľad.
Návrh odvodňovacieho systému
Presnému stanoveniu parametrov jednotlivých prvkov odvodňovacieho systému, by mal predchádzať optimálny návrh tvaru a umiestnenia strešných žľabov a dažďových zvodov. V ňom by sa mali zohľadniť miestne klimatické pomery, tvarová a povrchová náročnosť strechy, funkčnosť a architektúra predmetného objektu.
V mnohých prípadoch sa na úkor funkčnosti uprednostní architektonické hľadisko a potom možno vidieť napríklad nástrešné žľaby použité aj pri sklonoch menších ako 15°. Umiestnenie nevhodných žľabov na streche s nevhodným sklonom má za následok ich nefunkčnosť a poruchovosť.
Rozdelenie žľabov
Žľaby sa rozdeľujú podľa tvaru a umiestnenia. Podľa tvaru ide o žľaby:
- polkruhové,
- štvrťkruhové,
- štvorhranné,
- lichobežníkové,
- iných tvarov (napríklad trojuholníkové, eliptické a podobne).
Podľa umiestnenia (obr. 1) možno rozlišovať žľaby:
- pododkvapové,
- nástrešné,
- nadrímsové,
- medzistrešné,
- zaatikové,
- prevodové.
Obr. 1 Druhy žľabov podľa umiestnenia
Pododkvapové žľaby
Sú najpoužívanejším strešným žľabom podľa umiestnenia a sú z pohľadu chodca fyzicky vnímateľné. Hrúbka materiálu, z ktorého sú vyrobené, vychádza z normatívnych predpisov (STN EN 612: 2005: Strešné odkvapové žľaby vystužené prednými návalkami a rúry na dažďovú vodu s preloženými spojmi vyrobené z plechu) a je závislá od rozvinutej šírky.
Umiestňujú a pripevňujú sa do žľabových hákov plechovými príponkami. Horný okraj predného návalku musí byť nižší ako horný okraj zadného návalku (spätného ohybu alebo vodnej drážky) v závislosti od rozvinutej šírky v rozmedzí 8 až 21 mm.
Spád žľabov musí byť najmenej 5 mm/m. Pri tvrdých skladaných krytinách treba doriešiť prívod vzduchu do odvetranej vzduchovej vrstvy. Bez umiestnenia snehových zachytávačov hrozí vysoké riziko poškodenia žľabov.
Nástrešné (saumrínové) žľaby
Nástrešné žľaby sú z pohľadu chodca nevnímateľné, ležia celou svojou plochou na strešnej krytine. V oblastiach málo bohatých na sneh môžu zároveň slúžiť ako snehové zachytávače (treba posudzovať individuálne). Hrúbka materiálu je daná STN EN 612 a závisí od rozvinutej šírky (napríklad pre titánzinok minimálne 0,8 mm).
Odsadenie od odkvapu sa obvykle pohybuje v rozmedzí 0,3 až 0,8 m. Spodná časť pod nástrešným žľabom je oplechovaná zvlášť a musí byť dostatočne hlboko zasunutá pod nástrešný žľab (minimálne 100 mm), oplechovanie sa realizuje na dvojitú stojatú drážku, hrúbka materiálu 0,7 mm, maximálna možná osová vzdialenosť drážok je 2 m.
Horný okraj predného návalku musí byť nižší ako horný okraj zadného návalku (spätného ohybu alebo vodnej drážky) najmenej o 50 mm (STN 73 3610: 1987: Klampiarske práce stavebné).
Požadovaný spád žľabov sa vytvorí umiestnením žľabových hákov s narastajúcou vzdialenosťou od hrany odkvapu. Spád by sa mal merať v sklone strechy asi 20 mm na každý meter žľabu. Pri tvrdých skladaných krytinách treba doriešiť prívod vzduchu do odvetranej vzduchovej vrstvy.
Nadrímsové žľaby
Nadrímsové žľaby sú akýmsi medzistupňom medzi pododkvapovými a nástrešnými žľabmi. Nadrímsové žľaby sú z pohľadu chodca menej vnímateľné ako pododkvapové, vkladajú sa nad rímsu, ktorá sa ešte pred položením žľabových hákov a žľabov musí oplechovať.
Hrúbka materiálu, z ktorého sú vyrobené, vychádza z požiadaviek STN EN 612 a závisí od rozvinutej šírky. Minimálny spád pre oplechovanie rímsy je 3°(5,25 %). Spád žľabov musí byť najmenej 6,6 mm/m.
Pri tvrdých skladaných krytinách treba doriešiť prívod vzduchu do odvetranej vzduchovej vrstvy. Bez umiestnenia snehových zachytávačov hrozí vysoké riziko poškodenia žľabov.
Medzistrešné, zaatikové žľaby
Medzistrešné žľaby sa nachádzajú v osi prieniku spravidla dvoch pultových striech a navrhujú sa často na odvodnenie veľkých plôch. Medzistrešné žľaby sú klampiarske konštrukcie s vysokým výskytom porúch. Treba im z mnohých dôvodov venovať zvýšenú pozornosť a už v štádiu projektovania zohľadniť nasledovné požiadavky:
- medzistrešné žľaby navrhovať s poistným bezpečnostným žľabom, aby sa v prípade naplnenia hlavného žľabu zabránilo vniknutiu vody do budovy,
- spád žľabov musí byť najmenej 5 mm/m (odporúča sa 10 mm/m), treba zabezpečiť spád aj pre poistný žľab,
- podľa možnosti použiť kónické napojenie na odtokové potrubie,
- zvýšiť počet odtokov, zvodov (približné pravidlo: dvojnásobný počet oproti klasickému závesnému systému),
- zriadiť núdzový prepad nadimenzovaný s dostatočnou rezervou, prípadne vytvoriť samostatný odtok vnútorného poistného žľabu,
- osadiť snehové zachytávače,
- projektovať samoregulovateľné vykurovanie žľabu,
- dodržať optimálny hrubý rozmer pre žľab (výška 250 mm, šírka 400 mm).
Dimenzovanie vonkajších odkvapových systémov
Stanovenie rozmerov dažďových zvodov, a tým aj priradenie veľkosti strešných žľabov, závisí od množstva dažďových zrážok, veľkosti základnej plochy strechy (pôdorys) a odtokovej hodnoty (sklon, stav povrchu). Z dôvodu zvýšeného nebezpečenstva zanesenia žľabov a zamedzenia vnikaniu dažďovej vody zo žľabu do budovy sa zvodové rúry dimenzujú na množstvo dažďových zrážok najmenej 300 l/s . ha.

Odpadové rúry odvádzajú zrážkovú vodu zo strešných žľabov a strešných úžľabí do kanalizačného potrubia. Môžu mať kruhový alebo štvorhranný (štvorcový) prierez. Vyhotovenie zvislých spojov je v tab. 1, (obr. 2, 3).
Zvod s pravouhlým prierezom musí mať užšiu stranu najmenej takú širokú, ako je priemer zodpovedajúcej rúry s kruhovým prierezom. Ak je na strešný vpust rúra napojená priamo, do strešných žľabov a úžľabí sa ako priechody inštalujú žľabové hrdlá, štvorhranné alebo iné žľabové kotlíky.
Tab. 1 Odpadové rúry, vyhotovenie zvislých spojov
1) hliníkový plech
2) medený plech
3) ponormo pokovený oceľový plech, ponormo pokovený oceľový plech povrstvený organickou vrstvou
4) plech z nehrdzavejúcej ocele
5) zinkový plech
6) spájkovanie spojov, rozmer L, v obraze a
7) celková dĺžka, rozmer F, v obraze b
Ak sa na priechod do odpadovej rúry použije žľabové hrdlo, treba voliť lievikovitý tvar (obr. 4). Následkom zúženia sa totiž pri použití valcového žľabového hrdla znižuje využiteľný prierez rúry asi na 64 % (obr. 7). Ak sa predsa len použije valcové žľabové hrdlo, treba použiť odpadovú rúru s väčšou menovitou veľkosťou, ako sa určí výpočtom.
Jednotlivé kusy odpadových rúr sa spájajú zasunutím užšieho konca rúry do širšieho konca ďalšej rúry alebo sa použijú rúry s hrdlami. Kovové rúry musia byť do seba zasunuté najmenej 50 mm.

Výpočet vodných zrážok
Odtokové množstvo vodných zrážok sa vypočíta podľa nasledujúcej rovnice:
Q = rT/Tn . C × A × 1/10 000
Q – odtok dažďovej vody (l/s)
rT/Tn – miestne stanovenie dažďových zrážok (l/s . ha)
C – odtokový koeficient podľa DIN 1986-2 je 0,3-1 (pri strešných sklonoch ≥ 3° C = 1)
A – odvodňovaný pôdorys (m2)
Pri výpočte vonkajšieho strešného odvodnenia sa postupuje nasledovne:
- zistí sa množstvo vodných zrážok,
- množstvo vodných zrážok sa delí počtom zvodových potrubí, ktoré sú k dispozícii,
- nadimenzujú sa zvodové rúry v súlade s STN EN 12 056-3: 2002: Gravitačné kanalizačné systémy vnútri budov. Časť 3: Odvodnenie striech. Navrhovanie a výpočet,
- priradia sa strešné žľaby v súlade s STN EN 12 056-3: 2002.
Rozmery dažďových zvodov
Pri návrhu rozmerov dažďových zvodov sa odporúča postupovať v súlade s DIN 1986-100: 2008 Entwässerunganlagen für Gebäude und Gründstücke (Odvodňovacie systémy pre budovy a stavebné pozemky) a DIN 18 460 Regenfallleitungen (Dažďové zvody).
Príklad výpočtu:
miestna výdatnosť dažďových zrážok
rT/Tn ≤ 300 l/s . ha
výdatnosť zrážok
rT/Tn = 300 l/s . ha
pôdorysná plocha strechy:
11 × 18 = 198 m2
A = 198 m2
odtokový koeficient
C = 1
odtok dažďovej vody
Q = 300 × 1 × 198 × 1/10 000
Q = 5,94 l/s
Podľa tab. 2 zvolená rúra pre Q ≤ 7,6 l/s:
1 zvodová rúra menovitej veľkosti 120 alebo alternatívne
2 zvodové rúry menovitej veľkosti 100.
Tab. 2 Stanovenie rozmerov dažďových zvodov podľa DIN 1986 a DIN 18 460 s priradením strešných žľabov
(množstvo dažďových zrážok r = 300 l/s)
* Uvedené hodnoty platia pre odkvapové kotlíky s kónickým vtokom. Pri valcových hrdlách treba odvodňovaný strešný pôdorys redukovať približne o 30 %.
Tab. 3 Umiestnenie dilatačných prvkov zavesených strešných žľabov z materiálu TiZn
* podľa STN EN 612
Upozornenie:
Uvedené hodnoty platia pre priebežnú dĺžku, od pevných miest (od rohov, stien a podobne) sa hodnoty zásadne skracujú na polovicu. Pri spájkovanom valcovom hrdle nie je vyrovnanie teplotnej rozťažnosti zabezpečené.
Tab. 4 Umiestnenie dilatačných prvkov vnútorných strešných žľabov z materiálu TiZn
Upozornenie:
Uvedené hodnoty platia pre priebežnú dĺžku, od pevných miest (od rohov, stien a podobne) sa hodnoty zásadne skracujú na polovicu.
Dilatačné spoje
Dilatačné spojenie žľabov závisí od materiálu, z ktorého je žľab vyhotovený, a od druhu a umiestnenia žľabu. Dilatačné spoje treba umiestňovať v najväčších osových vzdialenostiach uvedených v jednotlivých tab. 3, 4.

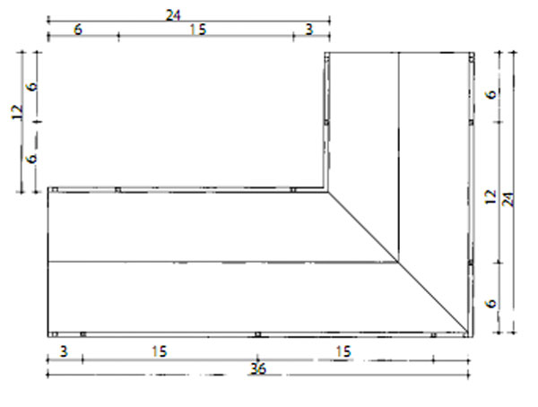
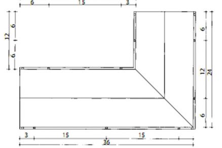
Príklad usporiadania dilatačných prvkov strešného odvodnenia z titánzinku, polkruhového alebo hranatého tvaru, v súlade s STN EN 612, pri budove tvaru L (obr. 5).
Vyhotovenie dilatácií
Dilatácie možno vyhotoviť nasledovnými spôsobmi:
v mieste rozvodia strešných žľabov (obr. 6),
- v mieste žľabového závesného kotlíka (obr. 7),
- vložením žľabovej dilatáce (EPDM – elastomér) (obr. 8).
![]() |
![]() |
| Obr. 5 Usporiadanie dilatačných prvkov strešného odvodnenia (titánzinok) – budova tvaru L | Obr. 6 Dilatácia v mieste rozvodia strešných žľabov |
Chyby realizácie
Nesprávna funkčnosť, respektíve úplná nefunkčnosť odvodňovacieho systému je následkom nesprávneho návrhu alebo samotnej realizácie. V praxi sa vyskytujú tieto najčastejšie chyby:
- osadenie odvodňovacieho systému bez spádu,
- riešenie bez dilatácií,
- ukončenie poistnej fólie bez odkvapového plechu,
- nesprávna voľba spojovacej techniky,
- strechy bez snehových zachytávačov,
- nevhodná kombinácia materiálov, napríklad meď-pozinkovaná oceľ,
- veľké osové vzdialenosti žľabových hákov od rohov (1 až 1,5 m). Dôsledkom je klesanie žľabových rohov a vznik problémov s vyspádovaním žľabov,
- miešanie komponentov od rôznych výrobcov.
Podstatným faktorom, ktorý ovplyvňuje kvalitu výsledného diela, je ľudský činiteľ, ale aj faktor počasia, z čoho vyplýva, že pokiaľ je to možné, neplánovať realizáciu počas mrazov.
Literatúra
1. RHEINZINK®: Zásady pro spracování klempířské práce.
2. Strechy – Strešné plášte: Majstrovské vzdelávanie pre strechárske remeslá.
Ing. Gabriel Boros je konateľom spoločnosti RHEINZINK SK, s. r. o.
Článok bol uverejnený v časopise Stavebné materiály.


















