Návrh a posúdenie kritických detailov strešnej konštrukcie
Posúdenie kritických detailov stavebných konštrukcií z hľadiska ich tepelnej ochrany je integrálnou súčasťou navrhovania stavieb. V praxi sa však s alternatívnymi riešeniami často nestretávame.
Existuje množstvo riešení, ktorými sa dajú vylepšiť tepelnotechnické vlastnosti obytných budov. V prípade nízkoenergetického rodinného domu (NED) Fiamo realizovaného v Košickom kraji sa zvažovali viaceré varianty detailov atiky a prestrešenia.
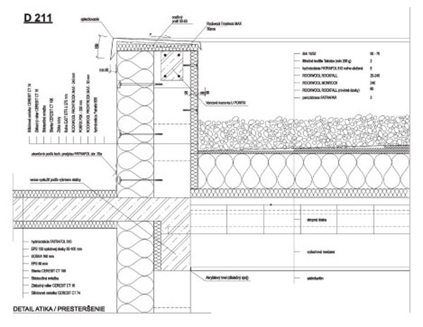
Strešný plášť (obr. 1) je jednoplášťová nepochôdzna plochá strecha so štandardným poradím vrstiev – tepelná izolácia (na báze minerálnej vlny), hydroizolačná vrstva (mPVC fólia), ako priťaženie sa použil štrkový zásyp. Nosná konštrukcia strechy je realizovaná zo stropných nosníkov a stropných pórobetónových vložiek (sivý pórobetón). Na zhotovenie steny atiky sa použili pórobetónové tvárnice (sivý pórobetón – systém pero a drážka). Atika je ukončená tvárnicou zo sivého pórobetónu v tvare U (obr. 11). Prestrešenie medzi garážou a domom sa realizovalo zo železobetónovej dosky hrúbky 160 mm.

Pri riešení úlohy sa detaily označili kódom D21 (ako detail 21) a kódom D22 (ako detail 22). Detail 21 je detailom styku atiky a prestrešenia medzi domom a garážou a detail 22 je detailom atiky.
Do úvahy sa brali tieto okrajové podmienky:
- vonkajšia výpočtová teplota θe = –13 °C,
- teplota vnútorného vzduchu θai = +20 °C,
- exteriérová relatívna vlhkosť vzduchu φe = 84 %,
- interiérová relatívna vlhkosť vzduchu φi = 50 %.
Popis existujúceho vyhotovenia detailov D21 a D22
Detail 21 (obr. 2) je existujúce riešenie detailu atiky a prestrešenia medzi domom a garážou a je v systéme kódovania označený ako D211 (tab. 1). Stropná doska je zo sivého pórobetónu, tepelná izolácia strechy je zabezpečená ťažkou dvojvrstvovou izolačnou doskou a systémom spádových tepelnoizolačných dosiek z minerálnej vlny. Z interiérovej strany zakrýva vzduchotechnickú inštaláciu sadrokartónový podhľad. Na horizontálne ukončenie atiky sa použili tuhé dvojvrstvové tepelnoizolačné dosky z minerálnej plste.
![]() |
![]() |
| Obr. 2 Detail existujúceho riešenia |
Obr. 3 Detail 221, existujúci stav |
Prestrešenie tvorí železobetónová doska po oboch stranách zateplená tepelnou izoláciou na báze expandovaného polystyrénu (EPS). Stena je z pórobetónových tvárnic (sivý pórobetón – systém pero a drážka) zateplená tuhou dvojvrstvovou tepelnoizolačnou doskou z minerálnej plste s hrúbkou 250 mm. To isté materiálové vyhotovenie platí aj pre detail D22. Vyhotovené riešenie je v systéme kódovania označené ako D221 (obr. 3, tab. 2).
![]() |
![]() |
| Tab. 1 Označenie alternatívnych riešení D21 a výsledná teplota vnútorného povrchu pri rôznych alternatívach vyhotovenia detailu |
Tab. 2 Označenie alternatívnych riešení D22 a výsledná teplota vnútorného povrchu pri rôznych alternatívach vyhotovenia detailu |
Alternatívne riešenia vyhotovenia detailov a ich posúdenie
Pri alternatívnych riešeniach detailov sa zvažovali nasledovné zmeny stavebného a konštrukčného riešenia:
- odstránenie sádrokartónového pohľadu,
- izolácia atikovej steny na vrchnej strane,
- prerušenie tepelného mostu medzi atikovým murivom a stropnou konštrukciou,
- prerušenie tepelného mostu použitím termovložky.
Výsledky jednotlivých kombinácií výpočtov sú prezentované na nasledovných obrázkoch a v tab. 1 (detail D21) a v tab. 2 (detail D22).
Obr. 4 Detail 211 – priebeh izoterm a pole teplôt
Riešenie a výpočet detailu D21
Vložením penového skla pod konštrukciu atiky a zároveň použitím termovložky na prerušenie tepelného mostu došlo výpočtom k zvýšeniu vnútornej povrchovej teploty o 1,48 K oproti pôvodnému stavu (obr. 4, 5).
Detail D212 je detailom atiky a prestrešenia medzi domom a garážou (obr. 7) bez sadrokartónového podhľadu z interiérovej strany. V styku stropnej konštrukcie so stenou sa výpočtom zistila vnútorná povrchová teplota θsi = 14,77 °C, čo je o 0,75 K menej ako v realizovanom prípade (D211) (obr. 4) a zároveň o 2,24 K menej ako v najpriaznivejšom prípade (D213) (obr. 5, 6).
![]() |
![]() |
![]() |
| Obr. 5 Detail 213 – konštrukčné vyhotovenia a popis výsledku |
Obr. 7 Detail 212 – konštrukčné vyhotovenia a popis výsledku |
Obr. 9 Detail 223 – konštrukčné vyhotovenia a popis výsledku |
V miestach bez napojenia železobetónovej dosky nedochádza k väčším teplotným deformáciám ako v prípade detailov D211 až D218. Detail 223 (obr. 9) sa javí ako najpriaznivejší stav, keď použitím penového skla sa výpočtom určila vnútorná povrchová teplota θsi = 17,86 °C. Rozdiel oproti riešeniu D221 je minimálny (0,1 K).
Obr. 6 Detail 213 – priebeh izoterm a pole teplôt
Najnepriaznivejší stav detailu D22 sa dosiahol bez použitia sadrokartónového podhľadu a penového skla vloženého pod atiku. Teplota v styku stropu a steny je o 0,2 K nižšia ako pri realizovanom variante (D221), a to θsi = 17,55 °C (obr. 8). Ukončenie atiky tepelným izolantom v horizontálnom smere nemá pri tomto riešení a výške atiky asi 1 000 mm žiaden vplyv na teplotu v rohu miestnosti.
Obr. 8 Detail 221 – priebeh izoterm a pole teplôt

Navrhnuté a zrealizované varianty detailov D21 a D22 vyhovujú požiadavkám na najnižšiu vnútornú povrchovú teplotu konštrukcie. Tento fakt sa dal predpokladať aj z dôvodu návrhu tepelnej ochrany konštrukcií v súlade s odporúčaniami pre návrh konštrukcií pasívnych domov.
Z alternatívnych riešení vyplýva, že ďalšie zlepšenie tepelnoizolačných vlastností je možné. S použitím penového skla pod atikovú stenu (obr. 12) alebo termovložky na prerušenie tepelného mosta možno dosiahnuť priaznivejší stav vyhotovenia týchto detailov. Nevýhodou je vyššia prácnosť, a najmä finančná náročnosť. V tomto prípade možno prijať všeobecný záver, že použitie týchto stavebných výrobkov je prínosné z hľadiska posúdenia najnižšej povrchovej teploty konštrukcie.
Zaujímavým faktom je, že horizontálne ukončenie atiky tepelným izolantom (obr. 10) nemá zásadnejší vplyv na vnútornú povrchovú teplotu v rohu miestnosti. V tomto prípade má atika minimálnu výšku. Treba zdôrazniť, že toto zistenie je platné pre takto vyhotovený detail. V prípade inej hrúbky izolácií, skladby atikovej steny, výšky atikovej steny môže byť situácia iná.

Nízkoenergetický rodinný dom Fiamo sa v súčasnosti užíva. Navrhnuté konštrukcie sa budú po monitorovať počas 3 rokov a vykonajú sa aj ďalšie výpočty týchto detailov, najmä v trojrozmernom teplotnom poli ako aj pri nestacionárnych okrajových podmienkach.
Projekt je realizovaný za súčasnej podpory firiem Rockwol, Slovensko, s. r. o.; ATREA, Česká republika, s. r. o.; Porfix – pórobetón, a. s.; AZ FLEX – dodávateľ penového skla Foamglas, REHAU, s. r. o. a FENESTRA SK, s. r. o. – dodávatelia okenných systémov; NITRASKLO, a. s. – dodávateľ sklených systémov; HERZ, spol. s r. o. – dodávateľ solárnej techniky, HENKEL SLOVENSKO, spol. s r. o., výrobca stavebnej chémie Ceresit.
Príspevok vznikol vďaka finančnej podpore z prostriedkov štrukturálnych fondov EÚ, prostredníctvom operačného programu Výskum a vývoj a projektu OPVaV-2008/2.2/01-SORO s názvom Architektonické, konštrukčné, technologické a ekonomické aspekty navrhovania energeticky efektívnych budov, s kódovým označením ITMS: 26220220050, ktorý je spolufinancovaný zo zdrojov EÚ.
TEXT: Ing. Martin Lopušniak, PhD., Bc. Csilla Csizmadiová, Bc. Darina Forgáčová
OBRÁZKY: autor
Ing. Martin Lopušniak, PhD., je autorom projektu rodinného domu.
Bc. Csilla Csizmadiová a Bc. Darina Forgáčová sú študentkami Stavebnej fakulty TÚ v Košiciach.
Literatúra
1. Lopušniak, Martin: Nízkoenergetický dom Fiamo.
In: Nízkoenergetické a pasívne rodinné domy:
Princípy, projekty, realizácie. Bratislava: VERSO, 2009. s. 50 – 51.
2. Bagoňa, Miloslav – Lopušniak, Martin – Vertaľ, Marián: Projekt NED FIAMO. In: Fasády: Revue časopisu Střechy, fasády, izolace, zv. 6, č. 4 (2008), str. 46 – 48.
3. Lopušniak, Martin – Katunský, Dušan: Architecture – Design – Energy evaluation of passive house in Slovakian climate conditions. In: Indoor Air 2008: The 11th International Conference on Indoor Air Quality and Climate: 17th to 22nd August 2008, Copenhagen, Denmark. Lyngby: International Centre for Indoor Environment and Energy, 2008. 8 p.
4. Lopušniak, Martin – Vertaľ, Marián: Návrh, posúdenie kritických detailov z hľadiska tepelnej ochrany a skúsenosti z realizácie strechy nízkoeneregtického domu Fiamo. In: Střechy, fasády, izolace. zv. 15, č. 4 (2009), str. 42 – 44.
Článok bol uverejnený v časopise Stavebné materiály.





















