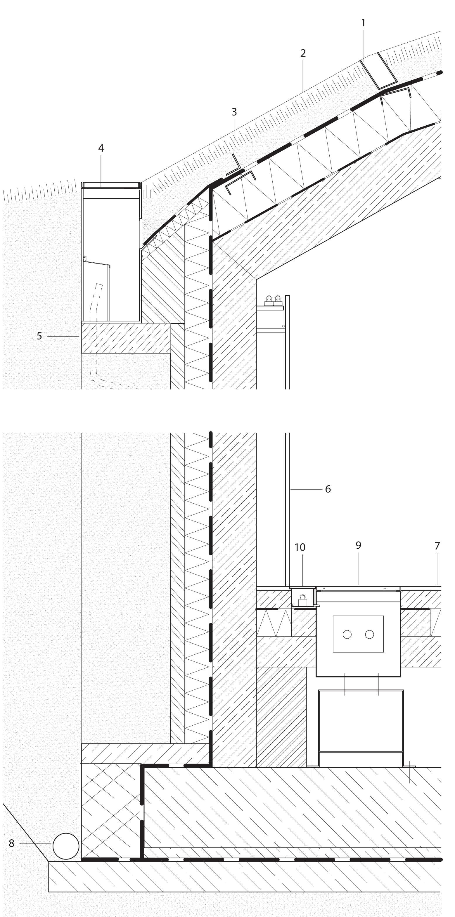
Detail skladby extenzívnej rozchodníkovej strechy
Tvar domu a jeho štruktúra preto vychádzajú z geometrie pohoria Krkonôš. Jednotlivé štíty a hrebene boli prostredníctvom vektorov prevedené do sklonov a uhlov strechy. Aby sa dom mohol stať skutočnou súčasťou krajiny, boli na strechu osadené rozchodníky.
Krkonošské centrum: dom ako súčasť krajiny
1
Predpestovaná rohož, zmes suchomilných nenáročných rastlín – rozchodníka s nepráchnivejúcou rohožou, 15 mm
Extenzívny zemný substrát, ľahký, 80 mm
Protisklzový systém – skladaný rošt, nosníky a prahy
Štruktúrovaná vodoakumulačná textília, 8 mm
Separačná a ochranná rohož, 5 mm
Hydroizolačné vrstvy – dvojitý systém s kontrolnou a aktivačnou funkciou
Tepelná izolácia, 220 mm – lepená k podkladu PU lepidlom
Parotesná vrstva – 1× modifikovaný asfaltovaný pás bodovo natavený k podkladu, 4 mm
Penetračný náter
Nosná železobetónová stropná konštrukcia, 260 mm
2
Sklenená fasáda v lichobežníkovom tvare, 54 600 mm/4 140 mm
Nosné stĺpiky, osová vzdialenosť 1 200 mm
Protipožiarne zasklenie EI30, 22 mm, sklo v časti pred skladbou strechy čiastočne nepriehľadné vďaka prechodovej potlači
Zvislé stĺpiky pri atike zúžené a vystužené podľa statického výpočtu, zvislé krycie lišty vysoké min. 50 mm, vodorovné krycie lišty, výška 25 mm
3
Drevená nášľapná vrstva s certifikáciou na použitie ako nášľapná vrstva na podlahách, preglejka – multiplex, lepidlo, 20 mm
Vibrovaný, strojovo hladený betón, 80 mm
Separačná vrstva – PE fólia (hrúbka 0,2 mm) s presahom a prelepením v spojoch
Izolácia proti krokovému hluku na ťažké podlahy vrátane ukončujúcich pásikov, 50 mm
Ochrana proti vlhkosti v stropnej konštrukcii – PE fólia, 0,2 mm
ŽB doska, 200 mm
Podhľad z preglejky – multiplex zavesený na oceľovom rošte, 30 mm + 20 mm
4
Hladený betón, 120 mm
Štrkopieskové lôžko, 100 mm
Štrková drenážna vrstva
Ochranná vrstva z extrudovaného polystyrénu určeného do obrátených zaťažených striech, s poldrážkou po celom obvode, 100 mm
Hydroizolačné vrstvy – dvojitý systém s kontrolnou a aktivačnou funkciou
Tepelná izolácia lepená k podkladu PU lepidlom, 100 mm
Parotesná vrstva, 1× modifikovaný asfaltovaný pás bodovo natavený k podkladu, 4 mm
Penetračný náter
Nosná železobetónová stropná konštrukcia, 220 mm
5
Drevená nášľapná vrstva s certifikáciou na použitie ako nášľapná vrstva na podlahách, vrstvená preglejka – multiplex, lepidlo, 20 mm
Vibrovaný, strojovo hladený betón, 90 mm
Separačná vrstva – PE fólia (hrúbka 0,2 mm) s presahom a prelepením v spojoch
Izolácia proti krokovému hluku na ťažké podlahy vrátane ukončujúcich pásikov, 40 mm
Penový polystyrén, 80 mm
Podkladová betónová doska s výstužou, 150 mm
Stratené debnenie z trapézových pozinkovaných plechov,
(hrúbka 1 mm, výška 30 mm)
Zhutnený štrkopieskový zásyp – vysušený, obsah vlhkosti pod 2 %, 500 mm
ŽB doska vane, 400 mm
Ochranná betónová mazanina, 50 mm
Hydroizolačné vrstvy proti radónovej záťaži, dvojitý systém s kontrolnou a aktivačnou funkciou
Podkladový betón, 150 mm
Štrkopieskový podklad, 100 mm
Terén s mohutnou zeleňou
6
Odvodňovací žľab
1
Kotvený oceľový žľab
2
Predpestovaná rohož, zmes suchomilných nenáročných rastlín – rozchodníka s nepráchnivejúcou rohožou, 15 mm
Extenzívny zemný substrát ľahký, 80 mm
Protisklzový systém – skladaný rošt, nosníky a prahy
Štruktúrovaná vodoakumulačná textília, 8 mm
Separačná a ochranná rohož, 5 mm
Hydroizolačné vrstvy – dvojitý systém s kontrolnou a aktivačnou funkciou
Tepelná izolácia, 220 mm – lepená k podkladu PU lepidlom
Parotesná vrstva – 1× modifikovaný asfaltovaný pás bodovo natavený k podkladu, 4 mm
Penetračný náter
Nosná železobetónová stropná konštrukcia, 260 mm
3
L-profil – podporná výstuha na zelenú strechu
4
Odvodňovací žľab
5
Betónový základ na odvodňovací žľab
6
Drevená krytina, vrstvy z multiplexu
Drevená štruktúra, 30 mm alebo 50 mm, kotvená v betónových stenách
ŽB stena, 300 mm
Hydroizolačné vrstvy proti radónu, 10 mm
2× extrudovaný polystyrén, 80 mm + 80 mm
Ochranná stena z betónových tvárnic, 75 mm, so stĺpikmi 450/450 mm á 2 m
7
Drevená nášľapná vrstva s certifikáciou na použitie ako nášľapná vrstva na podlahách, vrstvená preglejka – multiplex, lepidlo, 20 mm
Vibrovaný, strojovo hladený betón, 90 mm
Separačná vrstva – PE fólia (hrúbka 0,2 mm) s presahom a prelepením v spojoch
Izolácia proti krokovému hluku na ťažké podlahy vrátane ukončujúcich pásikov, 40 mm
Penový polystyrén, 80 mm
Podkladová betónová doska s výstužou, 150 mm
Stratené debnenie z pozinkovaných trapézových plechov,
(hrúbka 1 mm, výška 30 mm)
Zhutnený štrkopieskový zásyp – vysušený obsah vlhkosti pod 2 %, 500 mm
ŽB doska vane, 400 mm
Ochranná betónová mazanina, 50 mm
Hydroizolačné vrstvy proti radónovej záťaži, dvojitý systém s kontrolnou a aktivačnou funkciou
Podkladový betón, 150 mm
Štrkopieskový podklad, 100 mm
Terén s mohutnou zeleňou
8
Drenáž
9
Konvektory pokryté atypickou krytinou
10
LED osvetlenie obalené v akrylovom skle
Foto: Benedikt Markel







