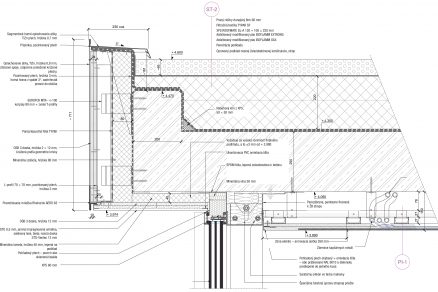
Detail okraja zvlnenej strechy – Danubiana
Strecha nových výstavných pavilónov je ako jemne sa vlniaca vodná hladina, lemujúca brehy a obtekajúca archu pôvodnej budovy.
Pre lepšie zobrazenie na obrázok kliknite alebo si pozrite originálnu veľkosť
Foto: Dano Veselský
Dokumentácia: Ateliér 008, s. r. o.






