Realizácia závesného konzolového lešenia
V Národnej knižnici ČR Klementinum začali na jar 2010 dlho očakávanú revitalizáciu interiérov a strešného plášťa. Na dodržanie bezpečnostných požiadaviek pri prácach na streche bolo nevyhnutné zabezpečiť dostatočnú ochranu. V prípade rekonštrukcie knižnice sa maximálnu ochranu podarilo dosiahnuť nainštalovaním závesného konzolového lešenia.
Opravné a renovačné práce strešného plášťa sa rozbehli v rámci prvej etapy revitalizácie Národnej knižnice ČR. Pri prácach na tejto historickej členitej budove v srdci starobylého centra Prahy sa kládol maximálny dôraz na bezpečnosť práce a minimálne obmedzenie cestných komunikácií či chodníkov priliehajúcich k budove Klementina. Na základe týchto kritérií sa prijalo rozhodnutie, že pracovníci realizujúci opravu strechy budovy sa hromadne zaistia zo závesného konzolového lešenia.Závesné konzolové lešenie
Závesné konzolové lešenie predstavuje stavebnicové lešenie určené na ľahké montážne a udržiavacie práce na strechách a vežiach. Zároveň nachádza uplatnenie pri inštalácii reklamy, montážneho podbitia, údržbe odkvapov, stavbách a opravách komínov a pri množstve ďalších aplikácií, pri ktorých sa kladie dôraz na čo najmenšie náklady pri zachovaní maximálnej úžitkovej hodnoty lešenia.
Základ lešenia tvorí trojuholníková konzola, ktorá spolu s ďalšími do seba zasunutými časťami vytvára mimoriadne variabilný nosný prvok. So systémom variabilného konzolového lešenia možno vyriešiť akýkoľvek komplikovaný prvok strechy a rímsy.
Súčasťou systému sú kotviace časti v niekoľkých rozličných variantoch, ktoré umožňujú kotvenie do akéhokoľvek materiálu, poistné a spojovacie časti, podlahy a zábradlie. Využíva sa aj geotextília a sieťovina proti prepadnutiu materiálu.
Výhody a nevýhody
Výhodami tohto typu závesného lešenia sú variabilita a flexibilita použitia na stavbách a malá hmotnosť – zhotovenie si nevyžaduje použitie žeriava alebo výťahu. Veľkou prednosťou je rýchla výstavba priamo na mieste určenia – bez ohľadu na prístup a výšku stavby.
Nevýhodou závesného konzolového lešenia je, že vzhľadom na jeho nosnosť naň nemožno stavať ďalšie lešenie. Nosnosť jednotlivých polí (približne 2 až 2,5 bm) je do 250 kg. V prípade stavieb do výšky 12 m je v porovnaní s klasickým lešením, ktoré sa buduje od päty budovy, nevýhodou vyššia cena prenájmu (vrátane montáže a demontáže). Táto nevýhoda odpadá v prípade, že sa pri použití klasického lešenia musí platiť za zabratie verejného priestranstva. Pre niektorých pracovníkov znamená pohyb po vykonzolovanom lešení psychický blok.
Varianty používané na stavbách
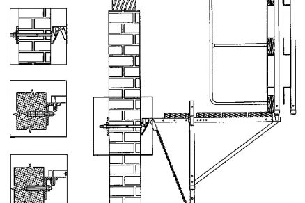
Variant s kotvou – štandardne sa využíva pri celkových rekonštrukciách a pri novostavbách, kde nehrozí poškodenie interiéru. Kotva, vŕtaná cez murivo, sa môže použiť do muriva s hrúbkou maximálne 1 m (obr. 1a):
- najčastejšie používaným variantom kotvenia je chemická kotva, pretože sa nepoškodí interiér. Kotvenie možno realizovať takmer všade na stavbe a do akéhokoľvek materiálu s výnimkou plynosilikátov a nepálených tehál;
- rozperná kotva (takzvaná hmoždinka) je špeciálna oceľová kotva na viacnásobné použitie. Používa sa zriedkavo, pretože ju treba kotviť do kvalitného kameňa alebo betónu, ktoré sa nie vždy vyskytujú v požadovanej výške.
Variant s rahnom – je použiteľný predovšetkým na strechách, ktoré sú bez krytiny, alebo na strechách, na ktorých možno škridlovú krytinu dočasne rozobrať. Hák rahna sa jednoducho zachytí za pomúrnicu, múr alebo pomocný trám a poistí sa klincom. Tento variant možno použiť pri nadstavbách na panelových bytových domoch, kde sa rahno prichytí buď za atiku, alebo za inštalovanú nosnú konštrukciu (obr. 1b).
Variant na šikminu – možno ho využiť pri budovaní lavičiek a lešenia priamo na sklonenej konštrukcii strechy. Kotví sa skrutkovým, strmeňovým alebo uholníkovým závesom. Typické je použitie tohto variantu na opravu komínov alebo hrebeňa strechy (obr. 1c).
![]() |
![]() |
| Obr. 1 Schéma závesného konzolového lešenia a) variant s kotvou, b) variant s rahnom, c) variant na šikminu |
|
Odborná práca vo výškach
Montáž a demontáž závesného konzolového lešenia musia vykonávať odborne vyškolení pracovníci, ktorí poznajú problematiku tohto typu a majú príslušné osvedčenia na práce vo výškach a nad voľnou hĺbku, ako aj lešenársky preukaz na konzolové lešenie.
Príprava lešenia
Pred samotnou montážou lešenia prebieha posúdenie staveniska a vhodnosti použitia zvoleného variantu. Pri aplikácii chemických kotiev sa každá kotva skúša ťahomerom na výťažnú silu 13 kN a výsledok skúšok sa zapisuje do odovzdávacieho protokolu. Konštrukcia lešenia je typizovaná, a preto nie je nevyhnutné posúdenie lešenia statikom.
Manipulácia s lešením
Konzolové lešenie do výšky, v ktorej sa realizuje, dopravujú na lanách výškoví pracovníci. Pri prácach väčšieho rozsahu, ako boli aj tie na Klementine, sa používa elektrický lanový vrátok. Nie je nevyhnutné, aby bol na stavbe žeriav alebo výťah, čo ušetrí ďalšie náklady na stavbu.

Samotná výstavba lešenia sa realizovala v troch etapách. Úvodná časť sa realizovala z ulice Platnéřská a z Mariánskeho námestia, nad hlavným vstupom do areálu Klementina. Hneď od začiatku vznikli menšie problémy s výstavbou lešenia, a to pre veľký presah rímsy. Hranica presahu je pre výškových pracovníkov 80 až 90 cm. Nad touto hranicou je práca veľmi náročná, takmer nerealizovateľná vzhľadom na ľudské možnosti – človek nedočiahne ďalej, ako je dĺžka jeho vlastnej ruky. Do múra by tak nebolo možné navŕtať chemické kotvy, následne ich odskúšať a potom do nich osadiť konzolové lešenie.
Na prekonanie tohto obmedzenia sa využila vysokozdvižná plošina, ktorá zabezpečila bezproblémovú montáž a urýchlila výstavbu celého lešenia (obr. 2). Lešenie sa muselo maximálne zabezpečiť proti pádu akéhokoľvek materiálu, takže sa po osadení celé zabalilo do geotextílie a lešenárskej siete.
Ďalšie dve etapy montáže lešenia sa realizovali na prvom a druhom vnútornom nádvorí Klementina a vykonávali ich výškoví pracovníci. Na vnútornom nádvorí nadväzovala konštrukcia závesného konzolového lešenia na stavebný výťah, ktorým sa dopravoval materiál potrebný na výstavbu novej strechy (obr. 3).
Aj v týchto etapách sa závesné konzolové lešenie kotvilo pomocou chemických kotiev a každá realizovaná kotva sa skúšala ťahomerom na výťažnú silu 13 kN (obr. 4 a 5).
Obr. 4 Rozmiestnenie nosných trojuholníkových konzol na fasáde
Obr. 5 Detail realizácie vnútorného rohu závesného konzolového lešenia
Obr. 6 Závesné konzolové lešenie umožňuje plynulú prevádzku.
Záver
Po dokončení všetkých troch etáp výstavby lešenia sa na budovu Klementina umiestnilo celkovo 250 bm závesného konzolového lešenia. Pod takto realizovaným závesným konzolovým lešením sa nemusel umiestniť zákaz prechodu, verejné priestranstvo ostalo priechodné bez obmedzení (obr. 6). Zároveň sa v maximálnej miere splnili bezpečnostné požiadavky. Lešenie sa demontovalo v priebehu mesiacov október až november 2010.
TEXT: Jan Strakoš
FOTO: Coleman S.I.
Jan Strakoš je členom predstavenstva Českomoravskej komory lešenárov, o. s., a manažérom lešenia FOX v spoločnosti Coleman S.I., a. s., vo Vsetíne, ktorá ponúka komplexné služby spojené s dodávkou materiálov na stavbu a rekonštrukciu striech a fasád nielen v ČR, ale aj na Slovensku.
Článok bol uverejnený v časopise Stavebné materiály.

















