Riešenie zábradlí domu Gaudí
Základnou charakteristikou polyfunkčného domu Gaudí je vibrujúca krivka, ktorú vytvárajú zvlnené kontúry predsadených terás. Práve táto koncepcia, ktorou sa projekt odlišoval od ostatných návrhov založených na pravouhlom systéme, investora zaujala najviac. A to napriek tomu, že vzhľadom na svoju netradičnosť predpokladala určité realizačné ťažkosti.
Architektonické riešenie zohralo dôležitú úlohu aj pri výbere dodávateľa stavby. Viaceré firmy boli ochotné pracovať na objekte len za predpokladu, že sa pôvodný návrh upraví a krivky nahradia priame línie. Realizačnú spoločnosť HBH, a. s. Považská Bystrica, ktorá konkurz napokon vyhrala, projekt, naopak, oslovil vďaka svojej atypickosti. Aj keď pri letmom pohľade môžu oblé kontúry vytvárať zdanie voľného vlnenia, v skutočnosti je jeho rytmus harmonický a vyznačuje sa pravidelným opakovaním tvarov. Najväčšou výzvou bolo dosiahnuť presnosť týchto tvarov.
Realizačná firma prišla s myšlienkou dielenských prefabrikátov, odliatych do presnej formy v presne definovaných tvaroch. Tvar terás vytvára digitálne riešená zostava oblúkov, vyskladaných z prefabrikátov so siedmimi rôznymi polomermi. Exaktné osadenie v priestore bolo geodeticky zamerané. Segmenty boli postavené na vodorovné debnenie, výstužou sú previazané s konštrukciou stropu. Týmto postupom sa jednoduchým spôsobom zadefinoval precízny tvar stropnej konštrukcie aj oblúkov.
Erudovaný prístup dodávateľa odbúral predstavu o tom, že zložité tvary prinášajú komplikácie a prácnosť na stavbe. Technické riešenie zároveň prispelo k rýchlej, presnej a kvalitnej realizácii konštrukčných prvkov.
Detail kotvenia zábradlia na balkónoch a terasách
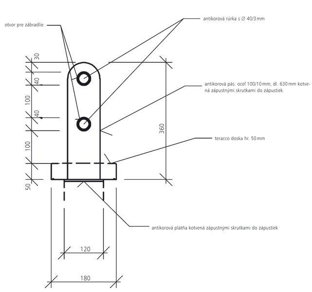
Detail zábradlia
(as)
Foto: Dano Veselský
Článok bol uverejnený v časopise ASB.







