Tesnenie dverí pri prahu
Na trhu je široká ponuka rozličných tesniacich systémov do dolnej dverovej štrbiny a riešení utesnenia pomocou prahu, resp. dorazu. V nasledujúcich riadkoch sa dočítate o najdôležitejších funkčných princípoch nábehových, výsuvných a rezonátorových tesnení a utesnenia pomocou prahu, resp. dorazu.
Pri zvukovoizolačných dverách má funkčná škára medzi dverovým krídlom a podlahovou krytinou plniť najmä úlohy z hľadiska zvukovej ochrany. V miestnostiach s mokrou prevádzkou treba dverový prah posudzovať v súvislosti s hydroizolačnými opatreniami.
Tesnenie pri prahu pri vonkajších dverách zabezpečuje predovšetkým vzduchotesnosť, tesnosť proti vetru a šľahajúcemu dažďu a tiež spĺňa požiadavky z hľadiska zvukovej a tepelnej ochrany (tepelne oddelené systémy).
Utesnenie dverí pomocou tesniacich systémov
Nábehové tesnenia
Tieto tesnenia nemajú mechaniku, ktorá by mohla byť poruchová, a zdvojený tesniaci profil môže vyrovnať aj väčšie nerovnosti v podlahe. Nevyhnutná podlahová koľajnička sa pri hladkých podlahových krytinách vkladá do tmelového lôžka a priskrutkuje sa alebo prilepí. Textilná podlahová krytina sa pri koľajničke vyreže a koľajnička sa tesne namontuje s podložkou (napr. z pása preglejky).
Ešte lepšie zvukovoizolačné hodnoty možno dosiahnuť s kombinovanými systémami (nábehovými a výsuvnými tesneniami). Aj v tomto prípade treba pod dvojitú koľajničku navrhnúť deliacu škáru v plávajúcom poteri.
Domové vstupné dvere
s tradičným prahom s dorazom
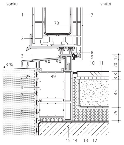
Obr. 1 Príklad konštrukcie drevených domových vstupných dverí s tradičným prahom s dorazom (pozor na tepelný most) a hydroizolovaným žľabom s roštom s kontrolovaným odvodom vody (výroba na zákazku) 1 – holý strop, 2 – tepelná izolácia a izolácia proti krokovému hluku, 3a – pomocná hydroizolácia (PE fólia hrubá 0,2 mm), 3b – klzná a ochranná fólia, 4 – cementový poter s okrajovým dilatačným pásikom, 5 – výstuž poteru (ak je potrebná), 6 – ušľachtilá alebo žiarovo pozinkovaná plochá oceľ (75 × 4 mm) s privarenými príložkami, 7 – hydroizolačné pásy podľa DIN 18 195, 8 – ochranný poter so spádom (s upraveným povrchom), 9 – spodný vlys krídla s odkvapnicou, 10 – rošt v ráme (súčasne čistič topánok), 11 – krycí uholník z ušľachtilej ocele, 12 – platne z prírodného kameňa v hrubom maltovom lôžku
Výsuvné tesnenia
Automaticky výsuvné dverové tesnenia potrebujú vždy úplne rovnú plochu, na ktorú sa pritlačia. Môže ju tvoriť hladká tvrdá a bezškárová podlahová krytina; pri kobercových podlahách a keramických krytinách so škárami musí mať na dolnej strane utesnenú hliníkovú koľajničku. Hoci je táto koľajnička potrebná z akustického hľadiska najmä pri kobercovej krytine, v praxi sa považuje za rušivú a často sa nepoužije, čo znižuje zvukovoizolačný účinok dverí.
Pri vysokých zvukovotechnických požiadavkách sa nemožno vyhnúť akustickému oddeleniu plávajúceho poteru v podobe deliacej škáry alebo prefabrikovanej deliacej koľajničky do poteru. Pri deliacom prahu sa na holý strop ukotví kovová päta, výška viacdielnej pridržiavacej lišty sa nastaví podľa skladby podlahy a hliníkový prah sa nasadí zhora do strmeňa pevného v tlaku. Dodatočne možno nastaviť výšku.

s prerušením tepelného mosta
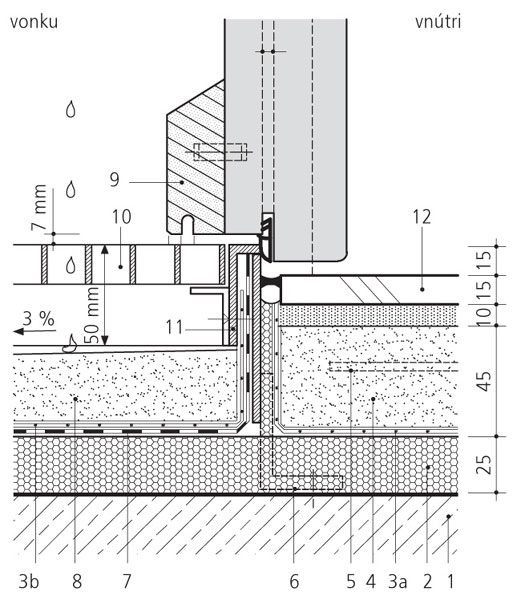
Obr. 2 Príklad konštrukcie plastových domových vstupných dverí s prerušením tepelného mosta pri prahu s dorazom (sériová výroba) 1 – plastové dvere (viackomorové dverové krídlo), 2 – samolepiaca odkvapnica z PVC s dvomi metličkovými alebo jazýčkovými tesneniami, 3 – profilovaný hliníkový dverový prah s prerušením tepelného mosta (bez tepelného mosta a kondenzovania vodnej pary), 4 – spodná časť dverového prahu z PVC na záskočku, 5 – hydroizolačné pásy podľa DIN 18 195, 6 – podkladový profil z PVC na záskočku, 7 – oceľový profil, 8 – metličkové tesnenia, 9 – tesnenie v drážke, 10 – keramické dlaždice v tenkom maltovom lôžku, 11 – cementový poter, 12 – pomocná hydroizolácia (PE fólia hrubá 0,2 mm), 13 – tepelná izolácia a izolácia proti krokovému hluku, 14 – okrajový dilatačný pásik, 15 – holý strop
Rezonátorové tesnenie
Princíp spočíva vo vytvorení čo najväčšej dutiny pri spodnej hrane dverového krídla, ktorá sa vyplní materiálom pohlcujúcim zvuk (napr. minerálnou vlnou) a zakryje sa od podlahovej škáry dierovaným plechom a pod. Toto tesnenie v dutine odoberá zvukovému poľu v dverovej škáre toľko energie, že napriek otvorenému dnu sa dosiahne účinok tlmenia zvuku.
Nevýhodou tohto síce bezdotykového, t. j. aj bezúdržbového spôsobu utesnenia je, že škára v podlahe by nemala byť väčšia ako 3 mm a účinnosť absorpčnej komory z hľadiska zvukovej techniky je podstatne nižšia v porovnaní s inými spomínanými tesneniami. V tomto smere sa očakáva ďalší vývoj.
Magnetické tesnenie
Ich účinok je založený na princípe magnetickej sily dvoch nad sebou umiestnených magnetických profilov. Jedna z týchto magnetických líšt je vždy pohyblivá a pri zatváraní dverí ju magneticky priťahuje zabudovaný protiľahlý profil a utesní podlahovú škáru. Pri otvorení dverí sa profily odpudzujú a pohyblivú časť pritiahne hliníková koľajnica.
Tento tesniaci proces sa uskutočňuje na spodnej hrane dverového krídla (pri magnetických lištách stúpajúcich nahor) alebo v oblasti podlahy (pri tesniacej lište priťahovanej nadol). Oba systémy majú výhody aj nevýhody. Pri magnetických tesniacich systémoch sa môžu vyskytnúť problémy najmä pri pretvoreniach dverového krídla. Keďže magnetická sila klesá so vzdialenosťou, pri rozličných výrobkoch treba vychádzať z rôzne vysokých premostení dverovej škáry (3 až 10 mm).
Magnetické tesnenie dverí je zabudované v jednej úrovni s podlahou a súčasne slúži ako deliaca koľajnica v poteri, preto je veľmi vhodné pri zvukovoizolačných, ale aj dymotesných a požiarnych dverách. Pri tomto magnetickom tesnení sa tesniaci proces uskutočňuje na dolnej hrane dverového krídla pomocou stúpajúceho magnetického prahu.
Utesnenie pomocou prahu
Výhodou tohto spôsobu utesnenia je, že tesnenie v poldrážke a dolné dorazové tesnenie dverového prvku sa nachádzajú na celom obvode v jednej rovine a aj dolné kútové spoje možno vytvoriť relatívne jednoduchými prostriedkami. Vo veľmi zaťažovaných miestnostiach s mokrou prevádzkou je výškovo odsadený prechod najbezpečnejším riešením z hľadiska techniky utesnenia. Nevýhodou je výškový rozdiel pri dverách ako bariéra najmä pre staršie a postihnuté osoby.
- Vnútorné dvere – prahy s dorazom sa väčšinou nepoužívajú (výnimkou sú spomínané osobitné požiadavky), lebo sa vnímajú ako rušivý prvok pri prechádzaní dverami (hrozí potknutie sa o ne, nepohodlne sa čistia), vzhľadom na ústredne vykurované miestnosti stratili svoj význam a neuspokojujú ani z estetického hľadiska.
- Vonkajšie dvere – podľa predpisov treba pri zvislých konštrukciách vyviesť hydroizoláciu minimálne 150 mm nad povrch podlahovej krytiny (roviny na odvod vody).
Pri bezbariérových objektoch sa nepoužívajú dverové prahy. Ak sú z technického hľadiska nevyhnutné, nesmú byť vyššie ako 20 mm. Výškový presah dorazu, resp. prahu teda musí byť čo najnižší, aby vozičkári vedeli prekonať túto prekážku bez väčšej námahy.
D. Neumann, U. Weinbrenner, U. Hestermann, L. Rongen
Grafické prílohy: archív autorov
Príspevok je súčasťou publikácie Stavebné konštrukcie II. vydavateľstva Jaga, 2006, Bratislava.






