Systémy zasklenia z hľadiska tepelnej ochrany budovy
Výplne otvorov stavebných konštrukcií sú najexponovanejšími prvkami obalových konštrukcií budov. Prevažnú časť ich konštrukcií tvorí sklo. Práve sklená výplň umožňuje najväčšie úspory energie. Z tohto dôvodu je nevyhnutné klásť veľký dôraz na kvalitu a vlastnosti používaných izolačných sklených systémov. Tepelnotechnickú kvalitu skleného systému ovplyvňuje okrem konštrukčného princípu aj okrajová časť zasklenia – dištančný rámček. Jeho materiál býva často hlavnou príčinou vzniku povrchovej kondenzácie vodnej pary na okrajoch zasklenia. Tento problém prinútil výrobcov sklených systémov používať nové typy dištančných rámčekov, ktoré zlepšujú tepelnotechnickú kvalitu skleného systému.
Požiadavky na výplne otvorov
Sklo je základom transparentných systémov obalových konštrukcií budov. S vývojom priemyselnej technológie výroby skla – od ťahaného či valcovaného skla po vysokokvalitné sklo Float vyrábané plavením – sa zlepšovali jeho fyzikálno-mechanické vlastnosti. Plavené sklo má minimum optických chýb, vysokú priepustnosť svetla a konštantnú hrúbku. Stavebnofyzikálne požiadavky na zasklenie majú zabezpečiť celý systém tepelnotechnických, svetelnotechnických a akustických vlastností budov pri zabezpeční komfortu a racionálneho využitia energií a ekonomickej efektívnosti. Zasklenie však často musí plniť aj ďalšie funkcie z hľadiska požiarnej bezpečnosti, ochrany osôb a majetku a pod.
Súčiniteľ prechodu tepla
Z tepelnotechnického hľadiska najdôležitejším stavebnofyzikálnym parametrom je súčiniteľ prechodu tepla zasklenia Ug udávaný ako W/(m2 . K). Kombináciou základných tepelnotechnických ako aj svetelnotechnických a akustických vlastností sa dajú navrhovať zasklenia, ktoré spĺňajú architektonické požiadavky v širokom rozsahu.
Jednoduchý systém zasklenia
Jednoduchý systém zasklenia pozostáva z jednej sklenej tabule, ktorú môže tvoriť sklo ploché (Float), sklo ploché ťahané, sklo liate (valcované, valcované opakové, valcované s drôtenou vložkou), sklo bezpečnostné (tvrdené, spevnené, prehrievané, vrstvené, vrstvené nepriestrelné), sklo absorpčné, sklo reflexné, sklo so zvýšenou požiarnou odolnosťou a sklo ohýbané. Z hľadiska tepelnej ochrany sa tento systém zasklenia nesmie používať do otvorových konštrukcií objektov s trvalým pobytom ľudí (vykurované objekty).
Viacnásobný systém zasklenia (štandardné izolačné sklá)
Viacnásobný systém zasklenia predstavujú sklené tabule s viac alebo menej dokonale uzatvoreným priestorom vyplneným vzduchom.

Pri moderných systémoch zasklenia z uzavretých izolačných jednotiek je vnútorný priestor dutého dištančného profilu vyplnený absorpčným prostriedkom, aby sa mohla kontrolovať a regulovať vlhkosť vzduchu v uzavretej dutine.
Tab. 1: Súčiniteľ prechodu tepla štandardných izolačných skiel

Nízkoemisný systém zasklenia vzniká povlakovaním (s nízkou emisiou s hodnotami 0,04 až 0,2) vonkajšieho povrchu vnútorného skla (zo strany vzduchovej vrstvy). Nízkoemisná mikrovrstva odráža dlhovlnné infračervené žiarenie, a tým zabraňuje nadmernému úniku tepla z miestnosti. Zmenšuje straty tepla a výrazne znižuje spotrebu energie potrebnej na kúrenie.
Na povlakovanie sa používa mäkká a tvrdá metóda. Pri mäkkom povlakovaní sa dosahujú lepšie tepelnoizolačné vlastnosti.
Tenká vrstvička oxidov kovov je neutrálna, má vysokú priepustnosť svetla vo viditeľnej oblasti spektra. To umožňuje vysoký prienik slnečnej energie do miestnosti, kde sa svetelné žiarenie mení na tepelné a vracia sa späť do miestnosti. Čím nižšia je emisivita nízkoemisného kovového povlaku, tým vyšší tepelný odpor uzavretej vzduchovej (prípadne plynovej) vrstvy sa dosiahne. Čím vyšší je tepelný odpor uzavretej plynovej vrstvy, tým nižší je súčiniteľ prechodu tepla zasklenia. Súčiniteľ prechodu tepla zasklenia na báze dvoch čírych skiel sa pohybuje v rozsahu Ug = 2,7 až 2,9 W/(m2 . K) a na báze nízkoemisného zasklenia v rozsahu Ug = 1,0 až 1,3 W/(m2 . K).

Tab. 2: Základné charakteristiky nízkoemisného izolačného systému zasklenia
1) Rovnaké hodnoty pre šírku dištančného profilu 15 alebo 16 mm,
2) TL – priepustnosť slnečného žiarenia (podľa EN 410),
3) RLext – odrazivosť slnečného žiarenia z vonkajšej sklenej tabule (podľa EN 410),
4) RLint – odrazivosť slnečného žiarenia z vnútornej sklenej tabule (podľa EN 410),
5) TUV – priepustnosť ultrafialového žiarenia (podľa EN 410).
Špeciálne systémy zasklenia pre nízkoenergetickú výstavbu
Tieto systémy zasklenia sú zamerané na šetrenie energií na vykurovanie a klimatizáciu. Sú schopné zabezpečiť nízkoenergetické vlastnosti, zvýšenú ochranu pred kondenzáciou a maximálnu pohodu v interiéri prostredníctvom vyrovnania rozdielov teplôt medzi dňom a nocou, respektíve letom a zimou. Jedným z takýchto druhov zasklení je tzv. tepelné zrkadlo s obchodným označením Heat MirrorTM.
Podstatu jeho systému tvorí polyesterová fólia pokrytá špeciálnymi vrstvami oxidov kovov v šiestich až dvanástich vrstvách, ktorá selektívne prepúšťa slnečné žiarenie. Táto fólia sa vzhľadom na svoje schopnosti odrážať tepelné infračervené žiarenie označuje ako tepelné zrkadlo. Najčastejšie sa používa ako aplikácia strednej vrstvy medzi dvoma transparentnými sklami v izolačnom dvojskle. Technológia tepelného zrkadla bola vyvinutá na využitie v kozmickom priemysle v extrémnych podmienkach otvoreného kozmu. V závislosti od typu a spôsobu použitia fólie pri technologickom procese výroby izolačného dvojskla Heat MirrorTM možno dosiahnuť súčiniteľ prechodu tepla Ug = 0,9 až 0,3 W/(m2 . K).
Výhody pri aplikácii tohto izolačného skla sú:
- najmenšia tepelná priepustnosť,
- zamedzenie prehrievania budov v lete (bez použitia roliet alebo tónovacích skiel),
- vyrovnanejšia teplota v miestnostiach pri okne a v strede miestnosti počas celého roka,
- zvýšená odolnosť proti kondenzácii vodnej pary na vnútornom skle,
- zvýšenie zvukovej izolácie (tlmenie vonkajšieho hluku),
- zlepšenie rastu rastlín,
- podstatné obmedzenie zmien farebnosti kobercov, obrazov, nábytku atď.
Tab. 3: Súčiniteľ prechodu tepla nízkoemisných systémov zasklenia (dvojsklo a trojsklo)
Izolačný systém na báze vákua

Takéto vákuované zasklenie má teda rovnakú funkciu ako termoska, ktorá je spravidla rovnako evakuovaná a má povrch s nízkoemisným stupňom. Patenty vákuovaného zasklenia boli prihlásené už na začiatku 20. storočia.
Na základe teoretickej úvahy sa môžu dosiahnuť hodnoty súčiniteľa prechodu tepla Ug vákuovaného dvojskla až 0,15 W/(m2 . K). Pri vákuovanom trojskle so štyrmi nízkoemisnými vrstvami (s emisným stupňom 0,05) by boli hodnoty Ug nižšie ako 0,1 W/(m2 . K). K tomu treba ešte poznamenať, že dutina medzi sklami by bola len niekoľko desatín milimetra širšia, v dôsledku čoho by sa hrúbka skladby pohybovala v rozsahu dnes používaných izolačných skiel. Hlavné problémy pri výrobe vákuovaného zasklenia sú:
- Aby sa takmer vylúčilo vedenie tepla plynom, treba v priestore medzi sklami vytvoriť vákuum s hodnotou až 10-4 mbar. Toto vákuum sa musí udržiavať po celú životnosť izolačného vákuovaného skla. Z toho vyplývajú extrémne požiadavky na vzduchotesnosť špeciálneho spojenia okrajov skiel.
- Zaťaženie vplyvom vákua na sklené tabule je asi 10 ton na štvorcový meter. Tento tlak sa musí zachytiť pomocou malých dištančných guliek v dutine medzi sklami, ktoré však opäť zvyšujú tepelné straty a môžu ovplyvniť priehľadnosť skiel.
Dištančné rámčeky
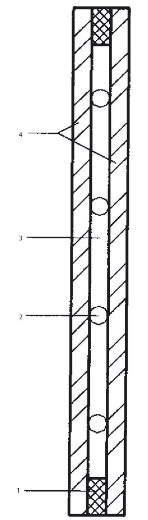
Systémy zasklenia predstavujú z hľadiska tepelnotechnického nehomogénnu konštrukciu. Tvoria ju sklené tabule, vzduchový medzipriestor (inertný plyn) a v okrajovej časti dištančný rámček. Súčasťami dištančných rámčekov sú aj tesniace tmely (trvale plastický, trvale pružný) a absorpčný prostriedok na regulovanie vlhkosti vzduchu (inertného plynu) v uzavretej dutine. Dištančné rámčeky sa už viac ako 15 rokov vyrábajú na báze kovu, zväčša z hliníka. Vplyvom veľmi vysokej tepelnej vodivosti hliníka [λ = 200 W/(m . K)] sa v okraji zasklenia vytvorí tepelný most.
Prejav tohto mosta býva zreteľný najmä v zimnom období, keď na okraji zasklenia vzniká v dôsledku poklesu povrchovej teploty pod teplotu rosného bodu povrchová kondenzácia. Kondenzácia vodnej pary na zasklení môže pri súhre nepriaznivých okolností (nesprávne a nedostatočné vetranie, vysoká produkcia vodnej pary v interiéri, prerušované vykurovanie s vysokým poklesom vnútornej teploty) spôsobiť veľmi nepríjemné hygienické problémy.
![]() |
![]() |
![]() |
|
| Obr. 5: Rezy nízkoemisnými zaskleniami s použitím dištančných rámčekov na báze nehrdzavejúcej ocele a na báze plastu 1 – nehrdzavejúca oceľ, 2 – polyizobutylén, 3 – Silica Gel desiccant, 4 – polysulfid, 5 – polykarbonát, 6 – fólia s povlakom na báze nehrdzavejúcej ocele |
|
Na elimináciu povrchovej kondenzácie vodnej pary na okraji systému zasklenia sa odporúča aplikovať dištančné profily s nižšou hodnotou tepelnej vodivosti. Patria sem rámčeky vyrobené z nehrdzavejúcej ocele a moderné rámčeky s tzv. „teplým okrajom“, ktoré majú podstatne nižší súčiniteľ tepelnej vodivosti ako kovové dištančné rámčeky. Tieto rámčeky sa vyrábajú z kompozitného plastu a sú vystužené sklenenými vláknami s tepelnou vodivosťou menšou ako 0,2 W/m . K (1000× menšou ako pri hliníku).
Používaním týchto dištančných rámčekov sa tepelné mosty v zasklení podstatne obmedzia. Nízkoemisné systémy zasklenia s „teplým okrajom“ vykazujú omnoho vyššiu teplotu vnútornej tabule na jej okraji, čo znižuje výskyt kondenzácie. Tým sa zvyšuje životnosť predovšetkým drevených rámov okien a obmedzuje vznik zdraviu škodlivých plesňových kultúr. Klasický rámik má metalický povrch, zatiaľ čo rámik s „teplým okrajom“ je možné vyrobiť v rôznych farbách tak, že dobre ladí s farbou rámov, tesnením alebo kovaním okna. Všetky ponúkané farebné odtiene sú vyvinuté so zárukou farebnej stálosti – musia prejsť testom odolnosti proti UV žiareniu.
Vplyv tepelného mosta v okrajovej časti zasklenia na tepelný tok cez okno je vyjadrený lineárnym stratovým súčiniteľom Ψg. Charakterizuje prídavný tepelný tok v dôsledku interakcie medzi rámom, zasklením a výplňou zasklenia. Tento súčiniteľ je súčasťou metódy výpočtu výslednej hodnoty súčiniteľa prechodu tepla okna Uok v súlade s normou STN EN ISO 10077-1.
Súčiniteľ prechodu tepla okna sa podľa tejto normy stanoví ako podiel násobku koeficienta prechodu tepla rámu a plochy rámov a krídiel (získanej priemetom na rovinu rovnobežnú s rovinou zasklenia v m2) plus násobku koeficientu prechodu tepla zasklenia a plochy zasklenia (získanej priemetom na rovinu rovnobežnú s rovinou zasklenia v m2) plus násobku lineárneho stratového súčiniteľa vo W/(m . K) a obvodu zasklenia v krídle v m k súčtu plochy zasklenia (získanej priemetom na rovinu rovnobežnú s rovinou zasklenia v m2) a plochy rámov a krídiel (získanej priemetom na rovinu rovnobežnú s rovinou zasklenia v m2).
Kovové (hliníkové a oceľové) dištančné rámčeky majú najväčší vplyv na hodnotu Ψg. Pre hliníkové dištančné profily a pre kombinácie rámových profilov okien sú hodnoty Ψg uvedené v tab. 4. Pre dištančné rámčeky na báze nehrdzavejúcej ocele a na báze „teplého okraja“ platia Ψg hodnoty podľa tab. 5. Ψg hodnoty pre rôzne druhy dištančných rámčekov pri drevenom okne s dvojsklom a trojsklom uvádza tab. 6. V tab. 7 sú uvedené povrchové teploty v okrajovej časti zasklenia (dvojsklo, trojsklo) dreveného okna pri rôznych druhoch dištančných rámčekov.
Tab. 4: Hodnoty Ψg pre hliníkové dištančné profily (podľa EN ISO 10077-1/2006)
Tab. 5: Hodnoty Ψg pre dištančné profily na báze nehrdzavejúcej ocele a na báze plastu vystuženého sklenenými vláknami (podľa EN ISO 10077-1/2006)
Tab. 6: Hodnoty Ψg pre rôzne druhy dištančných rámčekov stanovené výpočtom podľa EN ISO 10077-2 pre drevené profily okien (zdroj: Ift Rosenheim)
Tab. 7: Povrchové teploty v okrajovej časti zasklenia pri rôznych druhoch dištančných rámčekov (stanovené výpočtom podľa EN ISO 10077-2 pre drevené profily okien θi = 20 °C)
Záver
Dištančné rámčeky ako súčasť nehomogénnej konštrukcie systémov zasklenia sa vyrábali na báze hliníka s dobrou tepelnou vodivosťou, čo spôsobovalo v zimnom období pri súhre nepriaznivých okolností povrchovú kondenzáciu na okraji zasklenia aj pri nízkoemisných zaskleniach. Na odstránenie tohto nedostatku začínajú výrobcovia sklených systémov používať rámčeky na báze plastu alebo z ušľachtilej nehrdzavejúcej ocele. Zabudovaním týchto rámčekov do zasklenia sa zvýšia povrchové teploty na okraji zasklenia a zároveň sa zníži veľkosť prídavného tepelného toku (Ψg hodnota) v styku zasklenia a krídla okna.
Ing. Boris Vavrovič, PhD.
Foto: archív autora
Autor pôsobí ako odborný asistent na Katedre konštrukcií pozemných stavieb STU Bratislava.
Recenzoval prof. Ing. Anton Puškár, PhD., ktorý pôsobí ako vedúci Katedry konštrukcií pozemných stavieb na Stavebnej fakulte STU v Bratislave.
Článok bol uverejnený v časopise Stavebné materiály.





















