Kombinované okná na báze dreva a hliníka
V kombinovaných oknách na báze dreva hliníka sa navzájom dopĺňajú výhodné vlastnosti drevených a hliníkových okien. Drevo veľmi dobre izoluje teplo, ale okná zhotovené z tohto materiálu si vyžadujú stálu kontrolu a obnovu najmä vonkajšej povrchovej úpravy. Kombinované okná na báze dreva a hliníka majú nosnú vnútornú konštrukciu z dreva, na ktorú sa zvonka nasadí hliníkový profil poskytujúci ochranu proti poveternostným vplyvom, vďaka čomu nie sú problémy s údržbou náteru na drevených oknách.

Hliníkové profily musia priliehať na drevenú konštrukciu tak, aby bolo zabezpečené odvetrávanie (medzipriestor minimálne 7 mm). Aby mohli hliníkové časti voľne dilatovať vplyvom teploty, obe časti sa spoja posuvnými príložkami (obr. 1).
Použitím dreva a hliníka možno vytvoriť rozličné typy konštrukcií. Vonkajšie hliníkové profily možno osadiť na drevené profily podľa DIN 68 121 (po výmene odvodňovacích líšt aj dodatočne na zabudované okná; obr. 2). Pri väčšine systémov sa drevené profily špeciálne prispôsobujú hliníkovým systémom. Hliníkové profily tvoria vonkajšiu rovinu zasklievacej drážky a skombinujú sa s tesnením medzi rámom a krídlom okna (obr. 3). Vzhľadom na rozdiely v dĺžke drevených a hliníkových profilov spôsobené teplotou sa do týchto konštrukcií používajú sklené tabule s tesniacimi profilmi. Na vnútornej strane môže byť zasklenie so zasklievacou lištou alebo bez nej (obr. 4).
![]() |
![]() |
| Obr. 2 Kombinované okno na báze dreva a hliníka pri použití drevených profilov podľa DIN 68 212 (BUG Holz Plus®) | Obr. 3 Kombinované okno na báze dreva a hliníka so špeciálnymi drevenými profilmi, s hliníkovou vonkajšou zasklievacou lištou (aluvogt®) |
Tepelnoizolačné vlastnosti konštrukcií s kombináciou dreva a hliníka možno zlepšiť použitím hliníkových profilov vyplnených penovým materiálom (obr. 5). Okrem konštrukcií s plošne posunutým profilom rámu a krídla, použitých v uvedených príkladoch, možno vyrobiť tieto kombinované okná aj v lícovanej podobe (obr. 6).
![]() |
![]() |
| Obr. 4 Kombinované okno na báze dreva a hliníka so špeciálnymi drevenými profilmi, s vnútornými zasklievacími lištami (Gutmann 4000®) | Obr. 5 Kombinované okno na báze dreva a hliníka s vonkajšími hliníkovými profilmi vyplnenými penovým materiálom (Gutmann Mira Therm®) |
Obr. 6 Kombinované okno na báze dreva a hliníka plošne lícované na vonkajšej strane (Gutmann)
Napokon možno kombinovať aj okenné krídla z hliníka s rámom z prírodného dreva. Ako príklad úplne nových konštrukčných princípov môže slúžiť okenný systém znázornený na obr. 7. Pri pohľade na okno zvonka vidno len hliníkové okenné krídlo. Pri bežnom riešení relatívne jednoducho upravené drevené profily možno použiť takmer na všetky okenné rámy. Zakrývajú krídlový rám nachádzajúci sa zvonka a výsledkom je esteticky čisté riešenie.
Obr. 7 Kombinované systémy na báze dreva a hliníka (Velfac®)
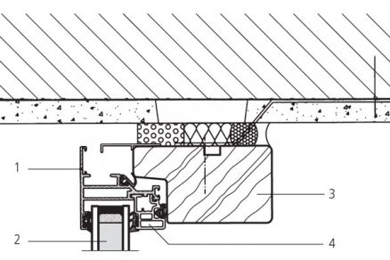
1 – hliníkový profil, 2 – izolačné zasklenie s „teplou hranou“ (dištančná vložka medzi sklami so zníženou tepelnou vodivosťou), 3 – plastový zasklievací profil s tesnením medzi rámom a krídlom, 4 – vnútorný rámový profil (borovicový profil)
Nevýhodou tohto konštrukčného princípu je, že okenné krídla sa otvárajú len von. Pri použití špeciálneho kovania možno tieto okná dobre čistiť a využívať na vetranie, pričom môžu byť otočné, výklopné, posuvné, strešné a pod.
D. Neumann, U. Weinbrenner, U. Hestermann a L. Rongen
Grafické prílohy: archív autorov
Príspevok je súčasťou publikácie Stavebné konštrukcie od renomovaných autorov D. Neumanna, U. Weinbrennera, U. Hestermana a L. Rongena. Druhý diel, ktorý z nemeckého originálu preložila PhDr. Ildikó Gúziková, sa po úspešnom prvom diele detailne venuje najdôležitejším typom konštrukcií. Rozoberá šikmé a ploché strechy, komíny a vetracie šachty, schody, rampy, výťahy, okná, dvere, ľahké fasády, posuvné dvere a steny, vonkajšie, vnútorné a špeciálne omietky a kontaktné zatepľovacie systémy, nátery a tapety na steny a tiež lešenia a debnenia. V knihe sú zobrazené všetky dôležité charakteristické detaily konštrukcií, schémy a zloženia prvkov. K tomu, samozrejme, všetky dôležité informácie potrebné nielen pre študentov a pedagógov, ale aj pre projektantov a architektov, ktorí sa chcú vyhnúť chybám.
















