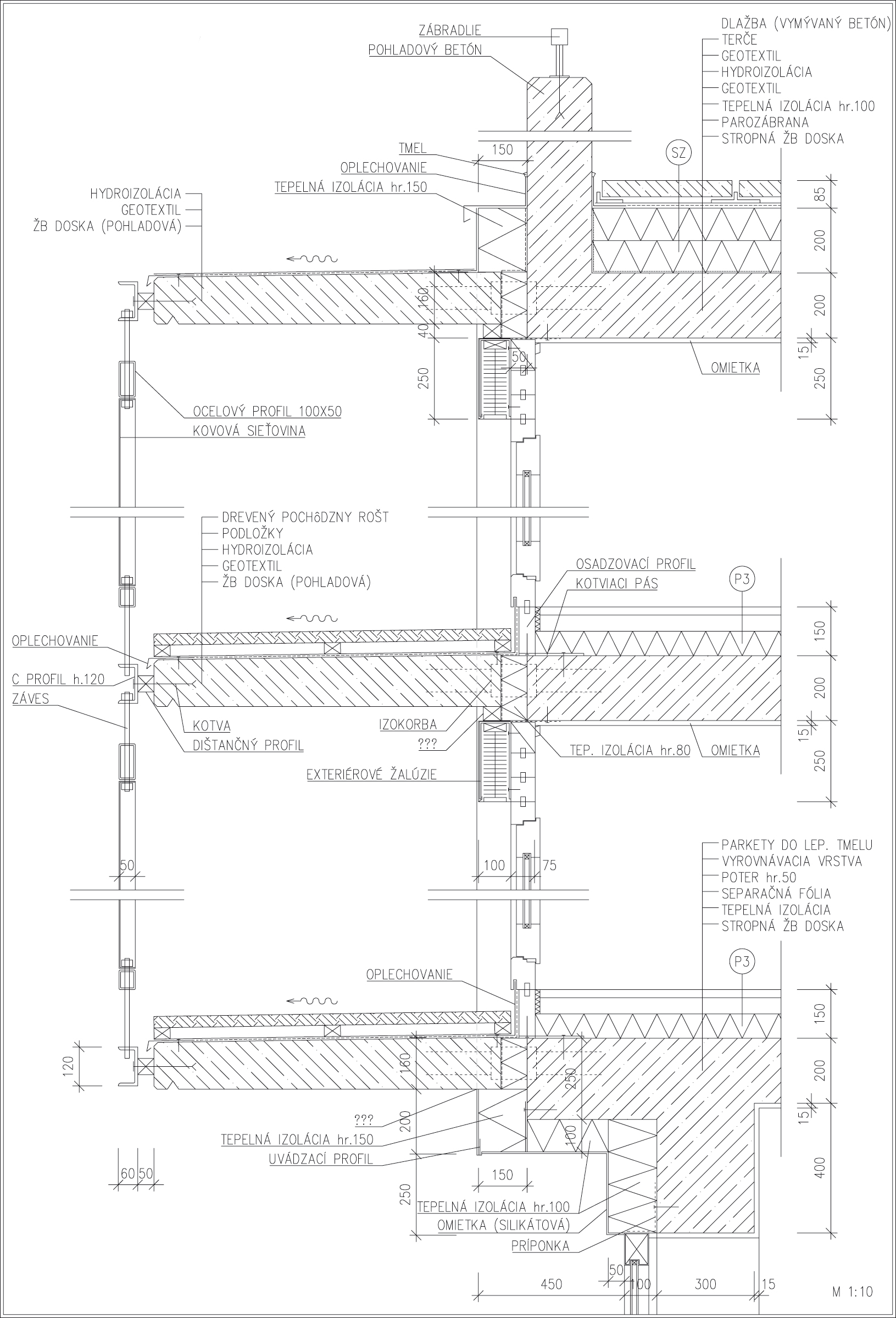
Detail osadenia okna v bytovom dome Nikola House
Farebné paravány sú z hliníka upraveného práškovým vypaľovacím lakom. Sú zavesené na konštrukcii lodžií, ktorá je od fasády tepelne oddilatovaná. Takto mohli ostať kovové prvky subtílne a priznané. Nevytvárajú tepelné mosty, takže sa architekt aj investor vyhli zatepleniu dosiek lodžií tepelnou izoláciou s následným omietnutím, ako sa to bežne na stavbách robí.
Pre lepšie zobrazenie na obrázok kliknite alebo si pozrite originálnu veľkosť
Foto: Dano Veselský
dokumentácia: ise, s. r. o.






