Drevené, plastové, hliníkové aj drevo-hliníkové okná a dvere
Od rekonštrukcie historickej budovy pivovaru až po súčasnú architektúru. Pre nízkoenergetické a pasívne budovy, ale aj dizajnové „vychytávky“ aktuálnych trendov v interiéri. Drevené, plastové, hliníkové aj drevo-hliníkové. S čoraz lepšími tepelnoizolačnými aj akustickými vlastnosťami. Estetické a najmä funkčné. To sú podoby okien a dverí, ktoré prezentujeme ako tipy pre rekonštrukcie a súčasnú architektúru.
Turnov, Česká republika
Pivovaru pomohla nová vizáž s oknami
V roku 2010 odštartoval dlhodobý proces rekonštrukcie historickej budovy pivovaru Rohozec z prvej polovice 19. storočia, ktorý dnes prináša viditeľné výsledky. Dodávateľom okien sa stala firma Okna Tanvald, ktorá je dlhoročným výrobcom okien s PVC profilmi od spoločnosti Inoutic. Do budovy zámku, teda bývalej rezidencie zakladateľa pivovaru, sa vybrali plastové profily Inoutic z radu Arcade vo farbe a dekore orecha. Do priemyselných častí sa zase aplikovali také okná, ktoré sa pre dôveryhodnosť čo najviac priblížili vzhľadu okien delených do malých tabuliek v kovových mriežkach.
Laminácia mala pri týchto profiloch antracitovú farbu, pretože tá najvernejšie evokuje priemyselný materiál. Keďže pivovar nekladie pri oknách zvláštne požiadavky na zvýšenú tepelnú izoláciu, priepustnosť ÚV žiarenia atď., nebolo treba vyberať zasklenie s extra úžitkovými vlastnosťami. Tieto okná spĺňali aj ďalšie dôležité požiadavky – kvalitu profilu a garantovanú životnosť. „Výmena okien v pivovare pri takej rozsiahlej rekonštrukcii a neprerušenej výrobe piva bola veľkou výzvou,“ hovorí Martin Jodas zo spoločnosti Okna Tanvald. „Úspešné prekonanie všetkých prekážok by nebolo možné bez súhry so stavebnou spoločnosťou Termil, ktorá zabezpečovala stavebnú a manipulačnú pripravenosť na osadenie nadrozmerných okien (šírka 2,1 m a výška 3 m). Pri rekonštrukcii sa inštalovalo vyše 140 okien a dverí, pričom celková dĺžka všetkých profilov Inoutic presiahla 5 km. Tomu zodpovedá aj celková plocha okien a dverí, ktorá je 300 m².“
Detail osadenia profilu Inoutic z radu Arcade.
1 Okenná fólia ME510, exteriér
2 APU lišta
3 Polyuretánová pena
4 Okenný profil
5 Okenná fólia ME 511, interiér
6 Vnútorná omietka
7 Murivo s vnútorným tepelným izolantom
FOTO:
Okna Tanvald, Inoutic
Výška dverí dosahuje až 3,7 metra
Dizajnové dvere od podlahy k stropu
Najvýraznejšou črtou dverí Master je ich výška – dosahuje až 3,7 m. Keďže dvere nemusia mať horné nadpražie, môžu zaberať skutočne celý priestor od podlahy až k stropu, čo z nich vytvára neprehliadnuteľný interiérový prvok. „Pre tento typ dverí dokonca nie sú problém ani šikminy podkrovných priestorov, ktoré dvere Master svojím tvarom kopírujú,“ vysvetľuje Petr Paksi, výkonný riaditeľ spoločnosti J.A.P. Slovakia, ktorá je výrobcom kompletného radu dverných systémov. Základ dverí Master tvorí hliníkový profil z eloxu, ktorý môže mať aj komaxitovú povrchovú úpravu podľa stupnice RAL, a dva krycie plášte s hrúbkou 4 mm. „Vonkajší plášť dverí sa neobmedzuje iba na sklo a k dispozícii sú aj laminátové a kovolaminátové povrchy. Tieto materiály sa dajú vždy originálne poskladať a umiestniť v rámci plochy dverí v horizontálnej i vertikálnej rovine,“ hovorí Petr Paksi. Vo vnútri dverového krídla je extrudovaný polystyrén s hrúbkou 30 mm, ktorý sa dá nahradiť kamennou vlnou, a hliníkové priečky. Tie sa používajú na spevnenie dverí alebo slúžia ako deliace priečky pri členení dverí rôznymi materiálmi. Dvere Master sú vyrábané v niekoľkých variantoch: otočné bezpolodrážkové (40/00) aj polodrážkové (25/15 alebo 47/15). K dispozícii je aj posuvný bezpolodrážkový variant (40/00) do stavebných puzdier alebo posuvných systémov. Dverové krídlo Master má zvukovú izoláciu 34 db.
![]() |
![]() |
![]() |
Schémy a rezy dverami Master
FOTO, DETAIL:
J.A.P. Slovakia
Lepšie izolačné hodnoty
Plastové okná s vyššou záťažou skla
Výroba plastových okien a dverí prešla počas posledného desaťročia obrovským vývojom, pričom dnešné okná zvládajú vyššiu záťaž skla. Pre zabezpečenie lepšej stability a pevnosti sa spoločnosť BRUVO Slovakia rozhodla pre plastové profily triedy A, ktoré obsahujú o 20 % viac materiálu. Toto sa prejavuje v minimálnej hrúbke steny 3 mm, čo sa nedá dosiahnuť pri profile triedy B. Okrem kvalitnejšieho profilu je ale dôležitý aj vzhľad. Široká škála farieb umožňuje plne vyhovieť tvorivým architektonickým požiadavkám. Profily A dosahujú aj lepšie izolačné hodnoty a hodnota 0,92 W/(m2 . K) zo série Diamant ´82 patrí k najlepším. Pri projekte renovácie, kde celkový vzhľad vyžaduje okná s historickým dizajnom, sa môže pridať séria predpripravených profilov s celkovou rezbárskou štylizáciou. Pomocou spôsobu spájania okenných prvkov ponúkajú tieto okná rovnaké drevené spoje, aké majú skutočné drevené okná. Okrem atypických tvarov, ako sú napríklad kruhové alebo šikmé, sú k dispozícii okná so súčasným vzhľadom. K dispozícii sú aj okná so skrytými pántami, pri ktorých udáva tón čistá línia profilu. Tieto okná sa dajú skombinovať so skrytými kľučkami v rozličných kovových odtieňoch. Každé okno je štandardne vybavené bezpečnostným kovaním RC2, vďaka ktorému je vlámanie takmer nemožné.
Schéma profilu A zo série Diamant ´82
FOTO a DETAIL:
BRUVO Slovakia
Povrchová úprava HWR
Hliníkové profily pre súčasnú architektúru
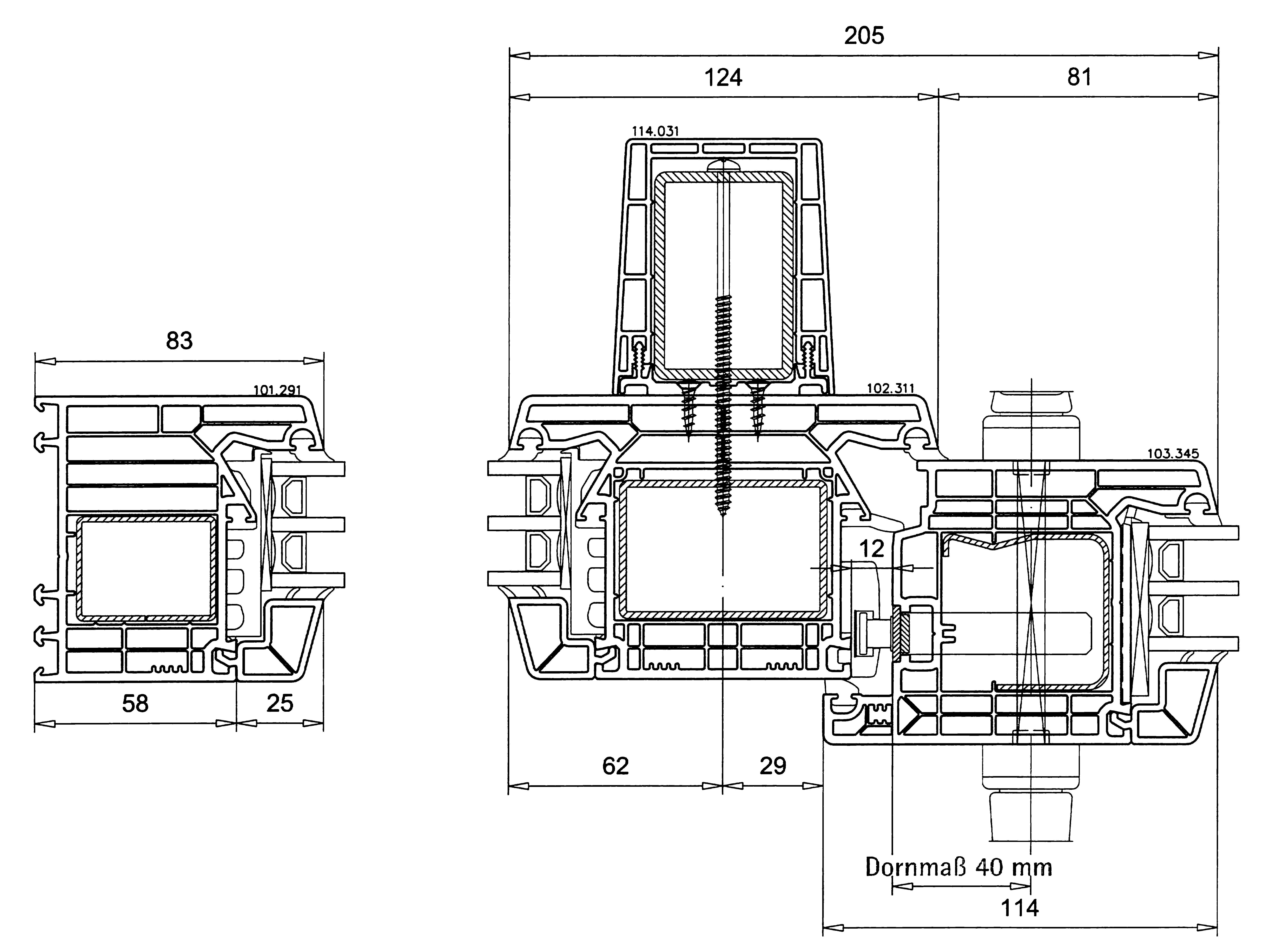
Hliníkové profily sú so svojimi rozmanitými funkčnými a dizajnovými možnosťami v centre záujmu súčasnej architektúry. Spoločnosť Slovaktual má popri plastovej i komplexnú ponuku okien, dverí a fasád z hliníka, pričom aj v tomto prípade spoločnosť zvolila najkvalitnejšieho dodávateľa profilov – nemeckú firmu Heroal. Prednosť produktov Slovaktual spočíva predovšetkým v nadštandardnej povrchovej úprave HWR. Zaručuje vyššiu odolnosť proti poveternostným vplyvom a má dlhšiu farebnú stálosť oproti bežným polyesterovým farbám. Výhodou penovej výplne profilov je kompletné vyplnenie rámu a krídel profilu. Týmto spôsobom sa dosiahne úplné vyplnenie komory a optimálne využitie tepelnej izolácie.
Zvýšená flexibilita a funkčnosť hliníkového okna heroal 72 sa dosahuje inovatívnou geometriou izolačných priečok. Vďaka nej dosahuje systém pri konštrukčnej hĺbke 72 mm v ráme a 84 mm v krídle najlepších hodnôt Uw a maximálnej zaťažiteľnosti, a to aj bez použitia izolácie rámov a drážok. Modulárna konštrukcia zaisťuje optimálnu spotrebu energií a materiálu pri zachovaní maximálnej energetickej a nákladovej efektívnosti počas celého používania. Mimoriadnu udržateľnosť umožňuje variant priečok z obnoviteľných zdrojov. K technickým inováciám patrí aj možnosť kombinovať balkónové dvere v systéme heroal 72 s drenážnym systémom heroal DS, čo umožňuje realizovať bezbariérové prahy a súčasne chrániť interiér pred poškodením vlhkosťou.
Schéma okna heroal 72
FOTO, DETAIL:
Slovaktual, s. r. o.
Nová generácia drevo-hliník
Nízkoenergetické a pasívne stavby
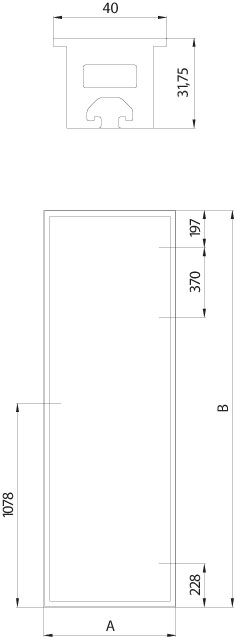
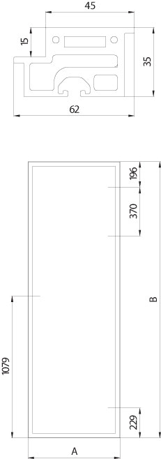
„Nová generácia profilov drevo-hliníkových okien patrí medzi najkvalitnejšie výplne stavebných otvorov, či už z hľadiska tepelnoizolačného, alebo estetického,“ hovorí Dušan Svetlík, konateľ spoločnosti Mirador. „Spája sa v v ňom tradičný materiál – drevo a moderný profil hliníkového opláštenia okennej konštrukcie z exteriérovej strany. „Drevo ako konštrukčný materiál má priaznivé hodnoty zo statického, ako aj estetického hľadiska. Je príjemné na dotyk a jeho farebné vyhotovenie sa dá prispôsobiť akejkoľvek architektonickej požiadavke v interiéri. Hliníkové opláštenie je vhodné z hľadiska moderného riešenia a dá sa povrchovo upraviť nástrekmi rôznych farebných odtieňov RAL alebo štruktúrovanými povrchovými úpravami, ktoré pôsobia nadčasovo.
K dispozícii je profilový rad Mirador Alu 933 vhodný do všetkých druhov nízkoenergetických stavieb blížiacich sa k pasívnym. Majú použitú hrúbku dreveného profilu 93 mm, zasklenie so súčiniteľom prechodu tepla Ug = 0,5 W/(m2 . K) a s dištančným rámikom izolačného zasklenia Swiss peacer Adwance. Do pasívnych domov je vyvinutý profilový rad Mirador Alu 1083 pasiv s hrúbkou dreveného profilu a špeciálnej tepelnej izolácie 108 mm, zasklením so súčiniteľom prechodu tepla Ug = 0,6 W/(m2 . K) so zvýšeným solárnym ziskom a súčiniteľom pre rám okna s hodnotou Uf = 0,76, kde je celkový súčiniteľ prechodu tepla oknom Uw = 0,78 W/(m2 . K), s dištančným rámikom izolačného zasklenia Swiss pacer ultimate.
![]() |
![]() |
Rez drevo-hliníkovým oknom ALU 933 + Rez drevo-hliníkovým oknom ALU 1083 pasiv
FOTO, DETAIL:
Mirador
Článok bol uverejnený v časopise ASB.































