Technologické a geotechnické aspekty návrhu tunela Soroška
Ekonomický rozvoj regiónov úzko súvisí s dostupným dopravným prepojením. Preto je vhodné budovať diaľničné prepojenia a tunely aj v menej rozvinutých oblastiach. Jedno z týchto spojení predstavuje aj rýchlostná cesta R2 s horským priechodom a plánovaným tunelom Soroška. Úsek nie je súčasťou transeurópskej cestnej siete, napriek tomu je jeho vybudovanie z hľadiska rozvoja regiónu nevyhnutné.
Podzemné staviteľstvo a stavby s ním spojené majú v dnešnom svete nepopierateľný význam. Uplatňujú sa v priemysle, poľnohospodárstve, doprave a pod. Tunely pomáhajú spájať miesta, ktoré nemožno spojiť pozemnou komunikáciou z dôvodu existencie pohorí, zálivov či prielivov, alebo pomáhajú prekonávať prekážky, ktorých zdolanie by bolo komplikované či zdĺhavé. Tunelové stavby sa podpísali aj pod spôsob nášho života, keďže umožňujú spájať vzdialené mestá bez zásahu do rôznych biotopov alebo devastácie prírodných krás nadmernou mechanizáciou, ktorej by boli vystavené pri budovaní klasického cestného spojenia.
Charakteristika tunela Soroška
Z hľadiska morfológie terénu a na základe výsledkov procesu EIA sa prekonanie horského územia Slovenského krasu cestným priechodom Soroška rieši tunelom medzi Rožňavskou kotlinou a Turnianskou kotlinou (bazálny tunel). Západný portál tunela je situovaný južne od obce Lipovník a železničnej trate Košice – Zvolen. Východný portál tunela je situovaný na lúke nad potokom Čremošná. Tunel klesá od západného portálu k východnému portálu, pričom prevýšenie medzi portálovými objektmi je 70 m.
Oproti procesu EIA sa na základe požiadaviek z prerokovania tohto procesu posunul východný portál tunela približne o 350 m od obce Jablonov nad Turňou a dĺžka tunela sa skrátila približne o 370 m, čím sa zároveň získa úspora odhadovaných nákladov na realizáciu stavby. Samotný tunel Soroška je situovaný súbežne s Jablonovským železničným tunelom vo výškovej úrovni približne 37 m pod železničným tunelom. Zhruba v dvoch tretinách dĺžky tunela (km 9,05 rýchlostnej cesty a žkm 56,140) križuje rýchlostná cesta železničný tunel, a to asi 50 m pod ním.
Vetranie tunela Soroška sa vzhľadom na pozdĺžny sklon tunela a predpokladané dopravné zaťaženie rýchlostnej cesty R2 počas prevádzky navrhuje ako pozdĺžne s usmernením axiálnymi ventilátormi umiestnenými na strope tunela s výduchom cez portály tunela. Približne dve tretiny dĺžky tunela sa budú odvetrávať cez západný portál tunela a jedna tretina cez východný portál. V prípade požiaru v tuneli bude tunel okrem toho odvetrávaný aj cez vetraciu šachtu situovanú asi v tretine tunela v blízkosti jestvujúcej cesty I/50 a jej horského priechodu.
Tunel Soroška je rozdelený na 15 stavebných častí a 23 technologických častí. Súčasťou tunela je aj centrálny riadiaci systém situovaný v operátorskom pracovisku na stredisku Jovice. K tunelu patria aj pomocné technické objekty na oboch portáloch tunela.
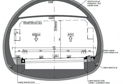
Profil tunela bude natočený tak, aby jeho os súmernosti bola kolmá na vozovku. Základným prvkom určujúcim veľkosť a tvar priečneho profilu cestného tunela je priechodný prierez na obr. 1.
Obr. 1 Priečny rez tunelom Soroška s obojsmernou prevádzkou
Šírkové usporiadanie tunela je v zmysle STN 73 7507 predpísané kategóriou T-8,0, t. j. ide o tunelovú rúru s dvoma jazdnými pruhmi so šírkou 3,50 m a núdzovými chodníkmi so šírkou 1,0 m po oboch stranách. Šírka vozovky medzi obrubníkmi bude 8,0 m.
Výška priechodného priestoru nad núdzovými chodníkmi je minimálne 2,2 m. V tunelových rúrach je teoretická plocha užitočného priestoru tunela 55,72 m2.
Metóda výstavby tunela
V rámci prípravy sa spracovala predbežná analýza vhodnosti raziacich metód, ktorá sa zamerala na porovnanie Novej rakúskej tunelovacej metódy (NRTM), resp. cyklickej metódy razenia, a razenia pomocou raziaceho stroja (TBM), t. j. kontinuálneho spôsobu razenia. Do úvahy sa brali faktory ako geotechnické nebezpečenstvo, nevyhnutnosť zlepšovania prostredia (pomocné opatrenia), geologický prieskum masívu a logistika.
Veľkosť geotechnického rizika je pri NRTM aj TBM v zásade rovnaká. NRTM je však flexibilnejšia a tieto riziká pri nej možno zvládnuť jednoduchšie. Pri metóde TBM je náročné prispôsobovať sa počas razenia rôznorodosti horninového masívu, NRTM sa však môže kedykoľvek prispôsobiť zmenám horninového prostredia na trase úpravou prierezu. To sa vzhľadom na obmedzené poznanie inžinierskogeologických podmienok na trase tunela zobralo do úvahy ako rozhodujúci faktor. NRTM je pritom jednoduchšia aj z hľadiska technickej prípravy.
Do značnej miery možno použiť už viac-menej bežné technológie a zamestnancov, ktorí majú skúsenosti v oblasti razenia tunelov a baníckych prác. Spôsob razenia je pomerne flexibilný aj z hľadiska prierezu tunela. Núdzové zálivy, spojovacie a únikové prejazdné a priechodné chodby a jednotlivé výklenky sa môžu raziť už počas razenia hlavnej tunelovej rúry.
Obr. 2 Hrušovská jaskyňa zapísaná v zozname UNESCO, ktorej konečná plošná veľkosť dodnes nie je v masíve zmapovaná
Keďže tunel Soroška sa bude raziť v krasovom útvare (obr. 2), raziaci stroj by mohol naraziť na rôzne dutiny, napríklad jaskyne zaplnené vodou, čo by mohlo postup na dlhší čas zastaviť alebo minimálne spomaliť. O výskyte nových, nezmapovaných kaverien do výšky 8 – 9 m a naozaj veľkých dutých priestorov (výška okolo 23 – 25 m) sa dozvedáme z inžinierskogeologického prieskumu, ktorý sa už realizuje (obr. 3).
Obr. 3 Výplachová jama k vrtom ST-16WL a ST-HG5
Práve táto nepredvídateľnosť je spojená s nevyhnutnosťou použiť pomocné opatrenia na zaistenie výrubu, dôsledkom čoho je väčšinou zmenšenie vnútorného prierezu. Približne prvých 50 m by sa muselo aj pri použití TBM vyraziť klasicky s použitím pomocných opatrení, ako sú mikropilótový dáždnik alebo vytvorenie klenby z tryskovej injektáže. Na základe týchto predpokladov je projekt tunela spracovaný na razenie tunela s použitím NRTM.
Statické riešenie tunelového ostenia
Problematika statického výpočtu zahŕňa široké spektrum geotechnických úloh, z ktorých statický výpočet predstavuje len malú, ale o to zložitejšiu časť. Už pri návrhu tunela musí mať projektant na zreteli všetky súvislosti a komplikácie, ktoré môže dielo vyvolať, a musí si zvoliť kompromis medzi technickým a ekonomickým riešením.
Zatiaľ čo statik pozemných konštrukcií pracuje pri návrhu konštrukcie s viac či menej exaktne definovanými materiálmi a riešenie spodnej stavby predstavuje len časť realizovaných výpočtov, pre geotechnika je horninové prostredie stavebným materiálom, ktorý tvorí základný prvok nosného systému „ostenie – hornina“, pričom pri návrhu podzemného diela s ním musí veľmi zodpovedne pracovať. Od výsledku jeho práce priamo závisí bezpečnosť a cena diela, ktorá práve v prípade dopravných tunelov nie je nízka.
Kým gravitačné napätie masívu môže geotechnik spočítať, zvyšné zložky geostatickej napätosti, ako sú reziduálne a tektonické napätie, len odhaduje. Výsledkom zlej interpretácie môžu byť chybné závery a následne nepresné výpočty, ktoré vyústia do ekonomicky nevýhodne navrhnutého podzemného diela.
Preto je jednou z prvých a najdôležitejších úloh určenie primárnej napätosti v horninovom masíve, pričom ho maximálnou mierou ovplyvňuje práve tektonické napätie, ktoré je v okolí zlomov a trhlín.
Ako je všeobecne známe, hornina v okolí výrubu „uniká“ splastizovaniu premiestnením napäťového poľa z otvoru. Tým sa vytvorí odľahčená zóna, ktorá má tendenciu zosunúť sa do výrubu.
V prípade, že sa výrub nevystrojí, dôjde k zavaleniu a hornina sa bude do masívu rozvoľňovať tak dlho, kým sa opäť nevytvorí rovnovážny stav vo väčšej vzdialenosti od výrubu, pričom vznikne tzv. prirodzená horninová klenba. Rozsah odľahčenej zóny závisí od fyzikálno-mechanických vlastností horninového masívu, tvaru a rozmerov výrubu a od tunelovacej metódy.
Obr. 4 Neporušené vrtné jadro z priestoru budúceho tunela
Za odľahčenou zónou nasleduje zóna zvýšených napätí, čiže horninová klenba, v ktorej sa vo väčšej vzdialenosti od výrubu, a teda aj na väčšej ploche roznášajú zvyšné napätia a hornina sa stáva samonosnou. Na to, aby sa mohla vytvoriť horninová klenba, je nevyhnutná dostatočne mocná vrstva masívu nad tunelom. S pokryvnými vrstvami sa pritom v nadloží nepočíta. V prípade tunela Soroška bola horninová klenba podľa viacerých výpočtových prístupov určená v hrúbke od 25 do 40 m, a to za predpokladu zdravej skalnej horniny (obr. 4).
V STN EN ISO 14689 – 1 je horninový masív charakterizovaný ako hornina spoločne s diskontinuitami, zónami zvetrania a podzemnou vodou. Tieto diskontinuity znižujú súdržnosť hornín, ktoré tvoria horninové prostredie, a menia ich vlastnosti.
Obr. 5 Vplyv inžinierskogeologického prieskumu na odhad potrebných parametrov
Prečo je také náročné správne odhadnúť parametre na určenie primárnej napätosti, je zrejmé z obr. 5. Ten predstavuje najbežnejší príklad toho, čo musí geotechnik vyriešiť pri správnom vyhodnocovaní inžinierskogeologického prieskumu (a je jedno, či ide o predbežný, podrobný, alebo doplnkový prieskum). To, samozrejme, môže v miestach s núdzovým zálivom a priečnym prepojením robiť problémy, najmä z dôvodu veľkých výrubových plôch (obr. 6).
Ďalším problémom je otvorenosť trhlín, ktorá sa môže pohybovať vo veľkých rozpätiach. Zároveň je výplň trhlín rozdielna (voda, vzduch, rozrušený až sypký materiál), čo vo veľkej miere ovplyvňuje mechanické vlastnosti materiálu. Pre vápence Slovenského krasu je práve táto rozpukanosť charakteristická, takže jej správne vyhodnotenie je hlavným vstupom pri spresnení výpočtového modelu.
Obr. 6 Navrhnuté priečne prepojenie s únikovou štôlňou
Pri vyhodnocovaní vplyvu porúch horninového masívu na tunel Soroška sa použil predpoklad, že v mieste zlomu/trhliny sa znižujú kontaktné napätia, ktoré možno variovať podľa šírky trhliny a jej výplne (keď tvorí výplň voda alebo vzduch, je kontaktné napätie rovné nule). Nastáva však otázka, ako vyhodnotiť vertikálne pohyby vzhľadom na rádovo rozdielnu stlačiteľnosť vody a vzduchu.
V takomto prípade možno pracovať s predpokladom, že z pohľadu geologického vývoja sa už dosiahol rovnovážny stav, takže aj táto deformácia sa bude rovnať nule. Takto možno ohraničiť počet premenných, ktoré by mohli ovplyvniť výpočet primárnej napätosti.
Obr. 7 Vplyv modelovanej trhliny na okolité prostredie (vľavo vyčerpanie šmykovej pevnosti, vpravo ekvivalent pomerného pretvorenia)
Ako prvý sa vyhodnotil spôsob zohľadnenia trhliny v modeli (obr. 7), potom sa urobil výpočet na stanovenie tendencie, s akou vplýva modelovaná trhlina na samotnú výstavbu tunela (obr. 8 a 9). Tieto obrázky predstavujú vývoj napätí v okolí výrubu v závislosti od postupu výstavby. Tunel Soroška bude jednorúrový, s únikovou štôlňou, očakáva sa však, že v prípade nárastu dopravného zaťaženia a nevyhnutnosti riešenia tejto situácie by sa pristúpilo k razeniu druhej tunelovej rúry. Táto vízia však musí byť zahrnutá už v súčasných výpočtoch, aby nedošlo, práve pre ďalšie dodatočné prerozdelenie napätí, k deštrukcii už jestvujúceho tunela.
Obr. 8 Ekvivalentné pomerné pretvorenie v okolí tunela (vľavo s vplyvom trhliny, vpravo bez vplyvu trhliny)
Obr. 9 Vyčerpanie šmykovej pevnosti v okolí tunela (vľavo s vplyvom trhliny, vpravo bez vplyvu trhliny)
V rámci simulácie vplyvu trhlín na tunel sa vyhodnocoval aj vplyv na vznik horninovej klenby. Výpočet poukázal na fakt, že v prípade „jednoduchých“ zlomov závisí vďaka trhline zvýšené prerozdelenie primárneho napätia priamo od sklonu anomálie k osi tunela, v dôsledku čoho ani deformácie nemožno brať konštantne v rámci oboch tunelových rúr. To sa však mení v prípade, že ide o súbor trhlín, ktoré sa navzájom ovplyvňujú (obr. 10). V mieste najvyššej koncentrácie vznikajú nekontrolované deformácie podnecujúce prostredie k vzniku „sekundárnej“ horninovej klenby, ktorá by v prípade aktivácie nemala formu lokálnych nadvýlomov, ale priamo zrútenia stredového piliera a zavalenia.
Obr. 10 Horninová klenba v prípade „jednoduchej“ trhliny a vznik „sekundárnej“ horninovej klenby pre súbor trhlín
Záver
V predchádzajúcich častiach sme sa venovali jednej z mnohých okrajových podmienok, ktoré vstupujú do určenia primárnej napätosti a svojím charakterom najviac ovplyvňujú správanie horninového masívu medzi odstrelom a zabudovaním primárneho ostenia. Tento krok zodpovedá času, v ktorom je záber nevystrojený a dochádza k prerozdeleniu napätí v horninovom masíve. Toto prerozdelenie priamo ovplyvňujú zlomy, trhliny a plochy nespojitosti, ktoré predikujú hlavné smery šírenia napätí a oslabujú materiál v okolí. Takéto oslabenie spôsobuje stratu pevnosti a radikálnu zmenu mechanických vlastností, pričom práve na takéto náhle zmeny musí byť geotechnik pri plánovaní postupu výstavby pripravený.
Optimálna spolupráca medzi geológom a geotechnikom počas zadávania geologickej úlohy a jej vyhodnocovania dokáže aspoň čiastočne znížiť riziko nepredvídateľnosti a toho povestného „kroku do neznáma“. Táto spolupráca však musí bezpodmienečne pokračovať aj počas správneho opisovania čelby a okolia výrubu, aby geotechnik mohol rýchlo reagovať na zmeny a upravovať výpočtové modely bez ohrozenia celkovej stability diela, pretože chyby sa v takýchto prípadoch pohybujú v astronomických sumách. Ekonomické následky však nie sú nič v porovnaní s tým, že pri zlom odhade času prerozdelenia napätí sa dni zmenia na sekundy, čo môže spôsobiť straty na ľudských životoch.
Technological and geotechnical aspect of tunnel Soroška design
Tunnel Soroška is placed in the area of Slovenský Kras between Turnianska basin and Rožňavská basin. In the article are described technological aspects of driving tunnel in karst area in view of choice between TBM driving method and NATM driving method. The second part of the article is aimed to static calculations of tunnel lining. New information from geological investigation is taken into account. Influences of discontinuities to rock pillar stability between tunnel tubes are discussed in detail.
TEXT: Ing. Juraj Ortuta, Ing. Peter Paločko, PhD.
FOTO A OBRÁZKY: Amberg Engineering Slovakia, s. r. o.
Juraj Ortuta a Peter Paločko pôsobia v spoločnosti Amberg Engineering Slovakia, s. r. o.
Článok bol uverejnený v časopise Inžinierske stavby 5/2017.





















