Zakladanie mosta SO 212-00 na diaľnici nad údolím v km 42,376 D3
Diaľničný úsek Čadca, Bukov – Svrčinovec je súčasťou diaľničného ťahu D3, ktorý sa v križovatke Hričovské Podhradie napája na diaľnicu D1, tvoriacu základný ťah v Slovenskej republike v smere východ – západ. Riešený úsek D3 dopĺňa diaľničnú sieť v smere Žilina – Kysucké Nové Mesto – Čadca – Skalité, čím vytvára s úsekom D1 od Bratislavy jednu zo severojužných dopravných osí Slovenska.
Vybudovanie tohto úseku so všetkými potrebnými napojeniami a dopravnými riešeniami patrí momentálne na Slovensku k technicky najzaujímavejším a najnáročnejším projektom.
Na celom úseku D3 vedie v súčasnosti doprava po existujúcich cestách I/11 a I/12, ktoré sa využívajú aj tranzitnou medzištátnou prepravou. V sledovanom úseku prechádzajú tieto komunikácie intravilánom mesta Čadce a obce Svrčinovec, čo výrazne znižuje plynulosť a rýchlosť dopravy, znehodnocuje životné prostredie nadmerným hlukom a exhalátmi a ohrozuje bezpečnosť a zdravie ľudí. Obe komunikácie vyúsťujú na hraničných priechodoch – cesta I/11 na priechode SR/ČR – Svrčinovec/Mosty u Jablunkova a cesta I/12 na priechode SR/P – Skalité/Zwardoń. Samotná cesta I/11 je v súčasnosti preťažovaná najmä tranzitnou nákladnou dopravou, ktorej požiadavkám už nevyhovuje.
Riešením nepriaznivej dopravnej situácie v území je vybudovať novú súbežnú kapacitnú komunikáciu. Diaľnica D3 bude mať význam aj z hľadiska tranzitnej medzištátnej dopravy. Na začiatku úseku je napojenie navrhnuté na existujúcu cestu označovanú ako I/11A, ktorá sa v budúcnosti, po postavení ďalších úsekov, zatriedi do diaľnice D3. Napojením na konci na pripravovaný úsek Svrčinovec – Skalité – hranica SR/P a využívaním súvisiaceho hraničného priechodu umožní diaľnica priechod nákladnej dopravy v smere do Poľska a späť.
Zásadný význam pre našu stavbu má však vybudovanie plánovanej križovatky Svrčinovec, ktorá je t. č. zaradená do stavby D3 Svrčinovec – Skalité. Táto križovatka umožní sprevádzkovanie riešeného úseku D3 a zároveň zabezpečí dopravné spojenie s budúcou R5 smerom na Českú republiku. V tejto mimoúrovňovej križovatke sa tak vyrieši prepojenie diaľnice a cesty I/11 vo všetkých dopravných smeroch, čím sa v tomto bode vytvorí možnosť prepojenia troch európskych štátov – Poľska, Česka a Slovenska.
Uplatnenie žltého FIDIC-u
Pojem žltý FIDIC nie je vo svete v oblasti stavebníctva ničím novým. Názov vychádza zo skratky Fédération Internationale Des Ingénieurs-Conseils. Zmluvné podmienky vytvorené medzinárodnou federáciou konzultačných inžinierov (FIDIC) upravujú vzťah medzi objednávateľom a zhotoviteľom na princípe vyváženosti zmluvných podmienok a pravidiel. FIDIC odporúča aj Európska komisia pre stavby financované z jej zdrojov.
Najviac používané zmluvné podmienky FIDIC vo svete sú:
- zmluvy na projektové práce – FIDIC White Book (biela kniha),
- zmluvy na výkon stavebného dozoru (TDI) – FIDIC White Book (biela kniha),
- zmluvy na dodávku stavebných prác a technológie (bez projektovej dokumentácie) – FIDIC Red Book (červená kniha), verzia 1999,
- zmluvy na dodávku stavebných prác a technológie (vrátane projektovej dokumentácie) – FIDIC P&DB (Plant and Design-Build) Yellow Book (žltá kniha), verzia 1999.
Výhody pri použití žltej knihy FIDIC sú:
- prispôsobenie technického riešenia priamo zhotoviteľovi, zapracovanie skúseností a momentálnych možností a kapacít zhotoviteľa do DRS,
- vzájomná kooperácia medzi projektantom a zhotoviteľom a zodpovednosť za návrh a realizáciu technického riešenia,
- odsúhlasovanie projektovej dokumentácie, jej viacnásobná kontrola; projektová dokumentácia prechádza cez zhotoviteľa, stavebný dozor a objednávateľa,
- postupné vypracovanie projektovej dokumentácia po častiach alebo po jednotlivých vopred stanovených celkoch.
Nevýhody pri použití žltej knihy FIDIC sú:
- ešte stále pretrvávajúci nedostatok skúseností všetkých účastníkov výstavby s takýmito zmluvami,
- neprispôsobenie legislatívy týmto zmluvným podmienkam a požiadavkám na práce,
- rozsah projektových prác nie je v mnohých prípadoch jednoznačne definovaný,
- časové previazanie medzi projektovými prácami a ich odsúhlasením objednávateľom, resp. stavebným dozorom chýba, nie je reálne alebo nie sú dostatočné termíny na projektové práce,
- projektant zodpovedá za celé technické riešenie projektu, a to nezávisle od toho, že podklady boli odsúhlasené zadávateľom.
Zakladanie mostného objektu 212-00 a vplyv žltého FIDIC-u
Mostný objekt 212-00 predstavujú dva samostatné súbežné mosty (ľavý a pravý most) pozostávajúce z jedného dilatačného celku. Zo statického hľadiska bola navrhnutá spojitá štvorpoľová monolitická konštrukcia z predpätého betónu.
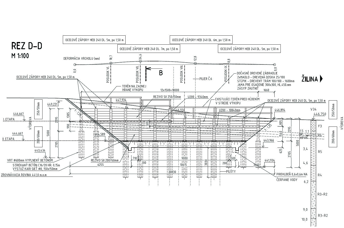
Obr. 1 Pohľad na zabezpečenie stavebnej jamy záporovým pažením
Rozpätia polí boli pri ľavom aj pravom moste navrhnuté rovnaké: 34,00 + 47,00 + 47,00 + 34,00 m. Priečny rez nosnej konštrukcie bude komorový s vyloženými konzolami s konštantnou výškou 2,60 m. Každý most bude mať dve opory a tri podpery. V miestach podpier a opôr bude nosná konštrukcia uložená na dvojici ložísk. Založenie mosta bolo navrhnuté hĺbkovo na veľkopriemerových pilótach. Most sa bude nachádzať v menšom údolí, kde budú situované a založené tri dvojice základových dosiek s piliermi s rôznymi dĺžkami.
Zakladanie opôr mosta bolo navrhnuté ako hĺbkové na pilótach s priemerom Ø = 900 mm. Pri danom geologickom prostredí sa predpokladala technológia realizácie pilót vŕtaním s výpažnicou s minimálnym potrebným hluchým vŕtaním (cez pilotážnu plošinu a budúcu hrúbku podkladového betónu približne 350 mm). Základová konštrukcia bola navrhnutá tak, aby zohľadňovala aj prijateľné kritériá deformácie, ktoré sa pohybovali v rozmedzí 10 až 15 mm, a aby diferenciálne sadanie neprekročilo hodnotu 10 mm. Projekt zahŕňal návrh rozmiestnenia, geometrie a vystuženia pilót, tvar pilótovacej spevnenej plošiny a vytyčovacie súradnice X , Y a H pre každú pilótu.
Obr. 2 Keďže na mieste staveniska prebiehala v predstihu realizácia iných súvisiacich objektov, rozdiel medzi zameraným terénom a súčasným tvarom povrchu bol pomerne výrazný.
Na stavenisku mostného objektu prebehlo najskôr vytyčovanie jednotlivých bodov spodnej stavby, hláv pilót, hrán výkopov, budúcej pažiacej konštrukcie a prístupových komunikácií. Keďže na mieste staveniska prebiehala v predstihu realizácia iných súvisiacich objektov, odvodnenia, poldra na Svrčinovskom potoku a jeho úpravy s novým priepustom (obr. 2), rozdiel medzi zameraným terénom a súčasným tvarom povrchu bol pomerne výrazný. V tejto fáze bola preto veľmi dôležitá súčinnosť a kooperácia zhotoviteľa s projektantom, aby bolo možné eliminovať vzniknuté nezrovnalosti a odlišnosti od predpokladaného návrhu daného riešením v projektovej dokumentácii, ktoré by mohli zapríčiniť rozdiely vo výkazoch materiálu a následné finančné rozdiely.
Keďže sa základová škára odokryla na jeseň, v stavebnej jame sa nachádzalo značné množstvo vody a terén bol veľmi rozbahnený. Operatívne sa tak po dohode so zhotoviteľom pristúpilo k úprave svahu poľnej cesty, ktorý vykazoval známky mierneho zosuvu (obr. 3). Zároveň sa pri zvolenom riešení prihliadalo na to, aby sa opäť nemuselo vstupovať do procesu časovo náročného prejednávania. Zhotoviteľ teda radšej pred budovaním finančne náročnej pilótovej pažiacej steny uprednostnil úpravu terénu hrubými zemnými prácami a zabezpečením zostatkového svahu oceľovým záporami s drevenou výplňou. Projektant súčasne žiadal o geodetické domeranie terénu, aby bol návrh z legislatívnej stránky dodatočný doložený ako doplnok k stavebnému riešeniu zabezpečenia a výkopov pôvodnej stavebnej jamy.
Obr. 3 Po dohode so zhotoviteľom sa pristúpilo k úprave svahu poľnej cesty, ktorý vykazoval známky mierneho zosuvu.
Ďalšími z radu výziev, ktoré priamo súvisia so spôsobom práce v súlade so žltým FIDIC-om, sú vstupné údaje o konkrétnych dodávateľoch, použitých výrobkoch a o spôsobe výstavby. Projektant často do posledného momentu tieto informácie nepozná alebo má len čiastočné údaje, pretože zhotoviteľ si počas samotnej výstavby hľadá najvhodnejšieho a často aj najlacnejšieho podzhotoviteľa.
V prípade zakladania mostného objektu SO 212-00 išlo predovšetkým o spôsob realizácie zaťažovacej skúšky, konkrétne použitie a dĺžku zaťažovacieho mosta, schopného preniesť navrhnuté zaťaženie zatláčacích lisov a veľkostí mechanizácie. Projektant v súčinnosti so zhotoviteľom a jeho podzhotoviteľom musel veľmi operatívne a variabilne poskytnúť svoju kapacitu a úsilie na to, aby výsledky a výstupy zo zaťažovacej skúšky mali s ohľadom na ich vysokú finančnú náročnosť dostatočnú výpovednú hodnotu a presnosť. Požadované sily pre zaťažovaciu skúšku boli aj vzhľadom na veľkosť a zložitosť založenia a korelačných súčiniteľov pomerne vysoké, pretože dosahovali hodnoty viac ako 5 000 kN, čo si vyžadovalo individuálny prístup k riešeniu. Pri každej dvojici pilierov sa realizovala jedna nesystémová skúška pilóty, zapretá o dve dvojice ťahaných pilót, ktoré sa stanú neskôr trvalou súčasťou základu.
Samotný projekt mostného objektu prechádzal aj vplyvom predpokladaného spôsobu realizácie a procesu odovzdávania a schvaľovania žltým FIDIC-om rôznymi fázami a zmenami. V projekte DSP bol projekt mosta navrhnutý ako 4-poľová nosná konštrukcia založená na mikropilótových základoch s odskočenými základovými škárami. Snahou o optimalizáciu riešenia sa do projektu pre ponuku dostal návrh 2-poľovej nosnej konštrukcie s technicky náročnejším, ale zaujímavým riešením so stredným votknutým vahadlom. V tomto prípade odpadla náročnosť zakladania pilierov vo svahu, pribudli však technicky a inžiniersky náročné statické výpočty a posúdenia technológie výstavby. Navyše, tento spôsob ponúkal riešenie mostného objektu bez ložísk na pilieroch, čím sa výrazne znižujú nielen počiatočné náklady na príslušenstvo, ale aj dodatočné náklady na údržbu a kontrolu. Po výbere zhotoviteľa a s prihliadnutím na jeho technologické a odborné schopnosti a možnosti sa nakoniec uprednostnil návrh elegantnej, štíhlej, funkčnej a ekonomicky vyváženej konštrukcie, založenej na troch medziľahlých pilieroch, pri náročnejšom riešení zabezpečenia stavebných jám budovaných vo svahu.
Záver
Prvé skúsenosti, ale aj nástrahy pri tvorbe projektovej dokumentácie, ako aj pri realizácii niektorých stavieb s využitím žltého FIDIC-u už máme za sebou. Postupne aj na stavbe D3 Čadca, Bukov – Svrčinovec zisťujeme, ktoré výhody nám tento spôsob prináša a ktorých úskalí a problémov by sme sa mali v budúcnosti vyvarovať.
Na každej stavbe je často nevyhnutná určitá úprava alebo doplnenie projektovej dokumentácie požiadavkám zhotoviteľa, resp. prispôsobenie realite na stavbe s následným odsúhlasením stavebným dozorom. Zhotoviteľ hľadá často riešenie, ktoré mu prináša úsporu aj za cenu prerábania projektovej dokumentácie a dotknutých súvisiacich objektov.
Preto je pri riešení týchto a podobných situácií veľmi dôležitá aj vzájomná zodpovednosť medzi projektantom a zhotoviteľom za návrh a realizáciu technického riešenia, dostatočná komunikácia medzi nimi, ako aj medzi ostatnými účastníkmi výstavby, a v neposlednom rade otvorenosť a vzájomný rešpekt.
Foundation of bridge 212-00 Bridge on motorway over valley in km 42,376 D3 and yellow FIDIC
The motorway lot Čadca, Bukov – Svrčinovec is a part of Motorway D3 connecting to the motorway D1 in junction Hričovské Podhradie. Motorwy D1 creating the main line east-west direction. Solved lot D3 complements motorway network in the direction Žilina – Kysucké Nové Mesto – Čadca – Skalité and creates together with motorway D1 one of the major north-west transport axis in Slovakia.
Construction of this lot together with all needed connections and transport solutions is one of the most interesting and the most complicated projects in Slovakia.
TEXT: Ing. Roman König
FOTO A OBRÁZKY: Amberg Engineering Slovakia, s. r. o.
Roman König pôsobí v spoločnosti Amberg Engineering Slovakia, s. r. o.
Článok bol uverejnený v časopise Inžinierske stavby/Inženýrské stavby 6/2017.









