Technológia výstavby mostov z nosníkov vyrábaných na stavbe
Na slovenský trh prichádza nová alternatíva výstavby nosných konštrukcií mostných objektov – technológia výstavby z prefabrikovaných nosníkov vyrábaných priamo na stavbe. Jej podstatou je výroba betónových predpätých nosníkov na predpolí mosta a ich následný presun na miesto konečného uloženia prostredníctvom dvoch pohyblivých portálových žeriavov a zavážacieho zariadenia.
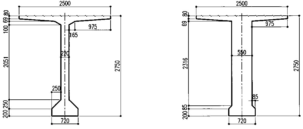
Francúzska stavebná skupina COLAS túto technológiu vo svete úspešne využíva už dlhšie obdobie. Prostredníctvom svojej spoločnosti Inžinierske stavby, a. s., ju prináša aj na slovenský stavebný trh. U nás bola doteraz málo známa, no práve pri ťažkých terénnych podmienkach a častých problémoch s dostupnosťou na miesto výstavby by mohol byť na Slovensku vhodný priestor na jej uplatnenie. Výhody technologického riešenia sú najmä bezpečnosť, rýchlosť a celková efektívnosť. To sú aj hlavné dôvody rozhodnutia spoločnosti Inžinierske stavby zabezpečiť a ponúknuť túto možnosť slovenskému mostnému staviteľstvu.Priečny rez nosníka
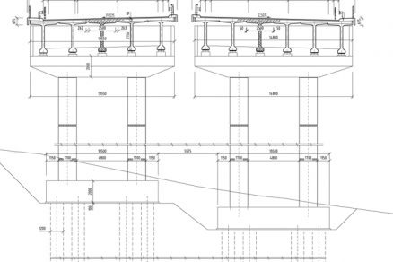
Priečny rez mostom na diaľničnej sieti v SR
Výroba nosníkov
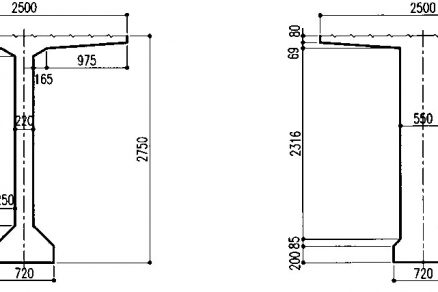
Výrobná linka umožňuje betonáž nosníkov tvaru I v dĺžke až 50 m s konštantnou výškou 2,75 m. Šírka hornej príruby je variabilná, maximálne do 2,5 m, dolná príruba má konštantnú šírku 0,72 m. Hrúbka steny nosníka je nastaviteľná od 0,22 do 0,55 m. Hmotnosť nosníka s dĺžkou 50 m je 155 t a na jeho výrobu treba 60 m3 betónovej zmesi C45/55. Betonárska výstuž sa do formovacieho zariadenia vkladá pomocou štyroch armokošov, ktoré sa navzájom spájajú. Nosník má spolu deväť predpínacích káblov s celkovou dĺžkou 400 bm, z toho päť káblov sa predpína v prvej fáze výroby na výrobnej linke a ďalšie štyri sa predpínajú až po uložení nosníka a betonáži mostovky. Pri výrobe nosníkov sa využívajú vopred vyrobené betónové čelá, ktoré umožňujú presné osadenie kotiev predpínacích káblov a súčasne skoré predpínanie. Na kvalitnú betonáž má výrobná linka nainštalovaný systém príložného vibrovania, ktorý zjednodušuje pracovný proces a umožňuje efektívnu a rovnomernú vibráciu. Odformovanie nosníkov je možné už po niekoľkých hodinách po dosiahnutí požadovanej pevnosti a je uľahčené hydraulickými svorkami. Formovacie zariadenie možno po následnom presune v rámci výrobnej linky okamžite použiť na výrobu ďalšieho nosníka. V rámci výrobného cyklu môže vzniknúť jeden hotový nosník každý druhý deň. 

Presun čiastočne predpätých nosníkov z výrobnej linky ku krajnej opore mosta zabezpečujú dva pohyblivé portálové žeriavy na kolesových podvozkoch, každý s nosnosťou 77,5 t. Pohybujú sa synchronizovanou rýchlosťou maximálne 4 km/h a sú schopné prekonať sklon až 8 %. Konečné uloženie nosníkov na piliere zabezpečuje zavážacie zariadenie s dĺžkou 120 m a hmotnosťou 170 t. Zariadenie pracuje veľmi presne a bezpečne. Princíp pohybu je jednoduchý – ukotvené zavážacie zariadenie umožňuje pohyb svojich navijakov s nosníkom pozdĺž zariadenia a po ukotvení navijakov sa následne presúva nosná konštrukcia zavážacieho zariadenia. Týmto spôsobom možno jednotlivé nosníky presunúť z jedného mostného poľa na ďalšie a pomocou valčekov v smere prierezu dostať nosník až na určené ložiská. 
Pri aplikácii tejto technológie sa dá dosiahnuť celkové zrýchlenie výstavby. Napríklad na stavbe mosta nad riekou Oued Yquem v roku 2012 sa skupine COLAS prostredníctvom svojej spoločnosti GTR v Maroku podarilo zrealizovať nosnú konštrukciu 5-poľového mosta s celkovou dĺžkou 170 m v krátkom čase. Od uloženia prvých nosníkov po predpínanie posledného poľa, bez podporných konštrukcií pod mostom, prešlo iba 2,5 mesiaca.
Najvýraznejšími výhodami, ktoré technológia poskytuje, sú:
- bezpečnosť práce,
- kvalita betonárskych prác (prefabrikácia),
- skrátenie času prác,
- nie sú potrebné dočasné podporné konštrukcie,
- riešenie do ťažko dostupných terénov,
- zníženie celkových nákladov na výstavbu.
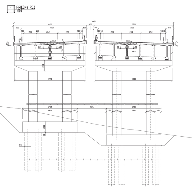
Technológia výstavby mostov z prefabrikovaných nosníkov vyrábaných priamo na stavbe je vhodná a pripravená na použitie na výstavbu diaľnic, rýchlostných komunikácií, ale aj železničných stavieb na Slovensku. V prípade aplikácie napríklad na diaľničný profil možno nosné konštrukcie mostných objektov vytvoriť piatimi, prípadne šiestimi nosníkmi podľa počtu jazdných pruhov.
TEXT: Jean Paul Dupuy, Eric Ehrsam
OBRÁZKY A FOTO: Inžinierske stavby, COLAS 
Jean Paul Dupuy je technický riaditeľ spoločnosti Inžinierske stavby, a. s.,
Eric Ehrsam je technický námestník závodu Mosty a betónové konštrukcie spoločnosti Inžinierske stavby, a. s.
 
													 
								                            














 
						 
						



 
					 
					 
					 
					 
					 
					 
					 
					 
					 
					 
					 
					 
					 
					 
					 
					 
					 
					 
					 
								 
								 
								 
								 
								