Rekonštrukcia Starého mosta v Bratislave – špeciálne zakladanie
Ambiciózny projekt vybudovania nosného systému MHD ako bratislavskej prepravnej tepny verejnej dopravy cez Dunaj predpokladal rekonštrukciu už nevyužívaného mosta v strede mesta. Most bol postavený ešte v 19. storočí a po viacerých opravách fungoval až do roku 2013, vtedy sa úplne uzavrel z dôvodu havarijného stavu. V súvislosti s potrebami nosného systému MHD padlo pri súčasnej požiadavke na dodržanie minimálneho plavebného gabaritu na Dunaji rozhodnutie nahradiť oceľovú konštrukciu mosta novou, a to s väčším rozpätím hlavného stredného poľa a vyšším uložením na pilieroch.
Na základe toho sa jeden dunajský pilier zrekonštruoval a nadstavil a ďalšie dva sa zbúrali a nahradili jedným úplne novým pilierom. Bratislavský Starý most je spolu so svojimi pamiatkovo chránenými súčasťami (štyri kamenné piliere s dvomi oporami, mýtne domčeky a kamenné schodiská) najstarší pevný most cez Dunaj na území Bratislavy. V minulosti niesol názvy ako Most Františka Jozefa, Franz-Josef-Brücke či Ferencz József-híd podľa rakúskeho cisára Františka Jozefa I., ktorý ho aj otváral. Po prvej svetovej vojne to bol Štefánikov most a po druhej svetovej vojne zasa Most Červenej armády. V čase svojho otvorenia v roku 1890 a otvorenia železničnej časti v roku 1891 to bol jediný pevný most v Bratislave určený pre peších, kolesovú dopravu, ale aj vlakovú dopravu na trati do Viedne. Dovtedy boli v prevádzke iba rôzne provizórne pontónové, drevené a iné mosty, ktoré boli často porušené kryhami na Dunaji. Na konci druhej svetovej vojny most poškodili ustupujúce nacistické vojská, potom ho Červená armáda zrekonštruovala a znovu uviedla do prevádzky, ktorá v rámci železničnej dopravy trvala do 17. 12. 1983 a v rámci kolesovej dopravy až do 14. 5. 2010. Pre havarijný stav sa most úplne uzavrel 2. 12. 2013.
Starý most pred demontážou oceľovej konštrukcie
Na základe mnohých odborných aj laických diskusií padlo v roku 2003 rozhodnutie, že metro ťažkého typu rozostavené v 80. rokoch 20. storočia sa nedostavia, no nahradí sa systémom rýchlej električky vedúcej cez Dunaj zo Starého mesta na koniec Petržalky pozdĺž trasy pôvodne uvažovaného metra a napojí sa na existujúcu električkovú sieť. Po posúdení vplyvov na životné prostredie a prijatí pripomienok ministerstva životného prostredia bolo výsledkom rozhodnutie vybudovať nosný koľajový systém v kombinovanom nadzemnom a povrchovom variante. Po neúspešných pokusoch o kombináciu električkovej trate spoločne s vlakovou dopravou TEN-T sa navrhla 1. etapa výstavby nosného systému od Šafárikovho námestia po obratisko na Námestí hraničiarov s rozchodom trate 1 000 mm, ktorej súčasťou bola aj rekonštrukcia Starého mosta. Keďže sa pri nej museli dodržať aj požiadavky na plavebný gabarit, museli projektanti navrhnúť rozšírenie vnútorného poľa mosta. Preto sa dva korytové piliere odstránili a nahradili jedným úplne novým, zároveň sa posledný korytový pilier musel spevniť a nadstaviť.
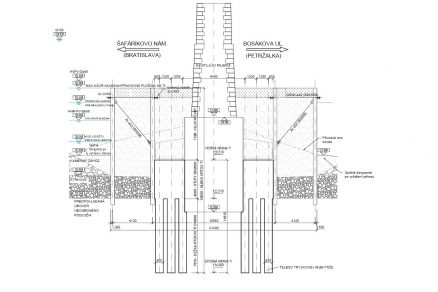
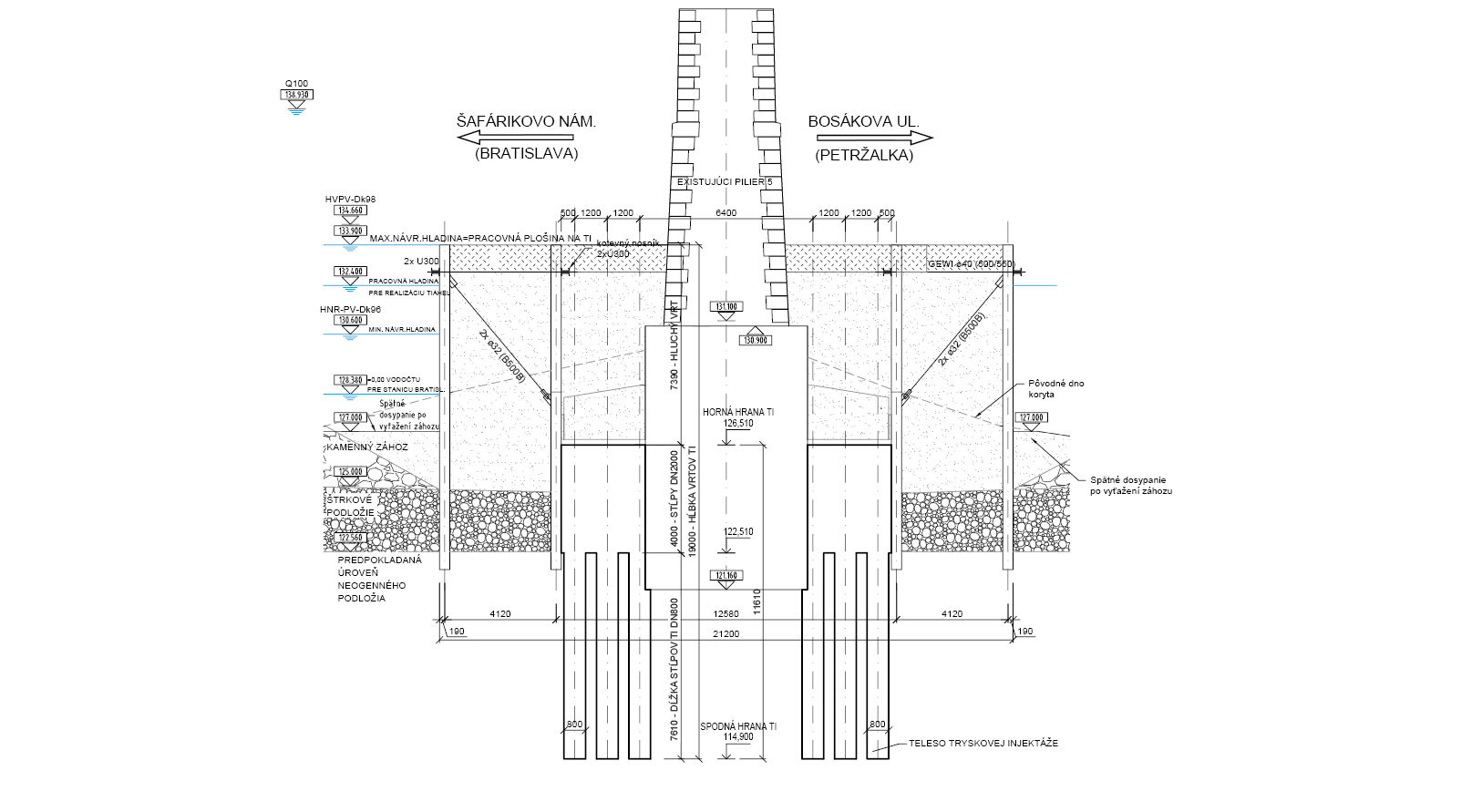
Schematický rez novým korytovým pilierom založeným na bloku z tryskovej injektáže
Dokumentácia pre výber zhotoviteľa
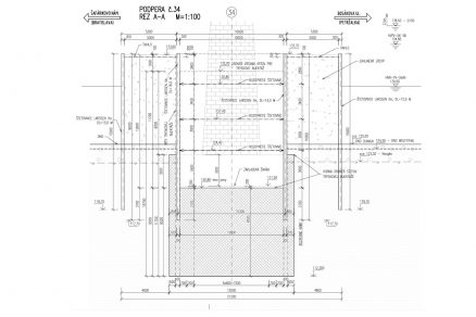
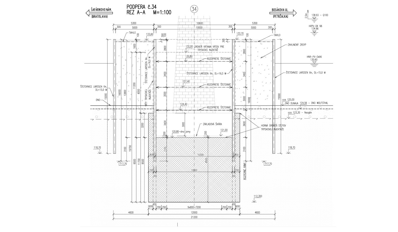
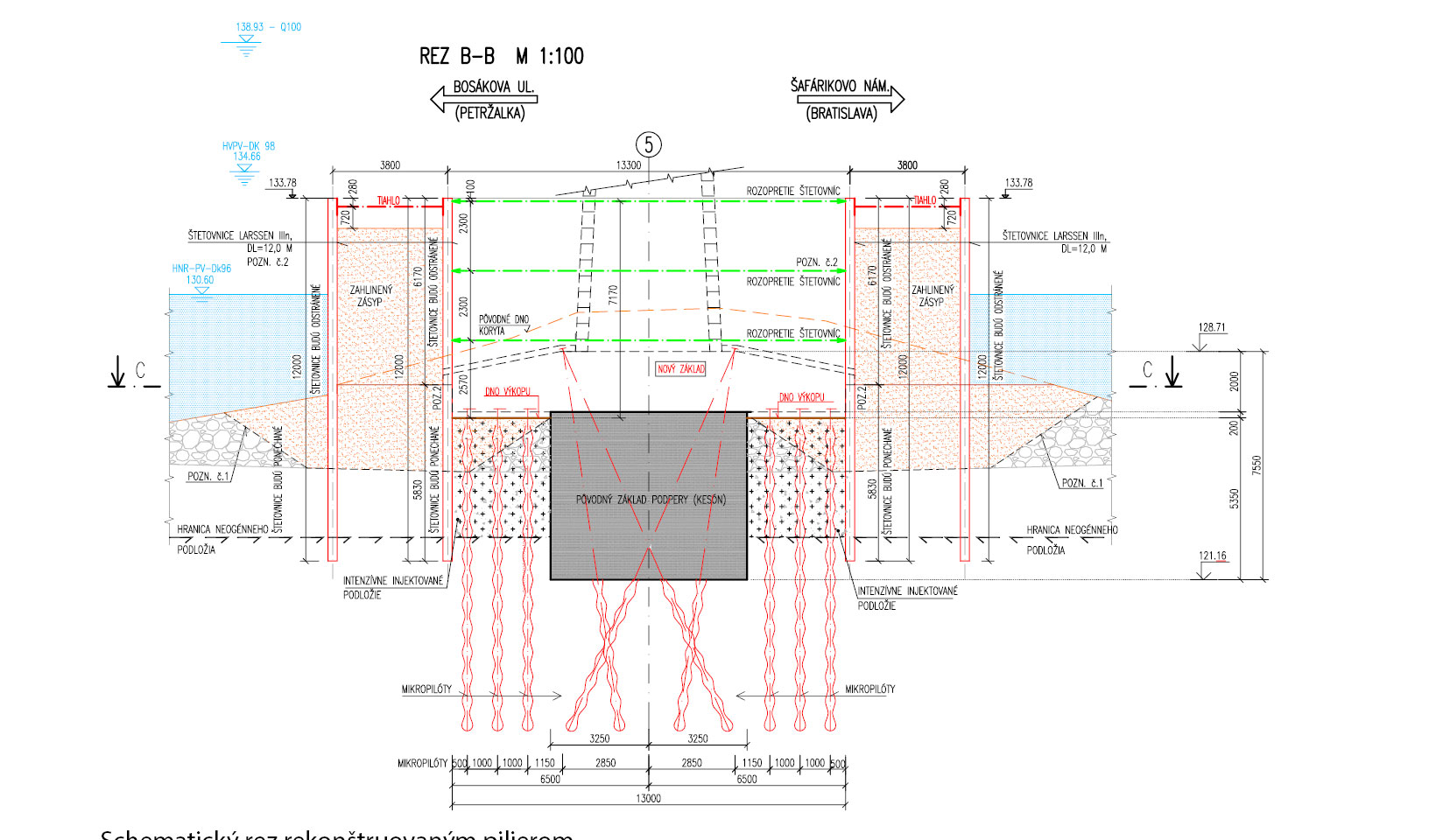
Po vyriešení všetkých „politických“ otáznikov boli projektanti zo združenia Alfa 04, a. s., reprezentovaní splnomocnenou osobou Ing. Miroslavom Maťaščíkom, poverení spracovať kompletnú dokumentáciu na predmetné práce v stupni pre výber zhotoviteľa stavby. Na celkovej rekonštrukcii Starého mosta boli najväčšou výzvou práce špeciálneho zakladania v súvislosti so spevnením ponechaného korytového piliera pri petržalskom brehu a vybudovaním nového korytového piliera bližšie k bratislavskému brehu. Na zhotovenie základov pre oba piliere sa navrhlo hĺbenie stavebných jám pod ochranou rozopretej dvojitej štetovnicovej ohrádzky. Po skúsenostiach projekčného tímu Ing. Maťaščíka so zakladaním nového korytového piliera mosta Apollo sa rozhodlo použiť plošné založenie na bloku z tryskovej injektáže aj na novom pilieri Starého mosta. Aplikáciou tryskovej injektáže sa malo zároveň dosiahnuť aj utesnenie výkopovej jamy v štetovnicovej ohrádzke na zhotovenie základového bloku a následne aj drieku nového piliera. V čase spracovania projektu mal projekčný tím predbežnú informáciu o rozobratí rekonštruovaného piliera a jeho opätovnom postavení. Navrhlo sa zhotovenie nového mohutného základového dodatočne predopnutého bloku, ktorý by bol podopretý nedemontovanou časťou piliera a v presahujúcej ploche novými navrhovanými mikropilótami. Utesnenie dna stavebnej jamy na tento pilier sa neurčito navrhlo realizovať intenzívnou injektážou počas mikropilotážnych prác.
Schematický rez rekonštruovaným pilierom
Neprehliadnite
STARÝ MOST V BRATISLAVE: TLAK NA TÚTO STAVBU BOL NEUVERITEĽNE VEĽKÝ
Od projektu k realizácii
Na základe projektu pre výber zhotoviteľa sa vypísala súťaž, ktorej víťaz začal prípravné práce na moste. Keďže podklady na spracovanie dokumentácie boli značne obmedzené, zhotoviteľ stavby v spolupráci s ďalšími tímami projektantov spracoval realizačnú dokumentáciu, ku ktorej si musel dať spracovať aj ďalšie prieskumy, napríklad mapovanie dna Dunaja, prieskum možného výskytu bômb na dne a pod. Navyše, novou informáciou bolo vyhlásenie pamiatkarov o potrebe ochrany rekonštruovaného piliera, a teda nutnosti riešiť zosilnenie ponechaného drieku s nadvýšením bez rozobratia s následným opätovným postavením. Vzhľadom na verejne známu tému možnej prítomnosti bômb, ako aj nie príliš korektný prístup jednej už neexistujúcej firmy špeciálneho zakladania, ktorá neuvážene až zavádzajúco presadzovala u zhotoviteľa mosta zmenu koncepcie zakladania nového piliera na mikropilótach, sa príprava zakladania nového piliera a rekonštrukcia existujúceho zdržala, čo viedlo aj k celkovému zdržaniu prác. Keďže sa táto zámena ukázala byť finančne aj technicky nevýhodnejšia, a navyše s oveľa dlhším časom realizácie, pristúpilo sa k dopracovaniu pôvodného technického konceptu realizácie pomocou tryskovej injektáže.
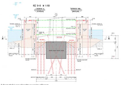
Na rekonštruovanom pilieri sa navrhlo zhotovenie základového dodatočne predopnutého bloku okolo ponechaného drieku piliera, ktorý sa podoprie tryskovo preinjektovanou zeminou. Použitím tryskovej injektáže sa zabezpečila aj tesnosť dna ako presne definovaná forma intenzívneho injektovania podzákladia. Spoľahlivé utesnenie bolo nevyhnutné nielen na realizáciu tohto základu, ale aj všetkých potrebných prác na sanácii a oprave časti drieku piliera, ktorá je trvale pod hladinou vody v Dunaji. Keďže trysková injektáž mala tesniacu aj nosnú funkciu, navrhované mikropilóty na zakladanie sa v realizačnom stupni dokumentácie vypustili. Na spevnenie existujúceho drieku sa navrhlo zhotoviť niekoľko sanačných vrtov, pomocou ktorých sa mal driek preinjektovať po celej výške. Na vystuženie drieku sa do všetkých sanačných vrtov osadila oceľová tyčová armatúra Gewi. Na podrobné určenie dimenzií bloku telesa tryskovej injektáže pod základmi pilierov bolo potrebné vykonať doplnkový inžinierskogeologický (IG) prieskum opisujúci geologické pomery priamo pod každým pilierom v rozhodujúcej časti ich deformačnej zóny pod základovou škárou. V rámci prieskumu sa realizovali jadrové vrty do hĺbok 45 a 55 m a statické penetračné skúšky do hĺbky podľa kapacity mechanizmu.
Schematický rez rekonštruovaným pilierom založeným na bloku tryskovej injektáže – Soilcrete
Realizácia zakladania
Po vyhodnotení výsledkov laboratórnych testov vzoriek odobratých z výnosu IG vrtov, ktoré sa vykonali na akademickej pôde, a porovnaní s výsledkami statickej penetrácie sa určili dimenzie blokov tryskovej injektáže pomocou statického modelovania. Následne sa spracovala dokumentácia (v stupni dielenská realizačná) na zhotovenie jednotlivých stĺpov tryskovej injektáže.
Technológia hydraulického premiešavania zemín so spojivami je známa ako trysková injektáž – Soilcrete. Premiešavanie pôvodných zemín sa realizuje s materiálmi, ktoré zlepšujú ich vlastnosti – hlavne s cementom –, a to pomocou rezného lúča vypúšťaného z dýz pod veľkým tlakom.
Trysková injektáž sa zhotovuje vrtnou súpravou na pásovom podvozku po zavŕtaní vrtného sútyčia do projektovanej hĺbky, odkiaľ začne smerom zdola nahor zemina erodovať pôsobením rezného vysokotlakového lúča vychádzajúceho z vrtnej hlavy (monitora) pri stálom otáčaní a vyťahovaní, čím sa vytvorí stĺpovitý prvok rozrušenej a zároveň s cementovou suspenziou premiešanej zeminy. Cementová suspenzia spôsobí stmelenie takto preinjektovaného stĺpca zeminy. Po vytvrdnutí pôsobí ako prostý betón. Vzhľadom na časté striedanie piesčitých, hlinitých a ílovitých vrstiev v podzákladí (známa situácia vzhľadom na neogén v Bratislave) sa použil dvojzložkový „D“ variant tryskovej injektáže. Navyše, v mieste ponechaného piliera bol blok tryskovej injektáže umiestnený z veľkej časti ešte v kvartérnych štrkoch, kde sa lokalizovalo aj plánované tesnené dno výkopu.
Schematický rez novým pilierom založeným na bloku tryskovej injektáže – Soilcrete
Skúsenosti z realizácie
Samotná realizácia tryskovej injektáže prebehla najskôr na rekonštruovanom pilieri z pracovnej plošiny vytvorenej na vrchu umelého ostrova, ktorý vznikol zasypaním dvojitej štetovnicovej ohrádzky. Pracovná plošina (vrátane prístupu na ňu cez prikotvený čln z petržalského brehu Dunaja) bola pripravená 11. 3. 2015, následne sa zrealizovala trysková injektáž pre tento pilier v počte 126 stĺpov. Práce na tryskovej injektáži sa ukončili 23. 3. 2015, t. j. osem dní po začatí jej realizácie v dvojzmennej prevádzke. Tomu predchádzali práce na doplnkovom IG prieskume, pričom zistené výsledky bolo nevyhnutné zapracovať do dielenskej dokumentácie vo veľmi krátkom čase. Po tryskovej injektáži sa pokračovalo hĺbením jamy, realizáciou rozperného rámu, odčerpávaním vody z priesakov v zámkoch štetovníc a tzv. ošramovaním presahu stĺpov tryskovej injektáže.
V čase, keď sa zrealizoval podkladový betón a v pôvodnom drieku vybúrali kapsy na šmykové ozuby pre nový základ a keď sa práve sa montovala armatúra základu, vystúpila hladina vody v Dunaji takmer na úroveň prvého povodňového stavu. Štetovnicová ohrádzka sa preliala a stavebná jama so všetkým materiálom sa zatopila. Ďalšiu nepríjemnosť predstavovalo nevyhnutné odstránenie člna spájajúceho ostrov s brehom. Po opadnutí vody a vyčistení stavebnej jamy už práce na základe prebiehali podľa predpokladov, avšak s dodatočným zdržaním oproti harmonogramu prác. Sanačné vrty s osadenými výstužnými armatúrami na rekonštruovanom pilieri v celkovom počte 67 ks a vo výmere 1 474 m boli dokončené 26. 3. 2015. Po opadnutí vody sa dokončila pracovná plošina aj na umelom ostrove okolo nového piliera. Vzhľadom na enormný časový tlak týkajúci sa rýchlosti realizácie zakladania sa jadrový vrt doplnkového prieskumu vyvŕtal z lode počas razenia štetovníc tak, aby mohli laboratórne skúšky prebiehať ešte počas prípravy umelého ostrova pred tryskovou injektážou.
Po dosypaní pracovnej plošiny na vrchu ostrova sa dorobili penetračné skúšky a takmer okamžite po ukotvení člna spájajúceho ostrov s bratislavským brehom Dunaja sa 8. 6. 2015 začalo s prácami tryskovej injektáže. Ukončili sa 20. 7. 2015, t. j. 43 dní po ich začiatku (383 stĺpov). Aktuálne sú konštrukčné práce na moste ukončené a podarilo sa ukončiť už aj kolaudačné konanie, v rámci ktorého sa dokončovali prípadné nedorobky a odstraňovali drobné chyby. Demontoval sa aj umelý ostrov okolo nového piliera a upravovali sa brehy koryta v miestach napojenia premosťovacích zásobovacích člnov.
NEPREHLIADNITE
Starý most po dokončení
Záver
Stavebná prax prináša z času na čas aj mimoriadne stavby, ktoré dávajú extrémne úlohy a výzvy projektantom, realizátorom, ale aj investorom. Rekonštrukcia Starého mosta v Bratislave je istotne takouto stavbou. Priniesla veľké výzvy predovšetkým v oblasti zakladania nového plánovaného piliera a rekonštrukcie pôvodného piliera v koryte Dunaja. Vďaka spolupráci projektantov, realizátorov, zástupcov investora, ako aj externých konzultantov sa však tieto výzvy zvládli. Všetky vykonané práce spojené so založením oboch pilierov, utesnením dna stavebných jám, ako aj zabezpečením stability výkopu umožnili bezpečne a spoľahlivo zrealizovať nový pilier a zrekonštruovať ten pôvodný, takže dokončený most už dnes môže slúžiť svojmu účelu.
| Základné údaje o stavbe | |
| Názov stavby | Nosný systém MHD, prevádzkový úsek Janíkov dvor – Šafárikovo námestie v Bratislave, 1. časť Bosákova ulica – Šafárikovo námestie |
| Číslo objektu | 20 – 201 – 00 |
| Názov objektu | Starý most |
| Mesto, obec | hlavné mesto SR Bratislava |
| Kraj | Bratislavský |
| Katastrálne územie | Bratislava I-Staré Mesto, Bratislava V-Petržalka |
| Druh stavby | novostavba a rekonštrukcia (Starý most) |
| Investor | hl. mesto SR Bratislava |
| Financovanie | z Kohézneho fondu Európskej únie |
| Zhotoviteľ dokumentácie | Združenie Alfa 04, a. s., Bratislava (vedúci člen združenia), Reming Consult a. s. Bratislava, Pio Keramoprojekt Trenčín |
| Zhotoviteľ stavby | združenie MHD – Starý most: Eurovia SK, a. s., Košice (vedúci člen združenia), Eurovia CS, a. s., Praha, SMP CZ, a. s., Praha |
| Interný stavebný dozor | Metro, a. s., Bratislava |
| Externý stavebný dozor | INFRAM SK, s. r. o. |
| Autorský dozor | Pio Keramoprojekt Trenčín |
TEXT: Ing. Peter Jurík, Ing. Peter Cápay,
Ing. Peter Škoda, Ing. Ján Dobrovolský
FOTO A OBRÁZKY: KELLER špeciálne zakladanie, spol. s r. o., Miro Pochyba
Peter Jurík, Peter Cápay, Peter Škoda a Ján Dobrovolský pôsobia v spoločnosti KELLER špeciálne zakladanie, spol. s r. o.
Článok bol uverejnený v časopise Inžinierske stavby/Inženýrské stavby















