Pokládka nosníkov na moste 216-00 na D1 Hubová – Ivachnová
Mostný objekt 216-00 prevádza diaľnicu D1 ponad cestu III/018104, železničnú trať a koryto rieky Váh dvomi súbežnými 14-poľovými mostmi. Nosnú konštrukciu tvoria tyčové predpäté prefabrikované nosníky spriahnuté monolitickou železobetónovou doskou. Pokládka nosníkov sa realizuje hlavne pomocou jednonosníkového zavážacieho mosta „JZM“, ktorý umožňuje zavážať nosníky po postupne realizovanej nosnej konštrukcii.
Súčasťou stavby D1 Hubová – Ivachnová je aj mostný objekt 216-00, ktorý prevádza diaľnicu D1 ponad cestu III/018104, trať ŽSR, trať Mondi Business Paper SCP, a. s., Ružomberok a koryto rieky Váh. Nachádza sa v extraviláne obce Lisková na rozhraní katastrálnych území Lisková a Ivachnová, v inundačnom území rieky Váh v blízkosti lužného lesa Ivachnová.
Zároveň prechádza ochrannými pásmami letiska. Štvorpruhová, smerovo rozdelená komunikácia na mostnom objekte je kategórie D26,5, pre každý dopravný smer je zrealizovaný samostatný most. Stavebníkom je Národná diaľničná spoločnosť, a. s., zhotoviteľom stavby je Združenie Čebrať v zložení Váhostav-SK, a. s., a OHL ŽS, a. s.
Základné údaje
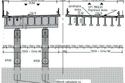
Dĺžka ľavého mosta je 589,00 m, pravého 599,00 m. Samotná nosná konštrukcia má 586,00 m pri ľavom moste (ĽM) a 596,00 m pri pravom moste (PM). Šírka vozovky medzi zvodidlami je 11,75 m, šírka služobného chodníka 0,75 m. Celková šírka nosnej konštrukcie je 13,55 m. Výška nosnej konštrukcie je 2,32 m, výška mosta približne 11 m. Smerovo vedie trasa v priamke.
Obr. 1 Pozdĺžny rez pravým mostom
Niveleta je čiastočne vo výškovom zakružovacom oblúku s R = 25 000 m so sklonom dotyčníc –0,57 % a –1,91 %. Priečny sklon je jednostranný s hodnotou 2,5 %. Ľavý aj pravý most má rovnako 14 polí s rozpätím 33,0 + 12 × 44,0 + 33,0 m pri PM a 33,0 + 4 × 44,0 + 4 × 41,5 + 4 × 44,0 + 33,0 m pri ĽM.
Zakladanie a spodná stavba
Spodnú stavbu tvoria krajné opory a 13 medziľahlých podpier (pri každom moste samostatne). Krajné opory P1 a P15 sú monolitické, železobetónové, založené na veľkopriemerových pilótach s priemerom 900 mm. Tvorí ich úložný prah, krídla a záverný múrik. Podpery P2 až P5 a P7 až P14 majú dvojicu pilierov s kruhovým prierezom, ktoré priamo nadväzujú na veľkopriemerové pilóty s priemerom 1 500 mm. Podpera P6, ktorá sa nachádza medzi koľajami železničnej trate, má základ založený na mikropilótach.
Obr. 2 Priečny rez
Dvojica pilierov, ktorá vychádza zo základu, je navzájom prepojená stienkou stužujúcou piliere proti účinkom nárazu vlaku. V hornej časti sú všetky piliere zakončené hlavicou s výškou 2 m, ktorá je rozšírená len v pozdĺžnom smere a je rovnaká pri všetkých pilieroch. Maximálna výška piliera aj s hlavicou je približne 9,6 m.
Nosná konštrukcia
Nosná konštrukcia je so spodnou stavbou spojená vždy dvojicou hrncových ložísk. Konštrukcia je navrhnutá ako spojitý nosník z predpätých tyčových „I“ nosníkov s výškou 2,1 m, spojených spriahajúcou železobetónovou doskou s hrúbkou min. 220 mm. Nosníky sú ukladané na monolitické priečniky, ktoré sa realizujú v dvoch fázach. V prvej fáze sa zrealizuje časť potrebná na uloženie nosníkov, v druhej fáze sa priečnik zmonolitní so zvyškom nosnej konštrukcie.
Spodná časť priečnikov na oporách má obdĺžnikový tvar so šírkou 1,7 m a hrúbkou 500 mm. Spodná časť priečnikov nad piliermi má tvar obráteného písmena T s výškou 2,71 m. Šírka spodnej dosky je 3 m, hrúbka približne 0,6 m. Hrúbka strednej steny v osi priečnika je 0,6 m. Vzhľadom na požiadavku povodia a ŽSR bolo pri podperách P6 a P11 nevyhnutné zmenšiť osovú vzdialenosť podpier, čo následne vyvolalo potrebu použiť priečne predpätie umiestnené v stredovej stene priečnika.
V priečnom reze sa na priečnik ukladá osem prefabrikovaných nosníkov typu VHP-PTMN 2010, ktorých výrobcom je VÁHOSTAV-SK-PREFA, s. r. o. Nosníky sú od seba vzdialené 1,7 m, ukladajú sa do vysokopevnostnej malty. Výška prierezu nosníka je 2,1 m, šírka spodnej pásnice 0,8 m a šírka hornej pásnice 1,1 m. Šírka stojiny je 0,2 m. Dĺžka nosníkov závisí od dĺžky jednotlivých polí a pohybuje sa od 33,2 do 43 m.
Obr. 3 Pohľad na postavenie JZM pri odoberaní nosníka z vozidla
Nosníky sú zložené z troch segmentov – krajné segmenty majú dĺžku 14 m, stredový segment je upravený podľa celkovej dĺžky nosníka. Spájanie jednotlivých častí prebieha na stavbe vnesením dodatočného predpätia do nosníkov uložených na skládke. Pri predpínaní sa využíva vlastný predpínací systém PROJSTAR.
Aby bola možná manipulácia so segmentmi, sú na ich koncoch v hornej prírube umiestnené DEHA úchyty. Na následnú manipuláciu so zopnutým nosníkom sú v stojine krajných segmentov umiestnené otvory, do ktorých sa vkladá špeciálny zdvíhací prípravok, navrhnutý na tento účel.
Nosník má v hornej pásnici vybratie na umiestnenie strateného debnenia. Ako stratené debnenie je použitý železobetónový prefabrikát (filigrán) s obdĺžnikovým tvarom s hrúbkou 55 mm, šírkou 660 mm a dĺžkou od 1 895 do 2 445 mm.
Pokládka nosníkov
Pri pokládke nosníkov sa využíva jednonosníkový zavážací most „JZM“. Toto zariadenie odoberá nosníky priamo z vozidla, ktoré sa pohybuje po už zhotovenej časti nosnej konštrukcie, následne ich ukladá na priečnik. Zariadenie je schopné klásť nosníky s hmotnosťou až 100 t, pričom dĺžka nosníka môže dosahovať 44,5 m.
Dĺžkové obmedzenie je dané dĺžkou hlavného nosíka, ktorý má 78 m. V priečnom smere je možné zavážanie po koľajniciach – jedna je umiestnená vpredu na priečniku a druhá, zdvojená koľaj, vzadu na mostovke (obr. 4).
Obr. 4 Pozícia prednej a zadnej podpery JZM pri pokládke nosníkov
Bremeno je vtedy zavesené na hlavnom nosníku medzi prednou a zadnou podperou (obr. 5). Ďalej sa nosník môže zdvíhať a spúšťať pomocou dvoch samostatných navijakov, ktoré sa posúvajú nezávisle po základnom nosníku. Presun JZM z piliera na pilier je možný vysunutím hlavného nosníka, ktorý je osadený na štyroch podperách – dve pomocné sú upevnené na koncoch nosníka a dve hlavné sa po ňom môžu posúvať.
Obr. 5 Pokládka nosníkov v mieste kríženia rieky Váh
Podpery sa dajú zdvíhať a spúšťať pomocou hydrauliky, čo umožňuje v konečnom výsledku kráčanie, pričom maximálna dĺžka kroku môže byť približne 45 m. Zariadenie je schopné kráčať dopredu aj dozadu.
Aby bolo možné využiť všetky výhody zariadenia JZM, treba prispôsobiť konštrukciu mosta už pri projektovaní. Na objekte 216-00 to bolo možné v maximálnej miere, keďže v súlade so zmluvnými podmienkami žltej knihy FIDIC, ktorými sa stavba riadi, zhotoviteľ zabezpečuje aj dodávku realizačnej dokumentácie.
Opatrenia, ktoré sa prijali v spolupráci s projektantom, sa začali realizovať už samotným postupom výstavby – smer pokládky sa zvolil od koncovej opory mosta, keďže za ním je dostatočná plocha na montáž zariadenia aj na spínanie nosníkov. Pri projektovaní priečnikov sa zohľadnila potreba umiestnenia koľaje pre prednú podperu JZM, a to navrhnutím spodnej časti v tvare obráteného T. Na stredovú stenu tak možno rozmiestniť koľajovú dráhu.
Obr. 6 Zavážanie nosníkov nad traťou ŽSR a Mondi
Zároveň je tvar obráteného T nadimenzovaný tak, aby bol samonosný. To znamená, že po vybetónovaní je schopný preniesť vlastnú hmotnosť, no zároveň aj hmotnosť nosníkov, mostovky, JZM a vozidla, na ktorom sa prepravuje nosník ďalšieho poľa, a zároveň pri tom nemusí byť podopieraný pomocným podperným systémom. Vyžaduje si to však podloženie hydraulickými valcami v mieste hlavice piliera aj kotvenie DW-tyčami. Tomu sa musel prispôsobiť tvar hlavice piliera.
Nemenej dôležité je aj vhodné zvolenie pracovnej škáry a úprava železa hornej dosky, kde je potrebné posunúť betonáž čo najbližšie k priečniku, pretože osová vzdialenosť medzi koľajovými dráhami prednej a zadnej podpery je obmedzená maximálne na 48 m. To umožňuje cúvať vozidlu tesne ku zadnej koľaji, a tak odoberať nosníky z vozidla.
Aj cúvanie nosníkov v osi piliera a poradie pokládky nosníkov patria medzi opatrenia, ktoré prispievajú k realizovateľnosti takto zvolenej výstavby. Po uložení nosníkov v poli prebieha s využitím JZM aj pokládka filigránov. Následne môžu pokračovať práce na debnení, armovaní a betonáži hornej dosky a druhej časti priečnika.
Záver
Jednonosníkový zavážací most „JZM“ predstavuje jediné takto fungujúce zariadenie svojho typu na Slovensku a je vlastníctvom firmy Váhostav-SK, ktorá ho využíva už od roku 2008. Zariadením sa pokladali nosníky na objekte 207 v Považskej Bystrici, na stavbe D1 Dubná Skala – Turany aj na D3 Svrčinovec – Skalité. Postupne sa zariadenie JZM zefektívnilo prispôsobením nosnej konštrukcie jeho potrebám.
Zdokonalila sa technika pokládky aj samotné zariadenie. Ideálne je voziť nosníky pod zariadenie bez medziskládky, aby sa ušetrilo na skládkach a žeriavoch. To však závisí od možností dopravy, vzdialenosti a prekážok na trase. Najdlhší nosník, ktorý sa takto podarilo doviezť z výrobne priamo pod JZM, mal 38 m.
Výhody JZM sa najviac prejavia v neprístupnom teréne a vo veľkej výške alebo pri prekonávaní prekážok, ako sú cesty, vodné toky či železnica. Bežný takt sa pohybuje na úrovni 18 dní, ak sú však mosty vedľa seba dva a ich vzájomné rozmiestnenie umožňuje prechod medzi nimi, možno pokládku zefektívniť na 12-dňový takt, za určitých podmienok aj 10-dňový.
JZM sa zároveň využíva na jednoduchú pokládku filigránov, ktoré majú hmotnosť približne 220 kg. Výhody JZM sa využili aj pri objekte 216-00, kde síce nie je veľká výška, ale objekt križuje vodný tok, cestu a železnicu so šiestimi koľajami.
Instalment of the beams on the construction object 216-00 of D1 Motorway section Hubová – Ivachnová
The Bridge 216-00, consisting of two 14-spans bridges, leads the D1 Motorway over the road III/018104, a railway track and the river Váh. The main structure is formed by pre-stressed precast composite beams with monolithic reinforced concrete deck. The instalment of beams is performed mainly by the use of a single-nose beam launcher, which allows the beams to be launched on the gradually constructed main structure of the bridge.
TEXT: Ing. Jozef Mariňák, Ing. Richard Púček, Mgr. Ľubomír Oslovič
FOTO A OBRÁZKY: Váhostav-SK, a. s.
Jozef Mariňák, Richard Púček a Ľubomír Oslovič pôsobia v spoločnosti Váhostav-SK, a. s.
Článok bol uverejnený v časopise Inžinierske stavby 6/2017.















