Obnova Starého mosta v Bratislave
Obnova Starého mosta sa stala v ostatných týždňoch predmetom vášnivej diskusie laickej aj odbornej verejnosti. Tento článok sa pokúša priblížiť dlhú a zložitú cestu k finálnemu návrhu a všetky okolnosti, ktoré ho nevyhnutne ovplyvnili. Jeho mottom môže byť aj výrok architekta Normana Fostera (z rozhovoru pre renomovaný časopis NCE v decembri 2004), ktorý sa podieľal na skvelom diele – estakáde Millau vo Francúzsku: „Mosty sú predovšetkým inžinierskymi projektmi. To je dominujúci aspekt. My (architekti) nenútime inžinierov, aby vyhoveli našim predstavám, ale spolupracujeme s nimi a možno aj načrtávame možné riešenia“.
Začiatky projektu obnovy Starého mosta
Témou obnovy Starého mosta som sa začal prvýkrát zaoberať v roku 2004 v rámci štúdie električkového variantu nosného systému MHD v Bratislave. Vtedy sa urobili prvé analýzy technického stavu nosnej oceľovej konštrukcie a zistilo sa, že na realizáciu dvojkoľajovej električkovej trate cez Dunaj sú potenciálne použiteľné časti „mladšieho“ železničného mosta.
Predpokladalo sa odstránenie cestného mosta, ktorý už skutočne dožíva, dvojetapové nadstavenie podpier o asi 2 m, presun železničného mosta do osi podpier, odsun hlavných nosníkov mosta a montáž novej mostovkovej časti konštrukcie. Využitím pôvodných hlavných nosníkov železničného mosta (klasická rombická sústava) by si rekonštruovaný most zachoval archaický vzhľad, aj keď jeho vek a vzhľad nezodpovedajú historickému Mostu Františka Jozefa. Tieto zámery zmarila analýza odobratých vzoriek ocele zo železničného mosta, ktorá jednoznačne potvrdila nesúlad parametrov ocele s požiadavkami dnešných noriem a dôrazne odporúčala nahradiť nosnú konštrukciu Starého mosta novou.
V roku 2007 sa Alfa 04, a. s., spolu so spoločnosťami Reming Consult, a. s., a PIO Keramoprojekt, a. s., stali víťazmi medzinárodnej verejnej súťaže na DÚR, DSP, DRS a AD 1. etapy nosného systému MHD – Bosákova ulica – Šafárikovo námestie. Súčasťou týchto prác bol aj projekt obnovy Starého mosta. Súťažné podklady jednoznačne definovali, že vzhľadom na nevyhovujúcu kvalitu ocele Starého mosta treba pri obnove uvažovať o novej nosnej konštrukcii.
Bratislava ako hlavné mesto SR a zadávateľ úlohy hneď na úvod projektových prác na uvedenej zákazke požiadala o vypracovanie dopravno-technicko-cenovej analýzy, ktorá by bola podkladom pre opätovné zváženie ponechania automobilovej dopravy na obnovenom Starom moste so zohľadnením zvýšenia stavebných nákladov, ktoré by to vyvolalo. Výsledky analýzy jednoznačne preukázali, že zachovanie cestnej dopravy na Starom moste (aspoň v obmedzenom rozsahu) je z hľadiska krátkodobých ale aj dlhodobých dopravných prognóz nevyhnutné a funkcia Starého mosta ako najstaršieho cestného spojenia cez rieku Dunaj v Bratislave je pre niektoré dopravné funkcie mesta nenahraditeľná. Uvedená analýza sa však snažila potlačiť pohľad na problematiku z čisto dopravnej stránky a zohľadniť aj urbanistické zámery na dopravné „upokojenie“ Šafárikovho námestia a rozšírenie peších zón v tomto priestore.
Výsledkom analýzy bolo teda napojiť cestnú dopravu na Starý most jednopruhovým systémom nekolíznych „pravých odbočení“, t. j. z Vajanského nábrežia na most a z mosta vetvou za Umeleckou besedou na Dostojevského rad a Pribinovu ulicu (bez zásahu do areálu Umeleckej besedy). Na petržalskej strane sa cestné pruhy napoja na existujúce vetvy pri štadióne Artmedie a na križovatke s Bosákovou ulicou kruhovým objazdom.
Toto riešenie nenaruší „pokoj“ Šafárikovho námestia, zohľadní (alebo zlepší) existujúci stav cestnej dopravy v Petržalke a udrží nevyhnutný objem cestnej dopravy na moste v 1. (dočasnej) etape prevádzky električkovej dopravy do Petržalky (električka na moste). V 2. etape (po premiestnení električky do tunela pod Dunajom) sa električkové koridory využijú ako ďalšie cestné pruhy. Ďalším vstupom do úvah o charaktere mosta bola snaha projektanta vytvoriť na moste veľkorysé plochy pre peších a cyklistov a tiež „oddychové“ zóny s lavičkami.

Opísaná zmena dopravnej koncepcie bude mať za následok nárast stavebných nákladov o asi 18 %, čo je vzhľadom na ponúkané dopravné služby prijateľná cena. Investor stavby akceptoval závery analýzy a požiadal projektanta o ich zapracovanie do ďalších stupňov spracovávanej dokumentácie.
Hneď od začiatku prác bola dôležitá aj úloha Slovenského vodohospodárskeho podniku (SVP), ktorý je garantom dodržiavania odporúčaní Dunajskej komisie a medzinárodných dohôd SR o režime plavby po Dunaji. Už počas prác na dokumentácii stavebného zámeru SVP jednoznačne požadoval, aby sa v rámci obnovy Starého mosta zabezpečila plavebná dráha pod mostom s „regulárnymi“ rozmermi plavebného otvoru 100 × 10 m.
Dnešné plavebné otvory pod mostami majú šírku 84,00 m a 67,00 m, ich výška je taktiež nedostatočná, čo obmedzuje plavbu po Dunaji pri vyšších plavebných hladinách. Keďže stanovisko SVP k spracovávanej dokumentácii je jedno zo záväzných na vydanie územného rozhodnutia a stavebného povolenia, nemohol investor ani projektant stavby uvedené požiadavky SVP ignorovať. Súčasne SVP požadoval, aby sa pri návrhu mosta zohľadnila potenciálna výstavba vodného diela Wolfsthal, ktorá by si vyžiadala prehĺbenie dna koryta Dunaja.
Z histórie Starého mostaÚvahy o stavbe stáleho mosta v Bratislave podporila až regulácia hlavného toku Dunaja a spevnenie jeho brehov v rokoch 1870 až 1890. V roku 1877 bola ustanovená „mostová komisia“, ktorej úsilie vyvrcholilo v decembri roku 1888 rozhodnutím o výstavbe pevného mosta cez Dunaj. Výstavba mosta sa začala 6. apríla 1889 a ukončila sa v októbri 1890. Priehradový most mal celkovú dĺžku 454,7 m. Tvorilo ho 7 jednoducho podopretých nosníkov s dĺžkami 31,6 + 2 × 75 + 91,5 + 2 × 75 + 31,6 = 454,7 m. Svetlá vzdialenosť medzi hlavnými nosníkmi bola 6,5 m. Priehradové nosníky boli v poli s najväčším rozpätím poloparabolické, v ostatných poliach mali konštantnú výšku. Náklady na stavbu predstavovali 1 780 000 zlatých. Most bol slávnostne otvorený 30. decembra 1890 za prítomnosti rakúskeho cisára Františka Jozefa, ktorý privolil dať mu svoje meno. Do prevádzky sa odovzdal 1. januára 1891. Neskôr bol na spoločných pilieroch pristavený k cestnému aj paralelný železničný most. Ako takmer všetky mosty v Rakúsku, ktoré niesli mená panovníkov, Most Františka Jozefa sa po páde monarchie premenoval. V čase bývalej Československej republiky dostal meno Most generála Milana Rastislava Štefánika a ľudovo ho nazývali Železný most. Most slúžil už 55 rokov, keď ho v noci z 2. na 3. apríla 1945 vyhodili do vzduchu ustupujúce nemecké vojská. Oceľový cestný most bol obnovený s využitím typizovaného mostného systému Roth-Waagner. Rekonštrukcia mosta sa začala 4. 8. 1945 a dokončila sa 24. 1. 1946, teda o 5 mesiacov a 17 dní. Most dostal názov Most Červenej armády. V roku 1950 bol obnovený aj železničný most s rombickou sústavou na spoločných pilieroch. Spolu s cestným mostom tvorili jediné stále premostenie Dunaja v Bratislave až do roku 1972. Cestný most má v súčasnosti (po rekonštrukcii v roku 1986) prvé dve polia jednoducho podopreté, tri ďalšie tvoria spojitý nosník a dve posledné zostávajú opäť ako spojitý nosník. Železničný most tvorí sústava siedmich jednoducho podopretých nosníkov. V roku 1989 dostal most opäť nový názov Starý most, a tak sa nazýva dodnes.  | 
Koncepcia mosta
Vychádzajúc z uvedených obmedzení (nevyhovujúca kvalita ocele pôvodnej nosnej konštrukcie, rozšírenie dopravných nárokov o cestné pruhy, širšie zóny pre chodcov a cyklistov a požiadavky na plavebný gabarit) projektant navrhol nasledovnú koncepciu mosta:
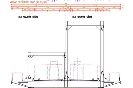
- Rozpätia polí budú 50,40 + 67,20 + 75,60 + 151,20 + 75,60 + 50,40 = 470,40 m. Dosiahne sa to odstránením 2 podpier v toku Dunaja (bližšie k bratislavskému brehu), keďže sú v zlom technickom stave (sú plytko založené) a ich oprava by bola nákladnejšia ako výstavba jednej novej podpery.
 - Šírka mosta 34,90 m umožní umiestnenie dvojkoľajnej električky, dvoch cestných pruhov a pásov pre peších a cyklistov v šírke 2 × 5,00 m. Takto navrhnutý dopravný priestor je veľmi úsporný a tiež variabilný – umožňuje nahradiť električkové pruhy cestnými (po „odchode“ električiek do tunela). Toto šírkové usporiadanie navyše umožní reagovať na vývoj dopravnej situácie v dlhodobejšom horizonte, t. j. rozšíriť cestné pruhy o jeden na úkor „oddychových“ zón (v prípade, ak by električka ostala nastálo na moste), ale aj opačne, rozšíriť zóny pre chodcov na úkor cestných pruhov.
 - Konštrukčný systém musí zohľadniť požiadavku na zvýšený plavebný gabarit a vedenie nivelety na moste, ktoré limituje pozdĺžny sklon v úseku medzi Šafárikovým námestím a kritickým „rohom“ plavebného gabaritu. Tieto okolnosti obmedzili konštrukčnú výšku pod úrovňou vozovky na asi 3,00 m. Keďže táto výška na premostenie hlavného poľa nepostačuje, musí sa časť hlavných nosných prvkov vysunúť nad úroveň vozovky.
 - Keďže spodnú stavbu tvoria podpery sčasti pôvodné alebo nové, vzhľadom na parametre plavebného gabaritu treba aj pri pôvodných podperách zosilniť zakladanie a zväčšiť ich výšku až o približne 3 m. Nadstavenie podpier bude tvoriť rozhranie medzi pôvodnou hmotou podpier (stena so žulovým obkladom) a novou časťou podpery. Bude to rozhranie priznané geometrickým tvarom, materiálom aj povrchovou úpravou „starého“ a „nového“. Pri nových podperách sa tento princíp dodrží použitím pôvodného žulového materiálu z odstránených pôvodných podpier. „Tvar nadstavca“ zohľadňuje statické a technologické požiadavky (vysúvanie nosnej konštrukcie).
 
- Vzhľadom na nostalgický vzťah občanov mesta k Starému mostu sa zachová z neho aspoň to, čo je za daných okolností možné:
 
- časti Starého mosta sa použijú ako premostenia pre chodcov, cyklistov a ľahkú dopravu ponad rameno Dunaja, ktoré sa vytvorí ako súčasť protipovodňovej ochrany a urbanizácie územia na pravom brehu Dunaja (zóna CMC Petržalka),
 - vzhľad mýtnych domčekov sa zachová (čiastočne ostane aj ich pôvodný materiál), len sa presunú do novej polohy s tým, že sa zachová ich dnešná funkcia,
 - Umeleckej besedy sa predmetná stavba nedotkne.
 
Prvú etapu prác sprevádzal pokus o repliku Mosta Františka Jozefa spred 100 rokov. Opísané nároky na dopravný priestor by si však pri tomto variante vyžiadali tri roviny priehradových nosníkov, ktoré by sa už „nevmestili“ na existujúce podpery, čo by si vyžiadalo úplne novú spodnú stavbu mosta. Tri roviny nosníkov by tiež obmedzili variabilnosť využitia dopravného priestoru v budúcnosti. Most by mal veľa prácnych detailov a navyše by sa veľmi ťažko montoval bez výluk plavby po Dunaji. Vzhľadom na to by boli stavebné náklady tohto variantu najvyššie spomedzi študovaných variantov. A aj podoba mosta má svoje slabiny – šikmý priehľad priehradovými nosníkmi vytvára disharmonickú spleť prvkov.
![]()  | 
![]()  | 
|
| Priečny rez mosta v podobe pôvodného Mosta Františka Jozefa/Starého mosta | Zavesená konštrukcia mosta | 
Ďalšie tri študované varianty s pylónmi rôzneho tvaru majú rovnakú koncepciu. Mostovkovú časť tvorí mohutná komora s parapetom, po oboch stranách sú „odvážne“ konzoly so železobetónovou a oceľovou mostovkou. Mostovková časť je v úseku najdlhších stredných polí zavesená na úzkych pylónoch rozličného typu prostredníctvom trojice mohutných káblov.
Z čisto mostárskeho pohľadu sú tieto zavesené varianty najlepšie. Mostovková časť napriek svojej šírke pôsobí štíhlo, systém závesov pôsobí silovo logicky. Nosná konštrukcia by sa dala pohodlne montovať. Vzhľadom na to by boli uvedené varianty pravdepodobne najúspornejšie. Nedostatkom týchto systémov je však skutočnosť, že tento priestor je už „prekáblovaný“ (Nový most a Most Apollo). Na základe rozhovorov so zadávateľom aj s niektorými architektmi som dospel k názoru, že predmetný priestor potrebuje tvarovo „pokojné“ riešenie.
Návrh finálneho systému a jeho variantov
Tak sa navrhol systém s výškovo premenným rebrom ako hlavným ohybovým prvkom a s mohutnou torzne odolnou komorou. Širokú mostovku nesú rebrá obalené do oceľového, miestami perforovaného plášťa. Otvory v plášti mostovky budú iluminované a vytvoria pri večernom osvetlení zaujímavé svetelné efekty.
Pre uvedený systém sa navrhli tri varianty s rôznym spôsobom optického aj hmotového odľahčenia rebra – variant grafity, perforované rebro a priehradovina. Pri všetkých troch variantoch je nosné rebro umiestnené v osi mosta, čo vytvára na vozovkovej časti luxusný dopravný priestor, ktorý bude možné v budúcnosti rozličným spôsobom obmieňať. Pri variante graffiti je nosné rebro plné a opticky odľahčené abstraktnou grafikou. Pri variante perforované rebro je hmota tohto nosného prvku odľahčená elipsovitými otvormi. Motív elipsy sa potom opakuje aj v pohľade mosta. Variant priehradovina je akousi spoločenskou objednávkou, pokusom vsunúť do základnej koncepcie s rebrom motív z pôvodného Starého mosta. Bol by však najprácnejší, s veľkým množstvom náročných detailov.
Ako je všeobecne známe, v hlasovaní zvíťazil variant perforované rebro. Víťazný variant je originálny konštrukčný systém, ktorý vznikol ako východiskové riešenie, ktoré vyplynulo z neštandardných požiadaviek na dopravnú funkciu mosta, ale aj ako produkt viacerých opísaných priestorových (gabarit, niveleta) a urbanistických (susedné mosty) obmedzení. Projektant predpokladá, že nosná konštrukcia mosta sa bude montovať na pravom brehu Dunaja a odtiaľ sa bude vysúvať do definitívnej polohy nad riekou. Tento postup nenaruší štandardný režim plavby po Dunaji.
Na ceste k finálnemu realizačnému stupňu dokumentácie bude musieť projektant vyriešiť mnohé neštandardné úlohy – počnúc komplikovaným statickým pôsobením, návrhom a posúdením mnohých prvkov a detailov (ktoré sa v norme nenájdu a pod.) a končiac zvládnutím elegantného spôsobu výstavby a návrhom nekonvenčného električkovo-cestného dilatačného záveru, ktorý nie je v repertoári žiadnej z firiem vyrábajúcich toto zariadenie. V neposlednom rade musí výsledný projekt umožniť prijateľnú prácnosť realizácie konštrukcie tak, aby sa dalo toto dielo vybudovať v predpokladanom čase a za peniaze, ktoré má zákazník – hlavné mesto SR k dispozícii.
Ešte pár slov o mostároch a architektoch
Projekt obnovy Starého mosta sa stal v posledných týždňoch objektom negatívnej kampane – predovšetkým zo strany obce architektov. Snažil som sa urobiť všetko preto, aby som oboznámil verejnosť s niektorými okrajovými podmienkami predmetnej úlohy, ktoré, dúfam, zobjektivizujú názory na projekt obnovy mosta. Nie je mojou úlohou posudzovať potrebu architektonickej súťaže na tento projekt. Konštatujem však, že Alfa 04, a. s., spolu so spoločnosťami Reming Consult, a. s., a PIO Keramoprojekt získali túto zákazku v regulárnej verejnej súťaži, v ktorej bola súčasťou zadania požiadavka na výmenu nosnej konštrukcie mosta, keďže kvalita ocele pôvodnej konštrukcie by negarantovala bezpečnú prevádzku mosta.
Stavba, akou je obnova Starého mosta a v tak exponovanom priestore hlavného mesta SR, si iste „zaslúži“ tvrdú oponentúru. Tvrdú, ale vecnú a korektnú. Zatiaľ som sa však nestretol s jediným vecným protiargumentom k prezentovaným návrhom, okrem argumentov typu „mne sa to nepáči“ (mne sa, mimochodom, nepáči veľmi veľa produktov z dielní slovenských architektov v ostatnom čase). Na most sa však nemožno pozerať takýmto spôsobom. Most súvisí s pojmami, ako sú bezpečnosť, dopravný účel, premosťovaná prekážka, efektívna realizácia, hospodárnosť, údržba, životnosť a (samozrejme, nie na poslednom mieste) aj tvarová harmónia, resp. estetika mosta. A toto všetko spolu a navzájom sa prelínajúc vytvára „logiku“ mosta.
Architektúrou mosta je preto predovšetkým jeho „logika“. Práve preto tvorcom architektúry mosta nemusí byť architekt. Môže, ale nemusí. A pri väčšine dobrých mostov ani nebýva. Aby som už dopredu reagoval na argumentáciu Calatravovými mostami, upozorňujem, že Santiago Calatrava vyštudoval inžinierstvo a doktorát robil zo statiky priestorových rámov. Je ideálne, ak most navrhne osobnosť, ktorá vie inžiniersky rozmýšľať a pritom má zmysel pre harmóniu tvarov. Sú aj príklady dobrej, navzájom sa doplňujúcej spolupráce mostára a architekta. Zdá sa, že vzorovým príkladom bola spolupráca inžiniera Michaela Virlogeuxa a architekta Normana Fostera na skvelom diele – estakáde Millau vo Francúzsku. Bolo to však možné iba preto, lebo jeden z najslávnejších súčasných architektov prejavil neuveriteľnú úctu k práci mostných inžinierov (pozri citát v úvode). Áno, mostný inžinier a architekt môžu spolupracovať, chce to však to, čoho bol schopný Foster – vzájomnú slušnosť, pokoru a úctu k práci toho druhého. A to platí, samozrejme, navzájom.
P. S. Dňa 6. 8. 2008 primátor hlavného mesta SR Bratislavy Andrej Ďurkovský oznámil, že na projekt obnovy Starého mosta cez Dunaj v Bratislave bude vypísaná architektonická súťaž!?
Ing. Miroslav Maťaščík
Foto: Alfa 04
Autor pôsobí ako predseda predstavenstva spoločnosti Alfa 04 a je hlavným inžinierom a zodpovedným projektantom projektu obnovy Starého mosta.
Článok bol uverejnený v časopise Inžinierske stavby/Inženýrské stavby 3/2008.
													
								                            







						
						
						
						


