Nový železničný most nad riekou Váh realizovaný technológiou letmej betonáže
Súčasťou stavby ŽSR, Modernizácia trate Púchov – Žilina pre rýchlosť do 160 km/h, I. etapa, medzistaničný úsek Púchov – Považská Bystrica, je aj nový železničný most s označením SO 44-33-18, ktorý prevedie železničnú trať z ostrova v Nosiciach ponad koryto Váhu a štátnu cestu do tunela Diel. Článok sa venuje opisu základného usporiadania mosta, jeho konštrukčných častí a použitej technológie pri výstavbe.
Existujúci aj navrhovaný koridor modernizovanej železničnej trate v úseku Púchov – Považská Teplá je situovaný do údolnej nivy rieky Váh, pričom nová trasa prekonáva vyvýšeniny v meandri Váhu tunelmi Diel a Milochov. Rieku Váh, ako aj kanál a vodnú nádrž Nosice, prekonáva trasa mostnými objektmi. Jedným z nich je aj nový železničný most, ktorý prevedie železničnú trať z ostrova v Nosiciach ponad ochrannú hrádzu a koryto Váhu a ponad štátnu cestu II/507 do tunela Diel.
Mostný objekt sa nachádza v okrese Púchov a spadá do katastrálneho územia obcí Nosice a Nimnica. Samotná dokumentácia na územné rozhodnutie bola spracovaná v septembri 2007. Stavebníkom sú Železnice Slovenskej republiky, Bratislava. Generálnym projektantom je REMING CONSULT a.s. Zhotoviteľom stavby je Združenie Nimnica, pričom stavebný objekt realizuje firma Váhostav pre firmu TSS Grade ako člena združenia.
Most je navrhnutý ako trámový, komorový, predpätý s hornou mostovkou s piatimi poľami.
Spodná stavba
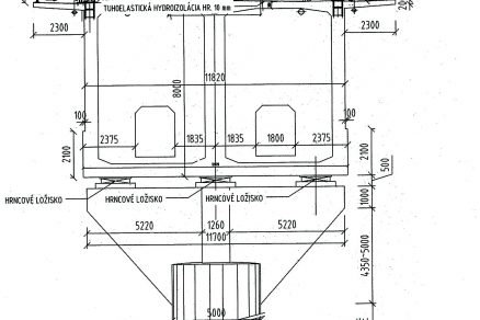
Samotnú spodnú stavbu tvoria dve krajné opory a štyri medziľahlé podpery. Výška podpier vrátane hlavice je od 7,8 do 14,3 m. Opory aj podpery sú hlbinne založené na veľkopriemerových pilótach s priemerom 900 mm a dĺžkou od 9 do 11 m. Podpera 2 je založená sčasti v otvorenom výkope a čiastočne zapažená štetovnicovou stenou, ktorá chráni hrádzu pred poškodením. Podpery 3, 4 a 5 sú založené v štetovnicových stenách, keďže sa nachádzajú v tesnej blízkosti koryta, respektíve pilier č. 4 je priamo v strede koryta Váhu. Na založenie podpery 4 je navrhnutý polostrov, ktorý bude po obvode chrániť ohrádzka tvorená štetovnicovou stenou a zásypom z lomového kameňa.
Na zlepšenie prietoku je do prístupovej cesty k ostrovu navrhnutých 15 ks oceľových rúr s priemerom 1 000 mm. Aby pri zakladaní nebol problém s presakujúcou vodou, štetovnice sú na podpere 4 a 5 utesnené tryskovou injektážou stien aj dna, na podpere 3 je utesnené iba dno. Štetovnice sú všade zaistené rozperným rámom, pri podpere 5 sú navyše od cesty kotvené lanovými kotvami. Základy podpier majú tvar obdĺžnika so skosenými rohmi. Piliere majú kruhový prierez s priemerom 5 m a sú ukončené masívnou hlavicou.
Nosná konštrukcia
Nosná konštrukcia je navrhnutá z predpätého betónu triedy C 45/55. So spodnou stavbou je spojená cez hrncové ložiská. Most má päť polí, jeho celková dĺžka je 311,8 m. Jednotlivé polia majú rozpätie 47,5 + 3 × 65 + 47,5 m. Nosná konštrukcia je v mieste koryta Váhu vo výške 22,3 m nad dnom.
V priečnom reze tvorí nosnú konštrukciu dvojkomora. Spodná doska má šírku 12,2 m. Horná doska je navrhnutá tak, aby zabezpečila prejazdnosť v oboch smeroch železničnej trate, čo v tomto prípade predstavuje šírku 11,82 m. Na oboch stranách je rozšírená o konzoly so šírkou 2,3 m, ktoré sú určené na chodníky pre chodcov a cyklistov. Celá šírka nosnej konštrukcie je tak 16,42 m. Výška nosnej konštrukcie sa pohybuje od 3 m v strede rozpätia po 8 m nad podperami.
Predpätie mostného objektu sa bude vnášať dodatočne a bude ho tvoriť 12- a 19-lanový izolovaný predpínací systém. Izolovaný systém sa zvolil z dôvodu ochrany pred bludnými prúdmi. Predpínacie káble sú rozdelené do troch skupín. Prvú tvoria konzolové káble, ktoré slúžia na predopnutie jednotlivých lamiel počas výstavby vahadiel. Druhá skupina sú káble spojitosti, ktoré sa budú predpínať po zmonolitnení jednotlivých častí nosnej konštrukcie. Tretiu skupinu tvoria voľné káble, ktoré sa predopnú po zmonolitnení celej nosnej konštrukcie. Všetky káble budú umiestnené v plastových chráničkách. Voľné káble budú uložené v komore mosta a s nosnou konštrukciou sa spoja v mieste priečnikov a deviátorov.
Mostný objekt sa bude realizovať technológiou letmej betonáže. Nad každým pilierom sa vybuduje zárodok s dĺžkou 13 m a pomocou betonárskych vozíkov bude prebiehať symetrická letmá betonáž so šiestimi lamelami s dĺžkou 2 × 3 + 2 × 4 + 2 × 5 m. Na stabilizáciu vahadla sa vybuduje vždy šestica stĺpov zo železobetónu, ktorá bude počas výstavby podopierať zárodok. Následne po výstavbe sa tieto stĺpy odbúrajú. Krajné polia sa dobetónujú na podpernej skruži.
Príslušenstvo mosta
Na každom pilieri a opore bude uložená trojica hrncových ložísk podliatych plastmaltou, aby sa zabezpečilo dokonalé oddelenie spodnej a nosnej konštrukcie vzhľadom na potrebnú ochranu nosnej konštrukcie pred bludnými prúdmi. Z dôvodu zníženia účinkov vodorovného zaťaženia od brzdných a rozbehových síl sú pevné ložiská umiestnené v strede podpier 3 a 4.
Prechod z nosnej konštrukcie na opory bude zabezpečený dilatačným zariadením v koľajových pásoch. V mieste chodníkov sa prechod vytvorí plechmi, ktoré sa budú kĺzať po teflónovej vrstve. Ich umiestnenie je zvolené tak, aby umožňovalo plynulý prechod chodcov a cyklistov. Samotné koľajové lôžko bude umiestnené medzi železobetónovými kábelovodmi, kotvenými do nosnej konštrukcie pomocou tyčí, osadených do betónu už pri realizácii nosnej konštrukcie. Koľajové lôžko zachytia na koncoch nosnej konštrukcie a oporách betónové múriky a oceľové priehradky.
Celá konštrukcia sa odizoluje od štrkového lôžka tuhoelastickou hydroizoláciou s hrúbkou 10 mm. V chodníkovej časti to bude pochôdzna izolácia s rovnakou hrúbkou 10 mm, ktorá sa opatrí vrstvou kremičitého piesku, slúžiacou ako ochranný kryt chodníka. Voda sa z mosta odvedie odvodňovačmi do zberného potrubia a následne do koryta Váhu.
Na mostnom objekte sa osadia stožiare trakčného vedenia, na ľavej strane bude protihluková stena. Na vonkajších stranách sú navrhnuté zábradlia a na oddelenie chodníkovej časti na pravej strane ešte bezpečnostná stena.
Záver
Na realizáciu nosnej konštrukcie sa zvolila technológia letmej betonáže, ktorá je vhodná práve pri tomto type prekonávanej prekážky a býva peknou výzvou pre stavbárov. Nosná konštrukcia zároveň svojím tvarom vždy zaujímavo dopĺňa okolité prostredie.
Samotnú výstavbu objektu firma Váhostav začala v októbri 2016. Keďže prebieha aj v samotnom koryte Váhu pri súčasne prebiehajúcej výstavbe mostov v hrádzi a kanáli, očakáva sa, že najväčším nepriateľom bude určite voda. Treba sa popasovať aj so zakladaním, ktoré, ako sa ukazuje z úvodných prác, bude komplikovanejšie najmä pre zložitejšie geologické pomery.
New railway bridge over the river Váh built by the free cantilever method of construction
Within the ŽSR Project, Modernisation of railway track Púchov – Žilina for speed up to 160 km/h, phase I, interstation section Púchov – Považská Bystrica is a new railway bridge no. SO 44-33-18, which enables the railway to cross the river Váh and the state road from the island in Nosice into the tunnel Diel. This article describes the basic disposition of the bridge, its structural parts and the construction method that was used for its execution.
TEXT: Ing. Jozef Mariňák
OBRÁZKY: Váhostav-SK, a. s.
Jozef Mariňák pôsobí v spoločnosti Váhostav-SK, a. s.
Článok bol uverejnený v časopise Inžinierske stavby/Inženýrské stavby 2/2017.







