Most SNP v Bratislave má 45 rokov
Od slávnostného otvorenia druhého mosta cez Dunaj v Bratislave, ktoré sa uskutočnilo 26. augusta 1972, uplynulo 45 rokov. Išlo o prvý most cez Dunaj v Bratislave postavený po 2. svetovej vojne. Uvedením do užívania otvoril urbanisticky ďalší priestor na rozširovanie novej Bratislavy na pravej strane Dunaja a na rozmach starej Petržalky. Projekt z prvej polovice 60. rokov predstavoval na vtedajšiu úroveň vedomostného poznania neobvykle architektonicky moderný a po statickej stránke veľmi odvážny projekt.
Po dlhoročných odborných diskusiách o tom, kde má byť táto budúca dopravná tepna umiestnená, padlo, žiaľ, politické rozhodnutie – most bude umiestnený tam, kde sovietska armáda postavila pri oslobodzovaní Bratislavy v apríli 1945 pontónový most. V decembri 1967 bol podpísaný základný dokument o výstavbe a v marci 1968 sa začala výstavba.
V tom čase spájal oba brehy Dunaja jediný most, ktorý bol postavený v roku 1891. Autorom architektonického návrhu nového mosta bol prof. Lacko a statického návrhu prof. Tesár. Most je situovaný oproti starému hradu a s pylónom s výškou 95 m mal vytvárať symetrickú dominantu oproti hradnému vrchu. Most bol navrhnutý ako zavesená oceľová konštrukcia s ortotropnou mostovkou.
Technické riešenie
Technické riešenie konštrukcie predstavovalo v danom období niekoľko „naj“, medzi ktoré možno zaradiť naklonený pylón, veľkú excentricitu ukotvenia nosných lán, centrické riešenie ukotvenia závesov vytvárajúce veľký krútiaci moment, 303-metrové rozpätie hlavného poľa a kruhovú konštrukciu kaviarne na pylóne.
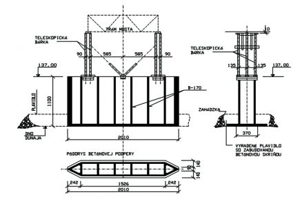
Návrh podpier A a B pomocou železobetónových skríň
Unikátnou sa ukázala aj montáž nosnej konštrukcie. Prvých 150 m sa montovalo na zemi na pravom brehu Dunaja pod vybudovaným pylónom mosta. Po zmontovaní 150 m sa nosník pomocou hydraulických lisov zdvihol do budúcej nivelety a vyvesil sa prvý záves cez pylón. Budovanie troch pomocných plošín v koryte Dunaja bolo pre Dunajskú plavbu neprijateľné. Pracovníci Doprastavu preto prišli s návrhom vybudovať provizórne železobetónové skrine na vyradených plavidlách Šariš a Orava.
Návrh podpier A a B pomocou železobetónových skríň
Železobetónové skrine boli vybudované na zakotvených plavidlách pri brehu. Ďalšie tri 75-metrové časti mosta sa montovali na výsuvných koľajových dráhach na pravom brehu pri starom moste. Pomocné železobetónové skrine sa naplavili do montážnej polohy, po zatopení sa fixovali kamenným záhozom. Predmontované 75-metrové mostné polia sa vysunuli po koľajových dráhach na súlodie a zaplavili na pomocnú železobetónovú bárku osadenú v koryte Dunaja.
Po vyvesení 75-metrových častí cez pylón sa z potopených lodí vyčerpala voda a dočasné bárky sa odplavili do prístavu. Zaujímavosťou bola aj realizácia izolácie ortotropnej mostovky s následnou tenkou vozovkou, ktorá dodnes slúži v pôvodnej vrstve a nepotrebovala na oceľovej časti žiadnu opravu.
Realizácia
Pozoruhodný bol na tú dobu aj súboj o realizáciu tohto diela. Keďže v tom čase bolo u nás plánované hospodárstvo, v rámci bilaterálnych vzťahov a vzhľadom na skutočnosti, že v bývalom Československu sa takýto veľký most ešte nerealizoval, smerovalo zadanie výstavby k maďarským stavebným podnikom. Písal sa však rok 1968 a Doprastav spolu s Hutnými montážami Ostrava ponúkli polovičnú a pevnú cenu, čo nakoniec rozhodlo v prospech československých podnikov.
Hlavným stavbyvedúcim bol Dipl. tech. Imrich Sládkovič. Podarilo sa mu dať dohromady kolektív piatich mladých inžinierov, ktorí stavbu dokončili a úspešne sa podieľali aj na ďalších stavbách. Most bol daný do užívania pod názvom Most SNP v auguste 1972 s dodržanou pevnou cenou.
V roku 1984 vyšla v nemčine a angličtine kniha Prof. Fritza Leonhardta s názvom Bridges: Aesthetics and Design, kde boli zo stoviek mostov sveta zaradené aj dva mosty z Československa – Karlov most v Prahe a Most SNP v Bratislave. Na Slovensku dostal Most SNP ocenenie Most storočia.
The second bridge in Bratislava is 45 years old
It has been 45 years since the opening ceremony of the second bridge over the River Danube in Bratislava dated 26th August 1972. It was the first bridge across the Danube built in Bratislava after World War II. The bridge opened an access to a new area for expansion of the new Bratislava on the right side of the Danube and gave rise to the boom of the town district called “old Petržalka”. Its architectural project from the first half of the 1960s was unusually modern with a rather audacious design calculation in those times.
TEXT: Ľubomír Hrnčiar
FOTO: archív autora
Ľubomír Hrnčiar je technický riaditeľ spoločnosti VÁHOSTAV – SK, a. s.














