Most na D1 Hričovské Podhradie – Lietavská Lúčka
Spoločnosť Amberg Engineering, s. r. o., spracúva dokumentáciu na realizáciu stavby mostného objektu na D1 Hričovské Podhradie – Lietavská Lúčka s názvom 206-00 Most na D1 nad poľnou cestou a potokom v km 37,781. V súčasnosti sa na stavbe dokončujú niektoré prvky spodnej stavby a montujú sa prefabrikáty nosnej konštrukcie ľavého mosta.
Diaľnica D1 Hričovské Podhradie – Lietavská Lúčka je súčasťou vnútroštátneho diaľničného ťahu z Bratislavy k štátnej hranici s Ukrajinou. Začína sa v križovatke diaľnic D1 a D3 v Hričovskom Podhradí a končí sa tesne pred križovatkou Lietavská Lúčka, ktorej realizácia patrí do nasledujúceho úseku D1. Predmetný úsek diaľnice je zároveň súčasťou medzinárodného ťahu E-50: Paríž – Norimberg – Praha – Brno – Trenčín – Žilina – Košice – Užhorod s pokračovaním cez Ukrajinu a Rumunsko na juh alebo cez Rusko na východ. Diaľnica sa na úseku D1 Hričovské Podhradie – Lietavská Lúčka buduje v plnom profile v kategórii D26,5/100 v režime FIDIC Žltá kniha. Zhotoviteľom stavby je Združenie Ovčiarsko s vedúcim členom združenia Doprastav, a. s. Členmi združenia sú Váhostav – SK, a. s., Strabag, s. r. o., a Metrostav SK, a. s. Na trase sa nachádza 11 mostov a 2 tunely.
Koncepcia návrhu
Návrh typu a rozpätia nosnej konštrukcie vychádzal z potreby čo najefektívnejšie previesť diaľnicu ponad hlavné prekážky (v tomto úseku ich predstavujú koryto bezmenného potoka a objekt cesty), ktoré sa nachádzajú pod mostným objektom. V dokumentácii na stavebné povolenie sa nosná konštrukcia objektu 206-00 Most na D1 nad poľnou cestou a potokom v km 37,781 navrhla ako monolitická dvojtrámová, dodatočne predpätá. V dokumentácii na realizáciu stavby [1] došlo k zmene nosnej konštrukcie na trámovú, z prefabrikovaných, dodatočne predpätých nosníkov spriahnutých železobetónovou doskou. Dĺžka nosných konštrukcií ľavého a pravého mosta sa oproti predchádzajúcemu stupňu dokumentácie nezmenila a nezmenili sa ani trvalé zábery. Z hľadiska situovania stavebného objektu je stavba v súlade s dokumentáciou overenou v stavebnom konaní. Navrhované úpravy sú v súlade so súťažnou ponukou zhotoviteľa.
Geologické a prírodné pomery
Úsek diaľnice D1 Hričovské Podhradie – Lietavská Lúčka prechádza územím s veľmi pestrým petrografickým zložením hornín a komplikovanou tektonickou stavbou. Územie sa v zmysle inžinierskogeologických regiónov Slovenska (M. Matula, 1987) radí do regiónu jadrových pohorí a tektonických vkleslín (depresií). Inžinierskogeologický a hydrologický prieskum pre dokumentáciu na stavebné povolenie spracovala spoločnosť Geofos, s. r. o., Žilina, v 5/2005. Fluviálny komplex v údolí je reprezentovaný vysoko až veľmi vysokoplastickým ílom, tuhej až tuho-mäkkej konzistencie s predpokladom výskytu organických látok. Zóna rozloženia siaha do hĺbky 2,1 až 8,0 m, má charakter vysokoplastického ílu tuhej konzistencie. V území svahov siaha zóna zvetrania do hĺbky 12,0 m, v údolí do 10,5 až 15,0 m. V svahoch a údolí sa zistila napätá hladina podzemnej vody, zaznamenali sa 2 – 3 horizonty podzemných vôd v zvetraných ílovcoch. Podľa porastu býva údolná niva trvalo podmáčaná. Čo sa týka betónových konštrukcií, odobraté vzorky vôd preukázali veľmi nízku agresivitu, no v prípade železa je agresivita veľmi vysoká.
V zmysle STN 73 0036 Seizmické zaťaženie leží záujmové územie v seizmickej oblasti 8° M.C.S. V širšom okolí stavby (objekt 206-00 sa nachádza do 6,0 km od centra Žiliny) dosiahli v minulosti zaznamenané zemetrasenia maximálne 7 – 8°. Predpokladá sa, že najintenzívnejšie účinky sa prejavujú v zvodnených náplavoch, v blízkosti zlomov a v nestabilných svahoch, ako aj vo svahoch, ktoré sú na hranici rovnovážneho stavu, kde sa odporúča zabezpečiť stavby na 9° M.C.S. Podľa STN EN 1998-1 má na trasu diaľnice a jej stavebné objekty vplyv aj seizmické riziko charakteristické pre oblasť Žilina, pre ktorú je referenčné špičkové seizmické zrýchlenie podložia agR = 0,0642. Geologické a prírodné podmienky sa zohľadnili v statickom a seizmickom výpočte nosných prvkov mosta.
Obr. 1 Pozdĺžny rez mostom
Zakladanie mosta
Výkopy sa stabilizovali technickými opatreniami podľa konfigurácie terénu, geologickej stavby a stability svahov. Výkopy pri podperách č. 13, 14, 15, 16 sa stabilizovali dočasnou konštrukciou z pažených larsenových stien typu Larssen IIIn. Štetovnicové steny sa zabudovali po celom obvode vibrobaranením z pôvodného alebo upraveného terénu tak, aby zostali vyčnievať približne 0,1 m. Po zhotovení základových pätiek a driekov pilierov jednotlivých podpier sa štetovnice vytiahli. Pri podperách č. 3 až 12 sa realizovali otvorené svahové jamy so sklonmi svahov 1 : 1. Prístup do stavebných jám sa zabezpečil rampami. Povrchová a podzemná voda zo stavebných jám sa odviedla odvodňovacími rigolmi zaústenými v najnižšom mieste jám do studní. Zo studní sa voda odčerpávala a odvádzala do bezmenného potoka, prípadne do cestnej priekopy. Vzhľadom na základové pomery sa navrhlo hĺbkové založenie mostného objektu 206-00. Hĺbkové základy tvoria veľkopriemerové pilóty s Ø 900 mm z betónu C 25/30 pre všetky opory a podpery. Podpery č. 3, 4, 5, 6, 7 a 8 sú založené na pilótach s dĺžkou 11,0 m. Všetky opory (č. 1, 2, 17 a 18) a medziľahlé podpery č. 9, 10, 11, 12, 13, 14, 15 a 16 sú založené na pilótach s dĺžkou 17,0 m. Únosnosť pilót sa overila na skúšobných systémových pilótach s dĺžkami 11,0 a 17,0 m. Výsledky zaťažovacích skúšok potvrdili predpoklady výpočtu a navrhnuté počty, priemer a dĺžky pilót sa nijako neupravovali. Pri oporách č. 1 a 2 sa na elimináciu účinkov sadania realizuje konsolidačný násyp. Zhotovenie konsolidačného násypu je súčasťou objektu 101-00. Pri oporách č. 17 a 18 je navrhnutý múr z vystuženej zeminy.
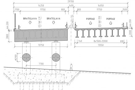
Obr. 2 Priečny rez nad podperou a v strede rozpätia
Spodná stavba
Spodnú stavbu mostného objektu 206–00 tvoria opory č. 1 a 2 a č. 17 a 18 a medziľahlé podpery č. 3 až 16. Opory mosta tvoria úložné prahy na pilótach, vyhotovené z betónu triedy C 30/37. V osi uloženia majú výšku 1,75 m, šírka úložného prahu je 3,50 m a šírka záverného múrika je 0,75 m. Na úložnom prahu sú dobetónované ložiskové bloky z betónu C 30/37. Sklon úložného prahu je 4 % smerom od záverného múrika k lícu opory. Na závernom múriku je kĺbovo uložená prechodová doska s dĺžkou 6,0 m a hrúbkou 0,28 m z betónu C 30/37. V závernom múriku opôr č. 1 a 17 je umiestnený otvor na prechod káblov ISD. Za oporami sú zhotovené štrkopieskové protimrazové kliny s odvodnením.
Tesnenie pri spätnom násype je navrhnuté vo forme plošnej drenáže s ochranou z HDPE tesniacej fólie a geotextílie. Opory ľavého a pravého mosta sú spojené oddilatovaným múrom, ktorý pozostáva z drieku a základového bloku. Na vonkajšej strane opôr sú navrhnuté čiastočne zavesené železobetónové krídla s driekom a základovým blokom. Krídla sú vyhotovené z betónu triedy C 30/37 a majú šírku 0,80 m. Medziľahlé podpery tvoria základové pätky a drieky z betónu C 30/37. Základové pätky majú pôdorysné rozmery 8,0 × 12,0 m a výšku 1,8 m. Drieky každej podpery pozostávajú z dvojice kruhových pilierov s Ø 2,1 m, votknutých do pätiek. Hlavy pilierov sú ukončené úložnými blokmi na osadenie ložísk. Všetky betónové plochy v styku so zeminou sa opatria 1x penetračným a 2x asfaltovým náterom.
Obr. 3 Spínacia dráha s portálovými žeriavmi
Nosná konštrukcia
Mostný objekt predstavujú dva súbežné, samostatné mosty. Nosná konštrukcia sa ukladá na spodnú stavbu prostredníctvom hrncových ložísk. Most je kolmý. Počas výstavby prechádza nosná konštrukcia rôznymi štádiami, pri ktorých sa mení statický systém a stupeň spolupôsobenia nosníkov so spriahajúcou doskou. Zo statického hľadiska ide v definitívnom štádiu o 8-poľovú spojitú konštrukciu (obr. 1), ktorá tvorí jeden dilatačný celok s pevným uložením na pilieroch v strede dĺžky nosnej konštrukcie. Nosná konštrukcia je navrhnutá ako prefabrikovaná, pozdĺžne delená. Rozpätia polí v osi diaľnice sú 30,0 + 6 × 42,0 + 30,0 m. Rozpätia polí v osi nosnej konštrukcie ľavého mosta sú 29,987 + 41,934 + 41,878 + 41,814 + 41,785 + 41,782 + 41,782 + 29,846 m a v osi pravého mosta 30,013 + 42,065 + 42,122 + 42,006 + 42,393 + 42,218 + 42,218 + 30,157 m. Dĺžka nosnej konštrukcie meraná v osi diaľnice je 313,8 m pri dĺžke premostenia 309,9 m. Dĺžka nosnej konštrukcie meraná v osi mostov je pri ľavom moste 312,61 m a pri pravom moste 315,0 m. Šírka nosnej konštrukcie ľavého mosta je 13,75 m a pravého mosta 13,55 m.
Nosná konštrukcia má konštantnú výšku minimálne 2,2 m. V priečnom smere ľavého a pravého mosta je 9 ks dodatočne predpätých atypických prefabrikátov DPS DP-I10 s výškou 2,0 m (obr. 2). Osová vzdialenosť nosníkov je 1,5 m, betón nosníkov je triedy C 45/55. Spriahnutie nosníkov je zabezpečené monolitickou doskou s minimálnou hrúbkou 0,2 m z betónu triedy C 30/37. Nosníky sú uložené na monolitických spodných doskách priečnikov so šírkou 2,8 m a výškou 0,8 m z betónu C 30/37, čím po vybetónovaní spriahajúcej dosky vznikne nad medziľahlými podperami prierez s výškou 3,0 m. Krajné priečniky majú po zmonolitnení rozmery 1,8 × 3,0 m. V priečnikoch sú otvory na chráničky zberného potrubia odvodnenia mosta a vedenie ISD. V miestach chráničiek sa preruší výstuž priečnikov a oblasť otvorov sa zosilní doplňujúcou výstužou. Nosníky s dĺžkou 29,1 m sú dodatočne predpäté 6 káblami 4 Ø 15,7 – 1860/1640. Nosníky s dĺžkou 41,1 m sú dodatočne predpäté 8 káblami 4 Ø 15,7 – 1860/1640. Káble sú vedené v oceľových kanálikoch DN 48 mm. Použitý je kotevný systém Napko OVM.M15A-4. Predpínacie napätie všetkých káblov je 1 426 MPa.
Obr. 4 Podperná konštrukcia ťažkej žeriavovej dráhy a priečnikov
Výstavba nosnej konštrukcie mosta
Prefabrikáty sú spínané z dielcov – segmentov – na spínacej ploche (obr. 3). Krajné polia tvoria segmenty s dĺžkou 10,86 + 7,38 + 10,86 m = 29,1 m, vnútorné polia tvoria segmenty s dĺžkou 14,36 + 12,38 + 14,36 m = 41,1 m. Spínacia plocha je pripravená na násypovom telese, ktoré tvorí zhutnené podložie (Edef = 45 MPa) v predpolí mosta. Na podloží je vybudované lôžko zo štrkodrviny (Edef = 60 MPa) s podpernými blokmi. Na styku podperného bloku a dielcov nosníka je preglejka, po ktorej sa kĺžu dielce pri spínaní. Pred zopnutím dielcov do nosníka a vnesením projektovanej hodnoty predpätia sa na plochy kontaktných škár v medzere medzi dielcami nanesie epoxidový tmel. Káble pozostávajúce zo 4 lán sa predpínajú v poradí podľa dokumentácie na realizáciu stavby. Priblíženie a spojenie dielcov nosníka na celej ploche prierezu nastáva po predopnutí prvých troch káblov, pričom krajné dielce sa pritlačia k strednému dielcu. Počas predpínania sa sleduje zapadnutie ozubov v kontaktných škárach, zovretie škár a vytlačenie časti epoxidového tmelu po obvode škár. Prebytočný tmel sa z povrchu dielcov odstraňuje po zatvrdnutí. Pri predpínaní káblov sa sleduje hodnota tlaku na manometri napínacieho zariadenia. Na kontrolu predpätia sa používa meranie predĺženia káblov, ktoré sa porovnáva s hodnotami predĺženia podľa projektu. Káblové kanáliky sa injektujú po predopnutí všetkých káblov príslušného mostného poľa. Ďalšia manipulácia s nosníkmi je povolená po dosiahnutí kontrolnej pevnosti injektážnej malty v tlaku aspoň 20 MPa.
Na manipuláciu s dielcami a následne na montáž predopnutých a zainjektovaných nosníkov s celkovou hmotnosťou 48,30 t (nosníky s dĺžkou 29,1 m), resp. 68,31 t (nosníky s dĺžkou 41,1 m) sa používa dvojica synchronizovane sa pohybujúcich portálových žeriavov s nosnosťou 63,0 t a rozchodom 22,0 m [2]. Žeriavy sa pohybujú po priamej a vodorovnej žeriavovej dráhe. Žeriavovú dráhu tvoria priestorové priehradové oceľové nosníky a na jej vrchu je osadená koľajnica. Nosníky žeriavovej dráhy sú podopreté podpernou konštrukciou PIŽMO (obr. 4), prípadne v mieste nízko nad terénom (oblasť pri spínacej ploche) podvalmi uloženými na cestných paneloch. Vzhľadom na smerové a výškové vedenie mosta sa zostavenie žeriavovej dráhy a montáž nosníkov delí do niekoľkých fáz.
Obr. 5 Montáž ľavého mosta – schéma
Pred montážou nosníkov sa na hlavy pilierov osadili hrncové ložiská s projektovanými parametrami, nad ktorými sa vybetónovala monolitická železobetónová spodná doska priečnika. Táto časť priečnika zostáva podopieraná skružou, pričom skruž musí byť schopná preniesť aj tiaž mostných nosníkov. Prefabrikáty nosnej konštrukcie sa na spodnú dosku priečnika ukladajú „na sucho“ pomocou portálových žeriavov. Horný povrch priečnikovej dosky je tvarovaný tak, aby umožnil vodorovné uloženie nosníkov. Nosníky majú v jednotlivých poliach rovnaké dĺžky. Medzi čelami nosníkov uložených na spodné dosky priečnikov podpier je medzera s premennou šírkou. Na ľavom moste je medzera v intervale od 0,45 do 0,80 m. Na pravom moste sa medzera mení v intervale od 1,12 do 1,40 m. Nosníky sa na ľavom moste ukladajú tak, že portálové žeriavy sa pohybujú po žeriavovej dráhe, ktorej celá podperná konštrukcia je uložená na teréne (obr. 5). Pri ukladaní nosníkov na pravom moste bude žeriavová dráha čiastočne podopieraná z terénu a čiastočne uložená na nosnej konštrukcii hotového ľavého mosta (obr. 6).
Po uložení nosníkov sa konštrukcia zmonolitní podľa navrhnutého postupu výstavby – najprv sa vybetónuje spriahajúca doska medzi podperami a neskôr zostávajúce úseky spriahajúcej dosky nad podperami. Spodné dosky priečnikov sú podopierané dočasnou podpernou konštrukciou až do okamihu nadobudnutia 80 % predpokladanej pevnosti betónu v tlaku spriahajúcej dosky a dobetonávky priečnikov. Spriahajúca železobetónová doska sa vybetónuje do strateného debnenia vytvoreného z cementotrieskových dosiek s hrúbkou 20 mm. Pri výstavbe nosnej konštrukcie sa počíta s dočasnou fixáciou ložísk, preto možno nosníky osadzovať a spriahajúcu dosku betónovať od ľubovoľnej podpery. Ložiská nad podperami, od ktorých sa betónuje doska, budú dočasne fixované. Táto fixácia sa zruší po aktivovaní ložísk nad podperami č. 9 a č. 10 (definitívne pevné ložiská) a po dobudovaní mostných polí v oblasti týchto podpier.
Obr. 6 Montáž pravého mosta – schéma
Záver
V súčasnosti sa na stavbe dokončujú niektoré prvky spodnej stavby a montujú sa prefabrikáty nosnej konštrukcie ľavého mosta. Očakáva sa, že úsek diaľnice D1 Hričovské Podhradie – Lietavská Lúčka bude odovzdaný do užívania v roku 2018. Dobudovanie diaľnice D1 v okolí Žiliny prispeje k zníženiu negatívnych vplyvov na životné prostredie a skvalitní dopravné podmienky v tomto regióne.
Ing. Konštantín Kundrát, CSc.,
Ing. Ľubomír Kožlej, Ing. Marek Juhás
FOTO a OBRÁZKY: Amberg Engineering Slovakia, s. r. o.
Konštantín Kundrát, Ľubomír Kožlej a Marek Juhás pôsobia v Tunroad Engineering, s. r. o./Amberg Engineering Slovakia, s. r. o.
Literatúra
1. 206-00 Most na D1 nad poľnou cestou a potokom v km 37,781. Dokumentácia na realizáciu stavby, 2014 – 2015.
2. Böhman, I.: Technologický postup:
Montáž nosníkov, 2015.
Článok bol uverejnený v časopise Inžinierske stavby/Inženýrské stavby















