Most 203-00 na rýchlostnej ceste R1
Jedným z najzaujímavejších objektov rýchlostnej cesty R1 z hľadiska technológie je most 203-00 nad údolím, cestou III/06434, potokom Kadaň a poľnou cestou v km 3,34490, ktorý je súčasťou 2. úseku rýchlostnej cesty R1 Selenec – Beladice.
Realizátorom tohto a ďalších mostov na stavbe rýchlostnej cesty je spoločnosť Stavby mostov Slovakia, a. s. Projektovú dokumentáciu vypracoval DOPRAVOPROJEKT, a. s., Bratislava, realizačnú dokumentáciu, najmä technológiu letmej betonáže, spracováva spoločnosť Pontex Praha.Základná charakteristika
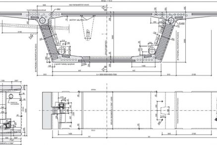
Projektovaná výška mosta je 31,5 m, plocha mosta 16 777,5 m2 ako prepočítaná dĺžka nosnej konštrukcie a užitočná šírka, dĺžka premostenia ľavého mosta 758,879 m, dĺžka premostenia pravého mosta 757,132 m, dĺžka nosnej konštrukcie ľavého mosta 763,479 m a pravého mosta 761,732 m.
Realizovaný most je navrhnutý ako 14-polový spojitý nosník z predpätého betónu, letmo montovaný zo segmentov bez použitia samostatných provizórnych podpôr. Výškovo je most v údolnicovom oblúku so sklonom –1,68 % až + 4 %. Smerovo je v pravotočivom oblúku R = 1 500 M, klotoide L = 210, klotoide L = 160 m a ľavotočivom oblúku R = 1 000 m.
Most je založený hlbinne na vŕtaných pilótach.
Mostnú konštrukciu tvoria dva paralelné samostatné mosty, uložené na samostatných oporách. Na oporách a pilieroch je mostná konštrukcia uložená na hrncové ložiská. Na každej podpere sú uložené dve ložiská. Hrncové ložiská na pravej strane mostu sa navrhli ako pozdĺžne vedené, ložiská na ľavej strane sú všesmerne posuvné. Na pilieroch č. 7 a 8 sa takisto navrhli hrncové ložiská, pričom pravé ložiská sú pevné v oboch smeroch a ľavé sú priečne posuvné a v pozdĺžnom smere mostu pevné. Ložiská sú uložené na vrstve plastbetónu s hrúbkou 10 mm.
Technológia výstavby

Jednotlivé fázy postupu výstavby mosta sa navrhli tak, aby jednorazové montážne stavy nezaťažovali rozhodujúcim spôsobom spodnú stavbu, najmä pilier 7, pri ktorom by okamžitá aktivácia pevných ložísk zásadne ovplyvnila jeho statiku.
Samotná montáž nosnej konštrukcie vrátane zmonolitňujúcih škár bude trvať 13 mesiacov. Celkový čas realizácie diela je 31 mesiacov, sprevádzkovanie sa však požaduje už za 25 mesiacov. V súčasnosti sa zrealizuje založenie a prebieha výstavba základov a pilierov.
Segmentová technológia
Segmentová technológia je rýchlou a ekonomickou metódou stavby dlhých viaduktov. Princíp spočíva v prefabrikácii betónových prvkov komorového prierezu (segmentov) z betónu vysokej kvality a ich letmej montáži na stavbe, nezávisle od terénu pod mostom. Používa sa pri dlhých mostoch s rozpätím polí do 60 m a šírkou nosnej konštrukcie do 15,5 m (bez ríms). Výška nosnej konštrukcie je v celom priebehu konštantná a môže byť 2,35 m, 2,65 m alebo 3,00 m. Najčastejšie ide o výšku 3,00 m, pre ktorú platí horná hranica rozpätia vnútorných polí 50 až 60 m. Pozdĺžny ani priečny sklon komunikácie nemá byť väčší ako 6 %, polomer zakrivenia nemá byť menší ako 350 m.
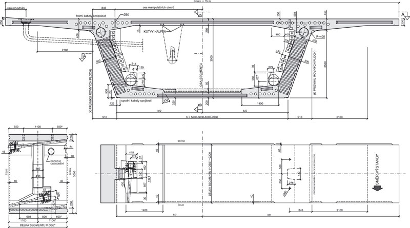
Výroba prebieha tzv. kontaktným spôsobom vo výrobných formách umožňujúcich presné geometrické nastavenie podľa výsledného tvaru mosta. Každý hotový segment sa geodeticky výškovo a smerovo nastaví do debniacej polohy vo vzťahu k nasledujúcemu, ktorý sa vyrobí pomocou hydrauliky a po vybetónovaní vznikne jeho odtlačok. Dĺžka segmentov v osi hornej dosky nad komorovým tubusom je 2,20 m, na okrajoch sa skracuje alebo predlžuje podľa zakrivenia komunikácie. Nad podperami (piliermi a koncovými oporami), kde je most uložený na ložiskách, sú segmenty vnútri zosilnené priečnikmi. Dĺžka týchto pilierových segmentov je 1,70 až 1,8 m a hmotnosť je na hornej hranici 60 t. Šírka základne komorového tubusu môže byť od 5,00 m po 0,5 m do 7,00 m, využíva sa 5,50 – 6,00 – 6,50 m. Betón z automatickej betonárky má riadenú kvalitu predpísanej triedy podľa projektu C45/55, XF2 alebo C55/67, XF2.
Schéma bežných segmentov
Pri letmej betonáži sa segmenty montujú špeciálnym zariadením symetricky na obidvoch stranách od pilierov do tzv. vahadiel pri maximálne 2 × 13 segmentoch. Montáž vahadla sa začína uložením pilierového segmentu a jeho zakotvením do piliera. K nemu sa pripojí jeden segment, tzv. zadný. Na túto dvojicu sa presunie montážne zariadenie, doplní sa tzv. predný segment a takto vzniknutý zárodok vahadla sa uloží na hydraulické lisy na rozšírenej hlave piliera alebo na pomocných montážnych podperách. Montujú sa 2 až 4 segmenty denne, v priaznivých klimatických podmienkach až 6 segmentov denne, t. j. 8,8 m (13,2 m) mosta. Škáry medzi segmentmi sa lepia špeciálnym dvojzložkovým tmelom a k predchádzajúcemu sa pripínajú najskôr montážnymi tyčami, potom montážnymi káblami po 2 × 19 sedemdrôtových lanách s pevnosťou 1570/1770 MPa a injektujú sa cementovou maltou. V strede polí medzi vahadlami vzniká zámerne medzera (uzatvárajúca škára), ktorá sa po geometrickom zarovnaní nového vahadla pomocou hydrauliky dobetónuje a predopne tzv. káblami spojitosti s rovnakou kapacitou (vyše 3 000 kN), ako majú káble montážne. V prípade, že most má externé predpätie, sú v každom poli ešte segmenty deviátorové, ktoré usmerňujú priebeh externých káblov do staticky efektívnej dráhy.
Ing. Luděk Borový, Ing. Jaroslav Kobza, CSc.
Foto: Stavby mostov Slovakia
Luděk Borový je riaditeľom spoločnosti Stavby mostov Slovakia, a. s.
Jaroslav Kobza je špecialistom spoločnosti SMP CZ, a. s.
Článok bol uverejnený v časopise Inžinierske stavby/Inženýrské stavby.







