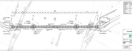
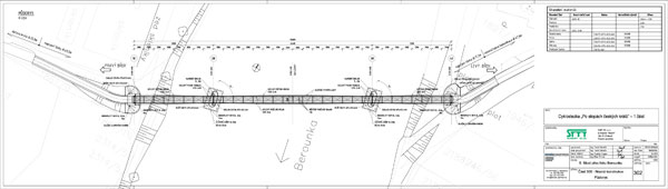
Lávka cez rieku Beroun v Beroune
Lávka je určená pre cyklistov a pre peších. Je súčasťou cyklistickej trasy Po stopách českých kráľov.
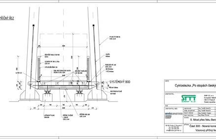
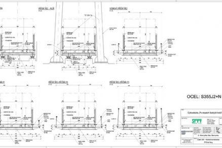
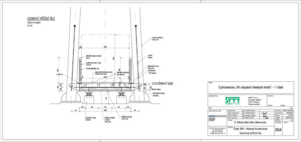
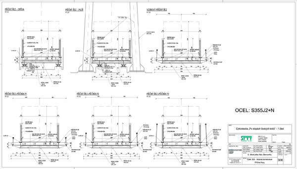
Lávka s dĺžkou 129,8 m má tri polia s rozpätím 32,2 + 62,4 +32,2 m. Oceľová konštrukcia je zavesená s dolnou mostovkou. Novostavbu navrhli Milan Hansík a Ing. David Ladman s ateliérom NOVÁK a PARTNER, s.r.o.





















