Estakáda budovaná výsuvnou skružou na diaľnici D47 v ČR
Na severe Moravy v týchto dňoch finišuje výstavba dlhej estakády pri Bělotíne. Nosná konštrukcia tejto betónovej estakády má priečny rez v tvare komory. Prečo sa použil tento tvar, keď v Čechách v posledných rokoch dominujú mosty v tvare dvojtrámu, sa pokúsime vysvetliť v tomto príspevok.
Polemický úvodMosty estakádneho charakteru s komorovým prierezom sú dnes vystavené ťažkej skúške. V čase stavebného boomu boli stavebné firmy často nútené k veľmi rýchlemu tempu výstavby mostných objektov. Táto požiadavka ich viedla k racionalizácii technologických postupov a minimalizovaniu prácnosti stavebných úkonov. Tomu zodpovedá návrat ku klasickému dvojtrámovému prierezu. Pri mostoch budovaných na výsuvných skružiach sú to hladké bezpriečnikové dvojtrámové prierezy konštantného tvaru po celej dĺžke mosta. Takéto staticky nie práve ideálne rozmiestnenie hmoty nosnej konštrukcie je kompenzované realizačným „pohodlím“ (debnenie bez vnútorných dutín, jednoduchá betonárska výstuž, pohodlnejšia betonáž a pod.), a tým aj rýchlosťou výstavby. Výrobná zložka stavebných firiem tieto prednosti dvojtrámového prierezu veľmi oceňovala, a tak viaceré firmy zakúpili výsuvné skruže pre dvojtrámy. Vlastníctvo výsuvnej skruže, samozrejme, vedie stavebné firmy k uprednostňovaniu tohto prierezu aj na ďalších mostoch. Nič proti tomu, výsuvná skruž je drahé zariadenie, preto je snaha firiem o jeho maximálne využitie
prirodzená.

A teraz niekoľko slov na obranu komorového prierezu. Jeho statické prednosti sú nesporné, spomeniem aspoň niektoré:
- neobmedzovaná možnosť na optimálne rozloženie hmoty,
- výhodná poloha neutrálnej osi,
- výborná torzná odolnosť,
- rôzne možnosti umiestnenia ložísk, a tým aj minimálne obmedzenia pri tvarovaní podpier,
- lepšie možnosti na kotvenie káblov mimo „čela“ etapy (priečniky, dolná doska atď.),
- pri komplikovaných križovatkových mostoch s premennou šírkou a pripájajúcimi sa vetvami bezproblémové pridávanie a uberanie trámov, ako aj vykotvovanie káblov v priečnikoch, na vnútorných stenách trámov aj v doskách,
- prednosti komory pri mostoch budovaných vysúvaním, letmou betonážou alebo pri mostoch väčších rozpätí sú zrejmé.
Tieto nesporné klady „komory“ sa väčšinou – predovšetkým ľuďmi z terénu – potierajú z dôvodu problémov pri realizácii tohto prierezu. Vyššia prácnosť pri armovaní, betonáži, a najmä pri oddebňovaní vnútorného debnenia je nepopierateľná, hoci aj tieto činnosti sa dajú predovšetkým pri dlhých mostoch racionalizovať (posuvné vnútorné debnenia, zvárané oceľové rohože na armovanie dolnej dosky atď.).
Na záver konštatujeme, že pre našu profesiu je výborné, keď spor „komora verzus dvojtrám“ nie je navždy rozhodnutý. To bude nútiť projektanta na začiatku každej novej úlohy sa znovu a znovu zamýšľať, a nie iba používať to, čo má práve „v šuflíku“. Hoci veľmi často rozhodne tento spor to, čo má práve zhotovovateľ „na dvore“. A to bol aj prípad estakády cez potok Luha pri Bělotíne.

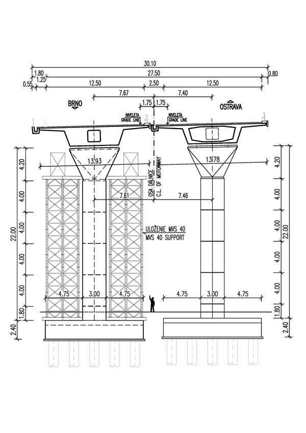
Stavba 4705 Bělotín – Hladké Životice je súčasťou severojužnej moravskej diaľnice D47 spájajúcej Brno s Ostravou, s pokračovaním na poľskú hranicu. Stavba je v súčasnosti v polovičnom profile v prevádzke. Súčasťou stavby je aj objekt 5201 Most na diaľnici cez potok Luha v km 107,130.
Objekt tvoria dve súbežné diaľničné estakády. Komunikácia na moste je v šírkovom usporiadaní R 28,5/120. Smerovo trasa diaľnice vedie v ľavotočivom oblúku. Niveleta mosta je vo výškovom zakružovacom oblúku. Priečny sklon vozovky je v celom rozsahu mosta dostredný 2,5 %.
Most sa založil hĺbkovo, na veľkopriemerových pilótach s priemerom 1 200 mm a dĺžkou 12 až 18 m. Podložie tvoria neogénne, stredne- až vysokoplastické íly.
Spodnú stavbu tvoria podpery šesťhranného prierezu ukončené rozširujúcou sa hlavicou na uloženie dvojice hrncových ložísk Cedron. Najvyšší pilier má výšku 23 m. Spodná časť podpier je z betónu C 35/45 a vrchná časť spolu s hlavicou z betónu C 30/37.
Nosnú konštrukciu obidvoch estakád tvorí spojitý jednokomorový 16-poľový nosník výšky 2,4 m z monolitického, dodatočne predpätého betónu C 30/37. Nosná konštrukcia sa budovala na výsuvnej skruži. Predpínacie káble tvorí 9 alebo 13 lán Ls 15,7/1 800. Sú prevažne stykované v pracovnej škáre, asi 40 % káblov je kotevných v nadpodperových priečinkoch. Ako betonárska výstuž sa vo veľkom rozsahu používali armokoše a vopred zvárané rohože. Aby sa zabezpečila rýchlosť a realizačné pohodlie pri ukladaní predpínacích káblov do prierezu, strmene trámov sa v 1. etape armovacích prác otvorili. Po uložení káblov sa strmene uzavreli priečnou výstužou hornej dosky.
Vzhľadom na veľkú dĺžku mosta, pôdorysné zakrivenie a spôsob výstavby sa mimoriadne nároky kládli na ložiská. Ložiská museli umožniť veľké dilatačné pohyby, museli preniesť veľké vodorovné sily vyplývajúce z excentricity fixovania mosta počas výstavby a museli tiež meniť svoje funkcie a smer dilatovania v jednotlivých štádiách výstavby. To si vyžiadalo náročné úpravy hrncových ložísk. Štandardná časť ložiska sa doplnila spodnou pomocnou klznou doskou a systémom „blokov“, ktoré zabezpečovali dočasné fixovanie mosta. Režim fungovania ložísk sa v každom štádiu výstavby prísne sledoval.
Výsuvná skruž
Výsuvnú skruž MVS 40, ktorá je majetkom zhotovovateľa Inžinierskych stavieb, a. s., tvoria dva oceľové priehradové nosníky umiestnené pod komorou mosta na jej obidvoch stranách. Majú dĺžku 90 m a sú podopreté troma oceľovými vežami vzdialenými 42 m, osadenými na základy podpier.

Záver
Pravý most, objekt 5201, dnes už slúži motoristickej verejnosti. Zaťažovacia skúška aj doterajšia prevádzka potvrdzujú súlad realizovaného diela s projektom. Dosiahnutý čas výstavby aj ekonomické ukazovatele zase potvrdzujú správnosť koncepcie návrhu mosta a opodstatnenosť použitia výsuvnej skruže na jej realizáciu. Celá stavba bude odovzdaná do prevádzky v auguste 2010.
Miroslav Maťaščík – Igor Masaryk
FOTO: ALFA spol, s.r.o.
Článok bol uverejnený v časopise Inžinierske stavby/Inženýrské stavby.






