Diaľnica D1:Most medzi korytom rieky Váh a Hričovským kanálom
V úzkom priestore medzi Hričovským kanálom a korytom Váhu bolo potrebné umiestniť diaľničnú komunikáciu na mostný objekt estakádneho typu. Vzhľadom na jeho dĺžku a termíny výstavby sa pri návrhu uplatnili dve konštrukčné a technologické riešenia.
ÚvodMostný objekt sa nachádza na budovanom úseku diaľnice D1 Sverepec – Vrtižer. Obmedzené možnosti trasovania v danej lokalite donútili projektanta umiestniť diaľničnú komunikáciu do priestoru medzi Hričovským kanálom a pôvodným korytom Váhu. Vznikla tak požiadavka vybudovať mostný objekt, ktorý je dominantný svojou dĺžkou 1 785 m, čím sa zaraďuje medzi najdlhšie mosty na Slovensku. Trasa diaľnice v mieste mosta vedie v štyroch protismerných oblúkoch s prechodnicami. Výškovo diaľnica vedie 6 až 12 m nad terénom.
Opis konštrukcie objektu
Most sa riešil ako dva súbežné diaľničné objekty s dvomi dilatačnými celkami.
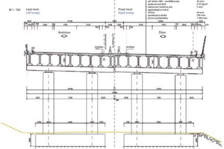
Obr. 1 Priečne rezy prvým dilatačným celkom
(pre lepšie zobrazenie kliknite na obrázok)

Šírky pásnic sú konštantné po dĺžke nosníka. Stojka hlavného nosníka je z plechu hrubého 12 a 16 mm a vystužila sa pomocou pozdĺžnej korýtkovej výstuhy a zvislých výstuh. V šestinách rozpätia sa umiestnili priehradové priečniky zvárané z HEA a HEB profilov. Spriahnutie oceľovej nosnej konštrukcie so spriahujúcou doskou sa riešilo pomocou spriahujúcich tŕňov s priemerom 22/150.

Spôsob výstavby
Výstavba nosnej konštrukcie prebiehala vo dvoch fázach. V prvej fáze sa vyrábala samotná oceľová konštrukcia vo výrobni a následne sa montovala priamo na stavbe z jednotlivých segmentových častí. V druhej fáze sa dobetónovala železobetónová spriahujúca doska pomocou betonárskych vozíkov.
Výroba oceľovej konštrukcie
Oceľová konštrukcie sa vyrábala v mostárskych dielňach, kde sa materiál upravoval do požadovaného tvaru a zvaril do hlavných I-nosníkov. Zváralo sa ručne a poloautomatickým zváraním a následne sa zvary skontrolovali röntgenom a ultrazvukovou skúškou.

Oceľová konštrukcia sa montovala obojstranne od stredného pilina s pevným ložiskom. Najprv sa osadila nadpodporová časť oboch nosníkov, podopretých na hydraulických lisoch na pilieri a provizórnych oceľových bárkach. Po rektifikovaní sa nosníky prepojili priehradovými priečnikmi pomocou vysokopevnostných skrutkových spojov a následne sa privarili medzipodporové časti oceľovej konštrukcie. V ďalšej fáze sa tento cyklus postupnej montáže opakoval, až kým sa nezmontovala celá oceľová konštrukcia. Po montáži ucelených celkov sa konštrukcia postupne spustila na ložiská, ktoré sa podlievali vrstvou plastbetónu.

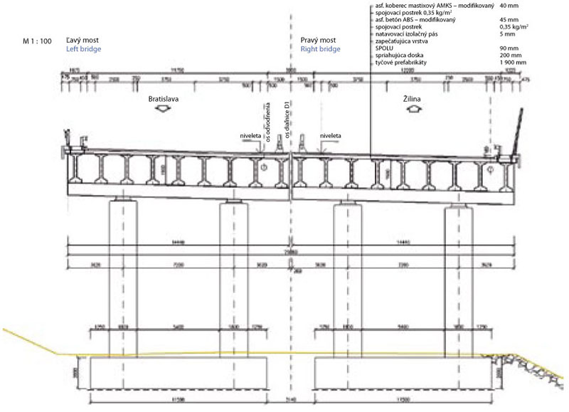
Druhý dilatačný celok sa riešil z tyčových predpätých prefabrikátov dlhých 38,0 a 36,0 m, ktoré sú spriahnuté so železobetónovou doskou a vytvárajú spojitú konštrukciu s 21 poľami. V priečnom smere sa na každý most použilo 9 nosníkov s výškou 1,90 m vo vzájomnej osovej vzdialenosti 1,676 m. Prefabrikáty sa navrhli, vyrobili a odskúšali špeciálne pre daný objekt.
Obr. 6 Priečny rez druhým dilatačným celkom
(pre lepšie zobrazenie kliknite na obrázok)
Spôsob výstavby
Výstavba nosnej konštrukcie sa realizovala v troch etapách. V prvej etape prebiehala výstavba podpornej konštrukcie monolitického priečnika a jeho betonáž. V druhej etape sa uložili prefabrikované nosníky a v tretej etape prebiehalo spriahovanie nosníkov železobetónovou doskou spolu s dobetonávkou monolitických priečnikov.

Prefabrikované nosníky sa vyrobili vo výrobni Váhostav-SK – Prefa, s. r. o., a ukladali sa buď pomocou jednonosníkového zavážacieho mosta, ktorý sa pohyboval po koľajnicovej dráhe, podopretej oceľovou konštrukciou, alebo výkonným kolesovým žeriavom. Prefabrikované nosníky sa kládli súčasne na ľavom a pravom moste po jednotlivých poliach.
Záver
Zvolený spôsob výstavby dvoma technológiami sa najmä vzhľadom na krátky termín výstavby ukázal ako správny. Výroba a montáž oceľovej konštrukcie sa zvládla za 11 mesiacov a samotná betonáž spriahujúcej dosky trvala 9 mesiacov. Konštrukcia z prefabrikovaných predpätých nosníkov umožnila výstavbu počas celého roka bez obmedzenia.
Projektovú dokumentáciu objektu spracoval DOPRAVOPROJEKT, a. s., Bratislava, stredisko Liptovský Mikuláš a pracovisko Levice. Zhotovovateľom objektu je Váhostav-SK, a. s., Žilina. Dodávateľom oceľovej konštrukcie bolo združenie firiem Montirp, s. r. o., Žilina a Promont, s. r. o., Krásno nad Kysucou. Vozíky na betonáž mostovky dodala firma Peri Slovensko, spol. s r. o.
Jaroslav Guoth, Richard Púček
FOTO: DOPRAVOPROJEKT, a. s., Bratislava
Článok bol uverejnený v časopise Inžinierske stavby/Inženýrske stavby.












