Bezúdržbové konštrukcie pre mostné objekty
V súčasnosti je veľmi častou požiadavkou zhotoviteľov stavieb čo najnižšia cena technického riešenia, na druhej strane stoja požiadavky investorov na bezpečnosť, návrhovú životnosť a trvalú funkčnosť konštrukcií pri zachovaní čo možno najnižších nákladov na ich prevádzku a údržbu. Spoločnosť MACCAFERRI umožňuje investorom, projektantom a aj zhotoviteľom stavieb efektívne optimalizovať náklady spojené s návrhom, výstavbou a prevádzkou týchto konštrukcií.
Spoločnosť MACCAFERRI CENTRAL EUROPE, s. r. o., (ďalej len MACCAFERRI) aktívne pôsobí na slovenskom stavebnom trhu od roku 2005. Z výrobného závodu v Brezovej pod Bradlom, kde sa vyrábajú hlavne stavebné prvky z oceľovej dvojzákrutovej šesťhrannej siete, ktoré nachádzajú široké uplatnenie v oblasti geotechnických aplikácií a inžinierskeho staviteľstva (gravitačné a vystužené zemné konštrukcie, geokompozitné materiály na sanáciu skál, a geosyntetické materiály), pokrýva spoločnosť MACCAFERRI zvýšený nárast dopytu po týchto produktoch v regióne strednej Európy a balkánskych krajín.
V súčasnosti je veľmi častou požiadavkou zhotoviteľov stavieb čo najnižšia cena technického riešenia, najmä pri stavbách realizovaných metódou žltého FIDIC-u („naprojektuj a postav“). Na druhej strane stoja požiadavky investorov na bezpečnosť, návrhovú životnosť a trvalú funkčnosť konštrukcií pri zachovaní čo možno najnižších nákladov na ich prevádzku a údržbu. Keďže spoločnosť MACCAFERRI rozumie obom požiadavkám, na základe uplatnenia vlastného know-how založeného na dlhoročných skúsenostiach z realizácií v globálnom meradle a na základe uplatnenia poznatkov z vlastného výskumu a vývoja, umožňuje investorom, projektantom a aj zhotoviteľom stavieb efektívne optimalizovať náklady spojené s návrhom, výstavbou a prevádzkou týchto konštrukcií. V článku uvádzame praktické príklady použitia bezúdržbových konštrukcií MACCAFERRI vo vybraných referenčných projektoch na Slovensku.
Uvádzame príklady z týchto stavieb:
- Diaľnica D1 Dubná Skala – Turany: mostné krídla a opory realizované systémom vystuženej zemnej konštrukcie s lícom z betónových prefabrikátov – systém MacRES.
- Diaľnica D1 Fričovce – Svinia: zmenšenie záberov mostných kužeľov systémom TERRAMESH®.
- Diaľnica D1 úsek Sverepec – Vrtižer: zmenšenie záberov mostných kužeľov – obklad opôr systémom prefabrikovaných gabionov CUBIROCK.
Obr. 1 Pohľad na systém vystuženia, v pozadí objekt SO 230-00
Systém MacRES – Mostné krídla a opory na diaľnici D1 Dubná Skala – Turany
Diaľnica D1 v úseku Dubná Skala – Turany sa realizuje podľa zmluvných podmienok žltej knihy FIDIC, ktorá umožňuje zhotoviteľovi optimalizovať jednotlivé konštrukcie z hľadiska efektívnosti finančných a časových nárokov na realizáciu stavby. Žltá kniha tak dovolila upraviť parametre a konštrukcie mostných objektov, oporných a zárubných múrov, technológie budovania zemných telies a konštrukcií, ako aj ostatné konštrukcie a objekty stavby pri požiadavke investora na zachovanie nivelity. V procese technicko-ekonomickej optimalizácie jednotlivých objektov hlavnej trasy diaľnice navrhla technická kancelária našej spoločnosti zhotoviteľovi technické riešenie realizácie jednotlivých objektov, medzi nimi aj mostných krídiel a opôr. Pôvodné technické riešenie projektu v stupni DSP uvažovalo o realizácii gravitačných, prípadne uholníkových železobetónových múrov.
Na základe porovnania efektívnosti finančných a časových nárokov možných alternatívnych technických riešení sa pri zachovaní požiadaviek investora na funkčnosť a bezúdržbovosť konštrukcií vyhodnotil ako najvýhodnejší systém vystuženej zemnej konštrukcie s lícovými pohľadovými betónovými prefabrikátmi – systém MacRES. Konštrukčný systém MacRES funguje na základnom princípe trenia medzi výstužnými geopásmi ParaWeb a zeminou, ktorá ich v spätnom zásype priťažuje. Geopásy ParaWeb prenášajú ťahovú zložku napätia, ktorá v nich vzniká od zemných tlakov, na lícové prefabrikáty. Materiál telesa násypu a výstuž tvoria hlavnú časť systému a čelné prefabrikované panely slúžia na ochranu konštrukcie pred eróziou a predstavujú lícové opevnenie konštrukcie.
Systém MacRES je efektívny nielen z pohľadu obstarávacích nákladov a nákladov na výstavbu, ale rovnako aj z hľadiska nákladov na budúcu údržbu. Oproti vystuženým strmým svahom s lícom pokrytým vegetáciou tento systém nevyžaduje žiadnu údržbu (kosenie, ošetrovanie vegetácie, likvidáciu náletových drevín atď.), ktorá by predstavovala významnú zložku nákladov spojených s neskoršou údržbou a prevádzkou komunikácií (obr. 1). Výhodou systému MacRES je aj fakt, že prefabrikované panely sa vyrábajú v predstihu mimo staveniska, systém si nevyžaduje zložité a finančne náročné zakladanie a pri samotnom budovaní konštrukcie umožňuje dosahovať vysokú dennú aj celkovú produktivitu (50 m²/deň). Keďže systém predstavuje montovaný typ konštrukcie, jeho uplatnením sa odbúravajú „mokré procesy“, čo významne vplýva na skrátenie času výstavby.
Obr. 2 SO 207-00
Po zohľadnení všetkých hodnotiacich kritérií – cena konštrukcie, spôsob založenia, rýchlosť a efektivita výstavby – možno systém v niektorých prípadoch hodnotiť ako o 70 % výhodnejší v porovnaní s bežnými železobetónovými konštrukciami. Pri železobetónových konštrukciách, pri ktorých je nevyhnutné budovať masívne základy a vykonávať mokré procesy, sa tento typ konštrukcie môže budovať v podstate celoročne. S výstavbou opornej konštrukcie sa súbežne buduje priľahlý násyp cestného telesa a netreba čakať na dobudovanie celej konštrukcie, čo prináša pomerne značné časové úspory. Opory mostných objektov 207-00 (obr. 2) a 209-00 (obr. 3) sú navrhnuté vo forme oporného vystuženého múru z betónových pohľadových prefabrikátov. Múr je jednostupňový so sklonom líca 90° a v jeho korune je umiestnená poloprefabrikovaná rímsa. Systémom MacRES sa budujú takisto aj krídla mostných objektov 204-00, 211-00, 219-00, 220-00, 221-00 a 222-00.
Obr. 3 SO 209-00
Oporné múry objektov 236-00, 237-00, 238-00 a 239-00 sú obojstranne vystužené, majú charakter „back to back“ (obr. 5 a 6) a tvoria rampy prístupovej cesty 142-00, ktorá prechádza ponad diaľnicu D1 mostom 212-00, a dosahujú maximálnu výšku 12,0 m (obr. 6), pričom v korune sa nachádza poloprefabrikovaná rímsa. Na obr. 4 vľavo je pôvodné technické riešenie, vpravo je optimalizovaný návrh – vystužená zemná konštrukcia s lícovým opevnením z betónových prefabrikátov MacRES. Vzhľadom na malú šírku prístupovej komunikácie sú panely oproti sebe stojacich múrov navzájom prepojené geopásmi ParaWeb. Oporné múry tvoria krídla opory mostného objektu 212-00. Opora mosta pritom pozostáva z troch železobetónových rebier, priestor medzi nimi je takisto vyplnený vystuženou zeminou.
Obr. 4 Vľavo: pôvodné technické riešenie; vpravo: optimalizovaný návrh – vystužená zemná konštrukcia s lícovým opevnením z betónových prefabrikátov MacRES
Od začiatku 70. rokov minulého storočia sa vo svete postavilo veľa vystužených zemných konštrukcií s vertikálnym betónovým čelom vystuženým geopásmi. Je potešujúce, že prvou takouto realizáciou svojho druhu na Slovensku sú objekty na úseku diaľnice D1 Dubná Skala – Turany. Okrem diaľnice D1 sa systém MacRES výraznejšie stihol uplatniť aj na viacerých práve budovaných úsekoch ciest a diaľnic: objekty na rýchlostnej ceste R2 Žiar nad Hronom – obchvat a na stavbe I/68 Prešov, Škultétyho-ZVL.
Obr. 5 Oporné múry 236-00, 237-00, 238-00 a 239-00 sú obojstranne vystužené a majú charakter „back to back“.
Obr. 6 Oporné múry tvoria rampy prístupovej cesty 142-00, ktorá prechádza ponad diaľnicu D1 mostom 212-00, a dosahujú maximálnu výšku 12,0 m.
Terramesh® systém – Zmenšenie záberov mostných kužeľov, úsek D1 Fričovce – Svinia
Úsek D1 Fričovce – Svinia sa takisto buduje metódou žltého FIDIC-u. Aj v tomto prípade našlo uplatnenie technické riešenie navrhnuté spoločnosťou MACCAFERRI – konkrétne zamerané na zmenšenie záberov mostných kužeľov pomocou systému Terramesh®. Ide o modulárny konštrukčný systém používaný pri aplikáciách vystužovania zemín ako mechanická stabilizácia múrov a svahov. Čelo blokov Terramesh® systému je tvorené gabionom z dvojzákrutovej šesťuholníkovej oceľovej siete, hrubo galvanizovanej zliatinou Galfan (Zn-5 % Al-MM) a poplastovanej PVC, zemná výstuž je takisto tvorená z dvojzákrutovej šesťuholníkovej oceľovej siete s obdobnou špecifikáciou (obr. 9).
Obr. 9 Terramesh® systém
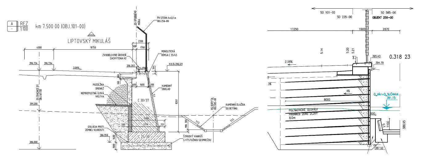
Ukážkovým príkladom použitia efektívneho technického riešenia s využitím Terramesh® systému je objekt SO 202-00 Most nad cestou III/018 189 a Štefanovským potokom v km 80,5 D1. Pôvodné technické riešenie projektu v stupni DSP uvažovalo o vybudovaní masívnych základov opôr 1 a 4 navrhnutých ako úložné prahy založené na pilótach a kolmé zavesené krídla z betónu C 30/37 s masívnymi obsypovými kužeľmi opôr. Použitím Terramesh® systému – vystuženej zemnej konštrukcie s čelom z gabionu – v kombinácii s vystužením kužeľov geosyntetickou výstužou (geomrežami Macgrid WG) bolo možné optimalizovať nielen výšku opôr, zmenšiť zábery pozemkov pod pôvodnými masívnymi kužeľmi obsypov mostných opôr, ale čo je hlavné, aj skrátiť dĺžku nosnej konštrukcie, a to spolu až o dve polia (jedno pole nosnej konštrukcie smerom od každej z opôr), čím sa významne ušetrili náklady na výstavbu mostnej konštrukcie ako celku. Na obr. 10 je priečny rez kužeľom opory.
Obr. 10 Priečny rez kužeľom opory
Výsledkom je síce masívna vystužená zemná konštrukcia, avšak pri komplexnom porovnaní finančných a ekonomických nákladov, ako aj pôvodného a optimalizovaného technického riešenia jednoznačne prevažujú pozitívne argumenty v prospech tohto riešenia. Výhodou konštrukcie Terramesh® systému oproti tradičným obaľovaným vystuženým zemným konštrukciám je aj to, že vystužená zemná konštrukcia sa môže v prípade Terramesh® systému budovať zo strany násypu, čo ju zvýhodňuje pred finančne náročnejším budovaním obaľovanej konštrukcie takpovediac zo vzduchu – z lícnej strany. Terramesh® systém s gabionovým lícom predstavuje bezúdržbový typ konštrukcie, takže konštrukcia je efektívna nielen z pohľadu nákladov na výstavbu, ale aj z pohľadu jej neskoršej údržby.
Obr. 7 Oporné múry tvoria krídla opory mostného objektu 212-00.
Obr. 8 Oporu mosta tvoria tri železobetónové rebrá, priestor medzi nimi je takisto vyplnený vystuženou zeminou.
Bezúdržbovosť konštrukcie zabezpečuje povrchová ochrana drôtu použitého na výrobu výstužných blokov Terramesh® systému – galvanizácia zliatinou Galfan a poplastovanie PVC. Použitie tejto povrchovej ochrany garantuje dosiahnutie požadovanej životnosti konštrukcie 100 rokov aj vo vysokoagresívnom prostredí – napríklad pri kontakte so zeminou alebo ostrekovaní roztokmi rozmrazovacích solí (prostredie C4 v zmysle STN EN ISO 9223: 2012 a podľa STN EN 10223-3, tab. č. 8 a č. 10).
Prefabrikované gabiony CUBIROCK – Zmenšenie záberov mostných kužeľov, obklad opôr SO 208-00 na diaľnici D1 Sverepec – Vrtižer
V 2. úseku diaľnice D1 Sverepec – Vrtižer v km 4,900 – 9,595 pri SO 208-00 bolo potrebné zrealizovať pod mostným objektom opornú gravitačnú konštrukciu s priľahlými krídlami. Mostná opora je založená v aluviálnej nive rieky Váh vo fluviálnych štrkových sedimentoch. Pôvodný projekt v stupni DSP uvažoval o realizácii gravitačného oporného múru s maximálnou výškou 3,5 m. Projekt predpisoval gabionové koše zo zváraných panelov s okom 10 × 10 a priemerom drôtu 4,0 mm. Keď zhotoviteľ obnažil oporu po vyťažení štrkových sedimentov s cieľom vybudovať oporný múr, vznikol zaujímavý problém, o ktorom sa v projekte neuvažovalo. Bolo treba zrealizovať opornú konštrukciu tak, aby nedošlo k zosunutiu štrkových sedimentov spod mostnej opory, čo by mohlo spôsobiť neočakávané stabilitné problémy. Ďalším problémom bolo, že pri postupnom rozvoľňovaní počas odťažovania by nastal problém, ako zhutniť spätný zásyp za gabionmi, a to z dôvodu obmedzeného prístupu pre hutniacu techniku pod mostným objektom.
Obr. 11 Násyp pre oporu č. 1
Obr. 12 Pohľad na násyp od opory č. 5
Po zvážení všetkých technických problémov spojených s výstavbou gabionovej konštrukcie zo zváraných panelov sa tento systém vyhodnotil ako nerealizovateľný pri uvedených okrajových podmienkach. Preto naša spoločnosť navrhla ako alternatívne riešenie iný konštrukčný systém – systém gravitačnej opornej konštrukcie z prefabrikovaných gabionov CUBIROCK. Ide o modulárny konštrukčný systém prefabrikovaných gabionových košov, ktoré sa ako samostatné monobloky dodávajú v naplnenom stave priamo na miesto určenia. Oceľový drôt používaný na výrobu gabionov CUBIROCK je hrubo galvanizovaný Galfanom (zliatina Zn-5 % Al-MM). Priemer drôtu siete je 3,9 mm, priemer jej okrajového drôtu 5,0 mm. Dno, steny a hrany košov sú spevnené, aby sa dalo manipulovať s touto konštrukciou pri prevoze a ukladaní. Na manipuláciu s gabionmi slúžia syntetické manipulačné úchyty, ktoré sa do CUBIROCKU vkladajú pri plnení. Gabiony sa predplnia kameňom v lome a dynamicky zhutnia vibráciou na vibračnom stole. Následne sa dovezú priamo na stavbu a pripravia na okamžité použitie.
Obr. 13 Stav po odkopaní opory
Obr. 14 Stav po uložení košov CUBIROCK
Dôležitým faktom je aj to, že za jeden deň dokážu dvaja pracovníci spolu s obsluhou žeriava zrealizovať 100 až 200 m3 tohto systému. Na porovnanie, dvaja pracovníci sú schopní za jeden deň vyskladať približne 6 až 8 m3 bežnej gravitačnej gabionovej konštrukcie. Aj prefabrikovaná gabionová konštrukcia CUBIROK predstavuje bezúdržbový typ konštrukcie.
Záver
Produkty a technické riešenia spoločnosti MACCAFERRI CENTRAL EUROPE, s. r. o., garantujú investorovi najvyššiu kvalitu a vysokú mieru bezpečnosti pri rešpektovaní náročných technických štandardov, ktoré sa kladú na trvalé konštrukcie cestných a diaľničných komunikácií.
TEXT: Mgr. Ľuboš Lichý
FOTO: MACCAFERRI CENTRAL EUROPE
Ľuboš Lichý je riaditeľom predaja v spoločnosti
MACCAFERRI CENTRAL EUROPE, s. r. o.
Literatúra
1. Adamec, J. – Púček, R.: Vystužené zemné konštrukcie na stavbe D1 Dubná Skala – Turany.
In: Zborník konferencie Geosyntetika v stavebníctve, Žilina, 2013.
2. Sňahničan, J.: Geopásy v prefabrikovanom vystuženom múre.
In: Inžinierske stavby, Bratislava: JAGA, 2012, č. 6.
3. Interná dokumentácia spoločnosti MACCAFERRI CENTRAL EUROPE, s. r. o.
4. www.maccaferri.sk
Článok bol uverejnený v časopise Inžinierske stavby/Inženýrské stavby.

























