Bratislavská Reduta – sanácia základov a hlboká stavebná jama vo dvore
V príspevku sa opisuje zhotovenie stavebnej jamy budovy Slovenskej filharmónie v Bratislave medzi ulicami Medená a Mostová. Ide o priestor s rozmermi 26 × 12 až 14 m, s dvoma suterénmi so základovou škárou na úrovni –10,18 m pod terénom a s hladinou podzemnej vody asi 6,0 m pod terénom, a to s použitím tryskovej injektáže s funkciou paženia, tesnenia a podchytenia vo dvore rekonštruovaného objektu.
Opis objektuObjekt bratislavskej Reduty je národná kultúrna pamiatka evidovaná v ÚZKP pod č. 129 a bol postavený v rokoch 1910 až 1919. Projekt pripravili budapeštianski architekti Marcel Komor a Dezider Jakab v historizujúcom eklektickom duchu, s použitím na vtedajšie obdobie progresívnych konštrukčných riešení. Budova bola navrhnutá ako polyfunkčný objekt. Je situovaná v mestskej časti Bratislava-Staré Mesto v blízkosti dunajského nábrežia. Budova má aj nádvorie, ktoré slúži na zásobovanie prevádzok v átriovej časti. Po dlhoročnom užívaní Reduta dospela do stavu, keď na zabezpečenie jej plnohodnotnej a bezpečnej prevádzky nestačili čiastkové opravy, ale nevyhnutná bola celková renovácia. Pre Bratislavu aj Slovensko má táto budova historickú hodnotu, z hľadiska súčasných potrieb bola však nutná nielen komplexná renovácia interiérov a exteriérov, ale jej prevádzka si vyžiadala aj vybudovanie podzemných priestorov pod existujúcim nádvorím ako jediným možným miestom na rozšírenie. Rozsiahla renovácia pomáha ochraňovať túto súčasť európskeho kultúrneho dedičstva a je zároveň prínosom k jeho zachovaniu pre všetkých obyvateľov krajiny.
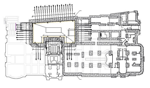
Obr. 1 Pôdorys stavebnej jamy a sanácie základov
Geologické pomery
Podľa základného regionálneho geologického delenia Západných Karpát sa záujmové územie nachádza v jednotke Podunajská panva. Podunajská panva predstavuje medzihorskú superponovanú depresiu. Neogénnu výplň panvy zastupujú prevažne morské sedimenty. Pre oblasť je tiež charakteristická akumulácia rôznych typov kvartérnych fluviálnych sedimentov dunajského pôvodu. Hrúbka kvartérneho pokryvu sa pohybuje okolo 12 až 14 m.
Východiskom projektu sú geologické pomery podľa podkladu Záverečná správa inžinierskogeologického prieskumu, Bratislava – rekonštrukcia budovy Reduta, Etapa prieskumu – Doplnková, STAS – stavby a sanácie, spol. s r. o., Bulharská 37/1, 91700 Trnava, RNDr. Ján Pavlech, 12/2009.
Terén je na úrovni 138,28 m n. m., t. j. –0,29 m.
Podľa tejto správy tvoria povrch územia vrstvy navážok do hĺbky asi 5,2 m. Pod vrchnými vrstvami sa nachádzajú kvartérne fluviálne sedimenty tvorené štrkopiesčitým horizontom od hĺbky 5,2 do asi 13 m. Prevládajúcim typom je štrk s prímesou jemnozrnnej zeminy. Podložné neogénne sedimenty sú zastúpené jemnozrnnými a piesčitými zeminami, zrnitostne zodpovedajúcimi ílom a lokálne pieskom.
Hladina podzemnej vody bola narazená v štrkoch v mierne napätom stave v hĺbke asi 6,0 m pod terénom. Z hľadiska zakladania stavieb je dôležitý režim kolísania hladiny podzemných vôd. Úroveň hladiny podzemnej vody v danom území ovplyvňuje stav hladiny v povrchovom toku Dunaja, ktorý pri zvýšených stavoch bočnou infiltráciou dotuje podzemné vody.
Opis riešenia
Požiadavkou zadávateľa projekčných podkladov bolo rozšírenie zázemia na účely filharmónie. Jediné možné miesto na vytvorenie takýchto priestorov bolo pod existujúcim nádvorím. Keďže nádvorie bolo plošne obmedzené, do úvahy prichádzalo iba riešenie ísť do hĺbky dvoch podzemných podlaží. Vstavba je navrhnutá ako železobetónová „krabicová“ konštrukcia, ktorej dno sa bude nachádzať pod hladinou podzemnej vody, čím vznikla potreba zhotovenia zložitej stavebnej jamy s rozmermi 26 × 12 až 14 m s dnom výkopu na kóte –10,18 m.
Po dôkladnej analýze dostupných technológií a zvážení ich realizovateľnosti v stiesnených pomeroch nádvoria, ako aj ich finančnej náročnosti sa prijalo rozhodnutie zhotoviť stavebnú jamu z tryskovej injektáže.
Jama s hĺbkou asi 10,2 m mala zabezpečiť možnosť znižovania hladiny podzemnej vody (HPV). Po výkope bolo potrebné zabezpečiť stabilitu stien výkopu a okolitých budov počas stavebných prác s pažiacou aj tesniacou funkciou. V zmysle statického výpočtu musí byť stena paženia kotvená vo dvoch úrovniach dočasnými lanovými kotvami potrebných dĺžok. Stĺpy dvojzložkovej tryskovej injektáže s priemermi 1,0 až 1,6 m podchytili základy okolitých objektov a umožnili zriadiť výkop so zvislými stenami, pričom sa dosiahlo výrazné obmedzenie prítoku vody do stavebnej jamy. V takto zabezpečenom stavebnom priestore sa dali uskutočňovať všetky potrebné práce na zhotovení vstavby neobmedzene.
Na základe realizovaných prieskumných sond na iných stavbách v blízkosti Dunaja sa zistilo, že jemné častice štrkového podložia sa vyplavujú, čo spôsobuje sadanie objektov. V prípade Reduty existovala vážna obava, že podobné javy prebiehajú aj v podzákladí objektu, čomu nasvedčovali početné trhliny v nosnom murive. Vychádzajúc z uvedeného predpokladu, t. j. prítomnosti neúnosného podložia pod väčšou časťou pôdorysu, ako aj z dôvodu plánovanej rekonštrukcie, nadstavby a prehĺbenia časti suterénov sa navrhla sanácia podzákladia a zosilnenie a prehĺbenie základov tak, aby základy bezpečne a trvanlivo vyhovovali požiadavkám na odolnosť a sadanie pri zmenenej záťaži. Z toho dôvodu sa pri stavebných prácach podobne ako pri vytvorení stavebnej jamy, uplatnila tryskovej injektáž. Sanácia sa riešila stĺpmi trojzložkovej tryskovej injektáže s priemerom 1,0 až 1,2 m lokálne pod základovými pätkami a pásmi.
Obr. 2 Schéma zhotovovania tryskovej injektáže
Opis technológie tryskovej injektáže
Trysková injektáž Soilcrete na podchytenie existujúcich budov a tesnenie stavebnej jamy sa zhotovuje z pracovnej úrovne špeciálnou vrtnou súpravou. Postupuje sa od päty vrtu smerom nahor. Pracovný postup na každý prvok tryskovej injektáže je takýto:
- pomocou špeciálneho vrtného sútyčia vrtná súprava vytvorí do potrebnej hĺbky otvor s priemerom asi 10 až 15 cm,
- tryskovou injektážou na báze cementu, prísad a vody sa zhotoví spevnenie a utesnenie zeminy preinjektovaním od päty smerom k hlave navrhnutého stĺpa,
- vrtná súprava sa premiestni na nasledujúci bod.
Po zatuhnutí cementovej suspenzie treba zhotoviť susedný prvok Soilcretu tak, aby bolo možné dokonalé zmonolitnenie jednotlivých prvkov do súvislej pažiacej a tesniacej steny. Po zhotovení a vytvrdnutí všetkých prvkov ich možno odkopať, prípadne upraviť ručným šramovaním alebo strojným frézovaním. Odkopávanie postupuje po pracovných záberoch, ktoré korešpondujú s kotevnými úrovňami. Následne počas výkopu stavebnej jamy možno teleso tryskovej injektáže prikotviť dočasnými lanovými kotvami:
- vrtnou súpravou sa vyvŕtajú otvory (v nesúdržných zeminách zapažené) na dočasné lanové kotvy potrebnej dĺžky, otvor sa vyplní suspenziou na báze cementu a vody a vloží sa dočasná lanová kotva,
- po zatvrdnutí cementovej suspenzie sa na dočasné lanové kotvy osadia oceľové kotevné platne a upínacia kotevná hlava, potom sa kotvy predopnú na požadovanú silu.
Prehlbovanie základov sa realizuje metódou tryskovej injektáže, a to trojzložkovej. Jednotlivé stĺpy sa zrealizovali špeciálnou vrtnou súpravou s osobitným vrtným náradím, ktoré je prispôsobené na prácu v stiesnených priestoroch z pracovnej úrovne na kóte podlahy 1. PP alebo 1. NP. Práce na prehlbovaní základov prebiehali z interiéru, respektíve z exteriéru. Prvky tryskovej injektáže na sanáciu podzákladia sa zhotovili podobným spôsobom ako pri injektáži na paženie a rovnakým pracovným postupom.
Na zhotovovanie a monitoring tryskovej injektáže platí norma STN EN 12716, preto sa v jej zmysle počas pracovného postupu vykonávalo inklinometrické meranie na každý vrt stavebnej jamy, aby sa získal podrobný obraz o polohe prvkov tryskovej injektáže (STN EN 12716 kap. 9). Na obr. 3 je graficky znázornená poloha jednotlivých vrtov v úrovni –10,0 m, čo zodpovedá približne úrovni výkopu stavebnej jamy.
Obr. 3 Inklinometrické zameranie v hĺbke 10,0 m
Obr. 4 Príklady priečnych rezov stenou stavebnej jamy a prehĺbenia základov

Obnova národnej kultúrnej pamiatky v centre Bratislavy si vyžiadala investíciu vyše 785 miliónov korún (približne 23,5 miliónov €). Prvá komplexná rekonštrukcia Reduty trvala vyše 2 roky a mala budovu vrátiť do pôvodného vzhľadu z roku 1919.
V rámci renovácie budovy sa vytvorili skladové priestory a skúšobnej sály v podzemí pod pôvodným nádvorím, čo si vynútilo zhotovenie stavebnej jamy do hĺbky 10,2 m pod úrovňou pôvodného terénu. Takisto sa vytvorili ďalšie dve podlažia kancelárskych priestorov nad časťou pôdorysu budovy od Medenej ulice, čo významne menilo záťaž v existujúcich základoch. Podľa prieskumov z okolitých stavieb sa, navyše, predpokladalo oslabenie podložia, vyplývajúce z kolísania hladiny podzemnej vody vymývaním jemnozrnnej zložky zeminy v okolí základovej škáry, čo sa nakoniec počas realizácie potvrdilo aj na tejto stavbe. Po celkovom zvážení týchto faktorov a ďalších okolností, ako aj finančnej náročnosti sa na realizáciu paženia a podchytenia základov použila rovnaká technológia ako na sanáciu základov prehĺbením a podchytením so zvýšeným zaťažením, aby sa eliminovali dôsledky presunov veľkých zariadení a častých pohybov ťažkých mechanizmov cez pamiatkovo chránenú oblasť v Starom Meste.
Navrhnuté paženie a tesnenie stavebnej jamy stenou z kotveného Soilcretu je dočasnou konštrukciou, ktorá splnila požadované funkcie zabezpečenia stability stien výkopu, paženia a tesnenia stavebnej jamy pod hladinou podzemnej vody a umožnila znížiť hladinu podzemnej vody počas výstavby pod úroveň výkopu.
Inklinometrickým zameraním sa preukázala poloha jednotlivých prvkov Soilcretu – tryskovej injektáže a dokladovalo sa aj projektované prerezávanie prvkov, a tým aj utesnenie a zmonolitnenie do jednotnej steny po obvode jamy. Takto sa zabezpečila nielen stabilita stien jamy, ale aj výrazné zníženie prítokov vody do nej.
Navrhované podchytenie a stabilizácia základov stĺpmi tryskovej injektáže vyhovujú požiadavkám I. a II. medzného stavu na únosnosť a sadnutie z hľadiska projektovaného nárastu zaťažení od nadstavby.
V posledných rokoch sa Redute, okrem doteraz fungujúcej kultúrnej funkcie, postupne prinavracia aj funkcia spoločenská. Spomínaná renovácia s rozšírením jej priestorov bude znamenať významný pokrok na ceste za týmto oživením.
TEXT: Ing. Peter Jurík, Ing. Peter Cápay, Ing. Ján Dobrovolský
FOTO: KELLER špeciálne zakladanie
Peter Jurík je projektant statiky v spoločnosti KELLER špeciálne zakladanie, spol. s r. o.
Peter Cápay je projektant v spoločnosti KELLER špeciálne zakladanie, spol. s r. o.
Ján Dobrovolský je projektant statiky v spoločnosti KELLER špeciálne zakladanie, spol. s r. o.
Článok bol uverejnený v časopise Inžinierske stavby/Inženýrské stavby.


















