Uniqa Tower vo Viedni
Vo Viedni pri južnom dunajskom ramene Donaukanal minulý rok vyrástla nová dominanta. V novej 75 metrov vysokej centrále koncernu Uniqa na ulici Untere Donaustraße vo Viedni podľa jej tvorcov z viedenského architektonického ateliéru Neumann + Partner neplatí, že kto sedí v „sklenenej veži“, musí sa zákonite v lete potiť a v zime mrznúť. Pri navrhovaní kancelárskej veže boli vytvorenie príjemného pracovného prostredia a ideálneho temperovania dôležitými aspektmi návrhu. A nemalý podiel na tom malo práve riešenie fasády.
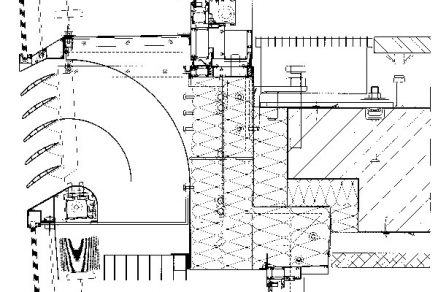
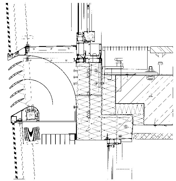
Dvojplášťová sklená fasáda s prirodzeným vetraním poskytuje optimálnu ochranu proti teplu, zime, vetru a hluku a predchádza všetkým klimatickým problémom. Koncepcia technických zariadení budovy umožňuje okrem iného aj využívanie geotermálnej energie. Desiatky tisíc metrov plastových rúr sa uložili do 35 metrov hlbokých monolitických podzemných stien, ktoré slúžia ako betónový absorbér a v zime umožňujú využívať geotermálnu energiu na vykurovanie a v lete zvyšujú výkon vynaložený na chladenie vzduchu. Vzduch cirkuluje cez viaceré vrstvy skla precízne vyriešenej fasády a geotermálna energia sa vďaka tomu efektívne využíva v zime na vykurovanie a v lete na chladenie.
Architekti z ateliéru Neumann + Partner, ktorí v roku 1999 zvíťazili v silnom obsadení vypísanej architektonickej súťaže, vychádzali vo svojom návrhu z dvoch hlavných myšlienok: kancelárskou vežou chceli vytvoriť v siluete južného dunajského ramena Donaukanal vizuálny orientačný bod a zároveň mala budova svojím vzhľadom vyjadriť orientáciu investora na budúcnosť. Z hľadiska mestskej architektúry tvorí táto veža z diaľky viditeľné ťažisko a zdôrazňuje začiatok viedenskej Ringstrasse. Zatiaľ nie je jasné, či sa Skyline dunajského kanála bude ďalej rozrastať. Nové vežové projekty sa v tomto prostredí neplánujú a UNESCO chce rozšíriť zónu svetového kultúrneho dedičstva aj do druhého viedenského obvodu – čo však Viedeň zatiaľ odmieta.

Vykročenie bočných betónových podpier do úzkej ulice Aspernbrückengasse je pomerne robustné, aj keď ho na povrchu podpier zmierňuje vrstva skla. Fitnescentrum, umiestnené na prvom podzemnom podlaží, sa síce vymyká z tohto riešenia, vďaka ktorému má dostatok denného svetla, ale predstavuje veľký zásah do priestoru ulice. Celková výška „nohy“ veže je možno len malým vybočením, ale vo výške očí okoloidúceho pôsobí ako krok z ohromujúceho rozmeru.
Napriek tomu architekt Heinz Neumann (nielen) k svojmu návrhu hovorí: „S naším mestským prostredím musíme zaobchádzať obozretne a starostlivo, lebo my, naša spoločnosť a naša doba sa raz budú posudzovať podľa našich stavebných diel. To je veľká zodpovednosť. A túto zodpovednosť musí niesť predovšetkým architekt.“
Zároveň s výstavbou budovy Uniqa Tower sa mali renovovať vedľajšie budovy s rovnako riešenou sklenou fasádou, kde má sedieť ďalších 400 pracovníkov spoločnosti, ale renovácia sa zatiaľ nedokončila. Nová hala určená na podujatia (reštauračná zóna a zóna na podujatia) s expresívne zaoblenou sklenou strechou spája tieto pôvodné kancelárske budovy s vežou.
Názov stavby: Uniqa Tower
Miesto stavby: Praterstraße 1 – 7, Viedeň, Rakúsko
Architekt: Neumann + Partner (Heinz Neumann)
Architektonická spolupráca: Johann Prost, Stephan Unger, Ines Wagner-Löffler, Alexandra Riedel
Investor: Uniqua Immobilien-Projekterrichtungs GmbH
Statik: Werner Consult Ziviltechnikergesellschaft m.b.H.
Krajinný architekt: Jakob Fina
Stavebný dozor: Lugitsch – Greiner – Mahlknecht – Bergsmann
Transparentné fasády: Schüco International KG
Projekt: 1999 – 2001
Realizácia: 2001 – 2004
Celkové náklady stavby: 70 mil. eur
Vodorovný rez fasádou veže
Zvislý rez styku fasády s nosnou konštrukciou
Martina Jakušová
Foto a grafické prílohy: Schüco International KG









